Property
Account |
| Property ID: | 38347 | Abbreviated Legal Description: | PETTYGROVES 2ND ADDITION BLK 74 LOTS 1(LS S25.09'),2(LS 25.09' OF W33'),3 & 4(ALL) BND THRU LLA#142153 |
| Parcel # / Geo ID: | 985207401 | Agent Code: | |
| Type: | Real | | |
| Tax Area: | 0110 - C-50F1E1H2 | Land Use Code | 11 |
| Open Space: | N | DFL | N |
| Historic Property: | N | Remodel Property: | N |
| Multi-Family Redevelopment: | N | | |
| Township: | 31N | Section: | 35 |
| Range: | 1W |
Location |
| Address: | 907 W ST PORT TOWNSEND, WA 98368 | Mapsco: | 100/008 |
| Neighborhood: | PTN OF PETTYGROVES 2ND LYING EAST OF CHERRY ST. & ALDRICH'S | Map ID: | |
| Neighborhood CD: | 6420 |
Owner |
| Name: | JOHN H & AMANDA F M ROSE | Owner ID: | 109349 |
| Mailing Address: | 907 W ST PORT TOWNSEND, WA 98368-3405 | % Ownership: | 100.0000000000% |
| | | Exemptions: | |
Pay Tax Due
Select the appropriate checkbox next to the year to be paid. Multiple years may be selected.
*Convenience Fee not included
Taxes and Assessment Details
Property Tax Information as of
03/12/2026
Click on "Statement Details" to expand or collapse a tax statement.
* Please enter a valid date ** Please enter a valid date *
Statement Details |
| 2026 | 27531 | STATE - STATE LEVY (SCHOOL) | $1215.47 | $1215.46 | $0.00 | $0.00 | $0.00 | $2430.93 |
| 2026 | 27531 | COUNTY - COUNTY LEVIES (CE, DD, VET, MH) | $485.95 | $485.92 | $0.00 | $0.00 | $0.00 | $971.87 |
| 2026 | 27531 | CONSERVE - CONSERVATION FUTURES | $14.57 | $14.57 | $0.00 | $0.00 | $0.00 | $29.14 |
| 2026 | 27531 | CITYPT - CITY OF PT | $689.76 | $689.74 | $0.00 | $0.00 | $0.00 | $1379.50 |
| 2026 | 27531 | PORTPT - PORT DISTRICT | $196.26 | $196.25 | $0.00 | $0.00 | $0.00 | $392.51 |
| 2026 | 27531 | PUD1 - PUD #1 | $31.61 | $31.61 | $0.00 | $0.00 | $0.00 | $63.22 |
| 2026 | 27531 | HD2 - HOSP DIST #2 | $28.34 | $28.34 | $0.00 | $0.00 | $0.00 | $56.68 |
| 2026 | 27531 | SD50 - SCHOOL DIST #50 | $962.92 | $962.90 | $0.00 | $0.00 | $0.00 | $1925.82 |
| 2026 | 27531 | FD1 - FIRE DISTRICT #1 | $643.50 | $643.49 | $0.00 | $0.00 | $0.00 | $1286.99 |
| 2026 | 27531 | EMS1 - FIRE DIST #1 EMS | $247.42 | $247.41 | $0.00 | $0.00 | $0.00 | $494.83 |
| 2026 | 27531 | FP - DNR Forest Fire Protection Assmt | $8.50 | $8.50 | $0.00 | $0.00 | $0.00 | $17.00 |
| 2026 | 27531 | FPLCA - DNR Landowner Contingency Assmt | $3.00 | $3.00 | $0.00 | $0.00 | $0.00 | $6.00 |
| 2026 | 27531 | JCCD - JC Conservation District | $2.55 | $2.55 | $0.00 | $0.00 | $0.00 | $5.10 |
| 2026 | 27531 | NWA - Noxious Weed Assessment | $2.98 | $2.97 | $0.00 | $0.00 | $0.00 | $5.95 |
| 2026 | 27531 | FP ADMIN - FP ADMIN | $0.50 | $0.00 | $0.00 | $0.00 | $0.00 | $0.50 |
| 2026 | 27531 | TOTAL: | $4533.33 | $4532.71 | $0.00 | $0.00 | $0.00 | $9066.04 |
|
| 2026 | 27531 | $4533.33 | $4532.71 | $0.00 | $0.00 | $0.00 | $9066.04 |
Statement Details |
| 2025 | 27603 | STATE - STATE LEVY (SCHOOL) | $1112.74 | $1112.73 | $0.00 | $0.00 | $2225.47 | $0.00 |
| 2025 | 27603 | COUNTY - COUNTY LEVIES (CE, DD, VET, MH) | $437.59 | $437.55 | $0.00 | $0.00 | $875.14 | $0.00 |
| 2025 | 27603 | CONSERVE - CONSERVATION FUTURES | $13.12 | $13.12 | $0.00 | $0.00 | $26.24 | $0.00 |
| 2025 | 27603 | CITYPT - CITY OF PT | $631.04 | $631.03 | $0.00 | $0.00 | $1262.07 | $0.00 |
| 2025 | 27603 | PORTPT - PORT DISTRICT | $178.56 | $178.55 | $0.00 | $0.00 | $357.11 | $0.00 |
| 2025 | 27603 | PUD1 - PUD #1 | $28.63 | $28.63 | $0.00 | $0.00 | $57.26 | $0.00 |
| 2025 | 27603 | HD2 - HOSP DIST #2 | $25.53 | $25.53 | $0.00 | $0.00 | $51.06 | $0.00 |
| 2025 | 27603 | SD50 - SCHOOL DIST #50 | $813.23 | $813.21 | $0.00 | $0.00 | $1626.44 | $0.00 |
| 2025 | 27603 | FD1 - FIRE DISTRICT #1 | $577.43 | $577.43 | $0.00 | $0.00 | $1154.86 | $0.00 |
| 2025 | 27603 | EMS1 - FIRE DIST #1 EMS | $222.10 | $222.09 | $0.00 | $0.00 | $444.19 | $0.00 |
| 2025 | 27603 | FP - DNR Forest Fire Protection Assmt | $8.50 | $8.50 | $0.00 | $0.00 | $17.00 | $0.00 |
| 2025 | 27603 | FPLCA - DNR Landowner Contingency Assmt | $3.00 | $3.00 | $0.00 | $0.00 | $6.00 | $0.00 |
| 2025 | 27603 | JCCD - JC Conservation District | $2.55 | $2.55 | $0.00 | $0.00 | $5.10 | $0.00 |
| 2025 | 27603 | NWA - Noxious Weed Assessment | $2.15 | $2.15 | $0.00 | $0.00 | $4.30 | $0.00 |
| 2025 | 27603 | FP ADMIN - FP ADMIN | $0.50 | $0.00 | $0.00 | $0.00 | $0.50 | $0.00 |
| 2025 | 27603 | TOTAL: | $4056.67 | $4056.07 | $0.00 | $0.00 | $8112.74 | $0.00 |
|
| 2025 | 27603 | $4056.67 | $4056.07 | $0.00 | $0.00 | $8112.74 | $0.00 |
Statement Details |
| 2024 | 27661 | STATE - STATE LEVY (SCHOOL) | $815.20 | $815.18 | $0.00 | $0.00 | $1630.38 | $0.00 |
| 2024 | 27661 | COUNTY - COUNTY LEVIES (CE, DD, VET, MH) | $348.84 | $348.82 | $0.00 | $0.00 | $697.66 | $0.00 |
| 2024 | 27661 | CONSERVE - CONSERVATION FUTURES | $10.46 | $10.46 | $0.00 | $0.00 | $20.92 | $0.00 |
| 2024 | 27661 | CITYPT - CITY OF PT | $498.44 | $498.41 | $0.00 | $0.00 | $996.85 | $0.00 |
| 2024 | 27661 | PORTPT - PORT DISTRICT | $144.08 | $144.08 | $0.00 | $0.00 | $288.16 | $0.00 |
| 2024 | 27661 | PUD1 - PUD #1 | $22.91 | $22.91 | $0.00 | $0.00 | $45.82 | $0.00 |
| 2024 | 27661 | HD2 - HOSP DIST #2 | $20.36 | $20.35 | $0.00 | $0.00 | $40.71 | $0.00 |
| 2024 | 27661 | SD50 - SCHOOL DIST #50 | $659.53 | $659.53 | $0.00 | $0.00 | $1319.06 | $0.00 |
| 2024 | 27661 | FD1 - FIRE DISTRICT #1 | $461.24 | $461.23 | $0.00 | $0.00 | $922.47 | $0.00 |
| 2024 | 27661 | EMS1 - FIRE DIST #1 EMS | $176.18 | $176.17 | $0.00 | $0.00 | $352.35 | $0.00 |
| 2024 | 27661 | JCCD - JC Conservation District | $2.55 | $2.55 | $0.00 | $0.00 | $5.10 | $0.00 |
| 2024 | 27661 | NWA - Noxious Weed Assessment | $2.15 | $2.15 | $0.00 | $0.00 | $4.30 | $0.00 |
| 2024 | 27661 | TOTAL: | $3161.94 | $3161.84 | $0.00 | $0.00 | $6323.78 | $0.00 |
|
| 2024 | 27661 | $3161.94 | $3161.84 | $0.00 | $0.00 | $6323.78 | $0.00 |
Statement Details |
| 2023 | 27703 | STATE - STATE LEVY (SCHOOL) | $772.97 | $772.96 | $0.00 | $0.00 | $1545.93 | $0.00 |
| 2023 | 27703 | COUNTY - COUNTY LEVIES (CE, DD, VET, MH) | $337.31 | $337.29 | $0.00 | $0.00 | $674.60 | $0.00 |
| 2023 | 27703 | CONSERVE - CONSERVATION FUTURES | $10.12 | $10.11 | $0.00 | $0.00 | $20.23 | $0.00 |
| 2023 | 27703 | CITYPT - CITY OF PT | $476.73 | $476.70 | $0.00 | $0.00 | $953.43 | $0.00 |
| 2023 | 27703 | PORTPT - PORT DISTRICT | $142.09 | $142.09 | $0.00 | $0.00 | $284.18 | $0.00 |
| 2023 | 27703 | PUD1 - PUD #1 | $22.36 | $22.36 | $0.00 | $0.00 | $44.72 | $0.00 |
| 2023 | 27703 | HD2 - HOSP DIST #2 | $19.69 | $19.68 | $0.00 | $0.00 | $39.37 | $0.00 |
| 2023 | 27703 | SD50 - SCHOOL DIST #50 | $613.37 | $613.36 | $0.00 | $0.00 | $1226.73 | $0.00 |
| 2023 | 27703 | FD1 - FIRE DISTRICT #1 | $277.87 | $277.87 | $0.00 | $0.00 | $555.74 | $0.00 |
| 2023 | 27703 | EMS1 - FIRE DIST #1 EMS | $118.20 | $118.20 | $0.00 | $0.00 | $236.40 | $0.00 |
| 2023 | 27703 | JCCD - JC Conservation District | $2.55 | $2.55 | $0.00 | $0.00 | $5.10 | $0.00 |
| 2023 | 27703 | NWA - Noxious Weed Assessment | $2.15 | $2.15 | $0.00 | $0.00 | $4.30 | $0.00 |
| 2023 | 27703 | TOTAL: | $2795.41 | $2795.32 | $0.00 | $0.00 | $5590.73 | $0.00 |
|
| 2023 | 27703 | $2795.41 | $2795.32 | $0.00 | $0.00 | $5590.73 | $0.00 |
Values
| (+) Improvement Homesite Value: | + | $0 | |
| (+) Improvement Non-Homesite Value: | + | $671,620 | |
| (+) Land Homesite Value: | + | $0 | |
| (+) Land Non-Homesite Value: | + | $385,725 | |
| (+) Curr Use (HS): | + | $0 | $0 |
| (+) Curr Use (NHS): | + | $0 | $0 |
| | | -------------------------- | |
| (=) Market Value: | = | $1,057,345 | |
| (–) Productivity Loss: | – | $0 | |
| | | -------------------------- | |
| (=) Subtotal: | = | $1,057,345 | |
| (+) Senior Appraised Value: | + | $0 | |
| (+) Non-Senior Appraised Value: | + | $1,057,345 | |
| | | -------------------------- | |
| (=) Total Appraised Value: | = | $1,057,345 | |
| (–) Senior Exemption Loss: | – | $0 | |
| (–) Exemption Loss: | – | $0 | |
| | | -------------------------- | |
| (=) Taxable Value: | = | $1,057,345 | |
Taxing Jurisdiction
| Owner: | JOHN H & AMANDA F M ROSE | | |
| % Ownership: | 100.0000000000% | | |
| Total Value: | N/A | | |
| Tax Area: | 0110 - C-50F1E1H2 |
| CE | COUNTY CURRENT EXPENSE | N/A | N/A | N/A | N/A | | |
| CNTYDD | DEVELOPMENTAL DISABILITIES | N/A | N/A | N/A | N/A | | |
| CNTYVET | VETERANS RELIEF | N/A | N/A | N/A | N/A | | |
| MENTAL | MENTAL HEALTH | N/A | N/A | N/A | N/A | | |
| PTGEN | CITY OF PT GENERAL | N/A | N/A | N/A | N/A | | |
| PTLLL | CITY OF PT - LIBRARY LID LIFT | N/A | N/A | N/A | N/A | | |
| PTMVBOND | CITY OF PT MV BOND | N/A | N/A | N/A | N/A | | |
| HOSP2CASH | HOSP DIST #2 GENERAL | N/A | N/A | N/A | N/A | | |
| SCH50BOND | SCHOOL DIST #50 BOND 2016 | N/A | N/A | N/A | N/A | | |
| SCH50CP | SCHOOL DIST #50 CAP PROJ | N/A | N/A | N/A | N/A | | |
| SCH50MO | SCHOOL DIST #50 EP & O | N/A | N/A | N/A | N/A | | |
| CONSERVE | CONSERVATION FUTURES | N/A | N/A | N/A | N/A | | |
| EMS1 | FIRE DIST #1 EMS | N/A | N/A | N/A | N/A | | |
| FD1 | FIRE DIST #1 GENERAL | N/A | N/A | N/A | N/A | | |
| PORTPT | PORT OF PT GENERAL | N/A | N/A | N/A | N/A | | |
| PORTPTIDD | PORT OF PT IDD 2019 | N/A | N/A | N/A | N/A | | |
| PUD1 | PUD #1 GENERAL | N/A | N/A | N/A | N/A | | |
| STATE | STATE SCHOOL PART 1 | N/A | N/A | N/A | N/A | | |
| STATE2 | STATE SCHOOL PART 2 | N/A | N/A | N/A | N/A | | |
| | Total Tax Rate: | N/A | | | | | |
| | | | | Taxes w/Current Exemptions: | N/A | | |
| | | | | Taxes w/o Exemptions: | N/A | | |
Improvement / Building
| Improvement #1: | Residential Bldg | State Code: | 11 | 1592.0 sqft | Value: | $671,620 |
| Bathrooms (#): | 2 (FULL) | Bathrooms (#): | 1 (HALF) | | Bedrooms (#): | 2 | Exterior Wall: | SI/ST | | Fireplace: | WD ST-AVG | Floor Construction: | FRAME | | Foundation: | CONPR | Heating/Cooling: | HPUMP | | Inside Verify: | YES-FIX | Roof Cover: | COMP |
|
| | Type | Description | Class CD | Sub Class CD | Year Built | Area |
| | MA | Main Area | 5- | 15SF | 1906 | 1592.0 |
| | HLOFT | House Loft | 5 | 15SF | 2020 | 308.0 |
| | HCPOR | House Concrete Porch | 4 | * | 1906 | 156.0 |
| | HDECK | House Deck | 4 | * | 1906 | 558.0 |
| | BSMTF | House basement finished | 4 | 1S | 2020 | 764.0 |
| | OTHER | Other | * | * | 1906 | 0.0 |
| | HRPO | House Roof Patio | 4 | * | 1906 | 245.0 |
| | BSMTU | House basement unfinished | 1 | * | 1906 | 644.0 |
| | SHED | Shed (Table Not Dep) | 3 | * | 1906 | 0.0 |
Sketch
Property Image
Land
| 1 | 6420-1173L | | 0.0000 | 0.00 | 0.00 | 0.00 | 1.00 | $185,000 | $0 |
| 2 | 6420-1173L | | 0.0000 | 0.00 | 0.00 | 0.00 | 1.00 | $200,725 | $0 |
Roll Value History
| 2026 | N/A | N/A | N/A | N/A | N/A |
| 2025 | $671,620 | $385,725 | $0 | $1,057,345 | $1,057,345 |
| 2024 | $541,610 | $386,430 | $0 | $928,040 | $928,040 |
| 2023 | $264,745 | $439,950 | $0 | $704,695 | $704,695 |
| 2022 | $242,683 | $414,000 | $0 | $656,683 | $656,683 |
Deed and Sales History
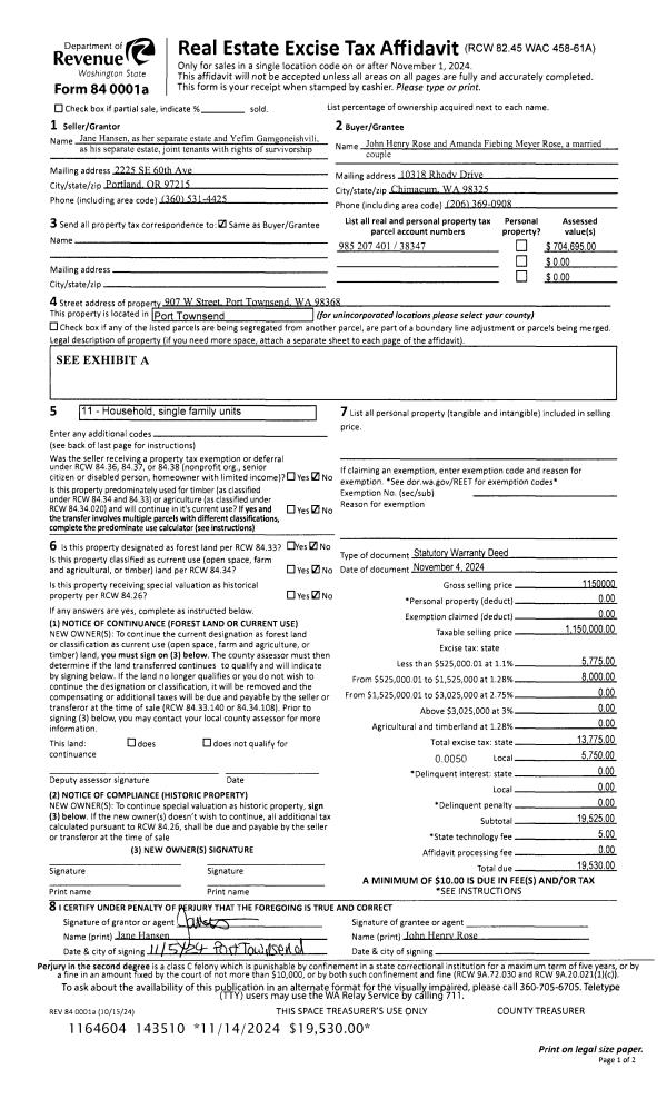
| 1 | 11/04/2024 | SWD | Statutory Warranty Deed | JANE HANSEN | JOHN H & AMANDA F M ROSE | | | $1,150,000.00 | 143510 | |
| 2 | 11/15/2023 | BLA | Boundary Line Adjustment | | JANE HANSEN | | | | 142153 | |
| 3 | 12/29/2014 | QCD | Quit Claim Deed | RICHARD HANSEN | JANE HANSEN | | | | 122465 | |
| 4 | 10/27/2003 | SWD | Statutory Warranty Deed | MITCHELL, JANE H | HANSEN, RICHARD A/JULIE R | 0 | 0 | $250,000.00 | 98684 | 0 |
|   | |
| 5 | 09/26/2003 | BLA | Boundary Line Adjustment | MITCHELL, JANE | HANSEN, JULIE & RICHARD | 0 | 0 | $0.00 | 98503 | 0 |
| 6 | 02/03/1999 | QCD | Quit Claim Deed | MITCHELL, ROBERT S | MITCHELL, JANE H | 0 | 0 | $0.00 | 86263 | 0 |
Payout Agreement
| No payout information available.. |