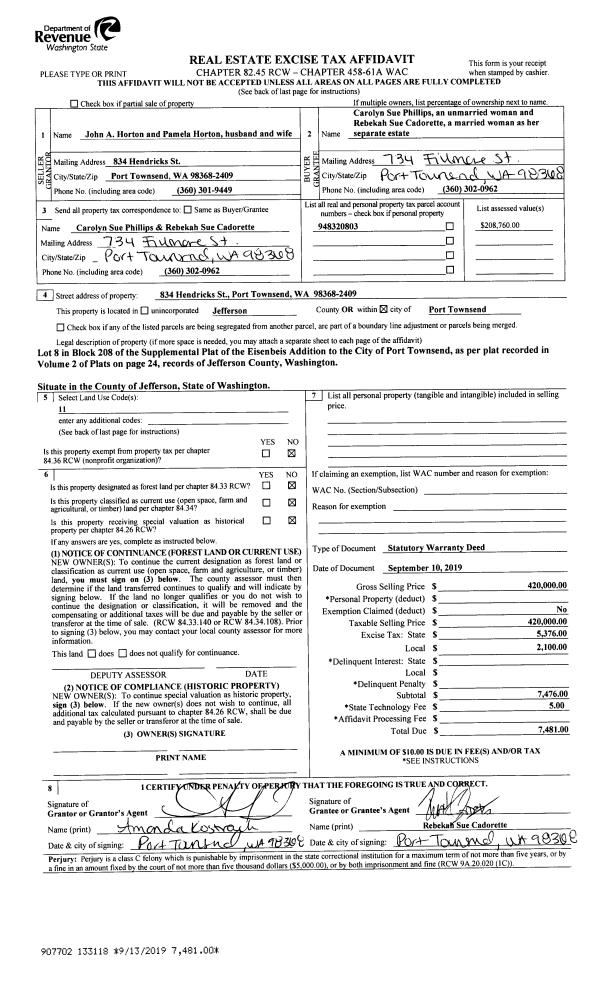
Property
Account |
| Property ID: | 38424 | Abbreviated Legal Description: | TREEHOUSE, A CONDOMINIUM PH I UNIT 1 |
| Parcel # / Geo ID: | 985300101 | Agent Code: | |
| Type: | Real | | |
| Tax Area: | 0110 - C-50F1E1H2 | Land Use Code | 14 |
| Open Space: | N | DFL | N |
| Historic Property: | N | Remodel Property: | N |
| Multi-Family Redevelopment: | N | | |
| Township: | 31N | Section: | 35 |
| Range: | 1W |
Location |
| Address: | 1500 V ST PORT TOWNSEND, WA 98368 | Mapsco: | 143/002 |
| Neighborhood: | CYCLE 6 CONDOMINIUMS - PORT TOWNSEND | Map ID: | |
| Neighborhood CD: | 6900 |
Owner |
| Name: | MICHAEL WIEGERS | Owner ID: | 97148 |
| Mailing Address: | PO BOX 604 PORT TOWNSEND, WA 98368-0604 | % Ownership: | 100.0000000000% |
| | | Exemptions: | |
Pay Tax Due
Select the appropriate checkbox next to the year to be paid. Multiple years may be selected.
*Convenience Fee not included
Taxes and Assessment Details
Property Tax Information as of
03/10/2026
Click on "Statement Details" to expand or collapse a tax statement.
* Please enter a valid date ** Please enter a valid date *
Statement Details |
| 2026 | 27605 | STATE - STATE LEVY (SCHOOL) | $782.28 | $782.27 | $0.00 | $0.00 | $0.00 | $1564.55 |
| 2026 | 27605 | COUNTY - COUNTY LEVIES (CE, DD, VET, MH) | $312.77 | $312.73 | $0.00 | $0.00 | $0.00 | $625.50 |
| 2026 | 27605 | CONSERVE - CONSERVATION FUTURES | $9.38 | $9.38 | $0.00 | $0.00 | $0.00 | $18.76 |
| 2026 | 27605 | CITYPT - CITY OF PT | $443.94 | $443.91 | $0.00 | $0.00 | $0.00 | $887.85 |
| 2026 | 27605 | PORTPT - PORT DISTRICT | $126.32 | $126.30 | $0.00 | $0.00 | $0.00 | $252.62 |
| 2026 | 27605 | PUD1 - PUD #1 | $20.35 | $20.34 | $0.00 | $0.00 | $0.00 | $40.69 |
| 2026 | 27605 | HD2 - HOSP DIST #2 | $18.24 | $18.24 | $0.00 | $0.00 | $0.00 | $36.48 |
| 2026 | 27605 | SD50 - SCHOOL DIST #50 | $619.74 | $619.72 | $0.00 | $0.00 | $0.00 | $1239.46 |
| 2026 | 27605 | FD1 - FIRE DISTRICT #1 | $414.16 | $414.15 | $0.00 | $0.00 | $0.00 | $828.31 |
| 2026 | 27605 | EMS1 - FIRE DIST #1 EMS | $159.24 | $159.23 | $0.00 | $0.00 | $0.00 | $318.47 |
| 2026 | 27605 | JCCD - JC Conservation District | $2.55 | $2.55 | $0.00 | $0.00 | $0.00 | $5.10 |
| 2026 | 27605 | NWA - Noxious Weed Assessment | $2.98 | $2.97 | $0.00 | $0.00 | $0.00 | $5.95 |
| 2026 | 27605 | TOTAL: | $2911.95 | $2911.79 | $0.00 | $0.00 | $0.00 | $5823.74 |
|
| 2026 | 27605 | $2911.95 | $2911.79 | $0.00 | $0.00 | $0.00 | $5823.74 |
Statement Details |
| 2025 | 27677 | STATE - STATE LEVY (SCHOOL) | $749.60 | $749.60 | $0.00 | $0.00 | $1499.20 | $0.00 |
| 2025 | 27677 | COUNTY - COUNTY LEVIES (CE, DD, VET, MH) | $294.78 | $294.78 | $0.00 | $0.00 | $589.56 | $0.00 |
| 2025 | 27677 | CONSERVE - CONSERVATION FUTURES | $8.84 | $8.84 | $0.00 | $0.00 | $17.68 | $0.00 |
| 2025 | 27677 | CITYPT - CITY OF PT | $425.10 | $425.09 | $0.00 | $0.00 | $850.19 | $0.00 |
| 2025 | 27677 | PORTPT - PORT DISTRICT | $120.29 | $120.28 | $0.00 | $0.00 | $240.57 | $0.00 |
| 2025 | 27677 | PUD1 - PUD #1 | $19.29 | $19.29 | $0.00 | $0.00 | $38.58 | $0.00 |
| 2025 | 27677 | HD2 - HOSP DIST #2 | $17.20 | $17.20 | $0.00 | $0.00 | $34.40 | $0.00 |
| 2025 | 27677 | SD50 - SCHOOL DIST #50 | $547.84 | $547.82 | $0.00 | $0.00 | $1095.66 | $0.00 |
| 2025 | 27677 | FD1 - FIRE DISTRICT #1 | $388.99 | $388.98 | $0.00 | $0.00 | $777.97 | $0.00 |
| 2025 | 27677 | EMS1 - FIRE DIST #1 EMS | $149.62 | $149.61 | $0.00 | $0.00 | $299.23 | $0.00 |
| 2025 | 27677 | JCCD - JC Conservation District | $2.55 | $2.55 | $0.00 | $0.00 | $5.10 | $0.00 |
| 2025 | 27677 | NWA - Noxious Weed Assessment | $2.15 | $2.15 | $0.00 | $0.00 | $4.30 | $0.00 |
| 2025 | 27677 | TOTAL: | $2726.25 | $2726.19 | $0.00 | $0.00 | $5452.44 | $0.00 |
|
| 2025 | 27677 | $2726.25 | $2726.19 | $0.00 | $0.00 | $5452.44 | $0.00 |
Statement Details |
| 2024 | 27735 | STATE - STATE LEVY (SCHOOL) | $723.21 | $723.20 | $0.00 | $0.00 | $1446.41 | $0.00 |
| 2024 | 27735 | COUNTY - COUNTY LEVIES (CE, DD, VET, MH) | $309.48 | $309.45 | $0.00 | $0.00 | $618.93 | $0.00 |
| 2024 | 27735 | CONSERVE - CONSERVATION FUTURES | $9.28 | $9.28 | $0.00 | $0.00 | $18.56 | $0.00 |
| 2024 | 27735 | CITYPT - CITY OF PT | $442.19 | $442.18 | $0.00 | $0.00 | $884.37 | $0.00 |
| 2024 | 27735 | PORTPT - PORT DISTRICT | $127.82 | $127.82 | $0.00 | $0.00 | $255.64 | $0.00 |
| 2024 | 27735 | PUD1 - PUD #1 | $20.33 | $20.32 | $0.00 | $0.00 | $40.65 | $0.00 |
| 2024 | 27735 | HD2 - HOSP DIST #2 | $18.06 | $18.05 | $0.00 | $0.00 | $36.11 | $0.00 |
| 2024 | 27735 | SD50 - SCHOOL DIST #50 | $585.12 | $585.10 | $0.00 | $0.00 | $1170.22 | $0.00 |
| 2024 | 27735 | FD1 - FIRE DISTRICT #1 | $409.19 | $409.19 | $0.00 | $0.00 | $818.38 | $0.00 |
| 2024 | 27735 | EMS1 - FIRE DIST #1 EMS | $156.30 | $156.29 | $0.00 | $0.00 | $312.59 | $0.00 |
| 2024 | 27735 | JCCD - JC Conservation District | $2.55 | $2.55 | $0.00 | $0.00 | $5.10 | $0.00 |
| 2024 | 27735 | NWA - Noxious Weed Assessment | $2.15 | $2.15 | $0.00 | $0.00 | $4.30 | $0.00 |
| 2024 | 27735 | TOTAL: | $2805.68 | $2805.58 | $0.00 | $0.00 | $5611.26 | $0.00 |
|
| 2024 | 27735 | $2805.68 | $2805.58 | $0.00 | $0.00 | $5611.26 | $0.00 |
Statement Details |
| 2023 | 27777 | STATE - STATE LEVY (SCHOOL) | $731.85 | $731.83 | $0.00 | $0.00 | $1463.68 | $0.00 |
| 2023 | 27777 | COUNTY - COUNTY LEVIES (CE, DD, VET, MH) | $319.37 | $319.34 | $0.00 | $0.00 | $638.71 | $0.00 |
| 2023 | 27777 | CONSERVE - CONSERVATION FUTURES | $9.58 | $9.57 | $0.00 | $0.00 | $19.15 | $0.00 |
| 2023 | 27777 | CITYPT - CITY OF PT | $451.36 | $451.34 | $0.00 | $0.00 | $902.70 | $0.00 |
| 2023 | 27777 | PORTPT - PORT DISTRICT | $134.53 | $134.52 | $0.00 | $0.00 | $269.05 | $0.00 |
| 2023 | 27777 | PUD1 - PUD #1 | $21.17 | $21.17 | $0.00 | $0.00 | $42.34 | $0.00 |
| 2023 | 27777 | HD2 - HOSP DIST #2 | $18.64 | $18.63 | $0.00 | $0.00 | $37.27 | $0.00 |
| 2023 | 27777 | SD50 - SCHOOL DIST #50 | $580.73 | $580.73 | $0.00 | $0.00 | $1161.46 | $0.00 |
| 2023 | 27777 | FD1 - FIRE DISTRICT #1 | $263.09 | $263.08 | $0.00 | $0.00 | $526.17 | $0.00 |
| 2023 | 27777 | EMS1 - FIRE DIST #1 EMS | $111.91 | $111.91 | $0.00 | $0.00 | $223.82 | $0.00 |
| 2023 | 27777 | JCCD - JC Conservation District | $2.55 | $2.55 | $0.00 | $0.00 | $5.10 | $0.00 |
| 2023 | 27777 | NWA - Noxious Weed Assessment | $2.15 | $2.15 | $0.00 | $0.00 | $4.30 | $0.00 |
| 2023 | 27777 | TOTAL: | $2646.93 | $2646.82 | $0.00 | $0.00 | $5293.75 | $0.00 |
|
| 2023 | 27777 | $2646.93 | $2646.82 | $0.00 | $0.00 | $5293.75 | $0.00 |
Values
| (+) Improvement Homesite Value: | + | $0 | |
| (+) Improvement Non-Homesite Value: | + | $510,508 | |
| (+) Land Homesite Value: | + | $0 | |
| (+) Land Non-Homesite Value: | + | $170,000 | |
| (+) Curr Use (HS): | + | $0 | $0 |
| (+) Curr Use (NHS): | + | $0 | $0 |
| | | -------------------------- | |
| (=) Market Value: | = | $680,508 | |
| (–) Productivity Loss: | – | $0 | |
| | | -------------------------- | |
| (=) Subtotal: | = | $680,508 | |
| (+) Senior Appraised Value: | + | $0 | |
| (+) Non-Senior Appraised Value: | + | $680,508 | |
| | | -------------------------- | |
| (=) Total Appraised Value: | = | $680,508 | |
| (–) Senior Exemption Loss: | – | $0 | |
| (–) Exemption Loss: | – | $0 | |
| | | -------------------------- | |
| (=) Taxable Value: | = | $680,508 | |
Taxing Jurisdiction
| Owner: | MICHAEL WIEGERS | | |
| % Ownership: | 100.0000000000% | | |
| Total Value: | $680,508 | | |
| Tax Area: | 0110 - C-50F1E1H2 |
| CE | COUNTY CURRENT EXPENSE | 0.9034619479 | $680,508 | $680,508 | $614.81 | | |
| CNTYDD | DEVELOPMENTAL DISABILITIES | 0.0052121823 | $680,508 | $680,508 | $3.55 | | |
| CNTYVET | VETERANS RELIEF | 0.0052777810 | $680,508 | $680,508 | $3.59 | | |
| MENTAL | MENTAL HEALTH | 0.0052121823 | $680,508 | $680,508 | $3.55 | | |
| PTGEN | CITY OF PT GENERAL | 0.8551967795 | $680,508 | $680,508 | $581.97 | | |
| PTLLL | CITY OF PT - LIBRARY LID LIFT | 0.4010114288 | $680,508 | $680,508 | $272.89 | | |
| PTMVBOND | CITY OF PT MV BOND | 0.0484717981 | $680,508 | $680,508 | $32.99 | | |
| HOSP2CASH | HOSP DIST #2 GENERAL | 0.0536075306 | $680,508 | $680,508 | $36.48 | | |
| SCH50BOND | SCHOOL DIST #50 BOND 2016 | 0.5377451389 | $680,508 | $680,508 | $365.94 | | |
| SCH50CP | SCHOOL DIST #50 CAP PROJ | 0.4573475088 | $680,508 | $680,508 | $311.23 | | |
| SCH50MO | SCHOOL DIST #50 EP & O | 0.8262822886 | $680,508 | $680,508 | $562.29 | | |
| CONSERVE | CONSERVATION FUTURES | 0.0275621078 | $680,508 | $680,508 | $18.76 | | |
| EMS1 | FIRE DIST #1 EMS | 0.4679948282 | $680,508 | $680,508 | $318.47 | | |
| FD1 | FIRE DIST #1 GENERAL | 1.2171942929 | $680,508 | $680,508 | $828.31 | | |
| PORTPT | PORT OF PT GENERAL | 0.1134941229 | $680,508 | $680,508 | $77.23 | | |
| PORTPTIDD | PORT OF PT IDD 2019 | 0.2577346692 | $680,508 | $680,508 | $175.39 | | |
| PUD1 | PUD #1 GENERAL | 0.0597888892 | $680,508 | $680,508 | $40.69 | | |
| STATE | STATE SCHOOL PART 1 | 1.4940692947 | $680,508 | $680,508 | $1,016.73 | | |
| STATE2 | STATE SCHOOL PART 2 | 0.8050170049 | $680,508 | $680,508 | $547.82 | | |
| | Total Tax Rate: | 8.5416817766 | | | | | |
| | | | | Taxes w/Current Exemptions: | $5,812.69 | | |
| | | | | Taxes w/o Exemptions: | $5,812.69 | | |
Improvement / Building
| Improvement #1: | Residential Bldg | State Code: | 14 | 1635.0 sqft | Value: | $510,508 |
| Bathrooms (#): | 2 (FULL) | Bedrooms (#): | 2 | | Exterior Wall: | SI/ST | Floor Construction: | CONCR | | Foundation: | CONPR | Heating/Cooling: | HTWTR | | Roof Cover: | COMP |   |   |
|
| | Type | Description | Class CD | Sub Class CD | Year Built | Area |
| | MA | Main Area | 5+ | 15SF | 2003 | 915.0 |
| | MA2 | Second Floor Main Area | 5+ | 15SF | 2003 | 720.0 |
| | PATIO | House Patio | 5 | * | 2003 | 120.0 |
| | HWPOR | House Wood Porch | 5 | * | 2003 | 204.0 |
| | GATT | House Attached Garage | 5 | 15SF | 2003 | 242.0 |
Sketch
| No sketches available for this property. |
Property Image
Land
| 1 | 9853-4115S | | 0.0000 | 0.00 | 0.00 | 0.00 | 1.00 | $170,000 | $0 |
Roll Value History
| 2026 | N/A | N/A | N/A | N/A | N/A |
| 2025 | $510,508 | $170,000 | $0 | $680,508 | $680,508 |
| 2024 | $475,179 | $150,000 | $0 | $625,179 | $625,179 |
| 2023 | $475,179 | $150,000 | $0 | $625,179 | $625,179 |
| 2022 | $471,744 | $150,000 | $0 | $621,744 | $621,744 |
Deed and Sales History
| 1 | 04/28/2017 | SWD | Statutory Warranty Deed | LINDA GERRARD | MICHAEL WIEGERS | | | $425,000.00 | 127628 | |
| 2 | 07/30/2007 | SWD | Statutory Warranty Deed | LIZUT, ROGER | GERRARD, LINDA | 0 | 0 | $435,000.00 | 109805 | 0 |
| 3 | 05/08/2003 | SWD | Statutory Warranty Deed | QED BUILDERS | LIZUT, ROGER/SANRA ROKOFF- | 0 | 0 | $49,158.00 | 97245 | 0 |
Payout Agreement
| No payout information available.. |