Property
Account |
| Property ID: | 38437 | Abbreviated Legal Description: | TREEHOUSE, A CONDOMINIUM PH 2 UNIT 13 |
| Parcel # / Geo ID: | 985300213 | Agent Code: | |
| Type: | Real | | |
| Tax Area: | 0110 - C-50F1E1H2 | Land Use Code | 14 |
| Open Space: | N | DFL | N |
| Historic Property: | N | Remodel Property: | N |
| Multi-Family Redevelopment: | N | | |
| Township: | 31N | Section: | 35 |
| Range: | 1W |
Location |
| Address: | 2315 EBONY ST PORT TOWNSEND, WA 98368 | Mapsco: | 143/015 |
| Neighborhood: | CYCLE 6 CONDOMINIUMS - PORT TOWNSEND | Map ID: | |
| Neighborhood CD: | 6900 |
Owner |
| Name: | JOSHUA D LANGLEY | Owner ID: | 105281 |
| Mailing Address: | 2315 EBONY ST PORT TOWNSEND, WA 98368-2718 | % Ownership: | 100.0000000000% |
| | | Exemptions: | |
Pay Tax Due
Select the appropriate checkbox next to the year to be paid. Multiple years may be selected.
*Convenience Fee not included
Taxes and Assessment Details
Property Tax Information as of
03/11/2026
Click on "Statement Details" to expand or collapse a tax statement.
* Please enter a valid date ** Please enter a valid date *
Statement Details |
| 2026 | 27618 | STATE - STATE LEVY (SCHOOL) | $734.46 | $734.46 | $0.00 | $0.00 | $0.00 | $1468.92 |
| 2026 | 27618 | COUNTY - COUNTY LEVIES (CE, DD, VET, MH) | $293.65 | $293.62 | $0.00 | $0.00 | $0.00 | $587.27 |
| 2026 | 27618 | CONSERVE - CONSERVATION FUTURES | $8.81 | $8.80 | $0.00 | $0.00 | $0.00 | $17.61 |
| 2026 | 27618 | CITYPT - CITY OF PT | $416.80 | $416.78 | $0.00 | $0.00 | $0.00 | $833.58 |
| 2026 | 27618 | PORTPT - PORT DISTRICT | $118.60 | $118.58 | $0.00 | $0.00 | $0.00 | $237.18 |
| 2026 | 27618 | PUD1 - PUD #1 | $19.10 | $19.10 | $0.00 | $0.00 | $0.00 | $38.20 |
| 2026 | 27618 | HD2 - HOSP DIST #2 | $17.13 | $17.12 | $0.00 | $0.00 | $0.00 | $34.25 |
| 2026 | 27618 | SD50 - SCHOOL DIST #50 | $581.86 | $581.84 | $0.00 | $0.00 | $0.00 | $1163.70 |
| 2026 | 27618 | FD1 - FIRE DISTRICT #1 | $388.84 | $388.84 | $0.00 | $0.00 | $0.00 | $777.68 |
| 2026 | 27618 | EMS1 - FIRE DIST #1 EMS | $149.51 | $149.50 | $0.00 | $0.00 | $0.00 | $299.01 |
| 2026 | 27618 | JCCD - JC Conservation District | $2.55 | $2.55 | $0.00 | $0.00 | $0.00 | $5.10 |
| 2026 | 27618 | NWA - Noxious Weed Assessment | $2.98 | $2.97 | $0.00 | $0.00 | $0.00 | $5.95 |
| 2026 | 27618 | TOTAL: | $2734.29 | $2734.16 | $0.00 | $0.00 | $0.00 | $5468.45 |
|
| 2026 | 27618 | $2734.29 | $2734.16 | $0.00 | $0.00 | $0.00 | $5468.45 |
Statement Details |
| 2025 | 27690 | STATE - STATE LEVY (SCHOOL) | $697.47 | $697.47 | $0.00 | $0.00 | $1394.94 | $0.00 |
| 2025 | 27690 | COUNTY - COUNTY LEVIES (CE, DD, VET, MH) | $274.27 | $274.27 | $0.00 | $0.00 | $548.54 | $0.00 |
| 2025 | 27690 | CONSERVE - CONSERVATION FUTURES | $8.23 | $8.22 | $0.00 | $0.00 | $16.45 | $0.00 |
| 2025 | 27690 | CITYPT - CITY OF PT | $395.54 | $395.53 | $0.00 | $0.00 | $791.07 | $0.00 |
| 2025 | 27690 | PORTPT - PORT DISTRICT | $111.93 | $111.91 | $0.00 | $0.00 | $223.84 | $0.00 |
| 2025 | 27690 | PUD1 - PUD #1 | $17.95 | $17.94 | $0.00 | $0.00 | $35.89 | $0.00 |
| 2025 | 27690 | HD2 - HOSP DIST #2 | $16.00 | $16.00 | $0.00 | $0.00 | $32.00 | $0.00 |
| 2025 | 27690 | SD50 - SCHOOL DIST #50 | $509.74 | $509.74 | $0.00 | $0.00 | $1019.48 | $0.00 |
| 2025 | 27690 | FD1 - FIRE DISTRICT #1 | $361.94 | $361.93 | $0.00 | $0.00 | $723.87 | $0.00 |
| 2025 | 27690 | EMS1 - FIRE DIST #1 EMS | $139.21 | $139.21 | $0.00 | $0.00 | $278.42 | $0.00 |
| 2025 | 27690 | JCCD - JC Conservation District | $2.55 | $2.55 | $0.00 | $0.00 | $5.10 | $0.00 |
| 2025 | 27690 | NWA - Noxious Weed Assessment | $2.15 | $2.15 | $0.00 | $0.00 | $4.30 | $0.00 |
| 2025 | 27690 | TOTAL: | $2536.98 | $2536.92 | $0.00 | $0.00 | $5073.90 | $0.00 |
|
| 2025 | 27690 | $2536.98 | $2536.92 | $0.00 | $0.00 | $5073.90 | $0.00 |
Statement Details |
| 2024 | 27748 | STATE - STATE LEVY (SCHOOL) | $672.91 | $672.91 | $0.00 | $0.00 | $1345.82 | $0.00 |
| 2024 | 27748 | COUNTY - COUNTY LEVIES (CE, DD, VET, MH) | $287.96 | $287.93 | $0.00 | $0.00 | $575.89 | $0.00 |
| 2024 | 27748 | CONSERVE - CONSERVATION FUTURES | $8.64 | $8.63 | $0.00 | $0.00 | $17.27 | $0.00 |
| 2024 | 27748 | CITYPT - CITY OF PT | $411.44 | $411.42 | $0.00 | $0.00 | $822.86 | $0.00 |
| 2024 | 27748 | PORTPT - PORT DISTRICT | $118.94 | $118.93 | $0.00 | $0.00 | $237.87 | $0.00 |
| 2024 | 27748 | PUD1 - PUD #1 | $18.92 | $18.91 | $0.00 | $0.00 | $37.83 | $0.00 |
| 2024 | 27748 | HD2 - HOSP DIST #2 | $16.80 | $16.80 | $0.00 | $0.00 | $33.60 | $0.00 |
| 2024 | 27748 | SD50 - SCHOOL DIST #50 | $544.42 | $544.41 | $0.00 | $0.00 | $1088.83 | $0.00 |
| 2024 | 27748 | FD1 - FIRE DISTRICT #1 | $380.73 | $380.73 | $0.00 | $0.00 | $761.46 | $0.00 |
| 2024 | 27748 | EMS1 - FIRE DIST #1 EMS | $145.43 | $145.42 | $0.00 | $0.00 | $290.85 | $0.00 |
| 2024 | 27748 | JCCD - JC Conservation District | $2.55 | $2.55 | $0.00 | $0.00 | $5.10 | $0.00 |
| 2024 | 27748 | NWA - Noxious Weed Assessment | $2.15 | $2.15 | $0.00 | $0.00 | $4.30 | $0.00 |
| 2024 | 27748 | TOTAL: | $2610.89 | $2610.79 | $0.00 | $0.00 | $5221.68 | $0.00 |
|
| 2024 | 27748 | $2610.89 | $2610.79 | $0.00 | $0.00 | $5221.68 | $0.00 |
Statement Details |
| 2023 | 27790 | STATE - STATE LEVY (SCHOOL) | $678.46 | $678.45 | $0.00 | $0.00 | $1356.91 | $0.00 |
| 2023 | 27790 | COUNTY - COUNTY LEVIES (CE, DD, VET, MH) | $296.06 | $296.05 | $0.00 | $0.00 | $592.11 | $0.00 |
| 2023 | 27790 | CONSERVE - CONSERVATION FUTURES | $8.88 | $8.88 | $0.00 | $0.00 | $17.76 | $0.00 |
| 2023 | 27790 | CITYPT - CITY OF PT | $418.44 | $418.41 | $0.00 | $0.00 | $836.85 | $0.00 |
| 2023 | 27790 | PORTPT - PORT DISTRICT | $124.72 | $124.71 | $0.00 | $0.00 | $249.43 | $0.00 |
| 2023 | 27790 | PUD1 - PUD #1 | $19.63 | $19.62 | $0.00 | $0.00 | $39.25 | $0.00 |
| 2023 | 27790 | HD2 - HOSP DIST #2 | $17.28 | $17.27 | $0.00 | $0.00 | $34.55 | $0.00 |
| 2023 | 27790 | SD50 - SCHOOL DIST #50 | $538.37 | $538.36 | $0.00 | $0.00 | $1076.73 | $0.00 |
| 2023 | 27790 | FD1 - FIRE DISTRICT #1 | $243.89 | $243.89 | $0.00 | $0.00 | $487.78 | $0.00 |
| 2023 | 27790 | EMS1 - FIRE DIST #1 EMS | $103.75 | $103.74 | $0.00 | $0.00 | $207.49 | $0.00 |
| 2023 | 27790 | JCCD - JC Conservation District | $2.55 | $2.55 | $0.00 | $0.00 | $5.10 | $0.00 |
| 2023 | 27790 | NWA - Noxious Weed Assessment | $2.15 | $2.15 | $0.00 | $0.00 | $4.30 | $0.00 |
| 2023 | 27790 | TOTAL: | $2454.18 | $2454.08 | $0.00 | $0.00 | $4908.26 | $0.00 |
|
| 2023 | 27790 | $2454.18 | $2454.08 | $0.00 | $0.00 | $4908.26 | $0.00 |
Values
| (+) Improvement Homesite Value: | + | $0 | |
| (+) Improvement Non-Homesite Value: | + | $468,915 | |
| (+) Land Homesite Value: | + | $0 | |
| (+) Land Non-Homesite Value: | + | $170,000 | |
| (+) Curr Use (HS): | + | $0 | $0 |
| (+) Curr Use (NHS): | + | $0 | $0 |
| | | -------------------------- | |
| (=) Market Value: | = | $638,915 | |
| (–) Productivity Loss: | – | $0 | |
| | | -------------------------- | |
| (=) Subtotal: | = | $638,915 | |
| (+) Senior Appraised Value: | + | $0 | |
| (+) Non-Senior Appraised Value: | + | $638,915 | |
| | | -------------------------- | |
| (=) Total Appraised Value: | = | $638,915 | |
| (–) Senior Exemption Loss: | – | $0 | |
| (–) Exemption Loss: | – | $0 | |
| | | -------------------------- | |
| (=) Taxable Value: | = | $638,915 | |
Taxing Jurisdiction
| Owner: | JOSHUA D LANGLEY | | |
| % Ownership: | 100.0000000000% | | |
| Total Value: | $638,915 | | |
| Tax Area: | 0110 - C-50F1E1H2 |
| CE | COUNTY CURRENT EXPENSE | 0.9034619479 | $638,915 | $638,915 | $577.24 | | |
| CNTYDD | DEVELOPMENTAL DISABILITIES | 0.0052121823 | $638,915 | $638,915 | $3.33 | | |
| CNTYVET | VETERANS RELIEF | 0.0052777810 | $638,915 | $638,915 | $3.37 | | |
| MENTAL | MENTAL HEALTH | 0.0052121823 | $638,915 | $638,915 | $3.33 | | |
| PTGEN | CITY OF PT GENERAL | 0.8551967795 | $638,915 | $638,915 | $546.40 | | |
| PTLLL | CITY OF PT - LIBRARY LID LIFT | 0.4010114288 | $638,915 | $638,915 | $256.21 | | |
| PTMVBOND | CITY OF PT MV BOND | 0.0484717981 | $638,915 | $638,915 | $30.97 | | |
| HOSP2CASH | HOSP DIST #2 GENERAL | 0.0536075306 | $638,915 | $638,915 | $34.25 | | |
| SCH50BOND | SCHOOL DIST #50 BOND 2016 | 0.5377451389 | $638,915 | $638,915 | $343.57 | | |
| SCH50CP | SCHOOL DIST #50 CAP PROJ | 0.4573475088 | $638,915 | $638,915 | $292.21 | | |
| SCH50MO | SCHOOL DIST #50 EP & O | 0.8262822886 | $638,915 | $638,915 | $527.92 | | |
| CONSERVE | CONSERVATION FUTURES | 0.0275621078 | $638,915 | $638,915 | $17.61 | | |
| EMS1 | FIRE DIST #1 EMS | 0.4679948282 | $638,915 | $638,915 | $299.01 | | |
| FD1 | FIRE DIST #1 GENERAL | 1.2171942929 | $638,915 | $638,915 | $777.68 | | |
| PORTPT | PORT OF PT GENERAL | 0.1134941229 | $638,915 | $638,915 | $72.51 | | |
| PORTPTIDD | PORT OF PT IDD 2019 | 0.2577346692 | $638,915 | $638,915 | $164.67 | | |
| PUD1 | PUD #1 GENERAL | 0.0597888892 | $638,915 | $638,915 | $38.20 | | |
| STATE | STATE SCHOOL PART 1 | 1.4940692947 | $638,915 | $638,915 | $954.58 | | |
| STATE2 | STATE SCHOOL PART 2 | 0.8050170049 | $638,915 | $638,915 | $514.34 | | |
| | Total Tax Rate: | 8.5416817766 | | | | | |
| | | | | Taxes w/Current Exemptions: | $5,457.40 | | |
| | | | | Taxes w/o Exemptions: | $5,457.40 | | |
Improvement / Building
| Improvement #1: | Residential Bldg | State Code: | 14 | 1197.0 sqft | Value: | $468,915 |
| Bathrooms (#): | 2 (FULL) | Bedrooms (#): | 2 | | Exterior Wall: | SI/ST | Fireplace: | PROPS-GOOD | | Floor Construction: | FRAME | Foundation: | CONPR | | Heating/Cooling: | ELBB | Roof Cover: | COMP |
|
| | Type | Description | Class CD | Sub Class CD | Year Built | Area |
| | MA | Main Area | 5+ | 15SF | 2004 | 693.0 |
| | MA2 | Second Floor Main Area | 5+ | 15SF | 2004 | 504.0 |
| | HWPOR | House Wood Porch | 5 | * | 2004 | 96.0 |
| | HDECK | House Deck | 5 | * | 2004 | 144.0 |
| | GBSMT | Basement Garage | 4 | 15SF | 2004 | 288.0 |
| | BSMTF | House basement finished | 5 | * | 2004 | 288.0 |
Sketch
| No sketches available for this property. |
Property Image
Land
| 1 | 9853-4115S | | 0.0000 | 0.00 | 0.00 | 0.00 | 1.00 | $170,000 | $0 |
Roll Value History
| 2026 | N/A | N/A | N/A | N/A | N/A |
| 2025 | $468,915 | $170,000 | $0 | $638,915 | $638,915 |
| 2024 | $431,702 | $150,000 | $0 | $581,702 | $581,702 |
| 2023 | $431,702 | $150,000 | $0 | $581,702 | $581,702 |
| 2022 | $426,388 | $150,000 | $0 | $576,388 | $576,388 |
Deed and Sales History
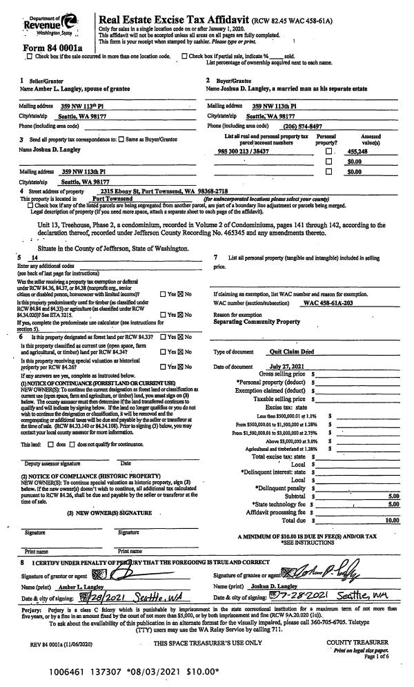
| 1 | 07/27/2021 | QCD | Quit Claim Deed | AMBER L LANGLEY | JOSHUA D LANGLEY | | | | 137307 | |
| 2 | 07/27/2021 | SWD | Statutory Warranty Deed | AARON R WILSON & JENNA d ANNA | JOSHUA D LANGLEY | | | $580,000.00 | 137306 | |
| 3 | 08/22/2019 | SWD | Statutory Warranty Deed | PAUL A & KRISTEN L LEATHERS | AARON R WILSON & JENNA d ANNA | | | $449,000.00 | 133017 | |
| 4 | 09/18/2013 | SWD | Statutory Warranty Deed | ROBERT LEONARD | PAUL A & KRISTEN L LEATHERS | | | $325,000.00 | 120056 | |
| 5 | 05/14/2004 | SWD | Statutory Warranty Deed | MADRONA VILLAGE/QED BUILD | LEONARD, ROBERT/KATHY | 0 | 0 | $53,000.00 | 100293 | 0 |
Payout Agreement
| No payout information available.. |