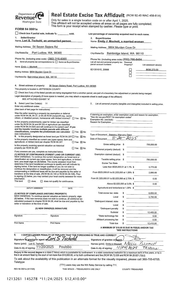
Property
Account |
| Property ID: | 38444 | Abbreviated Legal Description: | TREEHOUSE, A CONDOMINIUM PH 2 UNIT 20-REVISED V2/P190 |
| Parcel # / Geo ID: | 985300220 | Agent Code: | |
| Type: | Real | | |
| Tax Area: | 0110 - C-50F1E1H2 | Land Use Code | 14 |
| Open Space: | N | DFL | N |
| Historic Property: | N | Remodel Property: | N |
| Multi-Family Redevelopment: | N | | |
| Township: | 31N | Section: | 35 |
| Range: | 1W |
Location |
| Address: | 2314 EBONY ST PORT TOWNSEND, WA 98368 | Mapsco: | 143/022 |
| Neighborhood: | CYCLE 6 CONDOMINIUMS - PORT TOWNSEND | Map ID: | |
| Neighborhood CD: | 6900 |
Owner |
| Name: | NICOLE REINE YELTON | Owner ID: | 113635 |
| Mailing Address: | 2314 EBONY ST PORT TOWNSEND, WA 98368 | % Ownership: | 100.0000000000% |
| | | Exemptions: | |
Pay Tax Due
Select the appropriate checkbox next to the year to be paid. Multiple years may be selected.
*Convenience Fee not included
Taxes and Assessment Details
Property Tax Information as of
03/11/2026
Click on "Statement Details" to expand or collapse a tax statement.
* Please enter a valid date ** Please enter a valid date *
Statement Details |
| 2026 | 27625 | STATE - STATE LEVY (SCHOOL) | $662.63 | $662.62 | $0.00 | $0.00 | $0.00 | $1325.25 |
| 2026 | 27625 | COUNTY - COUNTY LEVIES (CE, DD, VET, MH) | $264.91 | $264.91 | $0.00 | $0.00 | $0.00 | $529.82 |
| 2026 | 27625 | CONSERVE - CONSERVATION FUTURES | $7.95 | $7.94 | $0.00 | $0.00 | $0.00 | $15.89 |
| 2026 | 27625 | CITYPT - CITY OF PT | $376.03 | $376.02 | $0.00 | $0.00 | $0.00 | $752.05 |
| 2026 | 27625 | PORTPT - PORT DISTRICT | $106.99 | $106.99 | $0.00 | $0.00 | $0.00 | $213.98 |
| 2026 | 27625 | PUD1 - PUD #1 | $17.23 | $17.23 | $0.00 | $0.00 | $0.00 | $34.46 |
| 2026 | 27625 | HD2 - HOSP DIST #2 | $15.45 | $15.45 | $0.00 | $0.00 | $0.00 | $30.90 |
| 2026 | 27625 | SD50 - SCHOOL DIST #50 | $524.96 | $524.93 | $0.00 | $0.00 | $0.00 | $1049.89 |
| 2026 | 27625 | FD1 - FIRE DISTRICT #1 | $350.81 | $350.81 | $0.00 | $0.00 | $0.00 | $701.62 |
| 2026 | 27625 | EMS1 - FIRE DIST #1 EMS | $134.88 | $134.88 | $0.00 | $0.00 | $0.00 | $269.76 |
| 2026 | 27625 | JCCD - JC Conservation District | $2.55 | $2.55 | $0.00 | $0.00 | $0.00 | $5.10 |
| 2026 | 27625 | NWA - Noxious Weed Assessment | $2.98 | $2.97 | $0.00 | $0.00 | $0.00 | $5.95 |
| 2026 | 27625 | TOTAL: | $2467.37 | $2467.30 | $0.00 | $0.00 | $0.00 | $4934.67 |
|
| 2026 | 27625 | $2467.37 | $2467.30 | $0.00 | $0.00 | $0.00 | $4934.67 |
Statement Details |
| 2025 | 27697 | STATE - STATE LEVY (SCHOOL) | $904.28 | $0.00 | $0.00 | $0.00 | $904.28 | $0.00 |
| 2025 | 27697 | COUNTY - COUNTY LEVIES (CE, DD, VET, MH) | $495.83 | $0.00 | $0.00 | $0.00 | $495.83 | $0.00 |
| 2025 | 27697 | CONSERVE - CONSERVATION FUTURES | $14.87 | $0.00 | $0.00 | $0.00 | $14.87 | $0.00 |
| 2025 | 27697 | CITYPT - CITY OF PT | $693.32 | $0.00 | $0.00 | $0.00 | $693.32 | $0.00 |
| 2025 | 27697 | PORTPT - PORT DISTRICT | $202.32 | $0.00 | $0.00 | $0.00 | $202.32 | $0.00 |
| 2025 | 27697 | PUD1 - PUD #1 | $32.44 | $0.00 | $0.00 | $0.00 | $32.44 | $0.00 |
| 2025 | 27697 | HD2 - HOSP DIST #2 | $28.93 | $0.00 | $0.00 | $0.00 | $28.93 | $0.00 |
| 2025 | 27697 | SD50 - SCHOOL DIST #50 | $176.72 | $0.00 | $0.00 | $0.00 | $176.72 | $0.00 |
| 2025 | 27697 | FD1 - FIRE DISTRICT #1 | $654.29 | $0.00 | $0.00 | $0.00 | $654.29 | $0.00 |
| 2025 | 27697 | EMS1 - FIRE DIST #1 EMS | $251.66 | $0.00 | $0.00 | $0.00 | $251.66 | $0.00 |
| 2025 | 27697 | JCCD - JC Conservation District | $5.10 | $0.00 | $0.00 | $0.00 | $5.10 | $0.00 |
| 2025 | 27697 | NWA - Noxious Weed Assessment | $4.30 | $0.00 | $0.00 | $0.00 | $4.30 | $0.00 |
| 2025 | 27697 | TOTAL: | $3464.06 | $0.00 | $0.00 | $0.00 | $3464.06 | $0.00 |
|
| 2025 | 27697 | $3464.06 | $0.00 | $0.00 | $0.00 | $3464.06 | $0.00 |
Statement Details |
| 2024 | 27755 | STATE - STATE LEVY (SCHOOL) | $608.23 | $608.22 | $0.00 | $0.00 | $1216.45 | $0.00 |
| 2024 | 27755 | COUNTY - COUNTY LEVIES (CE, DD, VET, MH) | $260.27 | $260.27 | $0.00 | $0.00 | $520.54 | $0.00 |
| 2024 | 27755 | CONSERVE - CONSERVATION FUTURES | $7.81 | $7.80 | $0.00 | $0.00 | $15.61 | $0.00 |
| 2024 | 27755 | CITYPT - CITY OF PT | $371.89 | $371.88 | $0.00 | $0.00 | $743.77 | $0.00 |
| 2024 | 27755 | PORTPT - PORT DISTRICT | $107.51 | $107.49 | $0.00 | $0.00 | $215.00 | $0.00 |
| 2024 | 27755 | PUD1 - PUD #1 | $17.10 | $17.09 | $0.00 | $0.00 | $34.19 | $0.00 |
| 2024 | 27755 | HD2 - HOSP DIST #2 | $15.19 | $15.18 | $0.00 | $0.00 | $30.37 | $0.00 |
| 2024 | 27755 | SD50 - SCHOOL DIST #50 | $492.09 | $492.07 | $0.00 | $0.00 | $984.16 | $0.00 |
| 2024 | 27755 | FD1 - FIRE DISTRICT #1 | $344.14 | $344.13 | $0.00 | $0.00 | $688.27 | $0.00 |
| 2024 | 27755 | EMS1 - FIRE DIST #1 EMS | $131.45 | $131.44 | $0.00 | $0.00 | $262.89 | $0.00 |
| 2024 | 27755 | JCCD - JC Conservation District | $2.55 | $2.55 | $0.00 | $0.00 | $5.10 | $0.00 |
| 2024 | 27755 | NWA - Noxious Weed Assessment | $2.15 | $2.15 | $0.00 | $0.00 | $4.30 | $0.00 |
| 2024 | 27755 | TOTAL: | $2360.38 | $2360.27 | $0.00 | $0.00 | $4720.65 | $0.00 |
|
| 2024 | 27755 | $2360.38 | $2360.27 | $0.00 | $0.00 | $4720.65 | $0.00 |
Statement Details |
| 2023 | 27797 | STATE - STATE LEVY (SCHOOL) | $606.30 | $606.29 | $0.00 | $0.00 | $1212.59 | $0.00 |
| 2023 | 27797 | COUNTY - COUNTY LEVIES (CE, DD, VET, MH) | $264.56 | $264.56 | $0.00 | $0.00 | $529.12 | $0.00 |
| 2023 | 27797 | CONSERVE - CONSERVATION FUTURES | $7.94 | $7.93 | $0.00 | $0.00 | $15.87 | $0.00 |
| 2023 | 27797 | CITYPT - CITY OF PT | $373.93 | $373.91 | $0.00 | $0.00 | $747.84 | $0.00 |
| 2023 | 27797 | PORTPT - PORT DISTRICT | $111.46 | $111.44 | $0.00 | $0.00 | $222.90 | $0.00 |
| 2023 | 27797 | PUD1 - PUD #1 | $17.54 | $17.53 | $0.00 | $0.00 | $35.07 | $0.00 |
| 2023 | 27797 | HD2 - HOSP DIST #2 | $15.44 | $15.44 | $0.00 | $0.00 | $30.88 | $0.00 |
| 2023 | 27797 | SD50 - SCHOOL DIST #50 | $481.11 | $481.10 | $0.00 | $0.00 | $962.21 | $0.00 |
| 2023 | 27797 | FD1 - FIRE DISTRICT #1 | $217.95 | $217.95 | $0.00 | $0.00 | $435.90 | $0.00 |
| 2023 | 27797 | EMS1 - FIRE DIST #1 EMS | $92.71 | $92.71 | $0.00 | $0.00 | $185.42 | $0.00 |
| 2023 | 27797 | JCCD - JC Conservation District | $2.55 | $2.55 | $0.00 | $0.00 | $5.10 | $0.00 |
| 2023 | 27797 | NWA - Noxious Weed Assessment | $2.15 | $2.15 | $0.00 | $0.00 | $4.30 | $0.00 |
| 2023 | 27797 | TOTAL: | $2193.64 | $2193.56 | $0.00 | $0.00 | $4387.20 | $0.00 |
|
| 2023 | 27797 | $2193.64 | $2193.56 | $0.00 | $0.00 | $4387.20 | $0.00 |
Values
| (+) Improvement Homesite Value: | + | $406,426 | |
| (+) Improvement Non-Homesite Value: | + | $0 | |
| (+) Land Homesite Value: | + | $170,000 | |
| (+) Land Non-Homesite Value: | + | $0 | |
| (+) Curr Use (HS): | + | $0 | $0 |
| (+) Curr Use (NHS): | + | $0 | $0 |
| | | -------------------------- | |
| (=) Market Value: | = | $576,426 | |
| (–) Productivity Loss: | – | $0 | |
| | | -------------------------- | |
| (=) Subtotal: | = | $576,426 | |
| (+) Senior Appraised Value: | + | $0 | |
| (+) Non-Senior Appraised Value: | + | $576,426 | |
| | | -------------------------- | |
| (=) Total Appraised Value: | = | $576,426 | |
| (–) Senior Exemption Loss: | – | $0 | |
| (–) Exemption Loss: | – | $0 | |
| | | -------------------------- | |
| (=) Taxable Value: | = | $576,426 | |
Taxing Jurisdiction
| Owner: | NICOLE REINE YELTON | | |
| % Ownership: | 100.0000000000% | | |
| Total Value: | $576,426 | | |
| Tax Area: | 0110 - C-50F1E1H2 |
| CE | COUNTY CURRENT EXPENSE | 0.9034619479 | $576,426 | $576,426 | $520.78 | | |
| CNTYDD | DEVELOPMENTAL DISABILITIES | 0.0052121823 | $576,426 | $576,426 | $3.00 | | |
| CNTYVET | VETERANS RELIEF | 0.0052777810 | $576,426 | $576,426 | $3.04 | | |
| MENTAL | MENTAL HEALTH | 0.0052121823 | $576,426 | $576,426 | $3.00 | | |
| PTGEN | CITY OF PT GENERAL | 0.8551967795 | $576,426 | $576,426 | $492.96 | | |
| PTLLL | CITY OF PT - LIBRARY LID LIFT | 0.4010114288 | $576,426 | $576,426 | $231.15 | | |
| PTMVBOND | CITY OF PT MV BOND | 0.0484717981 | $576,426 | $576,426 | $27.94 | | |
| HOSP2CASH | HOSP DIST #2 GENERAL | 0.0536075306 | $576,426 | $576,426 | $30.90 | | |
| SCH50BOND | SCHOOL DIST #50 BOND 2016 | 0.5377451389 | $576,426 | $576,426 | $309.97 | | |
| SCH50CP | SCHOOL DIST #50 CAP PROJ | 0.4573475088 | $576,426 | $576,426 | $263.63 | | |
| SCH50MO | SCHOOL DIST #50 EP & O | 0.8262822886 | $576,426 | $576,426 | $476.29 | | |
| CONSERVE | CONSERVATION FUTURES | 0.0275621078 | $576,426 | $576,426 | $15.89 | | |
| EMS1 | FIRE DIST #1 EMS | 0.4679948282 | $576,426 | $576,426 | $269.76 | | |
| FD1 | FIRE DIST #1 GENERAL | 1.2171942929 | $576,426 | $576,426 | $701.62 | | |
| PORTPT | PORT OF PT GENERAL | 0.1134941229 | $576,426 | $576,426 | $65.42 | | |
| PORTPTIDD | PORT OF PT IDD 2019 | 0.2577346692 | $576,426 | $576,426 | $148.56 | | |
| PUD1 | PUD #1 GENERAL | 0.0597888892 | $576,426 | $576,426 | $34.46 | | |
| STATE | STATE SCHOOL PART 1 | 1.4940692947 | $576,426 | $576,426 | $861.22 | | |
| STATE2 | STATE SCHOOL PART 2 | 0.8050170049 | $576,426 | $576,426 | $464.03 | | |
| | Total Tax Rate: | 8.5416817766 | | | | | |
| | | | | Taxes w/Current Exemptions: | $4,923.62 | | |
| | | | | Taxes w/o Exemptions: | $4,923.62 | | |
Improvement / Building
| Improvement #1: | Residential Bldg | State Code: | 14 | 1216.0 sqft | Value: | $406,426 |
| Bathrooms (#): | 1 (FULL) | Bathrooms (#): | 1 (HALF) | | Bedrooms (#): | 2 | Exterior Wall: | SI/ST | | Fireplace: | PROPS-GOOD | Floor Construction: | FRAME | | Foundation: | CONPR | Heating/Cooling: | ELBB | | Roof Cover: | COMP |   |   |
|
| | Type | Description | Class CD | Sub Class CD | Year Built | Area |
| | MA | Main Area | 5+ | 15SF | 2004 | 640.0 |
| | MA2 | Second Floor Main Area | 5+ | 15SF | 2004 | 576.0 |
| | PATIO | House Patio | 5 | * | 2004 | 250.0 |
| | HWPOR | House Wood Porch | 5 | * | 2004 | 36.0 |
| | HCPOR | House Concrete Porch | 5 | * | 2004 | 56.0 |
| | GATT | House Attached Garage | 4 | 15SF | 2004 | 220.0 |
Sketch
| No sketches available for this property. |
Property Image
Land
| 1 | 9853-4115S | | 0.0000 | 0.00 | 0.00 | 0.00 | 1.00 | $170,000 | $0 |
Roll Value History
| 2026 | N/A | N/A | N/A | N/A | N/A |
| 2025 | $406,426 | $170,000 | $0 | $576,426 | $576,426 |
| 2024 | $375,784 | $150,000 | $0 | $525,784 | $525,784 |
| 2023 | $375,784 | $150,000 | $0 | $525,784 | $525,784 |
| 2022 | $365,082 | $150,000 | $0 | $515,082 | $515,082 |
Deed and Sales History
| 1 | 10/15/2025 | SWD | Statutory Warranty Deed | MARGARET J CROSBY | NICOLE REINE YELTON | | | $600,000.00 | 145129 | |
| 2 | 02/17/2023 | SWD | Statutory Warranty Deed | CLIFF MARCUS | MARGARET J CROSBY | | | $542,500.00 | 140539 | |
| 3 | 09/02/2014 | SWD | Statutory Warranty Deed | IRENE PETERS | CLIFF MARCUS | | | $215,000.00 | 121844 | |
| 4 | 12/28/2011 | SWD | Statutory Warranty Deed | PETERS, IRIS E | PETERS, IRENE L, PETERS, IRIS | 0 | 0 | $0.00 | 117201 | 0 |
| 5 | 12/28/2011 | WD | Warranty Deed | PETERS, IRIS | PETERS, IRENE/IRIS | 0 | 0 | $0.00 | 118231 | 0 |
| 6 | 05/26/2005 | SWD | Statutory Warranty Deed | BALLARD, CHARLOTTE | PETERS, IRIS | | | $283,200.00 | 103702 | 0 |
| 7 | 10/11/2004 | SWD | Statutory Warranty Deed | QED/MADRONA VILLAGE LLC | BALLARD REV TRUST, CHARLOTTE | 0 | 0 | $170,000.00 | 101727 | 0 |
Payout Agreement
| No payout information available.. |