Property
Account |
| Property ID: | 38454 | Abbreviated Legal Description: | TREEHOUSE, A CONDOMINIUM PH 3 UNIT 28 |
| Parcel # / Geo ID: | 985300328 | Agent Code: | |
| Type: | Real | | |
| Tax Area: | 0110 - C-50F1E1H2 | Land Use Code | 14 |
| Open Space: | N | DFL | N |
| Historic Property: | N | Remodel Property: | N |
| Multi-Family Redevelopment: | N | | |
| Township: | 31N | Section: | 35 |
| Range: | 1W |
Location |
| Address: | 2315 MADRONA ST PORT TOWNSEND, WA 98368 | Mapsco: | 143/040 |
| Neighborhood: | CYCLE 6 CONDOMINIUMS - PORT TOWNSEND | Map ID: | |
| Neighborhood CD: | 6900 |
Owner |
| Name: | FAYETTE KRAUSE | Owner ID: | 98920 |
| Mailing Address: | JOANNE HERON TRUSTEE JOANNE HERON REV TRUST 2315 MADRONA ST PORT TOWNSEND, WA 98368-2730 | % Ownership: | 100.0000000000% |
| | | Exemptions: | |
Pay Tax Due
Select the appropriate checkbox next to the year to be paid. Multiple years may be selected.
*Convenience Fee not included
Taxes and Assessment Details
Property Tax Information as of
03/10/2026
Click on "Statement Details" to expand or collapse a tax statement.
* Please enter a valid date ** Please enter a valid date *
Statement Details |
| 2026 | 27634 | STATE - STATE LEVY (SCHOOL) | $613.86 | $613.85 | $0.00 | $0.00 | $0.00 | $1227.71 |
| 2026 | 27634 | COUNTY - COUNTY LEVIES (CE, DD, VET, MH) | $245.42 | $245.41 | $0.00 | $0.00 | $0.00 | $490.83 |
| 2026 | 27634 | CONSERVE - CONSERVATION FUTURES | $7.36 | $7.36 | $0.00 | $0.00 | $0.00 | $14.72 |
| 2026 | 27634 | CITYPT - CITY OF PT | $348.35 | $348.34 | $0.00 | $0.00 | $0.00 | $696.69 |
| 2026 | 27634 | PORTPT - PORT DISTRICT | $99.13 | $99.11 | $0.00 | $0.00 | $0.00 | $198.24 |
| 2026 | 27634 | PUD1 - PUD #1 | $15.97 | $15.96 | $0.00 | $0.00 | $0.00 | $31.93 |
| 2026 | 27634 | HD2 - HOSP DIST #2 | $14.32 | $14.31 | $0.00 | $0.00 | $0.00 | $28.63 |
| 2026 | 27634 | SD50 - SCHOOL DIST #50 | $486.31 | $486.30 | $0.00 | $0.00 | $0.00 | $972.61 |
| 2026 | 27634 | FD1 - FIRE DISTRICT #1 | $324.99 | $324.99 | $0.00 | $0.00 | $0.00 | $649.98 |
| 2026 | 27634 | EMS1 - FIRE DIST #1 EMS | $124.96 | $124.95 | $0.00 | $0.00 | $0.00 | $249.91 |
| 2026 | 27634 | JCCD - JC Conservation District | $2.55 | $2.55 | $0.00 | $0.00 | $0.00 | $5.10 |
| 2026 | 27634 | NWA - Noxious Weed Assessment | $2.98 | $2.97 | $0.00 | $0.00 | $0.00 | $5.95 |
| 2026 | 27634 | TOTAL: | $2286.20 | $2286.10 | $0.00 | $0.00 | $0.00 | $4572.30 |
|
| 2026 | 27634 | $2286.20 | $2286.10 | $0.00 | $0.00 | $0.00 | $4572.30 |
Statement Details |
| 2025 | 27706 | STATE - STATE LEVY (SCHOOL) | $584.16 | $584.15 | $0.00 | $0.00 | $1168.31 | $0.00 |
| 2025 | 27706 | COUNTY - COUNTY LEVIES (CE, DD, VET, MH) | $229.72 | $229.71 | $0.00 | $0.00 | $459.43 | $0.00 |
| 2025 | 27706 | CONSERVE - CONSERVATION FUTURES | $6.89 | $6.89 | $0.00 | $0.00 | $13.78 | $0.00 |
| 2025 | 27706 | CITYPT - CITY OF PT | $331.28 | $331.26 | $0.00 | $0.00 | $662.54 | $0.00 |
| 2025 | 27706 | PORTPT - PORT DISTRICT | $93.75 | $93.73 | $0.00 | $0.00 | $187.48 | $0.00 |
| 2025 | 27706 | PUD1 - PUD #1 | $15.03 | $15.03 | $0.00 | $0.00 | $30.06 | $0.00 |
| 2025 | 27706 | HD2 - HOSP DIST #2 | $13.40 | $13.40 | $0.00 | $0.00 | $26.80 | $0.00 |
| 2025 | 27706 | SD50 - SCHOOL DIST #50 | $426.93 | $426.91 | $0.00 | $0.00 | $853.84 | $0.00 |
| 2025 | 27706 | FD1 - FIRE DISTRICT #1 | $303.14 | $303.13 | $0.00 | $0.00 | $606.27 | $0.00 |
| 2025 | 27706 | EMS1 - FIRE DIST #1 EMS | $116.60 | $116.59 | $0.00 | $0.00 | $233.19 | $0.00 |
| 2025 | 27706 | JCCD - JC Conservation District | $2.55 | $2.55 | $0.00 | $0.00 | $5.10 | $0.00 |
| 2025 | 27706 | NWA - Noxious Weed Assessment | $2.15 | $2.15 | $0.00 | $0.00 | $4.30 | $0.00 |
| 2025 | 27706 | TOTAL: | $2125.60 | $2125.50 | $0.00 | $0.00 | $4251.10 | $0.00 |
|
| 2025 | 27706 | $2125.60 | $2125.50 | $0.00 | $0.00 | $4251.10 | $0.00 |
Statement Details |
| 2024 | 27764 | STATE - STATE LEVY (SCHOOL) | $563.59 | $563.58 | $0.00 | $0.00 | $1127.17 | $0.00 |
| 2024 | 27764 | COUNTY - COUNTY LEVIES (CE, DD, VET, MH) | $241.17 | $241.16 | $0.00 | $0.00 | $482.33 | $0.00 |
| 2024 | 27764 | CONSERVE - CONSERVATION FUTURES | $7.23 | $7.23 | $0.00 | $0.00 | $14.46 | $0.00 |
| 2024 | 27764 | CITYPT - CITY OF PT | $344.60 | $344.58 | $0.00 | $0.00 | $689.18 | $0.00 |
| 2024 | 27764 | PORTPT - PORT DISTRICT | $99.62 | $99.61 | $0.00 | $0.00 | $199.23 | $0.00 |
| 2024 | 27764 | PUD1 - PUD #1 | $15.84 | $15.84 | $0.00 | $0.00 | $31.68 | $0.00 |
| 2024 | 27764 | HD2 - HOSP DIST #2 | $14.07 | $14.07 | $0.00 | $0.00 | $28.14 | $0.00 |
| 2024 | 27764 | SD50 - SCHOOL DIST #50 | $455.98 | $455.96 | $0.00 | $0.00 | $911.94 | $0.00 |
| 2024 | 27764 | FD1 - FIRE DISTRICT #1 | $318.88 | $318.87 | $0.00 | $0.00 | $637.75 | $0.00 |
| 2024 | 27764 | EMS1 - FIRE DIST #1 EMS | $121.80 | $121.80 | $0.00 | $0.00 | $243.60 | $0.00 |
| 2024 | 27764 | JCCD - JC Conservation District | $2.55 | $2.55 | $0.00 | $0.00 | $5.10 | $0.00 |
| 2024 | 27764 | NWA - Noxious Weed Assessment | $2.15 | $2.15 | $0.00 | $0.00 | $4.30 | $0.00 |
| 2024 | 27764 | TOTAL: | $2187.48 | $2187.40 | $0.00 | $0.00 | $4374.88 | $0.00 |
|
| 2024 | 27764 | $2187.48 | $2187.40 | $0.00 | $0.00 | $4374.88 | $0.00 |
Statement Details |
| 2023 | 27806 | STATE - STATE LEVY (SCHOOL) | $563.78 | $563.76 | $0.00 | $0.00 | $1127.54 | $0.00 |
| 2023 | 27806 | COUNTY - COUNTY LEVIES (CE, DD, VET, MH) | $246.03 | $245.99 | $0.00 | $0.00 | $492.02 | $0.00 |
| 2023 | 27806 | CONSERVE - CONSERVATION FUTURES | $7.38 | $7.37 | $0.00 | $0.00 | $14.75 | $0.00 |
| 2023 | 27806 | CITYPT - CITY OF PT | $347.71 | $347.69 | $0.00 | $0.00 | $695.40 | $0.00 |
| 2023 | 27806 | PORTPT - PORT DISTRICT | $103.64 | $103.62 | $0.00 | $0.00 | $207.26 | $0.00 |
| 2023 | 27806 | PUD1 - PUD #1 | $16.31 | $16.30 | $0.00 | $0.00 | $32.61 | $0.00 |
| 2023 | 27806 | HD2 - HOSP DIST #2 | $14.37 | $14.35 | $0.00 | $0.00 | $28.72 | $0.00 |
| 2023 | 27806 | SD50 - SCHOOL DIST #50 | $447.36 | $447.36 | $0.00 | $0.00 | $894.72 | $0.00 |
| 2023 | 27806 | FD1 - FIRE DISTRICT #1 | $202.67 | $202.66 | $0.00 | $0.00 | $405.33 | $0.00 |
| 2023 | 27806 | EMS1 - FIRE DIST #1 EMS | $86.21 | $86.21 | $0.00 | $0.00 | $172.42 | $0.00 |
| 2023 | 27806 | JCCD - JC Conservation District | $2.55 | $2.55 | $0.00 | $0.00 | $5.10 | $0.00 |
| 2023 | 27806 | NWA - Noxious Weed Assessment | $2.15 | $2.15 | $0.00 | $0.00 | $4.30 | $0.00 |
| 2023 | 27806 | TOTAL: | $2040.16 | $2040.01 | $0.00 | $0.00 | $4080.17 | $0.00 |
|
| 2023 | 27806 | $2040.16 | $2040.01 | $0.00 | $0.00 | $4080.17 | $0.00 |
Values
| (+) Improvement Homesite Value: | + | $0 | |
| (+) Improvement Non-Homesite Value: | + | $363,999 | |
| (+) Land Homesite Value: | + | $0 | |
| (+) Land Non-Homesite Value: | + | $170,000 | |
| (+) Curr Use (HS): | + | $0 | $0 |
| (+) Curr Use (NHS): | + | $0 | $0 |
| | | -------------------------- | |
| (=) Market Value: | = | $533,999 | |
| (–) Productivity Loss: | – | $0 | |
| | | -------------------------- | |
| (=) Subtotal: | = | $533,999 | |
| (+) Senior Appraised Value: | + | $0 | |
| (+) Non-Senior Appraised Value: | + | $533,999 | |
| | | -------------------------- | |
| (=) Total Appraised Value: | = | $533,999 | |
| (–) Senior Exemption Loss: | – | $0 | |
| (–) Exemption Loss: | – | $0 | |
| | | -------------------------- | |
| (=) Taxable Value: | = | $533,999 | |
Taxing Jurisdiction
| Owner: | FAYETTE KRAUSE | | |
| % Ownership: | 100.0000000000% | | |
| Total Value: | $533,999 | | |
| Tax Area: | 0110 - C-50F1E1H2 |
| CE | COUNTY CURRENT EXPENSE | 0.9034619479 | $533,999 | $533,999 | $482.45 | | |
| CNTYDD | DEVELOPMENTAL DISABILITIES | 0.0052121823 | $533,999 | $533,999 | $2.78 | | |
| CNTYVET | VETERANS RELIEF | 0.0052777810 | $533,999 | $533,999 | $2.82 | | |
| MENTAL | MENTAL HEALTH | 0.0052121823 | $533,999 | $533,999 | $2.78 | | |
| PTGEN | CITY OF PT GENERAL | 0.8551967795 | $533,999 | $533,999 | $456.67 | | |
| PTLLL | CITY OF PT - LIBRARY LID LIFT | 0.4010114288 | $533,999 | $533,999 | $214.14 | | |
| PTMVBOND | CITY OF PT MV BOND | 0.0484717981 | $533,999 | $533,999 | $25.88 | | |
| HOSP2CASH | HOSP DIST #2 GENERAL | 0.0536075306 | $533,999 | $533,999 | $28.63 | | |
| SCH50BOND | SCHOOL DIST #50 BOND 2016 | 0.5377451389 | $533,999 | $533,999 | $287.16 | | |
| SCH50CP | SCHOOL DIST #50 CAP PROJ | 0.4573475088 | $533,999 | $533,999 | $244.22 | | |
| SCH50MO | SCHOOL DIST #50 EP & O | 0.8262822886 | $533,999 | $533,999 | $441.23 | | |
| CONSERVE | CONSERVATION FUTURES | 0.0275621078 | $533,999 | $533,999 | $14.72 | | |
| EMS1 | FIRE DIST #1 EMS | 0.4679948282 | $533,999 | $533,999 | $249.91 | | |
| FD1 | FIRE DIST #1 GENERAL | 1.2171942929 | $533,999 | $533,999 | $649.98 | | |
| PORTPT | PORT OF PT GENERAL | 0.1134941229 | $533,999 | $533,999 | $60.61 | | |
| PORTPTIDD | PORT OF PT IDD 2019 | 0.2577346692 | $533,999 | $533,999 | $137.63 | | |
| PUD1 | PUD #1 GENERAL | 0.0597888892 | $533,999 | $533,999 | $31.93 | | |
| STATE | STATE SCHOOL PART 1 | 1.4940692947 | $533,999 | $533,999 | $797.83 | | |
| STATE2 | STATE SCHOOL PART 2 | 0.8050170049 | $533,999 | $533,999 | $429.88 | | |
| | Total Tax Rate: | 8.5416817766 | | | | | |
| | | | | Taxes w/Current Exemptions: | $4,561.25 | | |
| | | | | Taxes w/o Exemptions: | $4,561.25 | | |
Improvement / Building
| Improvement #1: | Residential Bldg | State Code: | 14 | 1166.0 sqft | Value: | $363,999 |
| Bathrooms (#): | 2 (FULL) | Bedrooms (#): | 2 | | Exterior Wall: | SI/ST | Floor Construction: | FRAME | | Foundation: | CONPR | Heating/Cooling: | OTHER | | Inside Verify: | YES-FIX | Roof Cover: | COMP |
|
| | Type | Description | Class CD | Sub Class CD | Year Built | Area |
| | MA | Main Area | 5+ | 2S | 2006 | 583.0 |
| | MA2 | Second Floor Main Area | 5+ | 2S | 2006 | 583.0 |
| | PATIO | House Patio | 5 | * | 2006 | 108.0 |
| | HWPOR | House Wood Porch | 5 | * | 2006 | 120.0 |
| | HBAL | House Balcony | 5 | * | 2006 | 70.0 |
| | SHED | Shed (Table Not Dep) | 2 | * | 2006 | 28.0 |
Sketch
| No sketches available for this property. |
Property Image
Land
| 1 | 9853-4115S | | 0.0000 | 0.00 | 0.00 | 0.00 | 1.00 | $170,000 | $0 |
Roll Value History
| 2026 | N/A | N/A | N/A | N/A | N/A |
| 2025 | $363,999 | $170,000 | $0 | $533,999 | $533,999 |
| 2024 | $337,197 | $150,000 | $0 | $487,197 | $487,197 |
| 2023 | $337,197 | $150,000 | $0 | $487,197 | $487,197 |
| 2022 | $328,955 | $150,000 | $0 | $478,955 | $478,955 |
Deed and Sales History
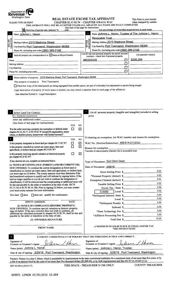
| 1 | 03/29/2018 | QCD | Quit Claim Deed | | | | | | 129838 | |
| 2 | 09/01/2017 | QCD | Quit Claim Deed | | | | | | 128477 | |
| 3 | 06/20/2006 | SWD | Statutory Warranty Deed | QED/MADRONA VILLAGE LLC | KRAUSE, FAYETTE/HERON, JOANNE | | | $252,732.00 | 106980 | 0 |
Payout Agreement
| No payout information available.. |