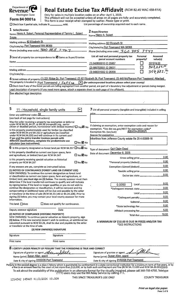
Property
Account |
| Property ID: | 38631 | Abbreviated Legal Description: | PHILLIPS BAY VIEW ADDITION BLK 39, LOTS 1 THRU 6 W/ALL VAC PHILLIPS AVE ADJ (LS R/W ON 5&6) |
| Parcel # / Geo ID: | 986703901 | Agent Code: | |
| Type: | Real | | |
| Tax Area: | 0111 - 1-50F1E1H2L1 | Land Use Code | 11 |
| Open Space: | N | DFL | N |
| Historic Property: | N | Remodel Property: | N |
| Multi-Family Redevelopment: | N | | |
| Township: | 30N | Section: | 16 |
| Range: | 1W |
Location |
| Address: | 82 ELIZABETH ST PORT TOWNSEND, WA 98368 | Mapsco: | 063/068 |
| Neighborhood: | PHILLIPS BAY-VIEW, SANTA BARBARA, DENNY, EISENBEIS BAY-VIEW | Map ID: | |
| Neighborhood CD: | 5350 |
Owner |
| Name: | HENRY A SUKERT | Owner ID: | 28402 |
| Mailing Address: | 82 ELIZABETH ST PORT TOWNSEND, WA 98368-8717 | % Ownership: | 100.0000000000% |
| | | Exemptions: | |
Pay Tax Due
There is currently No Amount Due on this property.
Taxes and Assessment Details
Property Tax Information as of
03/12/2026
Click on "Statement Details" to expand or collapse a tax statement.
* Please enter a valid date ** Please enter a valid date *
Statement Details |
| 2026 | 27810 | STATE - STATE LEVY (SCHOOL) | $371.58 | $371.57 | $0.00 | $0.00 | $743.15 | $0.00 |
| 2026 | 27810 | COUNTY - COUNTY LEVIES (CE, DD, VET, MH) | $148.56 | $148.54 | $0.00 | $0.00 | $297.10 | $0.00 |
| 2026 | 27810 | CONSERVE - CONSERVATION FUTURES | $4.46 | $4.45 | $0.00 | $0.00 | $8.91 | $0.00 |
| 2026 | 27810 | COROADS - COUNTY ROADS (ROADS, DIV TO CE) | $119.84 | $119.84 | $0.00 | $0.00 | $239.68 | $0.00 |
| 2026 | 27810 | PORTPT - PORT DISTRICT | $60.01 | $59.99 | $0.00 | $0.00 | $120.00 | $0.00 |
| 2026 | 27810 | PUD1 - PUD #1 | $9.67 | $9.66 | $0.00 | $0.00 | $19.33 | $0.00 |
| 2026 | 27810 | LIB1 - LIBRARY DIST #1 | $46.37 | $46.36 | $0.00 | $0.00 | $92.73 | $0.00 |
| 2026 | 27810 | HD2 - HOSP DIST #2 | $8.67 | $8.66 | $0.00 | $0.00 | $17.33 | $0.00 |
| 2026 | 27810 | SD50 - SCHOOL DIST #50 | $294.38 | $294.36 | $0.00 | $0.00 | $588.74 | $0.00 |
| 2026 | 27810 | FD1 - FIRE DISTRICT #1 | $196.72 | $196.72 | $0.00 | $0.00 | $393.44 | $0.00 |
| 2026 | 27810 | EMS1 - FIRE DIST #1 EMS | $75.64 | $75.63 | $0.00 | $0.00 | $151.27 | $0.00 |
| 2026 | 27810 | FP - DNR Forest Fire Protection Assmt | $8.50 | $8.50 | $0.00 | $0.00 | $17.00 | $0.00 |
| 2026 | 27810 | FPLCA - DNR Landowner Contingency Assmt | $3.00 | $3.00 | $0.00 | $0.00 | $6.00 | $0.00 |
| 2026 | 27810 | JCCD - JC Conservation District | $2.55 | $2.55 | $0.00 | $0.00 | $5.10 | $0.00 |
| 2026 | 27810 | NWA - Noxious Weed Assessment | $2.98 | $2.97 | $0.00 | $0.00 | $5.95 | $0.00 |
| 2026 | 27810 | OSS - On Site Septic | $23.10 | $23.10 | $0.00 | $0.00 | $46.20 | $0.00 |
| 2026 | 27810 | WAT - Clean Water District | $13.00 | $13.00 | $0.00 | $0.00 | $26.00 | $0.00 |
| 2026 | 27810 | FP ADMIN - FP ADMIN | $0.50 | $0.00 | $0.00 | $0.00 | $0.50 | $0.00 |
| 2026 | 27810 | TOTAL: | $1389.53 | $1388.90 | $0.00 | $0.00 | $2778.43 | $0.00 |
|
| 2026 | 27810 | $1389.53 | $1388.90 | $0.00 | $0.00 | $2778.43 | $0.00 |
Statement Details |
| 2025 | 27882 | STATE - STATE LEVY (SCHOOL) | $371.26 | $371.25 | $0.00 | $0.00 | $742.51 | $0.00 |
| 2025 | 27882 | COUNTY - COUNTY LEVIES (CE, DD, VET, MH) | $146.01 | $145.97 | $0.00 | $0.00 | $291.98 | $0.00 |
| 2025 | 27882 | CONSERVE - CONSERVATION FUTURES | $4.38 | $4.38 | $0.00 | $0.00 | $8.76 | $0.00 |
| 2025 | 27882 | COROADS - COUNTY ROADS (ROADS, DIV TO CE) | $116.97 | $116.96 | $0.00 | $0.00 | $233.93 | $0.00 |
| 2025 | 27882 | PORTPT - PORT DISTRICT | $59.58 | $59.56 | $0.00 | $0.00 | $119.14 | $0.00 |
| 2025 | 27882 | PUD1 - PUD #1 | $9.56 | $9.55 | $0.00 | $0.00 | $19.11 | $0.00 |
| 2025 | 27882 | LIB1 - LIBRARY DIST #1 | $45.26 | $45.25 | $0.00 | $0.00 | $90.51 | $0.00 |
| 2025 | 27882 | HD2 - HOSP DIST #2 | $8.52 | $8.52 | $0.00 | $0.00 | $17.04 | $0.00 |
| 2025 | 27882 | SD50 - SCHOOL DIST #50 | $271.33 | $271.32 | $0.00 | $0.00 | $542.65 | $0.00 |
| 2025 | 27882 | FD1 - FIRE DISTRICT #1 | $192.66 | $192.65 | $0.00 | $0.00 | $385.31 | $0.00 |
| 2025 | 27882 | EMS1 - FIRE DIST #1 EMS | $74.10 | $74.10 | $0.00 | $0.00 | $148.20 | $0.00 |
| 2025 | 27882 | FP - DNR Forest Fire Protection Assmt | $8.50 | $8.50 | $0.00 | $0.00 | $17.00 | $0.00 |
| 2025 | 27882 | FPLCA - DNR Landowner Contingency Assmt | $3.00 | $3.00 | $0.00 | $0.00 | $6.00 | $0.00 |
| 2025 | 27882 | JCCD - JC Conservation District | $2.55 | $2.55 | $0.00 | $0.00 | $5.10 | $0.00 |
| 2025 | 27882 | NWA - Noxious Weed Assessment | $2.15 | $2.15 | $0.00 | $0.00 | $4.30 | $0.00 |
| 2025 | 27882 | OSS - On Site Septic | $21.50 | $21.50 | $0.00 | $0.00 | $43.00 | $0.00 |
| 2025 | 27882 | WAT - Clean Water District | $13.00 | $13.00 | $0.00 | $0.00 | $26.00 | $0.00 |
| 2025 | 27882 | FP ADMIN - FP ADMIN | $0.50 | $0.00 | $0.00 | $0.00 | $0.50 | $0.00 |
| 2025 | 27882 | TOTAL: | $1350.83 | $1350.21 | $0.00 | $0.00 | $2701.04 | $0.00 |
|
| 2025 | 27882 | $1350.83 | $1350.21 | $0.00 | $0.00 | $2701.04 | $0.00 |
Statement Details |
| 2024 | 27940 | STATE - STATE LEVY (SCHOOL) | $327.87 | $327.86 | $0.00 | $0.00 | $655.73 | $0.00 |
| 2024 | 27940 | COUNTY - COUNTY LEVIES (CE, DD, VET, MH) | $140.29 | $140.29 | $0.00 | $0.00 | $280.58 | $0.00 |
| 2024 | 27940 | CONSERVE - CONSERVATION FUTURES | $4.21 | $4.20 | $0.00 | $0.00 | $8.41 | $0.00 |
| 2024 | 27940 | COROADS - COUNTY ROADS (ROADS, DIV TO CE) | $112.90 | $112.88 | $0.00 | $0.00 | $225.78 | $0.00 |
| 2024 | 27940 | PORTPT - PORT DISTRICT | $57.96 | $57.94 | $0.00 | $0.00 | $115.90 | $0.00 |
| 2024 | 27940 | PUD1 - PUD #1 | $9.22 | $9.21 | $0.00 | $0.00 | $18.43 | $0.00 |
| 2024 | 27940 | LIB1 - LIBRARY DIST #1 | $43.68 | $43.67 | $0.00 | $0.00 | $87.35 | $0.00 |
| 2024 | 27940 | HD2 - HOSP DIST #2 | $8.19 | $8.18 | $0.00 | $0.00 | $16.37 | $0.00 |
| 2024 | 27940 | SD50 - SCHOOL DIST #50 | $265.27 | $265.24 | $0.00 | $0.00 | $530.51 | $0.00 |
| 2024 | 27940 | FD1 - FIRE DISTRICT #1 | $185.51 | $185.50 | $0.00 | $0.00 | $371.01 | $0.00 |
| 2024 | 27940 | EMS1 - FIRE DIST #1 EMS | $70.86 | $70.85 | $0.00 | $0.00 | $141.71 | $0.00 |
| 2024 | 27940 | FP - DNR Forest Fire Protection Assmt | $8.50 | $8.50 | $0.00 | $0.00 | $17.00 | $0.00 |
| 2024 | 27940 | FPLCA - DNR Landowner Contingency Assmt | $3.00 | $3.00 | $0.00 | $0.00 | $6.00 | $0.00 |
| 2024 | 27940 | JCCD - JC Conservation District | $2.55 | $2.55 | $0.00 | $0.00 | $5.10 | $0.00 |
| 2024 | 27940 | NWA - Noxious Weed Assessment | $2.15 | $2.15 | $0.00 | $0.00 | $4.30 | $0.00 |
| 2024 | 27940 | OSS - On Site Septic | $21.00 | $21.00 | $0.00 | $0.00 | $42.00 | $0.00 |
| 2024 | 27940 | WAT - Clean Water District | $12.50 | $12.50 | $0.00 | $0.00 | $25.00 | $0.00 |
| 2024 | 27940 | FP ADMIN - FP ADMIN | $0.50 | $0.00 | $0.00 | $0.00 | $0.50 | $0.00 |
| 2024 | 27940 | TOTAL: | $1276.16 | $1275.52 | $0.00 | $0.00 | $2551.68 | $0.00 |
|
| 2024 | 27940 | $1276.16 | $1275.52 | $0.00 | $0.00 | $2551.68 | $0.00 |
Statement Details |
| 2023 | 27982 | STATE - STATE LEVY (SCHOOL) | $300.61 | $300.61 | $0.00 | $0.00 | $601.22 | $0.00 |
| 2023 | 27982 | COUNTY - COUNTY LEVIES (CE, DD, VET, MH) | $131.20 | $131.16 | $0.00 | $0.00 | $262.36 | $0.00 |
| 2023 | 27982 | CONSERVE - CONSERVATION FUTURES | $3.94 | $3.93 | $0.00 | $0.00 | $7.87 | $0.00 |
| 2023 | 27982 | COROADS - COUNTY ROADS (ROADS, DIV TO CE) | $106.14 | $106.12 | $0.00 | $0.00 | $212.26 | $0.00 |
| 2023 | 27982 | PORTPT - PORT DISTRICT | $55.26 | $55.25 | $0.00 | $0.00 | $110.51 | $0.00 |
| 2023 | 27982 | PUD1 - PUD #1 | $8.70 | $8.69 | $0.00 | $0.00 | $17.39 | $0.00 |
| 2023 | 27982 | LIB1 - LIBRARY DIST #1 | $41.06 | $41.06 | $0.00 | $0.00 | $82.12 | $0.00 |
| 2023 | 27982 | HD2 - HOSP DIST #2 | $7.66 | $7.65 | $0.00 | $0.00 | $15.31 | $0.00 |
| 2023 | 27982 | SD50 - SCHOOL DIST #50 | $238.55 | $238.53 | $0.00 | $0.00 | $477.08 | $0.00 |
| 2023 | 27982 | FD1 - FIRE DISTRICT #1 | $108.07 | $108.06 | $0.00 | $0.00 | $216.13 | $0.00 |
| 2023 | 27982 | EMS1 - FIRE DIST #1 EMS | $45.97 | $45.97 | $0.00 | $0.00 | $91.94 | $0.00 |
| 2023 | 27982 | FP - DNR Forest Fire Protection Assmt | $8.50 | $8.50 | $0.00 | $0.00 | $17.00 | $0.00 |
| 2023 | 27982 | FPLCA - DNR Landowner Contingency Assmt | $3.00 | $3.00 | $0.00 | $0.00 | $6.00 | $0.00 |
| 2023 | 27982 | JCCD - JC Conservation District | $2.55 | $2.55 | $0.00 | $0.00 | $5.10 | $0.00 |
| 2023 | 27982 | NWA - Noxious Weed Assessment | $2.15 | $2.15 | $0.00 | $0.00 | $4.30 | $0.00 |
| 2023 | 27982 | OSS - On Site Septic | $20.50 | $20.50 | $0.00 | $0.00 | $41.00 | $0.00 |
| 2023 | 27982 | WAT - Clean Water District | $12.00 | $12.00 | $0.00 | $0.00 | $24.00 | $0.00 |
| 2023 | 27982 | FP ADMIN - FP ADMIN | $0.50 | $0.00 | $0.00 | $0.00 | $0.50 | $0.00 |
| 2023 | 27982 | TOTAL: | $1096.36 | $1095.73 | $0.00 | $0.00 | $2192.09 | $0.00 |
|
| 2023 | 27982 | $1096.36 | $1095.73 | $0.00 | $0.00 | $2192.09 | $0.00 |
Values
| (+) Improvement Homesite Value: | + | $0 | |
| (+) Improvement Non-Homesite Value: | + | $248,489 | |
| (+) Land Homesite Value: | + | $0 | |
| (+) Land Non-Homesite Value: | + | $74,750 | |
| (+) Curr Use (HS): | + | $0 | $0 |
| (+) Curr Use (NHS): | + | $0 | $0 |
| | | -------------------------- | |
| (=) Market Value: | = | $323,239 | |
| (–) Productivity Loss: | – | $0 | |
| | | -------------------------- | |
| (=) Subtotal: | = | $323,239 | |
| (+) Senior Appraised Value: | + | $0 | |
| (+) Non-Senior Appraised Value: | + | $323,239 | |
| | | -------------------------- | |
| (=) Total Appraised Value: | = | $323,239 | |
| (–) Senior Exemption Loss: | – | $0 | |
| (–) Exemption Loss: | – | $0 | |
| | | -------------------------- | |
| (=) Taxable Value: | = | $323,239 | |
Taxing Jurisdiction
| Owner: | HENRY A SUKERT | | |
| % Ownership: | 100.0000000000% | | |
| Total Value: | N/A | | |
| Tax Area: | 0111 - 1-50F1E1H2L1 |
| CE | COUNTY CURRENT EXPENSE | N/A | N/A | N/A | N/A | | |
| CNTYDD | DEVELOPMENTAL DISABILITIES | N/A | N/A | N/A | N/A | | |
| CNTYVET | VETERANS RELIEF | N/A | N/A | N/A | N/A | | |
| MENTAL | MENTAL HEALTH | N/A | N/A | N/A | N/A | | |
| ROADS | COUNTY ROADS | N/A | N/A | N/A | N/A | | |
| HOSP2CASH | HOSP DIST #2 GENERAL | N/A | N/A | N/A | N/A | | |
| SCH50BOND | SCHOOL DIST #50 BOND 2016 | N/A | N/A | N/A | N/A | | |
| SCH50CP | SCHOOL DIST #50 CAP PROJ | N/A | N/A | N/A | N/A | | |
| SCH50MO | SCHOOL DIST #50 EP & O | N/A | N/A | N/A | N/A | | |
| CONSERVE | CONSERVATION FUTURES | N/A | N/A | N/A | N/A | | |
| EMS1 | FIRE DIST #1 EMS | N/A | N/A | N/A | N/A | | |
| FD1 | FIRE DIST #1 GENERAL | N/A | N/A | N/A | N/A | | |
| LIB1 | LIBRARY DIST #1 GENERAL | N/A | N/A | N/A | N/A | | |
| PORTPT | PORT OF PT GENERAL | N/A | N/A | N/A | N/A | | |
| PORTPTIDD | PORT OF PT IDD 2019 | N/A | N/A | N/A | N/A | | |
| PUD1 | PUD #1 GENERAL | N/A | N/A | N/A | N/A | | |
| STATE | STATE SCHOOL PART 1 | N/A | N/A | N/A | N/A | | |
| STATE2 | STATE SCHOOL PART 2 | N/A | N/A | N/A | N/A | | |
| | Total Tax Rate: | N/A | | | | | |
| | | | | Taxes w/Current Exemptions: | N/A | | |
| | | | | Taxes w/o Exemptions: | N/A | | |
Improvement / Building
| Improvement #1: | Residential Bldg | State Code: | 11 | 914.0 sqft | Value: | $248,489 |
| Bathrooms (#): | 2 (FULL) | Bedrooms (#): | 2 | | Exterior Wall: | SI/ST | Floor Construction: | FRAME | | Foundation: | CONPR | Roof Cover: | COMP |
|
| | Type | Description | Class CD | Sub Class CD | Year Built | Area |
| | MA | Main Area | 4- | 1S | 2003 | 914.0 |
| | GATT | House Attached Garage | 3 | 1S | 2003 | 1200.0 |
| | OTHER | Other | * | * | 2003 | 0.0 |
| | CONCD | Concrete Drive | 3 | * | 2003 | 1120.0 |
Sketch
| No sketches available for this property. |
Property Image
Land
| 1 | 5350-1375S | | 0.0000 | 0.00 | 0.00 | 0.00 | 1.00 | $74,750 | $0 |
Roll Value History
| 2026 | N/A | N/A | N/A | N/A | N/A |
| 2025 | $248,489 | $74,750 | $0 | $323,239 | $323,239 |
| 2024 | $238,135 | $71,500 | $0 | $309,635 | $309,635 |
| 2023 | $220,425 | $63,000 | $0 | $283,425 | $283,425 |
| 2022 | $200,386 | $55,000 | $0 | $255,386 | $255,386 |
Deed and Sales History
| 1 | 12/08/2025 | QCD | Quit Claim Deed | HENRY A SUKERT | HENRY A SUKERT | | | | 145465 | |
| 2 | 04/21/1999 | QCD | Quit Claim Deed | SUKERT, BRET/MORTENSON, D | SUKERT, HENRY A/TAMMY L | 0 | 0 | $0.00 | 87373 | 0 |
| 3 | 10/17/1997 | QCD | Quit Claim Deed | SUKERT, TRACI A | SUKERT, BRET L | 0 | 0 | $0.00 | 83063 | 0 |
| 4 | 07/21/1995 | SWD | Statutory Warranty Deed | SUKERT, BRETT L | MORTENSON, DUANE B/GINA M | 0 | 0 | $15,250.00 | 77382 | 0 |
|   | |
Payout Agreement
| No payout information available.. |