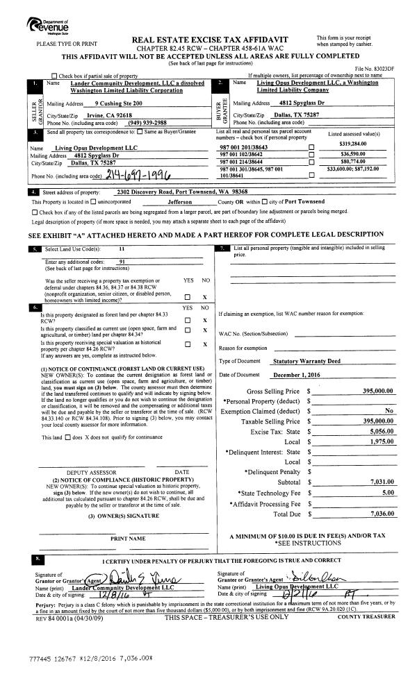
| 1 | 12/01/2016 | SWD | Statutory Warranty Deed | LANDER COMMUNITY DEVELOPMENT | LIVING OPUS DEVELOPMENT LLC | | | $395,000.00 | 126767 | |
|   | |
| 2 | 05/26/2005 | SWD | Statutory Warranty Deed | ROESLER, WILLIAM J & JILL | LANDER COMMUNITY DEVELOPMENT | | | $0.00 | 104244 | 0 |
| 3 | 05/26/2005 | SWD | Statutory Warranty Deed | ROESLER, WJ/FORTUN, JA | LANDER COMMUNITY DEVELOPMT LLC | | | $625,000.00 | 103682 | 0 |
| 4 | 01/30/2004 | BLA | Boundary Line Adjustment | ROESLER, WILLIAM J & JILL | ROESLER, WILLIAM J & JILL ANN | 0 | 0 | $0.00 | 102007 | 0 |
| 5 | 01/29/2004 | BLA | Boundary Line Adjustment | ROESLER, WILLIAM J, FORTU | ROESLER, WILLIAM J, FORTUN, JI | 0 | 0 | $0.00 | 99399 | 0 |
| 6 | 11/22/2002 | BLA | Boundary Line Adjustment | ROESLER, WILLIAM J | ROESLER, WILLIAM J | 0 | 0 | $0.00 | 96072 | 0 |
| 7 | 11/13/1995 | SWD | Statutory Warranty Deed | BPOE LODGE 0317 | ROESLER, WILLIAM/FORTUN, JILL | 0 | 0 | $142,000.00 | 78251 | 0 |
|   | |