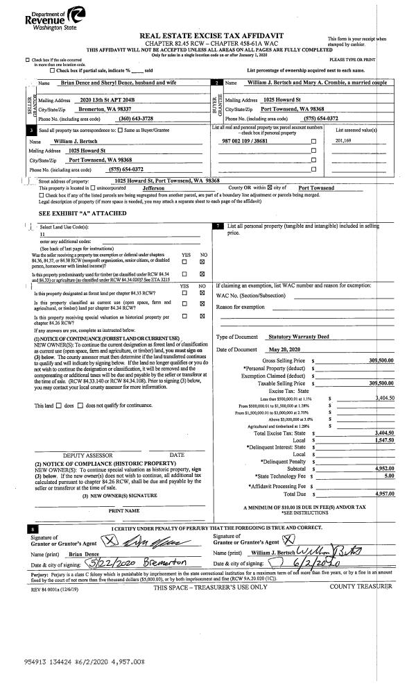
Property
Account |
| Property ID: | 38681 | Abbreviated Legal Description: | PHILLIPS ADDN TO PORT TOWNSEND BLK 21 LOTS 11(N1/2), 12(ALL) LESS R/W |
| Parcel # / Geo ID: | 987002109 | Agent Code: | |
| Type: | Real | | |
| Tax Area: | 0110 - C-50F1E1H2 | Land Use Code | 11 |
| Open Space: | N | DFL | N |
| Historic Property: | N | Remodel Property: | N |
| Multi-Family Redevelopment: | N | | |
| Township: | 30N | Section: | 9 |
| Range: | 1W |
Location |
| Address: | 1025 HOWARD ST PORT TOWNSEND, WA 98368 | Mapsco: | 104/008 |
| Neighborhood: | GLENWOOD HAMMONDS & PHILLIPS TO PT PLATS | Map ID: | |
| Neighborhood CD: | 6140 |
Owner |
| Name: | WILLIAM J BERTSCH & MARY A CROMBIE | Owner ID: | 102731 |
| Mailing Address: | 1025 HOWARD ST PORT TOWNSEND, WA 98368-9678 | % Ownership: | 100.0000000000% |
| | | Exemptions: | |
Pay Tax Due
There is currently No Amount Due on this property.
Taxes and Assessment Details
Property Tax Information as of
03/12/2026
Click on "Statement Details" to expand or collapse a tax statement.
* Please enter a valid date ** Please enter a valid date *
Statement Details |
| | TOTAL: | $0.00 | $0.00 | $0.00 | $0.00 | $0.00 | $0.00 |
|
| | $0.00 | $0.00 | $0.00 | $0.00 | $0.00 | $0.00 |
Values
| (+) Improvement Homesite Value: | + | $0 | |
| (+) Improvement Non-Homesite Value: | + | $256,387 | |
| (+) Land Homesite Value: | + | $0 | |
| (+) Land Non-Homesite Value: | + | $135,000 | |
| (+) Curr Use (HS): | + | $0 | $0 |
| (+) Curr Use (NHS): | + | $0 | $0 |
| | | -------------------------- | |
| (=) Market Value: | = | $391,387 | |
| (–) Productivity Loss: | – | $0 | |
| | | -------------------------- | |
| (=) Subtotal: | = | $391,387 | |
| (+) Senior Appraised Value: | + | $0 | |
| (+) Non-Senior Appraised Value: | + | $391,387 | |
| | | -------------------------- | |
| (=) Total Appraised Value: | = | $391,387 | |
| (–) Senior Exemption Loss: | – | $0 | |
| (–) Exemption Loss: | – | $0 | |
| | | -------------------------- | |
| (=) Taxable Value: | = | $391,387 | |
Taxing Jurisdiction
| Owner: | WILLIAM J BERTSCH & MARY A CROMBIE | | |
| % Ownership: | 100.0000000000% | | |
| Total Value: | $391,387 | | |
| Tax Area: | 0110 - C-50F1E1H2 |
| CE | COUNTY CURRENT EXPENSE | 0.9034619479 | $391,387 | $391,387 | $353.60 | | |
| CNTYDD | DEVELOPMENTAL DISABILITIES | 0.0052121823 | $391,387 | $391,387 | $2.04 | | |
| CNTYVET | VETERANS RELIEF | 0.0052777810 | $391,387 | $391,387 | $2.07 | | |
| MENTAL | MENTAL HEALTH | 0.0052121823 | $391,387 | $391,387 | $2.04 | | |
| PTGEN | CITY OF PT GENERAL | 0.8551967795 | $391,387 | $391,387 | $334.71 | | |
| PTLLL | CITY OF PT - LIBRARY LID LIFT | 0.4010114288 | $391,387 | $391,387 | $156.95 | | |
| PTMVBOND | CITY OF PT MV BOND | 0.0484717981 | $391,387 | $391,387 | $18.97 | | |
| HOSP2CASH | HOSP DIST #2 GENERAL | 0.0536075306 | $391,387 | $391,387 | $20.98 | | |
| SCH50BOND | SCHOOL DIST #50 BOND 2016 | 0.5377451389 | $391,387 | $391,387 | $210.47 | | |
| SCH50CP | SCHOOL DIST #50 CAP PROJ | 0.4573475088 | $391,387 | $391,387 | $179.00 | | |
| SCH50MO | SCHOOL DIST #50 EP & O | 0.8262822886 | $391,387 | $391,387 | $323.40 | | |
| CONSERVE | CONSERVATION FUTURES | 0.0275621078 | $391,387 | $391,387 | $10.79 | | |
| EMS1 | FIRE DIST #1 EMS | 0.4679948282 | $391,387 | $391,387 | $183.17 | | |
| FD1 | FIRE DIST #1 GENERAL | 1.2171942929 | $391,387 | $391,387 | $476.39 | | |
| PORTPT | PORT OF PT GENERAL | 0.1134941229 | $391,387 | $391,387 | $44.42 | | |
| PORTPTIDD | PORT OF PT IDD 2019 | 0.2577346692 | $391,387 | $391,387 | $100.87 | | |
| PUD1 | PUD #1 GENERAL | 0.0597888892 | $391,387 | $391,387 | $23.40 | | |
| STATE | STATE SCHOOL PART 1 | 1.4940692947 | $391,387 | $391,387 | $584.76 | | |
| STATE2 | STATE SCHOOL PART 2 | 0.8050170049 | $391,387 | $391,387 | $315.07 | | |
| | Total Tax Rate: | 8.5416817766 | | | | | |
| | | | | Taxes w/Current Exemptions: | $3,343.10 | | |
| | | | | Taxes w/o Exemptions: | $3,343.10 | | |
Improvement / Building
| Improvement #1: | Residential Bldg | State Code: | 11 | 1128.0 sqft | Value: | $256,387 |
| Bathrooms (#): | 2 (FULL) | Bedrooms (#): | 3 | | Exterior Wall: | SI/ST | Fireplace: | WD ST-AVG | | Floor Construction: | FRAME | Foundation: | CONPR | | Heating/Cooling: | ELBB | Inside Verify: | YES-FIX | | Roof Cover: | COMP |   |   |
|
| | Type | Description | Class CD | Sub Class CD | Year Built | Area |
| | MA | Main Area | 3+ | 1S | 1990 | 1128.0 |
| | HWPOR | House Wood Porch | 4 | * | 1990 | 144.0 |
| | GATT | House Attached Garage | 4 | 1S | 1990 | 440.0 |
Sketch
Property Image
Land
| 1 | 6140-1274S | Sites (1.5 +/- Lots) Phillips/Hammonds/Eisenbeis | 0.0000 | 0.00 | 0.00 | 0.00 | 1.00 | $135,000 | $0 |
Roll Value History
| 2026 | N/A | N/A | N/A | N/A | N/A |
| 2025 | $256,387 | $135,000 | $0 | $391,387 | $391,387 |
| 2024 | $296,028 | $136,500 | $0 | $432,528 | $432,528 |
| 2023 | $271,359 | $125,000 | $0 | $396,359 | $396,359 |
| 2022 | $271,359 | $120,000 | $0 | $391,359 | $391,359 |
Deed and Sales History
| 1 | 05/20/2020 | SWD | Statutory Warranty Deed | BRIAN DENCE | WILLIAM J BERTSCH & MARY A CROMBIE | | | $309,500.00 | 134424 | |
| 2 | 06/23/2008 | SWD | Statutory Warranty Deed | GARBER, LYNN/JEFFERY | DENCE, BRIAN/SHERYL | | | $150,000.00 | 111466 | 0 |
| 3 | 05/15/1998 | SWD | Statutory Warranty Deed | ARMSTRONG, JEFFRY L | RUGGLES, LYNN A | 0 | 0 | $100,000.00 | 84468 | 0 |
Payout Agreement
| No payout information available.. |