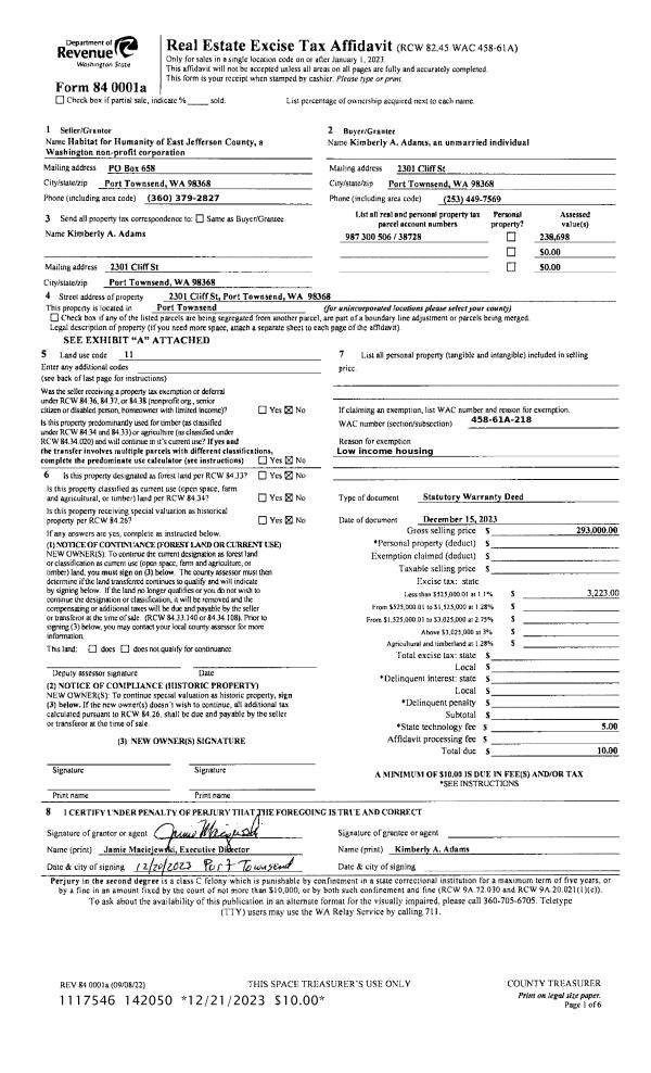
Property
Account |
| Property ID: | 38728 | Abbreviated Legal Description: | PHOENIX ADDITION BLK 5 LOT 6 REST/COVT #544063 HABITAT COVE #664024 |
| Parcel # / Geo ID: | 987300506 | Agent Code: | |
| Type: | Real | | |
| Tax Area: | 0110 - C-50F1E1H2 | Land Use Code | 11 |
| Open Space: | N | DFL | N |
| Historic Property: | N | Remodel Property: | N |
| Multi-Family Redevelopment: | N | | |
| Township: | 30N | Section: | 4 |
| Range: | 1W |
Location |
| Address: | 2301 CLIFF ST PORT TOWNSEND, WA 98368 | Mapsco: | 105/051 |
| Neighborhood: | S 1/2 S4-30-1W INC HAMILTON HEIGHTS & PHOENIX | Map ID: | |
| Neighborhood CD: | 6100 |
Owner |
| Name: | KIMBERLY A ADAMS | Owner ID: | 110182 |
| Mailing Address: | 2301 CLIFF ST PORT TOWNSEND, WA 98368 | % Ownership: | 100.0000000000% |
| | | Exemptions: | |
Pay Tax Due
Select the appropriate checkbox next to the year to be paid. Multiple years may be selected.
*Convenience Fee not included
Taxes and Assessment Details
Property Tax Information as of
03/10/2026
Click on "Statement Details" to expand or collapse a tax statement.
* Please enter a valid date ** Please enter a valid date *
Statement Details |
| 2026 | 27907 | STATE - STATE LEVY (SCHOOL) | $347.00 | $346.99 | $0.00 | $0.00 | $0.00 | $693.99 |
| 2026 | 27907 | COUNTY - COUNTY LEVIES (CE, DD, VET, MH) | $138.74 | $138.71 | $0.00 | $0.00 | $0.00 | $277.45 |
| 2026 | 27907 | CONSERVE - CONSERVATION FUTURES | $4.16 | $4.16 | $0.00 | $0.00 | $0.00 | $8.32 |
| 2026 | 27907 | CITYPT - CITY OF PT | $196.93 | $196.90 | $0.00 | $0.00 | $0.00 | $393.83 |
| 2026 | 27907 | PORTPT - PORT DISTRICT | $56.03 | $56.03 | $0.00 | $0.00 | $0.00 | $112.06 |
| 2026 | 27907 | PUD1 - PUD #1 | $9.03 | $9.02 | $0.00 | $0.00 | $0.00 | $18.05 |
| 2026 | 27907 | HD2 - HOSP DIST #2 | $8.09 | $8.09 | $0.00 | $0.00 | $0.00 | $16.18 |
| 2026 | 27907 | SD50 - SCHOOL DIST #50 | $274.90 | $274.89 | $0.00 | $0.00 | $0.00 | $549.79 |
| 2026 | 27907 | FD1 - FIRE DISTRICT #1 | $183.71 | $183.71 | $0.00 | $0.00 | $0.00 | $367.42 |
| 2026 | 27907 | EMS1 - FIRE DIST #1 EMS | $70.64 | $70.63 | $0.00 | $0.00 | $0.00 | $141.27 |
| 2026 | 27907 | NWA - Noxious Weed Assessment | $2.98 | $2.97 | $0.00 | $0.00 | $0.00 | $5.95 |
| 2026 | 27907 | TOTAL: | $1292.21 | $1292.10 | $0.00 | $0.00 | $0.00 | $2584.31 |
|
| 2026 | 27907 | $1292.21 | $1292.10 | $0.00 | $0.00 | $0.00 | $2584.31 |
Statement Details |
| 2025 | 27979 | STATE - STATE LEVY (SCHOOL) | $329.46 | $329.44 | $0.00 | $0.00 | $658.90 | $0.00 |
| 2025 | 27979 | COUNTY - COUNTY LEVIES (CE, DD, VET, MH) | $129.57 | $129.54 | $0.00 | $0.00 | $259.11 | $0.00 |
| 2025 | 27979 | CONSERVE - CONSERVATION FUTURES | $3.89 | $3.88 | $0.00 | $0.00 | $7.77 | $0.00 |
| 2025 | 27979 | CITYPT - CITY OF PT | $186.84 | $186.82 | $0.00 | $0.00 | $373.66 | $0.00 |
| 2025 | 27979 | PORTPT - PORT DISTRICT | $52.87 | $52.86 | $0.00 | $0.00 | $105.73 | $0.00 |
| 2025 | 27979 | PUD1 - PUD #1 | $8.48 | $8.47 | $0.00 | $0.00 | $16.95 | $0.00 |
| 2025 | 27979 | HD2 - HOSP DIST #2 | $7.56 | $7.56 | $0.00 | $0.00 | $15.12 | $0.00 |
| 2025 | 27979 | SD50 - SCHOOL DIST #50 | $240.78 | $240.76 | $0.00 | $0.00 | $481.54 | $0.00 |
| 2025 | 27979 | FD1 - FIRE DISTRICT #1 | $170.96 | $170.96 | $0.00 | $0.00 | $341.92 | $0.00 |
| 2025 | 27979 | EMS1 - FIRE DIST #1 EMS | $65.76 | $65.75 | $0.00 | $0.00 | $131.51 | $0.00 |
| 2025 | 27979 | JCCD - JC Conservation District | $2.55 | $2.55 | $0.00 | $0.00 | $5.10 | $0.00 |
| 2025 | 27979 | NWA - Noxious Weed Assessment | $2.15 | $2.15 | $0.00 | $0.00 | $4.30 | $0.00 |
| 2025 | 27979 | TOTAL: | $1200.87 | $1200.74 | $0.00 | $0.00 | $2401.61 | $0.00 |
|
| 2025 | 27979 | $1200.87 | $1200.74 | $0.00 | $0.00 | $2401.61 | $0.00 |
Statement Details |
| 2024 | 28037 | STATE - STATE LEVY (SCHOOL) | $276.13 | $276.12 | $0.00 | $0.00 | $552.25 | $0.00 |
| 2024 | 28037 | COUNTY - COUNTY LEVIES (CE, DD, VET, MH) | $118.17 | $118.13 | $0.00 | $0.00 | $236.30 | $0.00 |
| 2024 | 28037 | CONSERVE - CONSERVATION FUTURES | $3.55 | $3.54 | $0.00 | $0.00 | $7.09 | $0.00 |
| 2024 | 28037 | CITYPT - CITY OF PT | $168.84 | $168.81 | $0.00 | $0.00 | $337.65 | $0.00 |
| 2024 | 28037 | PORTPT - PORT DISTRICT | $48.81 | $48.80 | $0.00 | $0.00 | $97.61 | $0.00 |
| 2024 | 28037 | PUD1 - PUD #1 | $7.76 | $7.76 | $0.00 | $0.00 | $15.52 | $0.00 |
| 2024 | 28037 | HD2 - HOSP DIST #2 | $6.90 | $6.89 | $0.00 | $0.00 | $13.79 | $0.00 |
| 2024 | 28037 | SD50 - SCHOOL DIST #50 | $223.40 | $223.39 | $0.00 | $0.00 | $446.79 | $0.00 |
| 2024 | 28037 | FD1 - FIRE DISTRICT #1 | $156.23 | $156.23 | $0.00 | $0.00 | $312.46 | $0.00 |
| 2024 | 28037 | EMS1 - FIRE DIST #1 EMS | $59.68 | $59.67 | $0.00 | $0.00 | $119.35 | $0.00 |
| 2024 | 28037 | JCCD - JC Conservation District | $2.55 | $2.55 | $0.00 | $0.00 | $5.10 | $0.00 |
| 2024 | 28037 | NWA - Noxious Weed Assessment | $2.15 | $2.15 | $0.00 | $0.00 | $4.30 | $0.00 |
| 2024 | 28037 | TOTAL: | $1074.17 | $1074.04 | $0.00 | $0.00 | $2148.21 | $0.00 |
|
| 2024 | 28037 | $1074.17 | $1074.04 | $0.00 | $0.00 | $2148.21 | $0.00 |
Statement Details |
| 2023 | 28079 | STATE - STATE LEVY (SCHOOL) | $116.22 | $116.22 | $0.00 | $0.00 | $232.44 | $0.00 |
| 2023 | 28079 | COUNTY - COUNTY LEVIES (CE, DD, VET, MH) | $50.72 | $50.71 | $0.00 | $0.00 | $101.43 | $0.00 |
| 2023 | 28079 | CONSERVE - CONSERVATION FUTURES | $1.52 | $1.52 | $0.00 | $0.00 | $3.04 | $0.00 |
| 2023 | 28079 | CITYPT - CITY OF PT | $71.69 | $71.67 | $0.00 | $0.00 | $143.36 | $0.00 |
| 2023 | 28079 | PORTPT - PORT DISTRICT | $21.36 | $21.36 | $0.00 | $0.00 | $42.72 | $0.00 |
| 2023 | 28079 | PUD1 - PUD #1 | $3.36 | $3.36 | $0.00 | $0.00 | $6.72 | $0.00 |
| 2023 | 28079 | HD2 - HOSP DIST #2 | $2.96 | $2.96 | $0.00 | $0.00 | $5.92 | $0.00 |
| 2023 | 28079 | SD50 - SCHOOL DIST #50 | $92.23 | $92.21 | $0.00 | $0.00 | $184.44 | $0.00 |
| 2023 | 28079 | FD1 - FIRE DISTRICT #1 | $41.78 | $41.78 | $0.00 | $0.00 | $83.56 | $0.00 |
| 2023 | 28079 | EMS1 - FIRE DIST #1 EMS | $17.77 | $17.77 | $0.00 | $0.00 | $35.54 | $0.00 |
| 2023 | 28079 | JCCD - JC Conservation District | $2.55 | $2.55 | $0.00 | $0.00 | $5.10 | $0.00 |
| 2023 | 28079 | NWA - Noxious Weed Assessment | $2.15 | $2.15 | $0.00 | $0.00 | $4.30 | $0.00 |
| 2023 | 28079 | TOTAL: | $424.31 | $424.26 | $0.00 | $0.00 | $848.57 | $0.00 |
|
| 2023 | 28079 | $424.31 | $424.26 | $0.00 | $0.00 | $848.57 | $0.00 |
Values
| (+) Improvement Homesite Value: | + | $0 | |
| (+) Improvement Non-Homesite Value: | + | $214,300 | |
| (+) Land Homesite Value: | + | $0 | |
| (+) Land Non-Homesite Value: | + | $87,556 | |
| (+) Curr Use (HS): | + | $0 | $0 |
| (+) Curr Use (NHS): | + | $0 | $0 |
| | | -------------------------- | |
| (=) Market Value: | = | $301,856 | |
| (–) Productivity Loss: | – | $0 | |
| | | -------------------------- | |
| (=) Subtotal: | = | $301,856 | |
| (+) Senior Appraised Value: | + | $0 | |
| (+) Non-Senior Appraised Value: | + | $301,856 | |
| | | -------------------------- | |
| (=) Total Appraised Value: | = | $301,856 | |
| (–) Senior Exemption Loss: | – | $0 | |
| (–) Exemption Loss: | – | $0 | |
| | | -------------------------- | |
| (=) Taxable Value: | = | $301,856 | |
Taxing Jurisdiction
| Owner: | KIMBERLY A ADAMS | | |
| % Ownership: | 100.0000000000% | | |
| Total Value: | $301,856 | | |
| Tax Area: | 0110 - C-50F1E1H2 |
| CE | COUNTY CURRENT EXPENSE | 0.9034619479 | $301,856 | $301,856 | $272.72 | | |
| CNTYDD | DEVELOPMENTAL DISABILITIES | 0.0052121823 | $301,856 | $301,856 | $1.57 | | |
| CNTYVET | VETERANS RELIEF | 0.0052777810 | $301,856 | $301,856 | $1.59 | | |
| MENTAL | MENTAL HEALTH | 0.0052121823 | $301,856 | $301,856 | $1.57 | | |
| PTGEN | CITY OF PT GENERAL | 0.8551967795 | $301,856 | $301,856 | $258.15 | | |
| PTLLL | CITY OF PT - LIBRARY LID LIFT | 0.4010114288 | $301,856 | $301,856 | $121.05 | | |
| PTMVBOND | CITY OF PT MV BOND | 0.0484717981 | $301,856 | $301,856 | $14.63 | | |
| HOSP2CASH | HOSP DIST #2 GENERAL | 0.0536075306 | $301,856 | $301,856 | $16.18 | | |
| SCH50BOND | SCHOOL DIST #50 BOND 2016 | 0.5377451389 | $301,856 | $301,856 | $162.32 | | |
| SCH50CP | SCHOOL DIST #50 CAP PROJ | 0.4573475088 | $301,856 | $301,856 | $138.05 | | |
| SCH50MO | SCHOOL DIST #50 EP & O | 0.8262822886 | $301,856 | $301,856 | $249.42 | | |
| CONSERVE | CONSERVATION FUTURES | 0.0275621078 | $301,856 | $301,856 | $8.32 | | |
| EMS1 | FIRE DIST #1 EMS | 0.4679948282 | $301,856 | $301,856 | $141.27 | | |
| FD1 | FIRE DIST #1 GENERAL | 1.2171942929 | $301,856 | $301,856 | $367.42 | | |
| PORTPT | PORT OF PT GENERAL | 0.1134941229 | $301,856 | $301,856 | $34.26 | | |
| PORTPTIDD | PORT OF PT IDD 2019 | 0.2577346692 | $301,856 | $301,856 | $77.80 | | |
| PUD1 | PUD #1 GENERAL | 0.0597888892 | $301,856 | $301,856 | $18.05 | | |
| STATE | STATE SCHOOL PART 1 | 1.4940692947 | $301,856 | $301,856 | $450.99 | | |
| STATE2 | STATE SCHOOL PART 2 | 0.8050170049 | $301,856 | $301,856 | $243.00 | | |
| | Total Tax Rate: | 8.5416817766 | | | | | |
| | | | | Taxes w/Current Exemptions: | $2,578.36 | | |
| | | | | Taxes w/o Exemptions: | $2,578.36 | | |
Improvement / Building
| Improvement #1: | Residential Bldg | State Code: | 11 | 912.0 sqft | Value: | $214,300 |
| Bathrooms (#): | 1 (FULL) | Bedrooms (#): | 2 | | Exterior Wall: | SI/ST | Floor Construction: | FRAME | | Foundation: | CONPR | Heating/Cooling: | HPUMP | | Roof Cover: | COMP |   |   |
|
| | Type | Description | Class CD | Sub Class CD | Year Built | Area |
| | MA | Main Area | 4 | 1S | 2022 | 912.0 |
| | HCPOR | House Concrete Porch | 3 | | 2022 | 108.0 |
Sketch
Property Image
Land
| 1 | 6100-1175L | | 0.0000 | 0.00 | 0.00 | 0.00 | 1.00 | $95,000 | $0 |
Roll Value History
| 2026 | N/A | N/A | N/A | N/A | N/A |
| 2025 | $214,300 | $87,556 | $0 | $301,856 | $301,856 |
| 2024 | $180,269 | $94,500 | $0 | $274,769 | $274,769 |
| 2023 | $153,698 | $85,000 | $0 | $238,698 | $238,698 |
| 2022 | $23,734 | $75,000 | $0 | $98,734 | $98,734 |
Deed and Sales History
| 1 | 12/20/2023 | HABAT COVE | HABITAT COVENANT(RESTRICTIONS) | SALISH COAST HOUSING, LLC | KIMBERLY A ADAMS | | | | 0 | 664024 |
| 2 | 12/15/2023 | SWD | Statutory Warranty Deed | HABITAT FOR HUMANITY OF EAST | KIMBERLY A ADAMS | | | $293,000.00 | 142050 | |
| 3 | 12/22/2009 | SWD | Statutory Warranty Deed | TWO WORKINGMEN LLC | HABITAT FOR HUMANITY | 0 | 0 | $0.00 | 113842 | 0 |
| 4 | 02/20/2009 | QCD | Quit Claim Deed | MCLAUGHLIN, A/WISE, C | TWO WORKINGMEN, LLC | 0 | 0 | $0.00 | 112534 | 0 |
| 5 | 02/20/2009 | QCD | Quit Claim Deed | WHIRLWIND II, LLC | TWO WORKINGMEN, LLC | 0 | 0 | $0.00 | 112533 | 0 |
| 6 | 05/03/2004 | SWD | Statutory Warranty Deed | GRASDAL, CARL O/M JUNE | GARRISON, VERNON/HEATHER, | 0 | 0 | $12,500.00 | 100342 | 0 |
Payout Agreement
| No payout information available.. |