Property
Account |
| Property ID: | 38745 | Abbreviated Legal Description: | PHOENIX ADDITION BLK 7 LOTS 1 & 2 |
| Parcel # / Geo ID: | 987300702 | Agent Code: | |
| Type: | Real | | |
| Tax Area: | 0110 - C-50F1E1H2 | Land Use Code | 91 |
| Open Space: | N | DFL | N |
| Historic Property: | N | Remodel Property: | N |
| Multi-Family Redevelopment: | N | | |
| Township: | 30N | Section: | 4 |
| Range: | 1W |
Location |
| Address: | | Mapsco: | 105/076 |
| Neighborhood: | S 1/2 S4-30-1W INC HAMILTON HEIGHTS & PHOENIX | Map ID: | |
| Neighborhood CD: | 6100 |
Owner |
| Name: | ANDREW COCHRANE | Owner ID: | 40607 |
| Mailing Address: | 2343 THOMAS ST PORT TOWNESND, WA 98368-6835 | % Ownership: | 100.0000000000% |
| | | Exemptions: | |
Pay Tax Due
Select the appropriate checkbox next to the year to be paid. Multiple years may be selected.
*Convenience Fee not included
Taxes and Assessment Details
Property Tax Information as of
03/10/2026
Click on "Statement Details" to expand or collapse a tax statement.
* Please enter a valid date ** Please enter a valid date *
Statement Details |
| 2026 | 27923 | STATE - STATE LEVY (SCHOOL) | $44.84 | $44.83 | $0.00 | $0.00 | $0.00 | $89.67 |
| 2026 | 27923 | COUNTY - COUNTY LEVIES (CE, DD, VET, MH) | $17.93 | $17.92 | $0.00 | $0.00 | $0.00 | $35.85 |
| 2026 | 27923 | CONSERVE - CONSERVATION FUTURES | $0.54 | $0.53 | $0.00 | $0.00 | $0.00 | $1.07 |
| 2026 | 27923 | CITYPT - CITY OF PT | $25.45 | $25.43 | $0.00 | $0.00 | $0.00 | $50.88 |
| 2026 | 27923 | PORTPT - PORT DISTRICT | $7.25 | $7.23 | $0.00 | $0.00 | $0.00 | $14.48 |
| 2026 | 27923 | PUD1 - PUD #1 | $1.17 | $1.16 | $0.00 | $0.00 | $0.00 | $2.33 |
| 2026 | 27923 | HD2 - HOSP DIST #2 | $1.05 | $1.04 | $0.00 | $0.00 | $0.00 | $2.09 |
| 2026 | 27923 | SD50 - SCHOOL DIST #50 | $35.53 | $35.51 | $0.00 | $0.00 | $0.00 | $71.04 |
| 2026 | 27923 | FD1 - FIRE DISTRICT #1 | $23.74 | $23.73 | $0.00 | $0.00 | $0.00 | $47.47 |
| 2026 | 27923 | EMS1 - FIRE DIST #1 EMS | $9.13 | $9.12 | $0.00 | $0.00 | $0.00 | $18.25 |
| 2026 | 27923 | JCCD - JC Conservation District | $2.53 | $2.53 | $0.00 | $0.00 | $0.00 | $5.06 |
| 2026 | 27923 | NWA - Noxious Weed Assessment | $2.98 | $2.97 | $0.00 | $0.00 | $0.00 | $5.95 |
| 2026 | 27923 | WAT - Clean Water District | $13.00 | $13.00 | $0.00 | $0.00 | $0.00 | $26.00 |
| 2026 | 27923 | TOTAL: | $185.14 | $185.00 | $0.00 | $0.00 | $0.00 | $370.14 |
|
| 2026 | 27923 | $185.14 | $185.00 | $0.00 | $0.00 | $0.00 | $370.14 |
Statement Details |
| 2025 | 27995 | STATE - STATE LEVY (SCHOOL) | $45.33 | $45.32 | $0.00 | $0.00 | $90.65 | $0.00 |
| 2025 | 27995 | COUNTY - COUNTY LEVIES (CE, DD, VET, MH) | $17.82 | $17.82 | $0.00 | $0.00 | $35.64 | $0.00 |
| 2025 | 27995 | CONSERVE - CONSERVATION FUTURES | $0.54 | $0.53 | $0.00 | $0.00 | $1.07 | $0.00 |
| 2025 | 27995 | CITYPT - CITY OF PT | $25.71 | $25.69 | $0.00 | $0.00 | $51.40 | $0.00 |
| 2025 | 27995 | PORTPT - PORT DISTRICT | $7.27 | $7.27 | $0.00 | $0.00 | $14.54 | $0.00 |
| 2025 | 27995 | PUD1 - PUD #1 | $1.17 | $1.16 | $0.00 | $0.00 | $2.33 | $0.00 |
| 2025 | 27995 | HD2 - HOSP DIST #2 | $1.04 | $1.04 | $0.00 | $0.00 | $2.08 | $0.00 |
| 2025 | 27995 | SD50 - SCHOOL DIST #50 | $33.13 | $33.11 | $0.00 | $0.00 | $66.24 | $0.00 |
| 2025 | 27995 | FD1 - FIRE DISTRICT #1 | $23.52 | $23.52 | $0.00 | $0.00 | $47.04 | $0.00 |
| 2025 | 27995 | EMS1 - FIRE DIST #1 EMS | $9.05 | $9.04 | $0.00 | $0.00 | $18.09 | $0.00 |
| 2025 | 27995 | JCCD - JC Conservation District | $2.53 | $2.53 | $0.00 | $0.00 | $5.06 | $0.00 |
| 2025 | 27995 | NWA - Noxious Weed Assessment | $2.15 | $2.15 | $0.00 | $0.00 | $4.30 | $0.00 |
| 2025 | 27995 | WAT - Clean Water District | $13.00 | $13.00 | $0.00 | $0.00 | $26.00 | $0.00 |
| 2025 | 27995 | TOTAL: | $182.26 | $182.18 | $0.00 | $0.00 | $364.44 | $0.00 |
|
| 2025 | 27995 | $182.26 | $182.18 | $0.00 | $0.00 | $364.44 | $0.00 |
Statement Details |
| 2024 | 28054 | STATE - STATE LEVY (SCHOOL) | $26.03 | $26.02 | $0.00 | $0.00 | $52.05 | $0.00 |
| 2024 | 28054 | COUNTY - COUNTY LEVIES (CE, DD, VET, MH) | $11.16 | $11.13 | $0.00 | $0.00 | $22.29 | $0.00 |
| 2024 | 28054 | CONSERVE - CONSERVATION FUTURES | $0.34 | $0.33 | $0.00 | $0.00 | $0.67 | $0.00 |
| 2024 | 28054 | CITYPT - CITY OF PT | $15.92 | $15.90 | $0.00 | $0.00 | $31.82 | $0.00 |
| 2024 | 28054 | PORTPT - PORT DISTRICT | $4.61 | $4.59 | $0.00 | $0.00 | $9.20 | $0.00 |
| 2024 | 28054 | PUD1 - PUD #1 | $0.73 | $0.73 | $0.00 | $0.00 | $1.46 | $0.00 |
| 2024 | 28054 | HD2 - HOSP DIST #2 | $0.65 | $0.65 | $0.00 | $0.00 | $1.30 | $0.00 |
| 2024 | 28054 | SD50 - SCHOOL DIST #50 | $21.07 | $21.05 | $0.00 | $0.00 | $42.12 | $0.00 |
| 2024 | 28054 | FD1 - FIRE DISTRICT #1 | $14.73 | $14.72 | $0.00 | $0.00 | $29.45 | $0.00 |
| 2024 | 28054 | EMS1 - FIRE DIST #1 EMS | $5.63 | $5.62 | $0.00 | $0.00 | $11.25 | $0.00 |
| 2024 | 28054 | JCCD - JC Conservation District | $2.53 | $2.53 | $0.00 | $0.00 | $5.06 | $0.00 |
| 2024 | 28054 | NWA - Noxious Weed Assessment | $2.15 | $2.15 | $0.00 | $0.00 | $4.30 | $0.00 |
| 2024 | 28054 | WAT - Clean Water District | $12.50 | $12.50 | $0.00 | $0.00 | $25.00 | $0.00 |
| 2024 | 28054 | TOTAL: | $118.05 | $117.92 | $0.00 | $0.00 | $235.97 | $0.00 |
|
| 2024 | 28054 | $118.05 | $117.92 | $0.00 | $0.00 | $235.97 | $0.00 |
Statement Details |
| 2023 | 28096 | STATE - STATE LEVY (SCHOOL) | $26.49 | $26.48 | $0.00 | $0.00 | $52.97 | $0.00 |
| 2023 | 28096 | COUNTY - COUNTY LEVIES (CE, DD, VET, MH) | $11.57 | $11.54 | $0.00 | $0.00 | $23.11 | $0.00 |
| 2023 | 28096 | CONSERVE - CONSERVATION FUTURES | $0.35 | $0.34 | $0.00 | $0.00 | $0.69 | $0.00 |
| 2023 | 28096 | CITYPT - CITY OF PT | $16.34 | $16.33 | $0.00 | $0.00 | $32.67 | $0.00 |
| 2023 | 28096 | PORTPT - PORT DISTRICT | $4.87 | $4.86 | $0.00 | $0.00 | $9.73 | $0.00 |
| 2023 | 28096 | PUD1 - PUD #1 | $0.77 | $0.76 | $0.00 | $0.00 | $1.53 | $0.00 |
| 2023 | 28096 | HD2 - HOSP DIST #2 | $0.68 | $0.67 | $0.00 | $0.00 | $1.35 | $0.00 |
| 2023 | 28096 | SD50 - SCHOOL DIST #50 | $21.03 | $21.00 | $0.00 | $0.00 | $42.03 | $0.00 |
| 2023 | 28096 | FD1 - FIRE DISTRICT #1 | $9.52 | $9.52 | $0.00 | $0.00 | $19.04 | $0.00 |
| 2023 | 28096 | EMS1 - FIRE DIST #1 EMS | $4.05 | $4.05 | $0.00 | $0.00 | $8.10 | $0.00 |
| 2023 | 28096 | JCCD - JC Conservation District | $2.53 | $2.53 | $0.00 | $0.00 | $5.06 | $0.00 |
| 2023 | 28096 | NWA - Noxious Weed Assessment | $2.15 | $2.15 | $0.00 | $0.00 | $4.30 | $0.00 |
| 2023 | 28096 | WAT - Clean Water District | $12.00 | $12.00 | $0.00 | $0.00 | $24.00 | $0.00 |
| 2023 | 28096 | TOTAL: | $112.35 | $112.23 | $0.00 | $0.00 | $224.58 | $0.00 |
|
| 2023 | 28096 | $112.35 | $112.23 | $0.00 | $0.00 | $224.58 | $0.00 |
Values
| (+) Improvement Homesite Value: | + | $0 | |
| (+) Improvement Non-Homesite Value: | + | $0 | |
| (+) Land Homesite Value: | + | $0 | |
| (+) Land Non-Homesite Value: | + | $39,000 | |
| (+) Curr Use (HS): | + | $0 | $0 |
| (+) Curr Use (NHS): | + | $0 | $0 |
| | | -------------------------- | |
| (=) Market Value: | = | $39,000 | |
| (–) Productivity Loss: | – | $0 | |
| | | -------------------------- | |
| (=) Subtotal: | = | $39,000 | |
| (+) Senior Appraised Value: | + | $0 | |
| (+) Non-Senior Appraised Value: | + | $39,000 | |
| | | -------------------------- | |
| (=) Total Appraised Value: | = | $39,000 | |
| (–) Senior Exemption Loss: | – | $0 | |
| (–) Exemption Loss: | – | $0 | |
| | | -------------------------- | |
| (=) Taxable Value: | = | $39,000 | |
Taxing Jurisdiction
| Owner: | ANDREW COCHRANE | | |
| % Ownership: | 100.0000000000% | | |
| Total Value: | $39,000 | | |
| Tax Area: | 0110 - C-50F1E1H2 |
| CE | COUNTY CURRENT EXPENSE | 0.9034619479 | $39,000 | $39,000 | $35.24 | | |
| CNTYDD | DEVELOPMENTAL DISABILITIES | 0.0052121823 | $39,000 | $39,000 | $0.20 | | |
| CNTYVET | VETERANS RELIEF | 0.0052777810 | $39,000 | $39,000 | $0.21 | | |
| MENTAL | MENTAL HEALTH | 0.0052121823 | $39,000 | $39,000 | $0.20 | | |
| PTGEN | CITY OF PT GENERAL | 0.8551967795 | $39,000 | $39,000 | $33.35 | | |
| PTLLL | CITY OF PT - LIBRARY LID LIFT | 0.4010114288 | $39,000 | $39,000 | $15.64 | | |
| PTMVBOND | CITY OF PT MV BOND | 0.0484717981 | $39,000 | $39,000 | $1.89 | | |
| HOSP2CASH | HOSP DIST #2 GENERAL | 0.0536075306 | $39,000 | $39,000 | $2.09 | | |
| SCH50BOND | SCHOOL DIST #50 BOND 2016 | 0.5377451389 | $39,000 | $39,000 | $20.97 | | |
| SCH50CP | SCHOOL DIST #50 CAP PROJ | 0.4573475088 | $39,000 | $39,000 | $17.84 | | |
| SCH50MO | SCHOOL DIST #50 EP & O | 0.8262822886 | $39,000 | $39,000 | $32.23 | | |
| CONSERVE | CONSERVATION FUTURES | 0.0275621078 | $39,000 | $39,000 | $1.07 | | |
| EMS1 | FIRE DIST #1 EMS | 0.4679948282 | $39,000 | $39,000 | $18.25 | | |
| FD1 | FIRE DIST #1 GENERAL | 1.2171942929 | $39,000 | $39,000 | $47.47 | | |
| PORTPT | PORT OF PT GENERAL | 0.1134941229 | $39,000 | $39,000 | $4.43 | | |
| PORTPTIDD | PORT OF PT IDD 2019 | 0.2577346692 | $39,000 | $39,000 | $10.05 | | |
| PUD1 | PUD #1 GENERAL | 0.0597888892 | $39,000 | $39,000 | $2.33 | | |
| STATE | STATE SCHOOL PART 1 | 1.4940692947 | $39,000 | $39,000 | $58.27 | | |
| STATE2 | STATE SCHOOL PART 2 | 0.8050170049 | $39,000 | $39,000 | $31.40 | | |
| | Total Tax Rate: | 8.5416817766 | | | | | |
| | | | | Taxes w/Current Exemptions: | $333.13 | | |
| | | | | Taxes w/o Exemptions: | $333.13 | | |
Improvement / Building
Sketch
| No sketches available for this property. |
Property Image
Land
| 1 | 6100-1175L | | 0.0000 | 0.00 | 0.00 | 0.00 | 2.00 | $39,000 | $0 |
Roll Value History
| 2026 | N/A | N/A | N/A | N/A | N/A |
| 2025 | $0 | $39,000 | $0 | $39,000 | $39,000 |
| 2024 | $0 | $37,800 | $0 | $37,800 | $37,800 |
| 2023 | $0 | $22,500 | $0 | $22,500 | $22,500 |
| 2022 | $0 | $22,500 | $0 | $22,500 | $22,500 |
Deed and Sales History
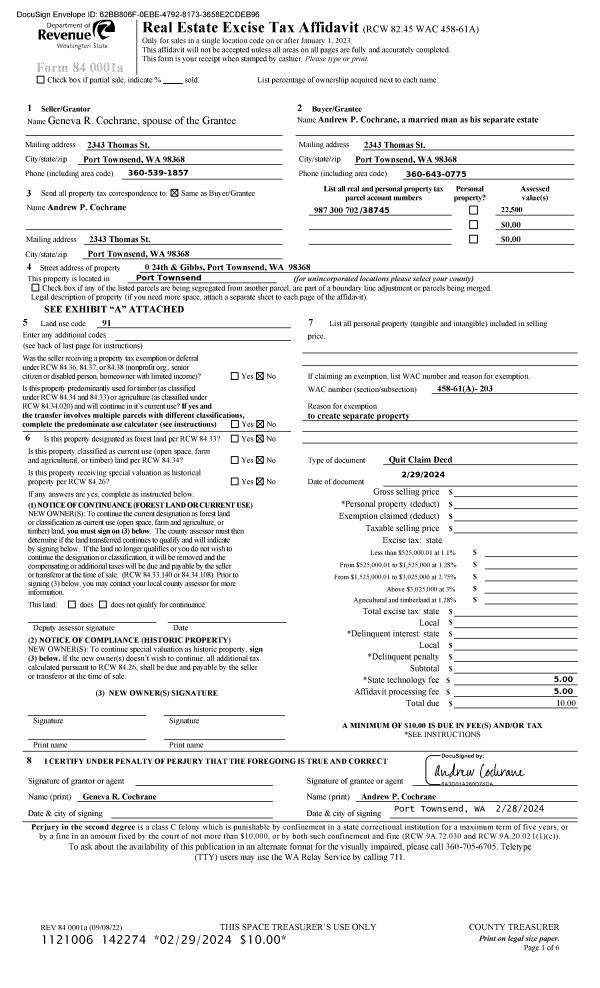
| 1 | 02/29/2024 | QCD | Quit Claim Deed | GENEVA R COCHRANE | ANDREW COCHRANE | | | | 142274 | |
| 2 | 02/28/2024 | SWD | Statutory Warranty Deed | SAVANNAGH K RAYNE | ANDREW COCHRANE | | | $37,500.00 | 142275 | |
| 3 | 11/16/2020 | SWD | Statutory Warranty Deed | STEPHEN E H SLOAN | SAVANNAGH K RAYNE | | | $16,875.00 | 135643 | |
| 4 | 04/04/1997 | SWD | Statutory Warranty Deed | COLLINS, THOMAS R/TRUSTEE | SLOAN, STEPHEN E H/BETTY LOU | 0 | 0 | $5,000.00 | 81792 | 0 |
Payout Agreement
| No payout information available.. |