| 1 | 01/23/2025 | LEASE | Lease or Assignment of Lease | SALISH COAST HOUSING, LLC | ERIN M VICHA | | | | 0 | AF#669749 |
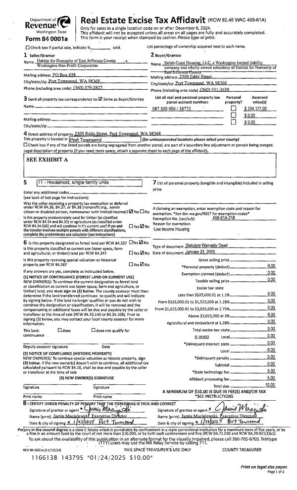
| 2 | 01/23/2025 | SWD | Statutory Warranty Deed | HABITAT FOR HUMANITY OF EAST | ERIN M VICHA | | | $229,000.00 | 143796 | |
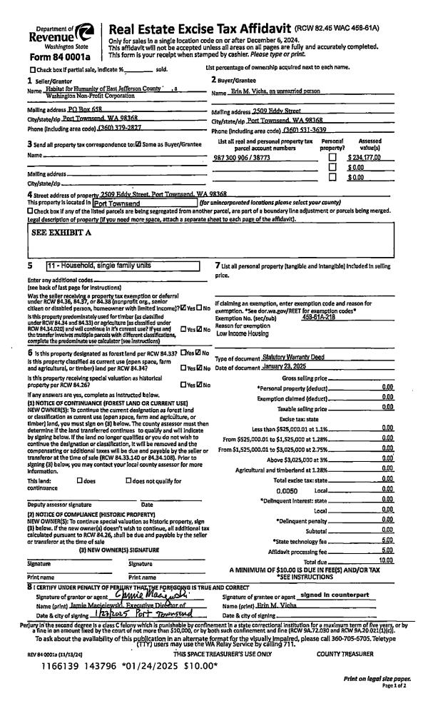
| 3 | 01/11/2022 | SWD | Statutory Warranty Deed | JENNIFER L F BRINCH REVOCABLE LIVING TRUST | HABITAT FOR HUMANITY OF EAST | | | $120,000.00 | 138418 | |
|   | |
| 4 | 06/12/2021 | SWD | Statutory Warranty Deed | JOERN MORTENSEN | JENNIFER L F BRINCH REVOCABLE LIVING TRUST | | | $70,000.00 | 137035 | |
|   | |
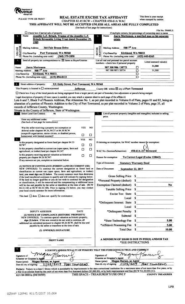
| 5 | 09/22/2017 | SWD | Statutory Warranty Deed | | | | | | 128941 | |
| 6 | 09/22/2017 | SWD | Statutory Warranty Deed | JENNIFER L F BRINCH REVOCABLE LIVING TRUST | JOERN MORTENSEN | | | $70,000.00 | 128642 | |
|   | |
| 7 | 04/18/2013 | BSD | Bargain and Sale Deed | KITSAP BANK | JENNIFER L F BRINCH REVOCABLE LIVING TRUST | | | $24,000.00 | 119124 | |
| 8 | 08/30/2010 | WD | Warranty Deed | DIGIOVANNI, TRACY E | KITSAP BANK | 0 | 0 | $0.00 | 114829 | 0 |