Property
Account |
| Property ID: | 38781 | Abbreviated Legal Description: | PINKS ADDITION BLK 1 LOT 7 W/PTN VAC STS ADJ CERT/LTS OF REC #483562 |
| Parcel # / Geo ID: | 987600107 | Agent Code: | |
| Type: | Real | | |
| Tax Area: | 0110 - C-50F1E1H2 | Land Use Code | 11 |
| Open Space: | N | DFL | N |
| Historic Property: | N | Remodel Property: | N |
| Multi-Family Redevelopment: | N | | |
| Township: | 30N | Section: | 3 |
| Range: | 1W |
Location |
| Address: | | Mapsco: | 106/005 |
| Neighborhood: | EISENBEIS, OC HASTINGS & SUPP, PINKS LESS VICTORIAN VILLAGE | Map ID: | |
| Neighborhood CD: | 6210 |
Owner |
| Name: | BETH LORBER REVOCABLE TRUST | Owner ID: | 101340 |
| Mailing Address: | BETH LORBER TRUSTEE PNC BANK NA TRUSTEE 777 TAYLOR ST PH P1A FORT WORTH, TX 76102-4944 | % Ownership: | 100.0000000000% |
| | | Exemptions: | |
Pay Tax Due
Select the appropriate checkbox next to the year to be paid. Multiple years may be selected.
*Convenience Fee not included
Taxes and Assessment Details
Property Tax Information as of
03/11/2026
Click on "Statement Details" to expand or collapse a tax statement.
* Please enter a valid date ** Please enter a valid date *
Statement Details |
| 2026 | 27959 | STATE - STATE LEVY (SCHOOL) | $90.53 | $90.53 | $0.00 | $0.00 | $0.00 | $181.06 |
| 2026 | 27959 | COUNTY - COUNTY LEVIES (CE, DD, VET, MH) | $36.21 | $36.18 | $0.00 | $0.00 | $0.00 | $72.39 |
| 2026 | 27959 | CONSERVE - CONSERVATION FUTURES | $1.09 | $1.08 | $0.00 | $0.00 | $0.00 | $2.17 |
| 2026 | 27959 | CITYPT - CITY OF PT | $51.38 | $51.37 | $0.00 | $0.00 | $0.00 | $102.75 |
| 2026 | 27959 | PORTPT - PORT DISTRICT | $14.62 | $14.62 | $0.00 | $0.00 | $0.00 | $29.24 |
| 2026 | 27959 | PUD1 - PUD #1 | $2.36 | $2.35 | $0.00 | $0.00 | $0.00 | $4.71 |
| 2026 | 27959 | HD2 - HOSP DIST #2 | $2.11 | $2.11 | $0.00 | $0.00 | $0.00 | $4.22 |
| 2026 | 27959 | SD50 - SCHOOL DIST #50 | $71.73 | $71.71 | $0.00 | $0.00 | $0.00 | $143.44 |
| 2026 | 27959 | FD1 - FIRE DISTRICT #1 | $47.93 | $47.92 | $0.00 | $0.00 | $0.00 | $95.85 |
| 2026 | 27959 | EMS1 - FIRE DIST #1 EMS | $18.43 | $18.42 | $0.00 | $0.00 | $0.00 | $36.85 |
| 2026 | 27959 | JCCD - JC Conservation District | $2.55 | $2.55 | $0.00 | $0.00 | $0.00 | $5.10 |
| 2026 | 27959 | NWA - Noxious Weed Assessment | $2.98 | $2.97 | $0.00 | $0.00 | $0.00 | $5.95 |
| 2026 | 27959 | WAT - Clean Water District | $13.00 | $13.00 | $0.00 | $0.00 | $0.00 | $26.00 |
| 2026 | 27959 | TOTAL: | $354.92 | $354.81 | $0.00 | $0.00 | $0.00 | $709.73 |
|
| 2026 | 27959 | $354.92 | $354.81 | $0.00 | $0.00 | $0.00 | $709.73 |
Statement Details |
| 2025 | 28031 | STATE - STATE LEVY (SCHOOL) | $84.99 | $84.97 | $0.00 | $0.00 | $169.96 | $0.00 |
| 2025 | 28031 | COUNTY - COUNTY LEVIES (CE, DD, VET, MH) | $33.42 | $33.42 | $0.00 | $0.00 | $66.84 | $0.00 |
| 2025 | 28031 | CONSERVE - CONSERVATION FUTURES | $1.00 | $1.00 | $0.00 | $0.00 | $2.00 | $0.00 |
| 2025 | 28031 | CITYPT - CITY OF PT | $48.20 | $48.18 | $0.00 | $0.00 | $96.38 | $0.00 |
| 2025 | 28031 | PORTPT - PORT DISTRICT | $13.64 | $13.63 | $0.00 | $0.00 | $27.27 | $0.00 |
| 2025 | 28031 | PUD1 - PUD #1 | $2.19 | $2.18 | $0.00 | $0.00 | $4.37 | $0.00 |
| 2025 | 28031 | HD2 - HOSP DIST #2 | $1.95 | $1.95 | $0.00 | $0.00 | $3.90 | $0.00 |
| 2025 | 28031 | SD50 - SCHOOL DIST #50 | $62.12 | $62.10 | $0.00 | $0.00 | $124.22 | $0.00 |
| 2025 | 28031 | FD1 - FIRE DISTRICT #1 | $44.10 | $44.10 | $0.00 | $0.00 | $88.20 | $0.00 |
| 2025 | 28031 | EMS1 - FIRE DIST #1 EMS | $16.96 | $16.96 | $0.00 | $0.00 | $33.92 | $0.00 |
| 2025 | 28031 | JCCD - JC Conservation District | $2.55 | $2.55 | $0.00 | $0.00 | $5.10 | $0.00 |
| 2025 | 28031 | NWA - Noxious Weed Assessment | $2.15 | $2.15 | $0.00 | $0.00 | $4.30 | $0.00 |
| 2025 | 28031 | WAT - Clean Water District | $13.00 | $13.00 | $0.00 | $0.00 | $26.00 | $0.00 |
| 2025 | 28031 | TOTAL: | $326.27 | $326.19 | $0.00 | $0.00 | $652.46 | $0.00 |
|
| 2025 | 28031 | $326.27 | $326.19 | $0.00 | $0.00 | $652.46 | $0.00 |
Statement Details |
| 2024 | 28090 | STATE - STATE LEVY (SCHOOL) | $78.08 | $78.08 | $0.00 | $0.00 | $156.16 | $0.00 |
| 2024 | 28090 | COUNTY - COUNTY LEVIES (CE, DD, VET, MH) | $33.42 | $33.41 | $0.00 | $0.00 | $66.83 | $0.00 |
| 2024 | 28090 | CONSERVE - CONSERVATION FUTURES | $1.00 | $1.00 | $0.00 | $0.00 | $2.00 | $0.00 |
| 2024 | 28090 | CITYPT - CITY OF PT | $47.74 | $47.74 | $0.00 | $0.00 | $95.48 | $0.00 |
| 2024 | 28090 | PORTPT - PORT DISTRICT | $13.81 | $13.79 | $0.00 | $0.00 | $27.60 | $0.00 |
| 2024 | 28090 | PUD1 - PUD #1 | $2.20 | $2.19 | $0.00 | $0.00 | $4.39 | $0.00 |
| 2024 | 28090 | HD2 - HOSP DIST #2 | $1.95 | $1.95 | $0.00 | $0.00 | $3.90 | $0.00 |
| 2024 | 28090 | SD50 - SCHOOL DIST #50 | $63.19 | $63.16 | $0.00 | $0.00 | $126.35 | $0.00 |
| 2024 | 28090 | FD1 - FIRE DISTRICT #1 | $44.18 | $44.18 | $0.00 | $0.00 | $88.36 | $0.00 |
| 2024 | 28090 | EMS1 - FIRE DIST #1 EMS | $16.88 | $16.87 | $0.00 | $0.00 | $33.75 | $0.00 |
| 2024 | 28090 | JCCD - JC Conservation District | $2.55 | $2.55 | $0.00 | $0.00 | $5.10 | $0.00 |
| 2024 | 28090 | NWA - Noxious Weed Assessment | $2.15 | $2.15 | $0.00 | $0.00 | $4.30 | $0.00 |
| 2024 | 28090 | WAT - Clean Water District | $12.50 | $12.50 | $0.00 | $0.00 | $25.00 | $0.00 |
| 2024 | 28090 | TOTAL: | $319.65 | $319.57 | $0.00 | $0.00 | $639.22 | $0.00 |
|
| 2024 | 28090 | $319.65 | $319.57 | $0.00 | $0.00 | $639.22 | $0.00 |
Statement Details |
| 2023 | 28132 | STATE - STATE LEVY (SCHOOL) | $70.63 | $70.62 | $0.00 | $0.00 | $141.25 | $0.00 |
| 2023 | 28132 | COUNTY - COUNTY LEVIES (CE, DD, VET, MH) | $30.83 | $30.80 | $0.00 | $0.00 | $61.63 | $0.00 |
| 2023 | 28132 | CONSERVE - CONSERVATION FUTURES | $0.93 | $0.92 | $0.00 | $0.00 | $1.85 | $0.00 |
| 2023 | 28132 | CITYPT - CITY OF PT | $43.56 | $43.56 | $0.00 | $0.00 | $87.12 | $0.00 |
| 2023 | 28132 | PORTPT - PORT DISTRICT | $12.99 | $12.97 | $0.00 | $0.00 | $25.96 | $0.00 |
| 2023 | 28132 | PUD1 - PUD #1 | $2.05 | $2.04 | $0.00 | $0.00 | $4.09 | $0.00 |
| 2023 | 28132 | HD2 - HOSP DIST #2 | $1.80 | $1.79 | $0.00 | $0.00 | $3.59 | $0.00 |
| 2023 | 28132 | SD50 - SCHOOL DIST #50 | $56.05 | $56.04 | $0.00 | $0.00 | $112.09 | $0.00 |
| 2023 | 28132 | FD1 - FIRE DISTRICT #1 | $25.39 | $25.39 | $0.00 | $0.00 | $50.78 | $0.00 |
| 2023 | 28132 | EMS1 - FIRE DIST #1 EMS | $10.80 | $10.80 | $0.00 | $0.00 | $21.60 | $0.00 |
| 2023 | 28132 | JCCD - JC Conservation District | $2.55 | $2.55 | $0.00 | $0.00 | $5.10 | $0.00 |
| 2023 | 28132 | NWA - Noxious Weed Assessment | $2.15 | $2.15 | $0.00 | $0.00 | $4.30 | $0.00 |
| 2023 | 28132 | WAT - Clean Water District | $12.00 | $12.00 | $0.00 | $0.00 | $24.00 | $0.00 |
| 2023 | 28132 | TOTAL: | $271.73 | $271.63 | $0.00 | $0.00 | $543.36 | $0.00 |
|
| 2023 | 28132 | $271.73 | $271.63 | $0.00 | $0.00 | $543.36 | $0.00 |
Values
| (+) Improvement Homesite Value: | + | $0 | |
| (+) Improvement Non-Homesite Value: | + | $0 | |
| (+) Land Homesite Value: | + | $0 | |
| (+) Land Non-Homesite Value: | + | $78,750 | |
| (+) Curr Use (HS): | + | $0 | $0 |
| (+) Curr Use (NHS): | + | $0 | $0 |
| | | -------------------------- | |
| (=) Market Value: | = | $78,750 | |
| (–) Productivity Loss: | – | $0 | |
| | | -------------------------- | |
| (=) Subtotal: | = | $78,750 | |
| (+) Senior Appraised Value: | + | $0 | |
| (+) Non-Senior Appraised Value: | + | $78,750 | |
| | | -------------------------- | |
| (=) Total Appraised Value: | = | $78,750 | |
| (–) Senior Exemption Loss: | – | $0 | |
| (–) Exemption Loss: | – | $0 | |
| | | -------------------------- | |
| (=) Taxable Value: | = | $78,750 | |
Taxing Jurisdiction
| Owner: | BETH LORBER REVOCABLE TRUST | | |
| % Ownership: | 100.0000000000% | | |
| Total Value: | N/A | | |
| Tax Area: | 0110 - C-50F1E1H2 |
| CE | COUNTY CURRENT EXPENSE | N/A | N/A | N/A | N/A | | |
| CNTYDD | DEVELOPMENTAL DISABILITIES | N/A | N/A | N/A | N/A | | |
| CNTYVET | VETERANS RELIEF | N/A | N/A | N/A | N/A | | |
| MENTAL | MENTAL HEALTH | N/A | N/A | N/A | N/A | | |
| PTGEN | CITY OF PT GENERAL | N/A | N/A | N/A | N/A | | |
| PTLLL | CITY OF PT - LIBRARY LID LIFT | N/A | N/A | N/A | N/A | | |
| PTMVBOND | CITY OF PT MV BOND | N/A | N/A | N/A | N/A | | |
| HOSP2CASH | HOSP DIST #2 GENERAL | N/A | N/A | N/A | N/A | | |
| SCH50BOND | SCHOOL DIST #50 BOND 2016 | N/A | N/A | N/A | N/A | | |
| SCH50CP | SCHOOL DIST #50 CAP PROJ | N/A | N/A | N/A | N/A | | |
| SCH50MO | SCHOOL DIST #50 EP & O | N/A | N/A | N/A | N/A | | |
| CONSERVE | CONSERVATION FUTURES | N/A | N/A | N/A | N/A | | |
| EMS1 | FIRE DIST #1 EMS | N/A | N/A | N/A | N/A | | |
| FD1 | FIRE DIST #1 GENERAL | N/A | N/A | N/A | N/A | | |
| PORTPT | PORT OF PT GENERAL | N/A | N/A | N/A | N/A | | |
| PORTPTIDD | PORT OF PT IDD 2019 | N/A | N/A | N/A | N/A | | |
| PUD1 | PUD #1 GENERAL | N/A | N/A | N/A | N/A | | |
| STATE | STATE SCHOOL PART 1 | N/A | N/A | N/A | N/A | | |
| STATE2 | STATE SCHOOL PART 2 | N/A | N/A | N/A | N/A | | |
| | Total Tax Rate: | N/A | | | | | |
| | | | | Taxes w/Current Exemptions: | N/A | | |
| | | | | Taxes w/o Exemptions: | N/A | | |
Improvement / Building
Sketch
| No sketches available for this property. |
Property Image
Land
| 1 | 6210-1185L | | 0.0000 | 0.00 | 0.00 | 0.00 | 1.00 | $78,750 | $0 |
Roll Value History
| 2026 | N/A | N/A | N/A | N/A | N/A |
| 2025 | $0 | $78,750 | $0 | $78,750 | $78,750 |
| 2024 | $0 | $70,875 | $0 | $70,875 | $70,875 |
| 2023 | $0 | $67,500 | $0 | $67,500 | $67,500 |
| 2022 | $0 | $60,000 | $0 | $60,000 | $60,000 |
Deed and Sales History
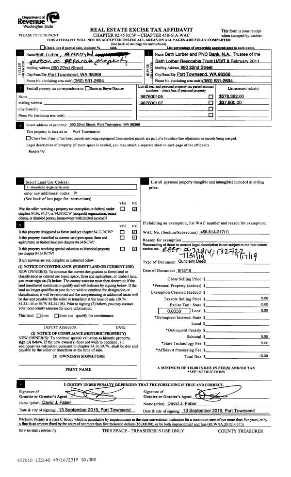
| 1 | 09/13/2019 | QCD | Quit Claim Deed | | | | | | 133140 | |
| 2 | 07/30/2019 | QCD | Quit Claim Deed | | | | | | 132814 | |
| 3 | 07/15/2019 | QCD | Quit Claim Deed | BETH LORBER | BETH LORBER REVOCABLE TRUST | | | | 132722 | |
| 4 | 03/22/2012 | SWD | Statutory Warranty Deed | FRANK, ALLEN R, OLSON, JE | LORBER, BETH G | 0 | 0 | $195,000.00 | 117352 | 0 |
|   | |
| 5 | 03/22/2012 | QCD | Quit Claim Deed | BONYUN, PETER R | LORBER, BETH G | 0 | 0 | $0.00 | 117353 | 0 |
Payout Agreement
| No payout information available.. |