Property
Account |
| Property ID: | 38806 | Abbreviated Legal Description: | PLEASANT HARBOR BLK 1 LOT 9 |
| Parcel # / Geo ID: | 988200109 | Agent Code: | |
| Type: | Real | | |
| Tax Area: | 0441 - 1-46F4E4H2C1L1P2 | Land Use Code | 11 |
| Open Space: | N | DFL | N |
| Historic Property: | N | Remodel Property: | N |
| Multi-Family Redevelopment: | N | | |
| Township: | 25N | Section: | 10 |
| Range: | 2W |
Location |
| Address: | 461 PLEASANT HARBOR RD BRINNON, WA 98320 | Mapsco: | 025/038 |
| Neighborhood: | S9-11 T25 R2W+SUNNYSLOPE+PLEASANT HBR+CEDAR COVE/ELLIS/LENTI | Map ID: | |
| Neighborhood CD: | 1220 |
Owner |
| Name: | BREANNE & PERRY MCKENZIE JR | Owner ID: | 113104 |
| Mailing Address: | PO BOX 1723 MILTON, WA 98354-1723 | % Ownership: | 100.0000000000% |
| | | Exemptions: | |
Pay Tax Due
Select the appropriate checkbox next to the year to be paid. Multiple years may be selected.
*Convenience Fee not included
Taxes and Assessment Details
Property Tax Information as of
03/10/2026
Click on "Statement Details" to expand or collapse a tax statement.
* Please enter a valid date ** Please enter a valid date *
Statement Details |
| 2026 | 27984 | STATE - STATE LEVY (SCHOOL) | $514.41 | $514.41 | $0.00 | $0.00 | $0.00 | $1028.82 |
| 2026 | 27984 | COUNTY - COUNTY LEVIES (CE, DD, VET, MH) | $205.67 | $205.64 | $0.00 | $0.00 | $0.00 | $411.31 |
| 2026 | 27984 | CONSERVE - CONSERVATION FUTURES | $6.17 | $6.16 | $0.00 | $0.00 | $0.00 | $12.33 |
| 2026 | 27984 | COROADS - COUNTY ROADS (ROADS, DIV TO CE) | $165.91 | $165.91 | $0.00 | $0.00 | $0.00 | $331.82 |
| 2026 | 27984 | PORTPT - PORT DISTRICT | $83.07 | $83.05 | $0.00 | $0.00 | $0.00 | $166.12 |
| 2026 | 27984 | PUD1 - PUD #1 | $13.38 | $13.37 | $0.00 | $0.00 | $0.00 | $26.75 |
| 2026 | 27984 | LIB1 - LIBRARY DIST #1 | $64.19 | $64.19 | $0.00 | $0.00 | $0.00 | $128.38 |
| 2026 | 27984 | HD2 - HOSP DIST #2 | $12.00 | $11.99 | $0.00 | $0.00 | $0.00 | $23.99 |
| 2026 | 27984 | SD46 - SCHOOL DIST #46 | $154.17 | $154.16 | $0.00 | $0.00 | $0.00 | $308.33 |
| 2026 | 27984 | FD4 - FIRE DISTRICT #4 | $373.39 | $373.38 | $0.00 | $0.00 | $0.00 | $746.77 |
| 2026 | 27984 | EMS4 - FIRE DIST #4 EMS | $103.91 | $103.91 | $0.00 | $0.00 | $0.00 | $207.82 |
| 2026 | 27984 | CEM1 - CEMETERY DIST #1 | $2.40 | $2.40 | $0.00 | $0.00 | $0.00 | $4.80 |
| 2026 | 27984 | FP - DNR Forest Fire Protection Assmt | $8.50 | $8.50 | $0.00 | $0.00 | $0.00 | $17.00 |
| 2026 | 27984 | FPLCA - DNR Landowner Contingency Assmt | $3.00 | $3.00 | $0.00 | $0.00 | $0.00 | $6.00 |
| 2026 | 27984 | JCCD - JC Conservation District | $2.55 | $2.55 | $0.00 | $0.00 | $0.00 | $5.10 |
| 2026 | 27984 | NWA - Noxious Weed Assessment | $2.98 | $2.97 | $0.00 | $0.00 | $0.00 | $5.95 |
| 2026 | 27984 | OSS - On Site Septic | $23.10 | $23.10 | $0.00 | $0.00 | $0.00 | $46.20 |
| 2026 | 27984 | WAT - Clean Water District | $13.00 | $13.00 | $0.00 | $0.00 | $0.00 | $26.00 |
| 2026 | 27984 | FP ADMIN - FP ADMIN | $0.50 | $0.00 | $0.00 | $0.00 | $0.00 | $0.50 |
| 2026 | 27984 | TOTAL: | $1752.30 | $1751.69 | $0.00 | $0.00 | $0.00 | $3503.99 |
|
| 2026 | 27984 | $1752.30 | $1751.69 | $0.00 | $0.00 | $0.00 | $3503.99 |
Statement Details |
| 2025 | 28056 | STATE - STATE LEVY (SCHOOL) | $513.22 | $513.22 | $0.00 | $0.00 | $1026.44 | $0.00 |
| 2025 | 28056 | COUNTY - COUNTY LEVIES (CE, DD, VET, MH) | $201.82 | $201.81 | $0.00 | $0.00 | $403.63 | $0.00 |
| 2025 | 28056 | CONSERVE - CONSERVATION FUTURES | $6.05 | $6.05 | $0.00 | $0.00 | $12.10 | $0.00 |
| 2025 | 28056 | COROADS - COUNTY ROADS (ROADS, DIV TO CE) | $161.70 | $161.68 | $0.00 | $0.00 | $323.38 | $0.00 |
| 2025 | 28056 | PORTPT - PORT DISTRICT | $82.36 | $82.35 | $0.00 | $0.00 | $164.71 | $0.00 |
| 2025 | 28056 | PUD1 - PUD #1 | $13.21 | $13.20 | $0.00 | $0.00 | $26.41 | $0.00 |
| 2025 | 28056 | LIB1 - LIBRARY DIST #1 | $62.56 | $62.55 | $0.00 | $0.00 | $125.11 | $0.00 |
| 2025 | 28056 | HD2 - HOSP DIST #2 | $11.78 | $11.77 | $0.00 | $0.00 | $23.55 | $0.00 |
| 2025 | 28056 | SD46 - SCHOOL DIST #46 | $135.65 | $135.64 | $0.00 | $0.00 | $271.29 | $0.00 |
| 2025 | 28056 | FD4 - FIRE DISTRICT #4 | $375.94 | $375.92 | $0.00 | $0.00 | $751.86 | $0.00 |
| 2025 | 28056 | EMS4 - FIRE DIST #4 EMS | $104.30 | $104.30 | $0.00 | $0.00 | $208.60 | $0.00 |
| 2025 | 28056 | CEM1 - CEMETERY DIST #1 | $2.42 | $2.41 | $0.00 | $0.00 | $4.83 | $0.00 |
| 2025 | 28056 | FP - DNR Forest Fire Protection Assmt | $8.50 | $8.50 | $0.00 | $0.00 | $17.00 | $0.00 |
| 2025 | 28056 | FPLCA - DNR Landowner Contingency Assmt | $3.00 | $3.00 | $0.00 | $0.00 | $6.00 | $0.00 |
| 2025 | 28056 | JCCD - JC Conservation District | $2.55 | $2.55 | $0.00 | $0.00 | $5.10 | $0.00 |
| 2025 | 28056 | NWA - Noxious Weed Assessment | $2.15 | $2.15 | $0.00 | $0.00 | $4.30 | $0.00 |
| 2025 | 28056 | OSS - On Site Septic | $21.50 | $21.50 | $0.00 | $0.00 | $43.00 | $0.00 |
| 2025 | 28056 | WAT - Clean Water District | $13.00 | $13.00 | $0.00 | $0.00 | $26.00 | $0.00 |
| 2025 | 28056 | FP ADMIN - FP ADMIN | $0.50 | $0.00 | $0.00 | $0.00 | $0.50 | $0.00 |
| 2025 | 28056 | TOTAL: | $1722.21 | $1721.60 | $0.00 | $0.00 | $3443.81 | $0.00 |
|
| 2025 | 28056 | $1722.21 | $1721.60 | $0.00 | $0.00 | $3443.81 | $0.00 |
Statement Details |
| 2024 | 28115 | STATE - STATE LEVY (SCHOOL) | $474.04 | $474.03 | $0.00 | $0.00 | $948.07 | $0.00 |
| 2024 | 28115 | COUNTY - COUNTY LEVIES (CE, DD, VET, MH) | $202.86 | $202.83 | $0.00 | $0.00 | $405.69 | $0.00 |
| 2024 | 28115 | CONSERVE - CONSERVATION FUTURES | $6.09 | $6.08 | $0.00 | $0.00 | $12.17 | $0.00 |
| 2024 | 28115 | COROADS - COUNTY ROADS (ROADS, DIV TO CE) | $163.23 | $163.22 | $0.00 | $0.00 | $326.45 | $0.00 |
| 2024 | 28115 | PORTPT - PORT DISTRICT | $83.79 | $83.77 | $0.00 | $0.00 | $167.56 | $0.00 |
| 2024 | 28115 | PUD1 - PUD #1 | $13.33 | $13.32 | $0.00 | $0.00 | $26.65 | $0.00 |
| 2024 | 28115 | LIB1 - LIBRARY DIST #1 | $63.15 | $63.15 | $0.00 | $0.00 | $126.30 | $0.00 |
| 2024 | 28115 | HD2 - HOSP DIST #2 | $11.84 | $11.83 | $0.00 | $0.00 | $23.67 | $0.00 |
| 2024 | 28115 | SD46 - SCHOOL DIST #46 | $142.31 | $142.31 | $0.00 | $0.00 | $284.62 | $0.00 |
| 2024 | 28115 | FD4 - FIRE DISTRICT #4 | $367.62 | $367.60 | $0.00 | $0.00 | $735.22 | $0.00 |
| 2024 | 28115 | EMS4 - FIRE DIST #4 EMS | $102.45 | $102.44 | $0.00 | $0.00 | $204.89 | $0.00 |
| 2024 | 28115 | CEM1 - CEMETERY DIST #1 | $2.40 | $2.39 | $0.00 | $0.00 | $4.79 | $0.00 |
| 2024 | 28115 | FP - DNR Forest Fire Protection Assmt | $8.50 | $8.50 | $0.00 | $0.00 | $17.00 | $0.00 |
| 2024 | 28115 | FPLCA - DNR Landowner Contingency Assmt | $3.00 | $3.00 | $0.00 | $0.00 | $6.00 | $0.00 |
| 2024 | 28115 | JCCD - JC Conservation District | $2.55 | $2.55 | $0.00 | $0.00 | $5.10 | $0.00 |
| 2024 | 28115 | NWA - Noxious Weed Assessment | $2.15 | $2.15 | $0.00 | $0.00 | $4.30 | $0.00 |
| 2024 | 28115 | OSS - On Site Septic | $21.00 | $21.00 | $0.00 | $0.00 | $42.00 | $0.00 |
| 2024 | 28115 | WAT - Clean Water District | $12.50 | $12.50 | $0.00 | $0.00 | $25.00 | $0.00 |
| 2024 | 28115 | FP ADMIN - FP ADMIN | $0.50 | $0.00 | $0.00 | $0.00 | $0.50 | $0.00 |
| 2024 | 28115 | TOTAL: | $1683.31 | $1682.67 | $0.00 | $0.00 | $3365.98 | $0.00 |
|
| 2024 | 28115 | $1683.31 | $1682.67 | $0.00 | $0.00 | $3365.98 | $0.00 |
Statement Details |
| 2023 | 28157 | STATE - STATE LEVY (SCHOOL) | $446.25 | $446.25 | $0.00 | $0.00 | $892.50 | $0.00 |
| 2023 | 28157 | COUNTY - COUNTY LEVIES (CE, DD, VET, MH) | $194.74 | $194.72 | $0.00 | $0.00 | $389.46 | $0.00 |
| 2023 | 28157 | CONSERVE - CONSERVATION FUTURES | $5.84 | $5.84 | $0.00 | $0.00 | $11.68 | $0.00 |
| 2023 | 28157 | COROADS - COUNTY ROADS (ROADS, DIV TO CE) | $157.56 | $157.54 | $0.00 | $0.00 | $315.10 | $0.00 |
| 2023 | 28157 | PORTPT - PORT DISTRICT | $82.04 | $82.02 | $0.00 | $0.00 | $164.06 | $0.00 |
| 2023 | 28157 | PUD1 - PUD #1 | $12.91 | $12.91 | $0.00 | $0.00 | $25.82 | $0.00 |
| 2023 | 28157 | LIB1 - LIBRARY DIST #1 | $60.96 | $60.95 | $0.00 | $0.00 | $121.91 | $0.00 |
| 2023 | 28157 | HD2 - HOSP DIST #2 | $11.37 | $11.36 | $0.00 | $0.00 | $22.73 | $0.00 |
| 2023 | 28157 | SD46 - SCHOOL DIST #46 | $145.65 | $145.65 | $0.00 | $0.00 | $291.30 | $0.00 |
| 2023 | 28157 | FD4 - FIRE DISTRICT #4 | $242.19 | $242.18 | $0.00 | $0.00 | $484.37 | $0.00 |
| 2023 | 28157 | EMS4 - FIRE DIST #4 EMS | $68.88 | $68.87 | $0.00 | $0.00 | $137.75 | $0.00 |
| 2023 | 28157 | CEM1 - CEMETERY DIST #1 | $2.44 | $2.43 | $0.00 | $0.00 | $4.87 | $0.00 |
| 2023 | 28157 | FP - DNR Forest Fire Protection Assmt | $8.50 | $8.50 | $0.00 | $0.00 | $17.00 | $0.00 |
| 2023 | 28157 | FPLCA - DNR Landowner Contingency Assmt | $3.00 | $3.00 | $0.00 | $0.00 | $6.00 | $0.00 |
| 2023 | 28157 | JCCD - JC Conservation District | $2.55 | $2.55 | $0.00 | $0.00 | $5.10 | $0.00 |
| 2023 | 28157 | NWA - Noxious Weed Assessment | $2.15 | $2.15 | $0.00 | $0.00 | $4.30 | $0.00 |
| 2023 | 28157 | OSS - On Site Septic | $20.50 | $20.50 | $0.00 | $0.00 | $41.00 | $0.00 |
| 2023 | 28157 | WAT - Clean Water District | $12.00 | $12.00 | $0.00 | $0.00 | $24.00 | $0.00 |
| 2023 | 28157 | FP ADMIN - FP ADMIN | $0.50 | $0.00 | $0.00 | $0.00 | $0.50 | $0.00 |
| 2023 | 28157 | TOTAL: | $1480.03 | $1479.42 | $0.00 | $0.00 | $2959.45 | $0.00 |
|
| 2023 | 28157 | $1480.03 | $1479.42 | $0.00 | $0.00 | $2959.45 | $0.00 |
Values
| (+) Improvement Homesite Value: | + | $0 | |
| (+) Improvement Non-Homesite Value: | + | $148,488 | |
| (+) Land Homesite Value: | + | $0 | |
| (+) Land Non-Homesite Value: | + | $299,000 | |
| (+) Curr Use (HS): | + | $0 | $0 |
| (+) Curr Use (NHS): | + | $0 | $0 |
| | | -------------------------- | |
| (=) Market Value: | = | $447,488 | |
| (–) Productivity Loss: | – | $0 | |
| | | -------------------------- | |
| (=) Subtotal: | = | $447,488 | |
| (+) Senior Appraised Value: | + | $0 | |
| (+) Non-Senior Appraised Value: | + | $447,488 | |
| | | -------------------------- | |
| (=) Total Appraised Value: | = | $447,488 | |
| (–) Senior Exemption Loss: | – | $0 | |
| (–) Exemption Loss: | – | $0 | |
| | | -------------------------- | |
| (=) Taxable Value: | = | $447,488 | |
Taxing Jurisdiction
| Owner: | BREANNE & PERRY MCKENZIE JR | | |
| % Ownership: | 100.0000000000% | | |
| Total Value: | $447,488 | | |
| Tax Area: | 0441 - 1-46F4E4H2C1L1P2 |
| CE | COUNTY CURRENT EXPENSE | 0.9034619479 | $447,488 | $447,488 | $404.29 | | |
| CNTYDD | DEVELOPMENTAL DISABILITIES | 0.0052121823 | $447,488 | $447,488 | $2.33 | | |
| CNTYVET | VETERANS RELIEF | 0.0052777810 | $447,488 | $447,488 | $2.36 | | |
| MENTAL | MENTAL HEALTH | 0.0052121823 | $447,488 | $447,488 | $2.33 | | |
| ROADS | COUNTY ROADS | 0.7415066410 | $447,488 | $447,488 | $331.82 | | |
| ROADSCU | COUNTY ROADS TO CUR EXP | 0.0000000000 | $447,488 | $447,488 | $0.00 | | |
| HOSP2CASH | HOSP DIST #2 GENERAL | 0.0536075306 | $447,488 | $447,488 | $23.99 | | |
| SCH46MO | SCHOOL DIST #46 EP & O | 0.6890207067 | $447,488 | $447,488 | $308.33 | | |
| CEM1 | CEMETERY DIST #1 GENERAL | 0.0107168292 | $447,488 | $447,488 | $4.80 | | |
| CONSERVE | CONSERVATION FUTURES | 0.0275621078 | $447,488 | $447,488 | $12.33 | | |
| EMS4 | FIRE DIST #4 EMS | 0.4644216158 | $447,488 | $447,488 | $207.82 | | |
| FD4 | FIRE DIST #4 GENERAL | 1.3939598390 | $447,488 | $447,488 | $623.78 | | |
| FD4BOND | FIRE DIST #4 BOND 2019 | 0.2748466981 | $447,488 | $447,488 | $122.99 | | |
| LIB1 | LIBRARY DIST #1 GENERAL | 0.2868827388 | $447,488 | $447,488 | $128.38 | | |
| PORTPT | PORT OF PT GENERAL | 0.1134941229 | $447,488 | $447,488 | $50.79 | | |
| PORTPTIDD | PORT OF PT IDD 2019 | 0.2577346692 | $447,488 | $447,488 | $115.33 | | |
| PUD1 | PUD #1 GENERAL | 0.0597888892 | $447,488 | $447,488 | $26.75 | | |
| STATE | STATE SCHOOL PART 1 | 1.4940692947 | $447,488 | $447,488 | $668.58 | | |
| STATE2 | STATE SCHOOL PART 2 | 0.8050170049 | $447,488 | $447,488 | $360.24 | | |
| | Total Tax Rate: | 7.5917927814 | | | | | |
| | | | | Taxes w/Current Exemptions: | $3,397.24 | | |
| | | | | Taxes w/o Exemptions: | $3,397.24 | | |
Improvement / Building
| Improvement #1: | Residential Bldg | State Code: | 11 | 660.0 sqft | Value: | $148,488 |
| Bathrooms (#): | 1 (FULL) | Bedrooms (#): | 1 | | Exterior Wall: | SI/ST | Fireplace: | WD ST-GOOD | | Floor Construction: | FRAME | Foundation: | CONPR | | Heating/Cooling: | ELBB | Roof Cover: | COMP |
|
| | Type | Description | Class CD | Sub Class CD | Year Built | Area |
| | MA | Main Area | 3 | 1S | 1983 | 660.0 |
| | PATIO | House Patio | 3 | * | 1983 | 90.0 |
| | HDECK | House Deck | 3 | * | 1983 | 260.0 |
| | SHED | Shed (Table Not Dep) | 3 | * | 1983 | 120.0 |
| | OTHER | Other | * | * | 1983 | 0.0 |
| | BSMTF | House basement finished | 2 | * | 1983 | 496.0 |
Sketch
Property Image
Land
| 1 | 1220-1125L | | 0.0000 | 0.00 | 0.00 | 0.00 | 1.00 | $299,000 | $0 |
Roll Value History
| 2026 | N/A | N/A | N/A | N/A | N/A |
| 2025 | $148,488 | $299,000 | $0 | $447,488 | $447,488 |
| 2024 | $142,032 | $286,000 | $0 | $428,032 | $428,032 |
| 2023 | $142,032 | $267,750 | $0 | $409,782 | $409,782 |
| 2022 | $129,120 | $250,000 | $0 | $379,120 | $379,120 |
Deed and Sales History
| 1 | 08/05/2025 | SWD | Statutory Warranty Deed | LENA M SCHULTZ | BREANNE & PERRY MCKENZIE JR | | | $525,000.00 | 144720 | |
| 2 | 11/08/2024 | TRED | Trustee Deed | BARBRA J GRABER DISCLAIMER TRUST | LENA M SCHULTZ | | | | 143592 | |
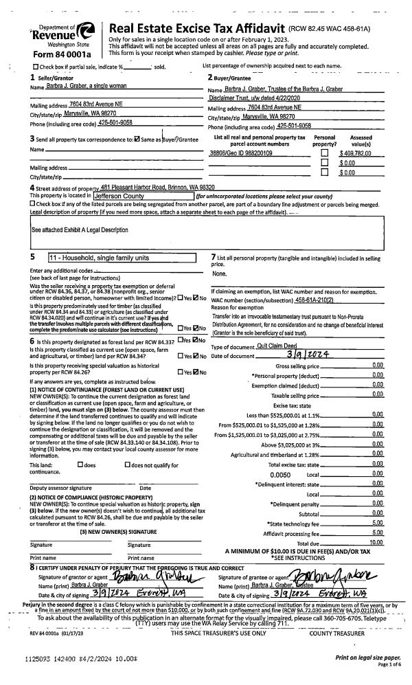
| 3 | 03/09/2024 | PRD | Personal Representatives Deed | BARBRA J GRABER | BARBRA J GRABER DISCLAIMER TRUST | | | | 142400 | |
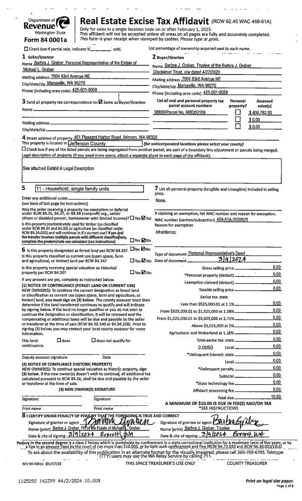
| 4 | 03/09/2024 | PRD | Personal Representatives Deed | BARBRA J GRABER PERSONAL REPRESENTATIVE | BARBRA J GRABER DISCLAIMER TRUST | | | | 142399 | |
Payout Agreement
| No payout information available.. |