Property
Account |
| Property ID: | 38808 | Abbreviated Legal Description: | PLEASANT HARBOR BLK 1 LOT 11 |
| Parcel # / Geo ID: | 988200111 | Agent Code: | |
| Type: | Real | | |
| Tax Area: | 0441 - 1-46F4E4H2C1L1P2 | Land Use Code | 18 |
| Open Space: | N | DFL | N |
| Historic Property: | N | Remodel Property: | N |
| Multi-Family Redevelopment: | N | | |
| Township: | 25N | Section: | 10 |
| Range: | 2W |
Location |
| Address: | 481 PLEASANT HARBOR RD BRINNON, WA 98320 | Mapsco: | 025/040 |
| Neighborhood: | S9-11 T25 R2W+SUNNYSLOPE+PLEASANT HBR+CEDAR COVE/ELLIS/LENTI | Map ID: | |
| Neighborhood CD: | 1220 |
Owner |
| Name: | BETH LYNNE KAROLLE TRUST | Owner ID: | 113198 |
| Mailing Address: | 8106 SW 11TH AVE PORTLAND, OR 97219-4310 | % Ownership: | 100.0000000000% |
| | | Exemptions: | |
Pay Tax Due
There is currently No Amount Due on this property.
Taxes and Assessment Details
Property Tax Information as of
03/10/2026
Click on "Statement Details" to expand or collapse a tax statement.
* Please enter a valid date ** Please enter a valid date *
Statement Details |
| | TOTAL: | $0.00 | $0.00 | $0.00 | $0.00 | $0.00 | $0.00 |
|
| | $0.00 | $0.00 | $0.00 | $0.00 | $0.00 | $0.00 |
Values
| (+) Improvement Homesite Value: | + | $0 | |
| (+) Improvement Non-Homesite Value: | + | $0 | |
| (+) Land Homesite Value: | + | $0 | |
| (+) Land Non-Homesite Value: | + | $158,700 | |
| (+) Curr Use (HS): | + | $0 | $0 |
| (+) Curr Use (NHS): | + | $0 | $0 |
| | | -------------------------- | |
| (=) Market Value: | = | $158,700 | |
| (–) Productivity Loss: | – | $0 | |
| | | -------------------------- | |
| (=) Subtotal: | = | $158,700 | |
| (+) Senior Appraised Value: | + | $0 | |
| (+) Non-Senior Appraised Value: | + | $158,700 | |
| | | -------------------------- | |
| (=) Total Appraised Value: | = | $158,700 | |
| (–) Senior Exemption Loss: | – | $0 | |
| (–) Exemption Loss: | – | $0 | |
| | | -------------------------- | |
| (=) Taxable Value: | = | $158,700 | |
Taxing Jurisdiction
| Owner: | BETH LYNNE KAROLLE TRUST | | |
| % Ownership: | 100.0000000000% | | |
| Total Value: | $158,700 | | |
| Tax Area: | 0441 - 1-46F4E4H2C1L1P2 |
| CE | COUNTY CURRENT EXPENSE | 0.9034619479 | $158,700 | $158,700 | $143.38 | | |
| CNTYDD | DEVELOPMENTAL DISABILITIES | 0.0052121823 | $158,700 | $158,700 | $0.83 | | |
| CNTYVET | VETERANS RELIEF | 0.0052777810 | $158,700 | $158,700 | $0.84 | | |
| MENTAL | MENTAL HEALTH | 0.0052121823 | $158,700 | $158,700 | $0.83 | | |
| ROADS | COUNTY ROADS | 0.7415066410 | $158,700 | $158,700 | $117.68 | | |
| ROADSCU | COUNTY ROADS TO CUR EXP | 0.0000000000 | $158,700 | $158,700 | $0.00 | | |
| HOSP2CASH | HOSP DIST #2 GENERAL | 0.0536075306 | $158,700 | $158,700 | $8.51 | | |
| SCH46MO | SCHOOL DIST #46 EP & O | 0.6890207067 | $158,700 | $158,700 | $109.35 | | |
| CEM1 | CEMETERY DIST #1 GENERAL | 0.0107168292 | $158,700 | $158,700 | $1.70 | | |
| CONSERVE | CONSERVATION FUTURES | 0.0275621078 | $158,700 | $158,700 | $4.37 | | |
| EMS4 | FIRE DIST #4 EMS | 0.4644216158 | $158,700 | $158,700 | $73.70 | | |
| FD4 | FIRE DIST #4 GENERAL | 1.3939598390 | $158,700 | $158,700 | $221.22 | | |
| FD4BOND | FIRE DIST #4 BOND 2019 | 0.2748466981 | $158,700 | $158,700 | $43.62 | | |
| LIB1 | LIBRARY DIST #1 GENERAL | 0.2868827388 | $158,700 | $158,700 | $45.53 | | |
| PORTPT | PORT OF PT GENERAL | 0.1134941229 | $158,700 | $158,700 | $18.01 | | |
| PORTPTIDD | PORT OF PT IDD 2019 | 0.2577346692 | $158,700 | $158,700 | $40.90 | | |
| PUD1 | PUD #1 GENERAL | 0.0597888892 | $158,700 | $158,700 | $9.49 | | |
| STATE | STATE SCHOOL PART 1 | 1.4940692947 | $158,700 | $158,700 | $237.11 | | |
| STATE2 | STATE SCHOOL PART 2 | 0.8050170049 | $158,700 | $158,700 | $127.76 | | |
| | Total Tax Rate: | 7.5917927814 | | | | | |
| | | | | Taxes w/Current Exemptions: | $1,204.83 | | |
| | | | | Taxes w/o Exemptions: | $1,204.83 | | |
Improvement / Building
Sketch
| No sketches available for this property. |
Property Image
Land
| 1 | 1220-1125L | Wtrfrt Lots in Pleasant Harbor Blk 1 Inc/TL | 0.0000 | 0.00 | 0.00 | 0.00 | 1.00 | $158,700 | $0 |
Roll Value History
| 2026 | N/A | N/A | N/A | N/A | N/A |
| 2025 | $0 | $158,700 | $0 | $158,700 | $158,700 |
| 2024 | $0 | $151,800 | $0 | $151,800 | $151,800 |
| 2023 | $730 | $144,900 | $0 | $145,630 | $145,630 |
| 2022 | $664 | $138,000 | $0 | $138,664 | $138,664 |
Deed and Sales History
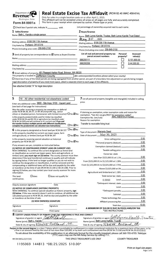
| 1 | 05/30/2025 | WD | Warranty Deed | BETH KAROLLE | BETH LYNNE KAROLLE TRUST | | | | 144813 | |
| 2 | 03/17/2021 | SWD | Statutory Warranty Deed | LORIN K LAMPE JONES | BETH KAROLLE | | | $175,000.00 | 136351 | |
|   | |
| 3 | 11/14/2009 | WD | Warranty Deed | LAMPE, DANIEL L ESTATE OF | JONES, LAMPE, LORIN K AKA LAMP | 0 | 0 | $0.00 | 113667 | 0 |
Payout Agreement
| No payout information available.. |