Property
Account |
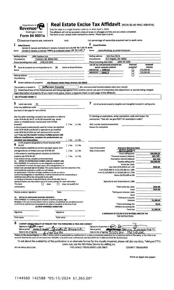
| Property ID: | 38816 | Abbreviated Legal Description: | PLEASANT HARBOR BLK 2 LOT 6 |
| Parcel # / Geo ID: | 988200206 | Agent Code: | |
| Type: | Real | | |
| Tax Area: | 0441 - 1-46F4E4H2C1L1P2 | Land Use Code | 91 |
| Open Space: | N | DFL | N |
| Historic Property: | N | Remodel Property: | N |
| Multi-Family Redevelopment: | N | | |
| Township: | 25N | Section: | 10 |
| Range: | 2W |
Location |
| Address: | 432 PLEASANT HARBOR RD BRINNON, WA 98320 | Mapsco: | 025/049 |
| Neighborhood: | S9-11 T25 R2W+SUNNYSLOPE+PLEASANT HBR+CEDAR COVE/ELLIS/LENTI | Map ID: | |
| Neighborhood CD: | 1220 |
Owner |
| Name: | JESSICA NEWBERG | Owner ID: | 104106 |
| Mailing Address: | 626 PATMORE RD COUPVILLE, WA 98239-9586 | % Ownership: | 100.0000000000% |
| | | Exemptions: | |
Pay Tax Due
Select the appropriate checkbox next to the year to be paid. Multiple years may be selected.
*Convenience Fee not included
Taxes and Assessment Details
Property Tax Information as of
03/12/2026
Click on "Statement Details" to expand or collapse a tax statement.
* Please enter a valid date ** Please enter a valid date *
Statement Details |
| 2026 | 27994 | STATE - STATE LEVY (SCHOOL) | $35.70 | $35.69 | $0.00 | $0.00 | $0.00 | $71.39 |
| 2026 | 27994 | COUNTY - COUNTY LEVIES (CE, DD, VET, MH) | $14.27 | $14.26 | $0.00 | $0.00 | $0.00 | $28.53 |
| 2026 | 27994 | CONSERVE - CONSERVATION FUTURES | $0.43 | $0.43 | $0.00 | $0.00 | $0.00 | $0.86 |
| 2026 | 27994 | COROADS - COUNTY ROADS (ROADS, DIV TO CE) | $11.51 | $11.51 | $0.00 | $0.00 | $0.00 | $23.02 |
| 2026 | 27994 | PORTPT - PORT DISTRICT | $5.76 | $5.76 | $0.00 | $0.00 | $0.00 | $11.52 |
| 2026 | 27994 | PUD1 - PUD #1 | $0.93 | $0.93 | $0.00 | $0.00 | $0.00 | $1.86 |
| 2026 | 27994 | LIB1 - LIBRARY DIST #1 | $4.46 | $4.45 | $0.00 | $0.00 | $0.00 | $8.91 |
| 2026 | 27994 | HD2 - HOSP DIST #2 | $0.83 | $0.83 | $0.00 | $0.00 | $0.00 | $1.66 |
| 2026 | 27994 | SD46 - SCHOOL DIST #46 | $10.70 | $10.69 | $0.00 | $0.00 | $0.00 | $21.39 |
| 2026 | 27994 | FD4 - FIRE DISTRICT #4 | $25.91 | $25.90 | $0.00 | $0.00 | $0.00 | $51.81 |
| 2026 | 27994 | EMS4 - FIRE DIST #4 EMS | $7.21 | $7.21 | $0.00 | $0.00 | $0.00 | $14.42 |
| 2026 | 27994 | CEM1 - CEMETERY DIST #1 | $0.17 | $0.16 | $0.00 | $0.00 | $0.00 | $0.33 |
| 2026 | 27994 | FPLCA - DNR Landowner Contingency Assmt | $3.00 | $3.00 | $0.00 | $0.00 | $0.00 | $6.00 |
| 2026 | 27994 | JCCD - JC Conservation District | $2.53 | $2.53 | $0.00 | $0.00 | $0.00 | $5.06 |
| 2026 | 27994 | NWA - Noxious Weed Assessment | $2.98 | $2.97 | $0.00 | $0.00 | $0.00 | $5.95 |
| 2026 | 27994 | WAT - Clean Water District | $13.00 | $13.00 | $0.00 | $0.00 | $0.00 | $26.00 |
| 2026 | 27994 | TOTAL: | $139.39 | $139.32 | $0.00 | $0.00 | $0.00 | $278.71 |
|
| 2026 | 27994 | $139.39 | $139.32 | $0.00 | $0.00 | $0.00 | $278.71 |
Statement Details |
| 2025 | 28066 | STATE - STATE LEVY (SCHOOL) | $35.61 | $35.61 | $0.00 | $0.00 | $71.22 | $0.00 |
| 2025 | 28066 | COUNTY - COUNTY LEVIES (CE, DD, VET, MH) | $14.01 | $14.00 | $0.00 | $0.00 | $28.01 | $0.00 |
| 2025 | 28066 | CONSERVE - CONSERVATION FUTURES | $0.42 | $0.42 | $0.00 | $0.00 | $0.84 | $0.00 |
| 2025 | 28066 | COROADS - COUNTY ROADS (ROADS, DIV TO CE) | $11.22 | $11.22 | $0.00 | $0.00 | $22.44 | $0.00 |
| 2025 | 28066 | PORTPT - PORT DISTRICT | $5.72 | $5.71 | $0.00 | $0.00 | $11.43 | $0.00 |
| 2025 | 28066 | PUD1 - PUD #1 | $0.92 | $0.91 | $0.00 | $0.00 | $1.83 | $0.00 |
| 2025 | 28066 | LIB1 - LIBRARY DIST #1 | $4.34 | $4.34 | $0.00 | $0.00 | $8.68 | $0.00 |
| 2025 | 28066 | HD2 - HOSP DIST #2 | $0.82 | $0.81 | $0.00 | $0.00 | $1.63 | $0.00 |
| 2025 | 28066 | SD46 - SCHOOL DIST #46 | $9.41 | $9.41 | $0.00 | $0.00 | $18.82 | $0.00 |
| 2025 | 28066 | FD4 - FIRE DISTRICT #4 | $26.09 | $26.08 | $0.00 | $0.00 | $52.17 | $0.00 |
| 2025 | 28066 | EMS4 - FIRE DIST #4 EMS | $7.24 | $7.23 | $0.00 | $0.00 | $14.47 | $0.00 |
| 2025 | 28066 | CEM1 - CEMETERY DIST #1 | $0.17 | $0.17 | $0.00 | $0.00 | $0.34 | $0.00 |
| 2025 | 28066 | FPLCA - DNR Landowner Contingency Assmt | $3.00 | $3.00 | $0.00 | $0.00 | $6.00 | $0.00 |
| 2025 | 28066 | JCCD - JC Conservation District | $2.53 | $2.53 | $0.00 | $0.00 | $5.06 | $0.00 |
| 2025 | 28066 | NWA - Noxious Weed Assessment | $2.15 | $2.15 | $0.00 | $0.00 | $4.30 | $0.00 |
| 2025 | 28066 | WAT - Clean Water District | $13.00 | $13.00 | $0.00 | $0.00 | $26.00 | $0.00 |
| 2025 | 28066 | TOTAL: | $136.65 | $136.59 | $0.00 | $0.00 | $273.24 | $0.00 |
|
| 2025 | 28066 | $136.65 | $136.59 | $0.00 | $0.00 | $273.24 | $0.00 |
Statement Details |
| 2024 | 28125 | STATE - STATE LEVY (SCHOOL) | $18.04 | $18.04 | $0.00 | $0.00 | $36.08 | $0.00 |
| 2024 | 28125 | COUNTY - COUNTY LEVIES (CE, DD, VET, MH) | $7.74 | $7.70 | $0.00 | $0.00 | $15.44 | $0.00 |
| 2024 | 28125 | CONSERVE - CONSERVATION FUTURES | $0.23 | $0.23 | $0.00 | $0.00 | $0.46 | $0.00 |
| 2024 | 28125 | COROADS - COUNTY ROADS (ROADS, DIV TO CE) | $6.22 | $6.20 | $0.00 | $0.00 | $12.42 | $0.00 |
| 2024 | 28125 | PORTPT - PORT DISTRICT | $3.20 | $3.18 | $0.00 | $0.00 | $6.38 | $0.00 |
| 2024 | 28125 | PUD1 - PUD #1 | $0.51 | $0.50 | $0.00 | $0.00 | $1.01 | $0.00 |
| 2024 | 28125 | LIB1 - LIBRARY DIST #1 | $2.41 | $2.40 | $0.00 | $0.00 | $4.81 | $0.00 |
| 2024 | 28125 | HD2 - HOSP DIST #2 | $0.45 | $0.45 | $0.00 | $0.00 | $0.90 | $0.00 |
| 2024 | 28125 | SD46 - SCHOOL DIST #46 | $5.42 | $5.41 | $0.00 | $0.00 | $10.83 | $0.00 |
| 2024 | 28125 | FD4 - FIRE DISTRICT #4 | $14.00 | $13.98 | $0.00 | $0.00 | $27.98 | $0.00 |
| 2024 | 28125 | EMS4 - FIRE DIST #4 EMS | $3.90 | $3.90 | $0.00 | $0.00 | $7.80 | $0.00 |
| 2024 | 28125 | CEM1 - CEMETERY DIST #1 | $0.09 | $0.09 | $0.00 | $0.00 | $0.18 | $0.00 |
| 2024 | 28125 | FP - DNR Forest Fire Protection Assmt | $8.50 | $8.50 | $0.00 | $0.00 | $17.00 | $0.00 |
| 2024 | 28125 | FPLCA - DNR Landowner Contingency Assmt | $3.00 | $3.00 | $0.00 | $0.00 | $6.00 | $0.00 |
| 2024 | 28125 | JCCD - JC Conservation District | $2.53 | $2.53 | $0.00 | $0.00 | $5.06 | $0.00 |
| 2024 | 28125 | NWA - Noxious Weed Assessment | $2.15 | $2.15 | $0.00 | $0.00 | $4.30 | $0.00 |
| 2024 | 28125 | WAT - Clean Water District | $12.50 | $12.50 | $0.00 | $0.00 | $25.00 | $0.00 |
| 2024 | 28125 | FP ADMIN - FP ADMIN | $0.50 | $0.00 | $0.00 | $0.00 | $0.50 | $0.00 |
| 2024 | 28125 | TOTAL: | $91.39 | $90.76 | $0.00 | $0.00 | $182.15 | $0.00 |
|
| 2024 | 28125 | $91.39 | $90.76 | $0.00 | $0.00 | $182.15 | $0.00 |
Statement Details |
| 2023 | 28167 | STATE - STATE LEVY (SCHOOL) | $17.48 | $17.48 | $0.00 | $0.00 | $34.96 | $0.00 |
| 2023 | 28167 | COUNTY - COUNTY LEVIES (CE, DD, VET, MH) | $7.65 | $7.61 | $0.00 | $0.00 | $15.26 | $0.00 |
| 2023 | 28167 | CONSERVE - CONSERVATION FUTURES | $0.23 | $0.23 | $0.00 | $0.00 | $0.46 | $0.00 |
| 2023 | 28167 | COROADS - COUNTY ROADS (ROADS, DIV TO CE) | $6.18 | $6.17 | $0.00 | $0.00 | $12.35 | $0.00 |
| 2023 | 28167 | PORTPT - PORT DISTRICT | $3.21 | $3.21 | $0.00 | $0.00 | $6.42 | $0.00 |
| 2023 | 28167 | PUD1 - PUD #1 | $0.51 | $0.50 | $0.00 | $0.00 | $1.01 | $0.00 |
| 2023 | 28167 | LIB1 - LIBRARY DIST #1 | $2.39 | $2.39 | $0.00 | $0.00 | $4.78 | $0.00 |
| 2023 | 28167 | HD2 - HOSP DIST #2 | $0.45 | $0.44 | $0.00 | $0.00 | $0.89 | $0.00 |
| 2023 | 28167 | SD46 - SCHOOL DIST #46 | $5.71 | $5.70 | $0.00 | $0.00 | $11.41 | $0.00 |
| 2023 | 28167 | FD4 - FIRE DISTRICT #4 | $9.50 | $9.48 | $0.00 | $0.00 | $18.98 | $0.00 |
| 2023 | 28167 | EMS4 - FIRE DIST #4 EMS | $2.70 | $2.70 | $0.00 | $0.00 | $5.40 | $0.00 |
| 2023 | 28167 | CEM1 - CEMETERY DIST #1 | $0.10 | $0.09 | $0.00 | $0.00 | $0.19 | $0.00 |
| 2023 | 28167 | FP - DNR Forest Fire Protection Assmt | $8.50 | $8.50 | $0.00 | $0.00 | $17.00 | $0.00 |
| 2023 | 28167 | FPLCA - DNR Landowner Contingency Assmt | $3.00 | $3.00 | $0.00 | $0.00 | $6.00 | $0.00 |
| 2023 | 28167 | JCCD - JC Conservation District | $2.53 | $2.53 | $0.00 | $0.00 | $5.06 | $0.00 |
| 2023 | 28167 | NWA - Noxious Weed Assessment | $2.15 | $2.15 | $0.00 | $0.00 | $4.30 | $0.00 |
| 2023 | 28167 | WAT - Clean Water District | $12.00 | $12.00 | $0.00 | $0.00 | $24.00 | $0.00 |
| 2023 | 28167 | FP ADMIN - FP ADMIN | $0.50 | $0.00 | $0.00 | $0.00 | $0.50 | $0.00 |
| 2023 | 28167 | TOTAL: | $84.79 | $84.18 | $0.00 | $0.00 | $168.97 | $0.00 |
|
| 2023 | 28167 | $84.79 | $84.18 | $0.00 | $0.00 | $168.97 | $0.00 |
Values
| (+) Improvement Homesite Value: | + | $0 | |
| (+) Improvement Non-Homesite Value: | + | $0 | |
| (+) Land Homesite Value: | + | $0 | |
| (+) Land Non-Homesite Value: | + | $34,500 | |
| (+) Curr Use (HS): | + | $0 | $0 |
| (+) Curr Use (NHS): | + | $0 | $0 |
| | | -------------------------- | |
| (=) Market Value: | = | $34,500 | |
| (–) Productivity Loss: | – | $0 | |
| | | -------------------------- | |
| (=) Subtotal: | = | $34,500 | |
| (+) Senior Appraised Value: | + | $0 | |
| (+) Non-Senior Appraised Value: | + | $34,500 | |
| | | -------------------------- | |
| (=) Total Appraised Value: | = | $34,500 | |
| (–) Senior Exemption Loss: | – | $0 | |
| (–) Exemption Loss: | – | $0 | |
| | | -------------------------- | |
| (=) Taxable Value: | = | $34,500 | |
Taxing Jurisdiction
| Owner: | JESSICA NEWBERG | | |
| % Ownership: | 100.0000000000% | | |
| Total Value: | N/A | | |
| Tax Area: | 0441 - 1-46F4E4H2C1L1P2 |
| CE | COUNTY CURRENT EXPENSE | N/A | N/A | N/A | N/A | | |
| CNTYDD | DEVELOPMENTAL DISABILITIES | N/A | N/A | N/A | N/A | | |
| CNTYVET | VETERANS RELIEF | N/A | N/A | N/A | N/A | | |
| MENTAL | MENTAL HEALTH | N/A | N/A | N/A | N/A | | |
| ROADS | COUNTY ROADS | N/A | N/A | N/A | N/A | | |
| HOSP2CASH | HOSP DIST #2 GENERAL | N/A | N/A | N/A | N/A | | |
| SCH46MO | SCHOOL DIST #46 EP & O | N/A | N/A | N/A | N/A | | |
| CEM1 | CEMETERY DIST #1 GENERAL | N/A | N/A | N/A | N/A | | |
| CONSERVE | CONSERVATION FUTURES | N/A | N/A | N/A | N/A | | |
| EMS4 | FIRE DIST #4 EMS | N/A | N/A | N/A | N/A | | |
| FD4 | FIRE DIST #4 GENERAL | N/A | N/A | N/A | N/A | | |
| FD4BOND | FIRE DIST #4 BOND 2019 | N/A | N/A | N/A | N/A | | |
| LIB1 | LIBRARY DIST #1 GENERAL | N/A | N/A | N/A | N/A | | |
| PORTPT | PORT OF PT GENERAL | N/A | N/A | N/A | N/A | | |
| PORTPTIDD | PORT OF PT IDD 2019 | N/A | N/A | N/A | N/A | | |
| PUD1 | PUD #1 GENERAL | N/A | N/A | N/A | N/A | | |
| STATE | STATE SCHOOL PART 1 | N/A | N/A | N/A | N/A | | |
| STATE2 | STATE SCHOOL PART 2 | N/A | N/A | N/A | N/A | | |
| | Total Tax Rate: | N/A | | | | | |
| | | | | Taxes w/Current Exemptions: | N/A | | |
| | | | | Taxes w/o Exemptions: | N/A | | |
Improvement / Building
Sketch
| No sketches available for this property. |
Property Image
Land
| 1 | 1220-1145L | | 0.0000 | 0.00 | 0.00 | 0.00 | 1.00 | $34,500 | $0 |
Roll Value History
| 2026 | N/A | N/A | N/A | N/A | N/A |
| 2025 | $0 | $31,050 | $0 | $31,050 | $31,050 |
| 2024 | $0 | $29,700 | $0 | $29,700 | $29,700 |
| 2023 | $0 | $15,593 | $0 | $15,593 | $15,593 |
| 2022 | $0 | $14,850 | $0 | $14,850 | $14,850 |
Deed and Sales History
| 1 | 05/09/2024 | SWD | Statutory Warranty Deed | GORDON D SAMPLE | JESSICA NEWBERG | | | $85,000.00 | 142588 | |
|   | |
| 2 | 12/06/1994 | SWD | Statutory Warranty Deed | WINJE, WILLIAM H/JANET A | SAMPLE, GORDON D/BARBARA D | 0 | 0 | $10,000.00 | 75810 | 0 |
| 3 | 09/12/1994 | SWD | Statutory Warranty Deed | PLASKETT, JOSEPH M | GENTLE, ADRIAN FRANCIS/MARY S | 0 | 0 | $0.00 | 75136 | 0 |
Payout Agreement
| No payout information available.. |