Property
Account |
| Property ID: | 38818 | Abbreviated Legal Description: | PLEASANT HARBOR BLK 2 LOTS 8 & 9 |
| Parcel # / Geo ID: | 988200208 | Agent Code: | |
| Type: | Real | | |
| Tax Area: | 0441 - 1-46F4E4H2C1L1P2 | Land Use Code | 91 |
| Open Space: | N | DFL | N |
| Historic Property: | N | Remodel Property: | N |
| Multi-Family Redevelopment: | N | | |
| Township: | 25N | Section: | 10 |
| Range: | 2W |
Location |
| Address: | | Mapsco: | 025/051 |
| Neighborhood: | S9-11 T25 R2W+SUNNYSLOPE+PLEASANT HBR+CEDAR COVE/ELLIS/LENTI | Map ID: | |
| Neighborhood CD: | 1220 |
Owner |
| Name: | BETH LYNNE KAROLLE TRUST | Owner ID: | 113198 |
| Mailing Address: | 8106 SW 11TH AVE PORTLAND, OR 97219-4310 | % Ownership: | 100.0000000000% |
| | | Exemptions: | |
Pay Tax Due
Select the appropriate checkbox next to the year to be paid. Multiple years may be selected.
*Convenience Fee not included
Taxes and Assessment Details
Property Tax Information as of
03/11/2026
Click on "Statement Details" to expand or collapse a tax statement.
* Please enter a valid date ** Please enter a valid date *
Statement Details |
| 2026 | 27996 | STATE - STATE LEVY (SCHOOL) | $53.55 | $53.53 | $0.00 | $0.00 | $0.00 | $107.08 |
| 2026 | 27996 | COUNTY - COUNTY LEVIES (CE, DD, VET, MH) | $21.41 | $21.40 | $0.00 | $0.00 | $0.00 | $42.81 |
| 2026 | 27996 | CONSERVE - CONSERVATION FUTURES | $0.64 | $0.64 | $0.00 | $0.00 | $0.00 | $1.28 |
| 2026 | 27996 | COROADS - COUNTY ROADS (ROADS, DIV TO CE) | $17.27 | $17.27 | $0.00 | $0.00 | $0.00 | $34.54 |
| 2026 | 27996 | PORTPT - PORT DISTRICT | $8.65 | $8.64 | $0.00 | $0.00 | $0.00 | $17.29 |
| 2026 | 27996 | PUD1 - PUD #1 | $1.39 | $1.39 | $0.00 | $0.00 | $0.00 | $2.78 |
| 2026 | 27996 | LIB1 - LIBRARY DIST #1 | $6.68 | $6.68 | $0.00 | $0.00 | $0.00 | $13.36 |
| 2026 | 27996 | HD2 - HOSP DIST #2 | $1.25 | $1.25 | $0.00 | $0.00 | $0.00 | $2.50 |
| 2026 | 27996 | SD46 - SCHOOL DIST #46 | $16.05 | $16.04 | $0.00 | $0.00 | $0.00 | $32.09 |
| 2026 | 27996 | FD4 - FIRE DISTRICT #4 | $38.86 | $38.86 | $0.00 | $0.00 | $0.00 | $77.72 |
| 2026 | 27996 | EMS4 - FIRE DIST #4 EMS | $10.82 | $10.81 | $0.00 | $0.00 | $0.00 | $21.63 |
| 2026 | 27996 | CEM1 - CEMETERY DIST #1 | $0.25 | $0.25 | $0.00 | $0.00 | $0.00 | $0.50 |
| 2026 | 27996 | FP - DNR Forest Fire Protection Assmt | $8.50 | $8.50 | $0.00 | $0.00 | $0.00 | $17.00 |
| 2026 | 27996 | FPLCA - DNR Landowner Contingency Assmt | $3.00 | $3.00 | $0.00 | $0.00 | $0.00 | $6.00 |
| 2026 | 27996 | JCCD - JC Conservation District | $2.53 | $2.53 | $0.00 | $0.00 | $0.00 | $5.06 |
| 2026 | 27996 | NWA - Noxious Weed Assessment | $2.98 | $2.97 | $0.00 | $0.00 | $0.00 | $5.95 |
| 2026 | 27996 | WAT - Clean Water District | $13.00 | $13.00 | $0.00 | $0.00 | $0.00 | $26.00 |
| 2026 | 27996 | FP ADMIN - FP ADMIN | $0.50 | $0.00 | $0.00 | $0.00 | $0.00 | $0.50 |
| 2026 | 27996 | TOTAL: | $207.33 | $206.76 | $0.00 | $0.00 | $0.00 | $414.09 |
|
| 2026 | 27996 | $207.33 | $206.76 | $0.00 | $0.00 | $0.00 | $414.09 |
Statement Details |
| 2025 | 28068 | STATE - STATE LEVY (SCHOOL) | $53.42 | $53.41 | $0.00 | $0.00 | $106.83 | $0.00 |
| 2025 | 28068 | COUNTY - COUNTY LEVIES (CE, DD, VET, MH) | $21.01 | $21.00 | $0.00 | $0.00 | $42.01 | $0.00 |
| 2025 | 28068 | CONSERVE - CONSERVATION FUTURES | $0.63 | $0.63 | $0.00 | $0.00 | $1.26 | $0.00 |
| 2025 | 28068 | COROADS - COUNTY ROADS (ROADS, DIV TO CE) | $16.83 | $16.82 | $0.00 | $0.00 | $33.65 | $0.00 |
| 2025 | 28068 | PORTPT - PORT DISTRICT | $8.58 | $8.57 | $0.00 | $0.00 | $17.15 | $0.00 |
| 2025 | 28068 | PUD1 - PUD #1 | $1.38 | $1.37 | $0.00 | $0.00 | $2.75 | $0.00 |
| 2025 | 28068 | LIB1 - LIBRARY DIST #1 | $6.51 | $6.51 | $0.00 | $0.00 | $13.02 | $0.00 |
| 2025 | 28068 | HD2 - HOSP DIST #2 | $1.23 | $1.22 | $0.00 | $0.00 | $2.45 | $0.00 |
| 2025 | 28068 | SD46 - SCHOOL DIST #46 | $14.12 | $14.12 | $0.00 | $0.00 | $28.24 | $0.00 |
| 2025 | 28068 | FD4 - FIRE DISTRICT #4 | $39.13 | $39.12 | $0.00 | $0.00 | $78.25 | $0.00 |
| 2025 | 28068 | EMS4 - FIRE DIST #4 EMS | $10.86 | $10.85 | $0.00 | $0.00 | $21.71 | $0.00 |
| 2025 | 28068 | CEM1 - CEMETERY DIST #1 | $0.25 | $0.25 | $0.00 | $0.00 | $0.50 | $0.00 |
| 2025 | 28068 | FP - DNR Forest Fire Protection Assmt | $8.50 | $8.50 | $0.00 | $0.00 | $17.00 | $0.00 |
| 2025 | 28068 | FPLCA - DNR Landowner Contingency Assmt | $3.00 | $3.00 | $0.00 | $0.00 | $6.00 | $0.00 |
| 2025 | 28068 | JCCD - JC Conservation District | $2.53 | $2.53 | $0.00 | $0.00 | $5.06 | $0.00 |
| 2025 | 28068 | NWA - Noxious Weed Assessment | $2.15 | $2.15 | $0.00 | $0.00 | $4.30 | $0.00 |
| 2025 | 28068 | WAT - Clean Water District | $13.00 | $13.00 | $0.00 | $0.00 | $26.00 | $0.00 |
| 2025 | 28068 | FP ADMIN - FP ADMIN | $0.50 | $0.00 | $0.00 | $0.00 | $0.50 | $0.00 |
| 2025 | 28068 | TOTAL: | $203.63 | $203.05 | $0.00 | $0.00 | $406.68 | $0.00 |
|
| 2025 | 28068 | $203.63 | $203.05 | $0.00 | $0.00 | $406.68 | $0.00 |
Statement Details |
| 2024 | 28127 | STATE - STATE LEVY (SCHOOL) | $49.20 | $49.19 | $0.00 | $0.00 | $98.39 | $0.00 |
| 2024 | 28127 | COUNTY - COUNTY LEVIES (CE, DD, VET, MH) | $21.05 | $21.05 | $0.00 | $0.00 | $42.10 | $0.00 |
| 2024 | 28127 | CONSERVE - CONSERVATION FUTURES | $0.63 | $0.63 | $0.00 | $0.00 | $1.26 | $0.00 |
| 2024 | 28127 | COROADS - COUNTY ROADS (ROADS, DIV TO CE) | $16.95 | $16.93 | $0.00 | $0.00 | $33.88 | $0.00 |
| 2024 | 28127 | PORTPT - PORT DISTRICT | $8.70 | $8.69 | $0.00 | $0.00 | $17.39 | $0.00 |
| 2024 | 28127 | PUD1 - PUD #1 | $1.39 | $1.38 | $0.00 | $0.00 | $2.77 | $0.00 |
| 2024 | 28127 | LIB1 - LIBRARY DIST #1 | $6.56 | $6.55 | $0.00 | $0.00 | $13.11 | $0.00 |
| 2024 | 28127 | HD2 - HOSP DIST #2 | $1.23 | $1.23 | $0.00 | $0.00 | $2.46 | $0.00 |
| 2024 | 28127 | SD46 - SCHOOL DIST #46 | $14.77 | $14.77 | $0.00 | $0.00 | $29.54 | $0.00 |
| 2024 | 28127 | FD4 - FIRE DISTRICT #4 | $38.16 | $38.14 | $0.00 | $0.00 | $76.30 | $0.00 |
| 2024 | 28127 | EMS4 - FIRE DIST #4 EMS | $10.63 | $10.63 | $0.00 | $0.00 | $21.26 | $0.00 |
| 2024 | 28127 | CEM1 - CEMETERY DIST #1 | $0.25 | $0.25 | $0.00 | $0.00 | $0.50 | $0.00 |
| 2024 | 28127 | FP - DNR Forest Fire Protection Assmt | $8.50 | $8.50 | $0.00 | $0.00 | $17.00 | $0.00 |
| 2024 | 28127 | FPLCA - DNR Landowner Contingency Assmt | $3.00 | $3.00 | $0.00 | $0.00 | $6.00 | $0.00 |
| 2024 | 28127 | JCCD - JC Conservation District | $2.53 | $2.53 | $0.00 | $0.00 | $5.06 | $0.00 |
| 2024 | 28127 | NWA - Noxious Weed Assessment | $2.15 | $2.15 | $0.00 | $0.00 | $4.30 | $0.00 |
| 2024 | 28127 | WAT - Clean Water District | $12.50 | $12.50 | $0.00 | $0.00 | $25.00 | $0.00 |
| 2024 | 28127 | FP ADMIN - FP ADMIN | $0.50 | $0.00 | $0.00 | $0.00 | $0.50 | $0.00 |
| 2024 | 28127 | TOTAL: | $198.70 | $198.12 | $0.00 | $0.00 | $396.82 | $0.00 |
|
| 2024 | 28127 | $198.70 | $198.12 | $0.00 | $0.00 | $396.82 | $0.00 |
Statement Details |
| 2023 | 28169 | STATE - STATE LEVY (SCHOOL) | $47.68 | $47.67 | $0.00 | $0.00 | $95.35 | $0.00 |
| 2023 | 28169 | COUNTY - COUNTY LEVIES (CE, DD, VET, MH) | $20.81 | $20.80 | $0.00 | $0.00 | $41.61 | $0.00 |
| 2023 | 28169 | CONSERVE - CONSERVATION FUTURES | $0.63 | $0.62 | $0.00 | $0.00 | $1.25 | $0.00 |
| 2023 | 28169 | COROADS - COUNTY ROADS (ROADS, DIV TO CE) | $16.83 | $16.83 | $0.00 | $0.00 | $33.66 | $0.00 |
| 2023 | 28169 | PORTPT - PORT DISTRICT | $8.77 | $8.76 | $0.00 | $0.00 | $17.53 | $0.00 |
| 2023 | 28169 | PUD1 - PUD #1 | $1.38 | $1.38 | $0.00 | $0.00 | $2.76 | $0.00 |
| 2023 | 28169 | LIB1 - LIBRARY DIST #1 | $6.51 | $6.51 | $0.00 | $0.00 | $13.02 | $0.00 |
| 2023 | 28169 | HD2 - HOSP DIST #2 | $1.22 | $1.21 | $0.00 | $0.00 | $2.43 | $0.00 |
| 2023 | 28169 | SD46 - SCHOOL DIST #46 | $15.56 | $15.56 | $0.00 | $0.00 | $31.12 | $0.00 |
| 2023 | 28169 | FD4 - FIRE DISTRICT #4 | $25.88 | $25.87 | $0.00 | $0.00 | $51.75 | $0.00 |
| 2023 | 28169 | EMS4 - FIRE DIST #4 EMS | $7.36 | $7.36 | $0.00 | $0.00 | $14.72 | $0.00 |
| 2023 | 28169 | CEM1 - CEMETERY DIST #1 | $0.26 | $0.26 | $0.00 | $0.00 | $0.52 | $0.00 |
| 2023 | 28169 | FP - DNR Forest Fire Protection Assmt | $8.50 | $8.50 | $0.00 | $0.00 | $17.00 | $0.00 |
| 2023 | 28169 | FPLCA - DNR Landowner Contingency Assmt | $3.00 | $3.00 | $0.00 | $0.00 | $6.00 | $0.00 |
| 2023 | 28169 | JCCD - JC Conservation District | $2.53 | $2.53 | $0.00 | $0.00 | $5.06 | $0.00 |
| 2023 | 28169 | NWA - Noxious Weed Assessment | $2.15 | $2.15 | $0.00 | $0.00 | $4.30 | $0.00 |
| 2023 | 28169 | WAT - Clean Water District | $12.00 | $12.00 | $0.00 | $0.00 | $24.00 | $0.00 |
| 2023 | 28169 | FP ADMIN - FP ADMIN | $0.50 | $0.00 | $0.00 | $0.00 | $0.50 | $0.00 |
| 2023 | 28169 | TOTAL: | $181.57 | $181.01 | $0.00 | $0.00 | $362.58 | $0.00 |
|
| 2023 | 28169 | $181.57 | $181.01 | $0.00 | $0.00 | $362.58 | $0.00 |
Values
| (+) Improvement Homesite Value: | + | $0 | |
| (+) Improvement Non-Homesite Value: | + | $0 | |
| (+) Land Homesite Value: | + | $0 | |
| (+) Land Non-Homesite Value: | + | $51,750 | |
| (+) Curr Use (HS): | + | $0 | $0 |
| (+) Curr Use (NHS): | + | $0 | $0 |
| | | -------------------------- | |
| (=) Market Value: | = | $51,750 | |
| (–) Productivity Loss: | – | $0 | |
| | | -------------------------- | |
| (=) Subtotal: | = | $51,750 | |
| (+) Senior Appraised Value: | + | $0 | |
| (+) Non-Senior Appraised Value: | + | $51,750 | |
| | | -------------------------- | |
| (=) Total Appraised Value: | = | $51,750 | |
| (–) Senior Exemption Loss: | – | $0 | |
| (–) Exemption Loss: | – | $0 | |
| | | -------------------------- | |
| (=) Taxable Value: | = | $51,750 | |
Taxing Jurisdiction
| Owner: | BETH LYNNE KAROLLE TRUST | | |
| % Ownership: | 100.0000000000% | | |
| Total Value: | N/A | | |
| Tax Area: | 0441 - 1-46F4E4H2C1L1P2 |
| CE | COUNTY CURRENT EXPENSE | N/A | N/A | N/A | N/A | | |
| CNTYDD | DEVELOPMENTAL DISABILITIES | N/A | N/A | N/A | N/A | | |
| CNTYVET | VETERANS RELIEF | N/A | N/A | N/A | N/A | | |
| MENTAL | MENTAL HEALTH | N/A | N/A | N/A | N/A | | |
| ROADS | COUNTY ROADS | N/A | N/A | N/A | N/A | | |
| HOSP2CASH | HOSP DIST #2 GENERAL | N/A | N/A | N/A | N/A | | |
| SCH46MO | SCHOOL DIST #46 EP & O | N/A | N/A | N/A | N/A | | |
| CEM1 | CEMETERY DIST #1 GENERAL | N/A | N/A | N/A | N/A | | |
| CONSERVE | CONSERVATION FUTURES | N/A | N/A | N/A | N/A | | |
| EMS4 | FIRE DIST #4 EMS | N/A | N/A | N/A | N/A | | |
| FD4 | FIRE DIST #4 GENERAL | N/A | N/A | N/A | N/A | | |
| FD4BOND | FIRE DIST #4 BOND 2019 | N/A | N/A | N/A | N/A | | |
| LIB1 | LIBRARY DIST #1 GENERAL | N/A | N/A | N/A | N/A | | |
| PORTPT | PORT OF PT GENERAL | N/A | N/A | N/A | N/A | | |
| PORTPTIDD | PORT OF PT IDD 2019 | N/A | N/A | N/A | N/A | | |
| PUD1 | PUD #1 GENERAL | N/A | N/A | N/A | N/A | | |
| STATE | STATE SCHOOL PART 1 | N/A | N/A | N/A | N/A | | |
| STATE2 | STATE SCHOOL PART 2 | N/A | N/A | N/A | N/A | | |
| | Total Tax Rate: | N/A | | | | | |
| | | | | Taxes w/Current Exemptions: | N/A | | |
| | | | | Taxes w/o Exemptions: | N/A | | |
Improvement / Building
Sketch
| No sketches available for this property. |
Property Image
Land
| 1 | 1220-1145L | | 0.0000 | 0.00 | 0.00 | 0.00 | 2.00 | $51,750 | $0 |
Roll Value History
| 2026 | N/A | N/A | N/A | N/A | N/A |
| 2025 | $0 | $46,575 | $0 | $46,575 | $46,575 |
| 2024 | $0 | $44,550 | $0 | $44,550 | $44,550 |
| 2023 | $0 | $42,525 | $0 | $42,525 | $42,525 |
| 2022 | $0 | $40,500 | $0 | $40,500 | $40,500 |
Deed and Sales History
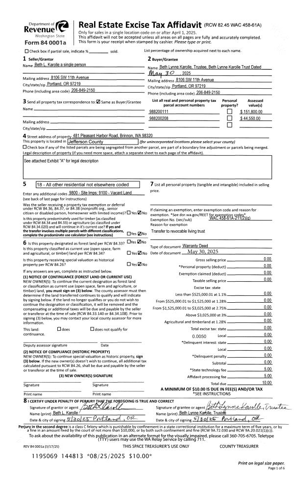
| 1 | 05/30/2025 | WD | Warranty Deed | BETH KAROLLE | BETH LYNNE KAROLLE TRUST | | | | 144813 | |
| 2 | 03/17/2021 | SWD | Statutory Warranty Deed | LORIN K LAMPE JONES | BETH KAROLLE | | | $175,000.00 | 136351 | |
|   | |
| 3 | 11/14/2009 | WD | Warranty Deed | LAMPE, DANIEL L ESTATE OF | JONES, LAMPE, LORIN K AKA LAMP | 0 | 0 | $0.00 | 113666 | 0 |
Payout Agreement
| No payout information available.. |