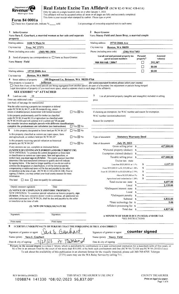
Property
Account |
| Property ID: | 38867 | Abbreviated Legal Description: | PLEASANT TIDES LOT 49 |
| Parcel # / Geo ID: | 988500048 | Agent Code: | |
| Type: | Real | | |
| Tax Area: | 0441 - 1-46F4E4H2C1L1P2 | Land Use Code | 11 |
| Open Space: | N | DFL | N |
| Historic Property: | N | Remodel Property: | N |
| Multi-Family Redevelopment: | N | | |
| Township: | 25N | Section: | 15 |
| Range: | 2W |
Location |
| Address: | 190 DOGWOOD LN BRINNON, WA 98320 | Mapsco: | 026/049 |
| Neighborhood: | PLEASANT TIDES | Map ID: | |
| Neighborhood CD: | 1235 |
Owner |
| Name: | STACEY FIELD | Owner ID: | 109395 |
| Mailing Address: | 15710 204TH AVE RENTON, WA 98059-9016 | % Ownership: | 100.0000000000% |
| | | Exemptions: | |
Pay Tax Due
Select the appropriate checkbox next to the year to be paid. Multiple years may be selected.
*Convenience Fee not included
Taxes and Assessment Details
Property Tax Information as of
03/11/2026
Click on "Statement Details" to expand or collapse a tax statement.
* Please enter a valid date ** Please enter a valid date *
Statement Details |
| 2026 | 28045 | STATE - STATE LEVY (SCHOOL) | $475.14 | $475.14 | $0.00 | $0.00 | $0.00 | $950.28 |
| 2026 | 28045 | COUNTY - COUNTY LEVIES (CE, DD, VET, MH) | $189.97 | $189.94 | $0.00 | $0.00 | $0.00 | $379.91 |
| 2026 | 28045 | CONSERVE - CONSERVATION FUTURES | $5.70 | $5.69 | $0.00 | $0.00 | $0.00 | $11.39 |
| 2026 | 28045 | COROADS - COUNTY ROADS (ROADS, DIV TO CE) | $153.25 | $153.24 | $0.00 | $0.00 | $0.00 | $306.49 |
| 2026 | 28045 | PORTPT - PORT DISTRICT | $76.73 | $76.71 | $0.00 | $0.00 | $0.00 | $153.44 |
| 2026 | 28045 | PUD1 - PUD #1 | $12.36 | $12.35 | $0.00 | $0.00 | $0.00 | $24.71 |
| 2026 | 28045 | LIB1 - LIBRARY DIST #1 | $59.29 | $59.29 | $0.00 | $0.00 | $0.00 | $118.58 |
| 2026 | 28045 | HD2 - HOSP DIST #2 | $11.08 | $11.08 | $0.00 | $0.00 | $0.00 | $22.16 |
| 2026 | 28045 | SD46 - SCHOOL DIST #46 | $142.40 | $142.39 | $0.00 | $0.00 | $0.00 | $284.79 |
| 2026 | 28045 | FD4 - FIRE DISTRICT #4 | $344.88 | $344.88 | $0.00 | $0.00 | $0.00 | $689.76 |
| 2026 | 28045 | EMS4 - FIRE DIST #4 EMS | $95.98 | $95.98 | $0.00 | $0.00 | $0.00 | $191.96 |
| 2026 | 28045 | CEM1 - CEMETERY DIST #1 | $2.22 | $2.21 | $0.00 | $0.00 | $0.00 | $4.43 |
| 2026 | 28045 | JCCD - JC Conservation District | $2.55 | $2.55 | $0.00 | $0.00 | $0.00 | $5.10 |
| 2026 | 28045 | NWA - Noxious Weed Assessment | $2.98 | $2.97 | $0.00 | $0.00 | $0.00 | $5.95 |
| 2026 | 28045 | OSS - On Site Septic | $23.10 | $23.10 | $0.00 | $0.00 | $0.00 | $46.20 |
| 2026 | 28045 | WAT - Clean Water District | $13.00 | $13.00 | $0.00 | $0.00 | $0.00 | $26.00 |
| 2026 | 28045 | TOTAL: | $1610.63 | $1610.52 | $0.00 | $0.00 | $0.00 | $3221.15 |
|
| 2026 | 28045 | $1610.63 | $1610.52 | $0.00 | $0.00 | $0.00 | $3221.15 |
Statement Details |
| 2025 | 28117 | STATE - STATE LEVY (SCHOOL) | $489.59 | $489.59 | $0.00 | $0.00 | $979.18 | $0.00 |
| 2025 | 28117 | COUNTY - COUNTY LEVIES (CE, DD, VET, MH) | $192.54 | $192.52 | $0.00 | $0.00 | $385.06 | $0.00 |
| 2025 | 28117 | CONSERVE - CONSERVATION FUTURES | $5.78 | $5.77 | $0.00 | $0.00 | $11.55 | $0.00 |
| 2025 | 28117 | COROADS - COUNTY ROADS (ROADS, DIV TO CE) | $154.25 | $154.24 | $0.00 | $0.00 | $308.49 | $0.00 |
| 2025 | 28117 | PORTPT - PORT DISTRICT | $78.56 | $78.56 | $0.00 | $0.00 | $157.12 | $0.00 |
| 2025 | 28117 | PUD1 - PUD #1 | $12.60 | $12.60 | $0.00 | $0.00 | $25.20 | $0.00 |
| 2025 | 28117 | LIB1 - LIBRARY DIST #1 | $59.68 | $59.67 | $0.00 | $0.00 | $119.35 | $0.00 |
| 2025 | 28117 | HD2 - HOSP DIST #2 | $11.24 | $11.23 | $0.00 | $0.00 | $22.47 | $0.00 |
| 2025 | 28117 | SD46 - SCHOOL DIST #46 | $129.40 | $129.40 | $0.00 | $0.00 | $258.80 | $0.00 |
| 2025 | 28117 | FD4 - FIRE DISTRICT #4 | $358.63 | $358.62 | $0.00 | $0.00 | $717.25 | $0.00 |
| 2025 | 28117 | EMS4 - FIRE DIST #4 EMS | $99.50 | $99.50 | $0.00 | $0.00 | $199.00 | $0.00 |
| 2025 | 28117 | CEM1 - CEMETERY DIST #1 | $2.31 | $2.30 | $0.00 | $0.00 | $4.61 | $0.00 |
| 2025 | 28117 | JCCD - JC Conservation District | $2.55 | $2.55 | $0.00 | $0.00 | $5.10 | $0.00 |
| 2025 | 28117 | NWA - Noxious Weed Assessment | $2.15 | $2.15 | $0.00 | $0.00 | $4.30 | $0.00 |
| 2025 | 28117 | OSS - On Site Septic | $21.50 | $21.50 | $0.00 | $0.00 | $43.00 | $0.00 |
| 2025 | 28117 | WAT - Clean Water District | $13.00 | $13.00 | $0.00 | $0.00 | $26.00 | $0.00 |
| 2025 | 28117 | TOTAL: | $1633.28 | $1633.20 | $0.00 | $0.00 | $3266.48 | $0.00 |
|
| 2025 | 28117 | $1633.28 | $1633.20 | $0.00 | $0.00 | $3266.48 | $0.00 |
Statement Details |
| 2024 | 28176 | STATE - STATE LEVY (SCHOOL) | $445.50 | $445.49 | $0.00 | $0.00 | $890.99 | $0.00 |
| 2024 | 28176 | COUNTY - COUNTY LEVIES (CE, DD, VET, MH) | $190.64 | $190.62 | $0.00 | $0.00 | $381.26 | $0.00 |
| 2024 | 28176 | CONSERVE - CONSERVATION FUTURES | $5.72 | $5.71 | $0.00 | $0.00 | $11.43 | $0.00 |
| 2024 | 28176 | COROADS - COUNTY ROADS (ROADS, DIV TO CE) | $153.40 | $153.39 | $0.00 | $0.00 | $306.79 | $0.00 |
| 2024 | 28176 | PORTPT - PORT DISTRICT | $78.74 | $78.74 | $0.00 | $0.00 | $157.48 | $0.00 |
| 2024 | 28176 | PUD1 - PUD #1 | $12.52 | $12.52 | $0.00 | $0.00 | $25.04 | $0.00 |
| 2024 | 28176 | LIB1 - LIBRARY DIST #1 | $59.35 | $59.34 | $0.00 | $0.00 | $118.69 | $0.00 |
| 2024 | 28176 | HD2 - HOSP DIST #2 | $11.13 | $11.12 | $0.00 | $0.00 | $22.25 | $0.00 |
| 2024 | 28176 | SD46 - SCHOOL DIST #46 | $133.74 | $133.74 | $0.00 | $0.00 | $267.48 | $0.00 |
| 2024 | 28176 | FD4 - FIRE DISTRICT #4 | $345.48 | $345.47 | $0.00 | $0.00 | $690.95 | $0.00 |
| 2024 | 28176 | EMS4 - FIRE DIST #4 EMS | $96.28 | $96.27 | $0.00 | $0.00 | $192.55 | $0.00 |
| 2024 | 28176 | CEM1 - CEMETERY DIST #1 | $2.25 | $2.25 | $0.00 | $0.00 | $4.50 | $0.00 |
| 2024 | 28176 | JCCD - JC Conservation District | $2.55 | $2.55 | $0.00 | $0.00 | $5.10 | $0.00 |
| 2024 | 28176 | NWA - Noxious Weed Assessment | $2.15 | $2.15 | $0.00 | $0.00 | $4.30 | $0.00 |
| 2024 | 28176 | OSS - On Site Septic | $21.00 | $21.00 | $0.00 | $0.00 | $42.00 | $0.00 |
| 2024 | 28176 | WAT - Clean Water District | $12.50 | $12.50 | $0.00 | $0.00 | $25.00 | $0.00 |
| 2024 | 28176 | TOTAL: | $1572.95 | $1572.86 | $0.00 | $0.00 | $3145.81 | $0.00 |
|
| 2024 | 28176 | $1572.95 | $1572.86 | $0.00 | $0.00 | $3145.81 | $0.00 |
Statement Details |
| 2023 | 28218 | STATE - STATE LEVY (SCHOOL) | $344.17 | $344.16 | $0.00 | $0.00 | $688.33 | $0.00 |
| 2023 | 28218 | COUNTY - COUNTY LEVIES (CE, DD, VET, MH) | $150.21 | $150.17 | $0.00 | $0.00 | $300.38 | $0.00 |
| 2023 | 28218 | CONSERVE - CONSERVATION FUTURES | $4.51 | $4.50 | $0.00 | $0.00 | $9.01 | $0.00 |
| 2023 | 28218 | COROADS - COUNTY ROADS (ROADS, DIV TO CE) | $121.51 | $121.50 | $0.00 | $0.00 | $243.01 | $0.00 |
| 2023 | 28218 | PORTPT - PORT DISTRICT | $63.27 | $63.26 | $0.00 | $0.00 | $126.53 | $0.00 |
| 2023 | 28218 | PUD1 - PUD #1 | $9.96 | $9.95 | $0.00 | $0.00 | $19.91 | $0.00 |
| 2023 | 28218 | LIB1 - LIBRARY DIST #1 | $47.01 | $47.01 | $0.00 | $0.00 | $94.02 | $0.00 |
| 2023 | 28218 | HD2 - HOSP DIST #2 | $8.77 | $8.75 | $0.00 | $0.00 | $17.52 | $0.00 |
| 2023 | 28218 | SD46 - SCHOOL DIST #46 | $112.33 | $112.33 | $0.00 | $0.00 | $224.66 | $0.00 |
| 2023 | 28218 | FD4 - FIRE DISTRICT #4 | $186.79 | $186.77 | $0.00 | $0.00 | $373.56 | $0.00 |
| 2023 | 28218 | EMS4 - FIRE DIST #4 EMS | $53.12 | $53.12 | $0.00 | $0.00 | $106.24 | $0.00 |
| 2023 | 28218 | CEM1 - CEMETERY DIST #1 | $1.88 | $1.88 | $0.00 | $0.00 | $3.76 | $0.00 |
| 2023 | 28218 | JCCD - JC Conservation District | $2.55 | $2.55 | $0.00 | $0.00 | $5.10 | $0.00 |
| 2023 | 28218 | NWA - Noxious Weed Assessment | $2.15 | $2.15 | $0.00 | $0.00 | $4.30 | $0.00 |
| 2023 | 28218 | OSS - On Site Septic | $20.50 | $20.50 | $0.00 | $0.00 | $41.00 | $0.00 |
| 2023 | 28218 | WAT - Clean Water District | $12.00 | $12.00 | $0.00 | $0.00 | $24.00 | $0.00 |
| 2023 | 28218 | TOTAL: | $1140.73 | $1140.60 | $0.00 | $0.00 | $2281.33 | $0.00 |
|
| 2023 | 28218 | $1140.73 | $1140.60 | $0.00 | $0.00 | $2281.33 | $0.00 |
Values
| (+) Improvement Homesite Value: | + | $0 | |
| (+) Improvement Non-Homesite Value: | + | $298,328 | |
| (+) Land Homesite Value: | + | $0 | |
| (+) Land Non-Homesite Value: | + | $115,000 | |
| (+) Curr Use (HS): | + | $0 | $0 |
| (+) Curr Use (NHS): | + | $0 | $0 |
| | | -------------------------- | |
| (=) Market Value: | = | $413,328 | |
| (–) Productivity Loss: | – | $0 | |
| | | -------------------------- | |
| (=) Subtotal: | = | $413,328 | |
| (+) Senior Appraised Value: | + | $0 | |
| (+) Non-Senior Appraised Value: | + | $413,328 | |
| | | -------------------------- | |
| (=) Total Appraised Value: | = | $413,328 | |
| (–) Senior Exemption Loss: | – | $0 | |
| (–) Exemption Loss: | – | $0 | |
| | | -------------------------- | |
| (=) Taxable Value: | = | $413,328 | |
Taxing Jurisdiction
| Owner: | STACEY FIELD | | |
| % Ownership: | 100.0000000000% | | |
| Total Value: | $413,328 | | |
| Tax Area: | 0441 - 1-46F4E4H2C1L1P2 |
| CE | COUNTY CURRENT EXPENSE | 0.9034619479 | $413,328 | $413,328 | $373.43 | | |
| CNTYDD | DEVELOPMENTAL DISABILITIES | 0.0052121823 | $413,328 | $413,328 | $2.15 | | |
| CNTYVET | VETERANS RELIEF | 0.0052777810 | $413,328 | $413,328 | $2.18 | | |
| MENTAL | MENTAL HEALTH | 0.0052121823 | $413,328 | $413,328 | $2.15 | | |
| ROADS | COUNTY ROADS | 0.7415066410 | $413,328 | $413,328 | $306.49 | | |
| ROADSCU | COUNTY ROADS TO CUR EXP | 0.0000000000 | $413,328 | $413,328 | $0.00 | | |
| HOSP2CASH | HOSP DIST #2 GENERAL | 0.0536075306 | $413,328 | $413,328 | $22.16 | | |
| SCH46MO | SCHOOL DIST #46 EP & O | 0.6890207067 | $413,328 | $413,328 | $284.79 | | |
| CEM1 | CEMETERY DIST #1 GENERAL | 0.0107168292 | $413,328 | $413,328 | $4.43 | | |
| CONSERVE | CONSERVATION FUTURES | 0.0275621078 | $413,328 | $413,328 | $11.39 | | |
| EMS4 | FIRE DIST #4 EMS | 0.4644216158 | $413,328 | $413,328 | $191.96 | | |
| FD4 | FIRE DIST #4 GENERAL | 1.3939598390 | $413,328 | $413,328 | $576.16 | | |
| FD4BOND | FIRE DIST #4 BOND 2019 | 0.2748466981 | $413,328 | $413,328 | $113.60 | | |
| LIB1 | LIBRARY DIST #1 GENERAL | 0.2868827388 | $413,328 | $413,328 | $118.58 | | |
| PORTPT | PORT OF PT GENERAL | 0.1134941229 | $413,328 | $413,328 | $46.91 | | |
| PORTPTIDD | PORT OF PT IDD 2019 | 0.2577346692 | $413,328 | $413,328 | $106.53 | | |
| PUD1 | PUD #1 GENERAL | 0.0597888892 | $413,328 | $413,328 | $24.71 | | |
| STATE | STATE SCHOOL PART 1 | 1.4940692947 | $413,328 | $413,328 | $617.54 | | |
| STATE2 | STATE SCHOOL PART 2 | 0.8050170049 | $413,328 | $413,328 | $332.74 | | |
| | Total Tax Rate: | 7.5917927814 | | | | | |
| | | | | Taxes w/Current Exemptions: | $3,137.90 | | |
| | | | | Taxes w/o Exemptions: | $3,137.90 | | |
Improvement / Building
| Improvement #1: | Residential Bldg | State Code: | 11 | 1512.0 sqft | Value: | $298,328 |
| Bathrooms (#): | 2 (FULL) | Bathrooms (#): | 1 (HALF) | | Bedrooms (#): | 2 | Exterior Wall: | PL/T1 | | Floor Construction: | FRAME | Foundation: | CONPR | | Heating/Cooling: | ELBB | Roof Cover: | COMP |
|
| | Type | Description | Class CD | Sub Class CD | Year Built | Area |
| | MA | Main Area | 3+ | 15SF | 2008 | 1008.0 |
| | MA2 | Second Floor Main Area | 3+ | 15SF | 2008 | 504.0 |
| | PATIO | House Patio | 3 | * | 2008 | 240.0 |
| | HWPOR | House Wood Porch | 3 | * | 2008 | 24.0 |
| | HBAL | House Balcony | 3 | * | 2008 | 240.0 |
| | SHED | Shed (Table Not Dep) | 3 | * | 2008 | 144.0 |
| | BSMTU | House basement unfinished | 3 | * | 2008 | 1008.0 |
Sketch
Property Image
Land
| 1 | 1235-1165L | | 0.0000 | 0.00 | 0.00 | 0.00 | 1.00 | $115,000 | $0 |
Roll Value History
| 2026 | N/A | N/A | N/A | N/A | N/A |
| 2025 | $298,328 | $115,000 | $0 | $413,328 | $413,328 |
| 2024 | $298,328 | $110,000 | $0 | $408,328 | $408,328 |
| 2023 | $285,358 | $99,750 | $0 | $385,108 | $385,108 |
| 2022 | $212,387 | $80,000 | $0 | $292,387 | $292,387 |
Deed and Sales History
| 1 | 07/25/2023 | SWD | Statutory Warranty Deed | SARA E GEARHART | STACEY FIELD | | | $427,000.00 | 141330 | |
| 2 | 10/02/2015 | SWD | Statutory Warranty Deed | | | | | | 124297 | |
| 3 | 10/02/2015 | SWD | Statutory Warranty Deed | DANIEL T HEIDRICH | SARA E GEARHART | | | $205,000.00 | 124296 | |
| 4 | 02/11/2006 | SWD | Statutory Warranty Deed | BROWN TRUSTEE, RICHARD | HEIDRICH, DANIEL T/LUANNA | 0 | 0 | $50,000.00 | 106000 | 0 |
| 5 | 10/21/2003 | QCD | Quit Claim Deed | FEIL, WILLIAM/RUTH | FIEL TRUST | 0 | 0 | $0.00 | 98628 | 0 |
| 6 | 10/17/2003 | SWD | Statutory Warranty Deed | FEIL TRUST | BROWN, RICHARD/TRUST | 0 | 0 | $192,500.00 | 98629 | 0 |
|   | |
| 7 | 05/02/2001 | QCD | Quit Claim Deed | FEIL, WILLIAM L/RUTH M | FEIL REVOCABLE FAMILY TRUST | 0 | 0 | $0.00 | 92110 | 0 |
| 8 | 06/03/1996 | SWD | Statutory Warranty Deed | STERLING, WILLIAM J/GINA | FEIL, WILLIAM L/RUTH M | 0 | 0 | $19,000.00 | 79681 | 0 |
Payout Agreement
| No payout information available.. |