Property
Account |
| Property ID: | 38870 | Abbreviated Legal Description: | PLEASANT TIDES LOT 52 |
| Parcel # / Geo ID: | 988500051 | Agent Code: | |
| Type: | Real | | |
| Tax Area: | 0441 - 1-46F4E4H2C1L1P2 | Land Use Code | 11 |
| Open Space: | N | DFL | N |
| Historic Property: | N | Remodel Property: | N |
| Multi-Family Redevelopment: | N | | |
| Township: | 25N | Section: | 15 |
| Range: | 2W |
Location |
| Address: | 201 DOGWOOD LN BRINNON, WA 98320 | Mapsco: | 027/003 |
| Neighborhood: | PLEASANT TIDES | Map ID: | |
| Neighborhood CD: | 1235 |
Owner |
| Name: | MICHAEL ELVERSTON | Owner ID: | 93530 |
| Mailing Address: | 201 DOGWOOD LN BRINNON, WA 98320-9764 | % Ownership: | 100.0000000000% |
| | | Exemptions: | |
Pay Tax Due
Select the appropriate checkbox next to the year to be paid. Multiple years may be selected.
*Convenience Fee not included
Taxes and Assessment Details
Property Tax Information as of
03/12/2026
Click on "Statement Details" to expand or collapse a tax statement.
* Please enter a valid date ** Please enter a valid date *
Statement Details |
| 2026 | 28048 | STATE - STATE LEVY (SCHOOL) | $296.31 | $296.30 | $0.00 | $0.00 | $0.00 | $592.61 |
| 2026 | 28048 | COUNTY - COUNTY LEVIES (CE, DD, VET, MH) | $118.46 | $118.46 | $0.00 | $0.00 | $0.00 | $236.92 |
| 2026 | 28048 | CONSERVE - CONSERVATION FUTURES | $3.55 | $3.55 | $0.00 | $0.00 | $0.00 | $7.10 |
| 2026 | 28048 | COROADS - COUNTY ROADS (ROADS, DIV TO CE) | $95.57 | $95.56 | $0.00 | $0.00 | $0.00 | $191.13 |
| 2026 | 28048 | PORTPT - PORT DISTRICT | $47.85 | $47.83 | $0.00 | $0.00 | $0.00 | $95.68 |
| 2026 | 28048 | PUD1 - PUD #1 | $7.71 | $7.70 | $0.00 | $0.00 | $0.00 | $15.41 |
| 2026 | 28048 | LIB1 - LIBRARY DIST #1 | $36.98 | $36.97 | $0.00 | $0.00 | $0.00 | $73.95 |
| 2026 | 28048 | HD2 - HOSP DIST #2 | $6.91 | $6.91 | $0.00 | $0.00 | $0.00 | $13.82 |
| 2026 | 28048 | SD46 - SCHOOL DIST #46 | $88.80 | $88.80 | $0.00 | $0.00 | $0.00 | $177.60 |
| 2026 | 28048 | FD4 - FIRE DISTRICT #4 | $215.08 | $215.07 | $0.00 | $0.00 | $0.00 | $430.15 |
| 2026 | 28048 | EMS4 - FIRE DIST #4 EMS | $59.86 | $59.85 | $0.00 | $0.00 | $0.00 | $119.71 |
| 2026 | 28048 | CEM1 - CEMETERY DIST #1 | $1.38 | $1.38 | $0.00 | $0.00 | $0.00 | $2.76 |
| 2026 | 28048 | JCCD - JC Conservation District | $2.55 | $2.55 | $0.00 | $0.00 | $0.00 | $5.10 |
| 2026 | 28048 | NWA - Noxious Weed Assessment | $2.98 | $2.97 | $0.00 | $0.00 | $0.00 | $5.95 |
| 2026 | 28048 | OSS - On Site Septic | $23.10 | $23.10 | $0.00 | $0.00 | $0.00 | $46.20 |
| 2026 | 28048 | WAT - Clean Water District | $13.00 | $13.00 | $0.00 | $0.00 | $0.00 | $26.00 |
| 2026 | 28048 | TOTAL: | $1020.09 | $1020.00 | $0.00 | $0.00 | $0.00 | $2040.09 |
|
| 2026 | 28048 | $1020.09 | $1020.00 | $0.00 | $0.00 | $0.00 | $2040.09 |
Statement Details |
| 2025 | 28120 | STATE - STATE LEVY (SCHOOL) | $304.87 | $304.85 | $0.00 | $0.00 | $609.72 | $0.00 |
| 2025 | 28120 | COUNTY - COUNTY LEVIES (CE, DD, VET, MH) | $119.89 | $119.88 | $0.00 | $0.00 | $239.77 | $0.00 |
| 2025 | 28120 | CONSERVE - CONSERVATION FUTURES | $3.60 | $3.59 | $0.00 | $0.00 | $7.19 | $0.00 |
| 2025 | 28120 | COROADS - COUNTY ROADS (ROADS, DIV TO CE) | $96.05 | $96.04 | $0.00 | $0.00 | $192.09 | $0.00 |
| 2025 | 28120 | PORTPT - PORT DISTRICT | $48.93 | $48.91 | $0.00 | $0.00 | $97.84 | $0.00 |
| 2025 | 28120 | PUD1 - PUD #1 | $7.85 | $7.84 | $0.00 | $0.00 | $15.69 | $0.00 |
| 2025 | 28120 | LIB1 - LIBRARY DIST #1 | $37.16 | $37.16 | $0.00 | $0.00 | $74.32 | $0.00 |
| 2025 | 28120 | HD2 - HOSP DIST #2 | $7.00 | $6.99 | $0.00 | $0.00 | $13.99 | $0.00 |
| 2025 | 28120 | SD46 - SCHOOL DIST #46 | $80.58 | $80.57 | $0.00 | $0.00 | $161.15 | $0.00 |
| 2025 | 28120 | FD4 - FIRE DISTRICT #4 | $223.31 | $223.31 | $0.00 | $0.00 | $446.62 | $0.00 |
| 2025 | 28120 | EMS4 - FIRE DIST #4 EMS | $61.96 | $61.95 | $0.00 | $0.00 | $123.91 | $0.00 |
| 2025 | 28120 | CEM1 - CEMETERY DIST #1 | $1.44 | $1.43 | $0.00 | $0.00 | $2.87 | $0.00 |
| 2025 | 28120 | JCCD - JC Conservation District | $2.55 | $2.55 | $0.00 | $0.00 | $5.10 | $0.00 |
| 2025 | 28120 | NWA - Noxious Weed Assessment | $2.15 | $2.15 | $0.00 | $0.00 | $4.30 | $0.00 |
| 2025 | 28120 | OSS - On Site Septic | $21.50 | $21.50 | $0.00 | $0.00 | $43.00 | $0.00 |
| 2025 | 28120 | WAT - Clean Water District | $13.00 | $13.00 | $0.00 | $0.00 | $26.00 | $0.00 |
| 2025 | 28120 | TOTAL: | $1031.84 | $1031.72 | $0.00 | $0.00 | $2063.56 | $0.00 |
|
| 2025 | 28120 | $1031.84 | $1031.72 | $0.00 | $0.00 | $2063.56 | $0.00 |
Statement Details |
| 2024 | 28179 | STATE - STATE LEVY (SCHOOL) | $275.10 | $275.08 | $0.00 | $0.00 | $550.18 | $0.00 |
| 2024 | 28179 | COUNTY - COUNTY LEVIES (CE, DD, VET, MH) | $117.73 | $117.70 | $0.00 | $0.00 | $235.43 | $0.00 |
| 2024 | 28179 | CONSERVE - CONSERVATION FUTURES | $3.53 | $3.53 | $0.00 | $0.00 | $7.06 | $0.00 |
| 2024 | 28179 | COROADS - COUNTY ROADS (ROADS, DIV TO CE) | $94.72 | $94.72 | $0.00 | $0.00 | $189.44 | $0.00 |
| 2024 | 28179 | PORTPT - PORT DISTRICT | $48.63 | $48.61 | $0.00 | $0.00 | $97.24 | $0.00 |
| 2024 | 28179 | PUD1 - PUD #1 | $7.73 | $7.73 | $0.00 | $0.00 | $15.46 | $0.00 |
| 2024 | 28179 | LIB1 - LIBRARY DIST #1 | $36.65 | $36.64 | $0.00 | $0.00 | $73.29 | $0.00 |
| 2024 | 28179 | HD2 - HOSP DIST #2 | $6.87 | $6.87 | $0.00 | $0.00 | $13.74 | $0.00 |
| 2024 | 28179 | SD46 - SCHOOL DIST #46 | $82.59 | $82.58 | $0.00 | $0.00 | $165.17 | $0.00 |
| 2024 | 28179 | FD4 - FIRE DISTRICT #4 | $213.33 | $213.33 | $0.00 | $0.00 | $426.66 | $0.00 |
| 2024 | 28179 | EMS4 - FIRE DIST #4 EMS | $59.45 | $59.45 | $0.00 | $0.00 | $118.90 | $0.00 |
| 2024 | 28179 | CEM1 - CEMETERY DIST #1 | $1.39 | $1.39 | $0.00 | $0.00 | $2.78 | $0.00 |
| 2024 | 28179 | JCCD - JC Conservation District | $2.55 | $2.55 | $0.00 | $0.00 | $5.10 | $0.00 |
| 2024 | 28179 | NWA - Noxious Weed Assessment | $2.15 | $2.15 | $0.00 | $0.00 | $4.30 | $0.00 |
| 2024 | 28179 | OSS - On Site Septic | $21.00 | $21.00 | $0.00 | $0.00 | $42.00 | $0.00 |
| 2024 | 28179 | WAT - Clean Water District | $12.50 | $12.50 | $0.00 | $0.00 | $25.00 | $0.00 |
| 2024 | 28179 | TOTAL: | $985.92 | $985.83 | $0.00 | $0.00 | $1971.75 | $0.00 |
|
| 2024 | 28179 | $985.92 | $985.83 | $0.00 | $0.00 | $1971.75 | $0.00 |
Statement Details |
| 2023 | 28221 | STATE - STATE LEVY (SCHOOL) | $252.06 | $252.06 | $0.00 | $0.00 | $504.12 | $0.00 |
| 2023 | 28221 | COUNTY - COUNTY LEVIES (CE, DD, VET, MH) | $110.00 | $109.98 | $0.00 | $0.00 | $219.98 | $0.00 |
| 2023 | 28221 | CONSERVE - CONSERVATION FUTURES | $3.30 | $3.30 | $0.00 | $0.00 | $6.60 | $0.00 |
| 2023 | 28221 | COROADS - COUNTY ROADS (ROADS, DIV TO CE) | $89.00 | $88.98 | $0.00 | $0.00 | $177.98 | $0.00 |
| 2023 | 28221 | PORTPT - PORT DISTRICT | $46.34 | $46.33 | $0.00 | $0.00 | $92.67 | $0.00 |
| 2023 | 28221 | PUD1 - PUD #1 | $7.29 | $7.29 | $0.00 | $0.00 | $14.58 | $0.00 |
| 2023 | 28221 | LIB1 - LIBRARY DIST #1 | $34.43 | $34.43 | $0.00 | $0.00 | $68.86 | $0.00 |
| 2023 | 28221 | HD2 - HOSP DIST #2 | $6.43 | $6.41 | $0.00 | $0.00 | $12.84 | $0.00 |
| 2023 | 28221 | SD46 - SCHOOL DIST #46 | $82.27 | $82.27 | $0.00 | $0.00 | $164.54 | $0.00 |
| 2023 | 28221 | FD4 - FIRE DISTRICT #4 | $136.80 | $136.79 | $0.00 | $0.00 | $273.59 | $0.00 |
| 2023 | 28221 | EMS4 - FIRE DIST #4 EMS | $38.91 | $38.90 | $0.00 | $0.00 | $77.81 | $0.00 |
| 2023 | 28221 | CEM1 - CEMETERY DIST #1 | $1.38 | $1.37 | $0.00 | $0.00 | $2.75 | $0.00 |
| 2023 | 28221 | JCCD - JC Conservation District | $2.55 | $2.55 | $0.00 | $0.00 | $5.10 | $0.00 |
| 2023 | 28221 | NWA - Noxious Weed Assessment | $2.15 | $2.15 | $0.00 | $0.00 | $4.30 | $0.00 |
| 2023 | 28221 | OSS - On Site Septic | $20.50 | $20.50 | $0.00 | $0.00 | $41.00 | $0.00 |
| 2023 | 28221 | WAT - Clean Water District | $12.00 | $12.00 | $0.00 | $0.00 | $24.00 | $0.00 |
| 2023 | 28221 | TOTAL: | $845.41 | $845.31 | $0.00 | $0.00 | $1690.72 | $0.00 |
|
| 2023 | 28221 | $845.41 | $845.31 | $0.00 | $0.00 | $1690.72 | $0.00 |
Values
| (+) Improvement Homesite Value: | + | $0 | |
| (+) Improvement Non-Homesite Value: | + | $177,259 | |
| (+) Land Homesite Value: | + | $0 | |
| (+) Land Non-Homesite Value: | + | $80,500 | |
| (+) Curr Use (HS): | + | $0 | $0 |
| (+) Curr Use (NHS): | + | $0 | $0 |
| | | -------------------------- | |
| (=) Market Value: | = | $257,759 | |
| (–) Productivity Loss: | – | $0 | |
| | | -------------------------- | |
| (=) Subtotal: | = | $257,759 | |
| (+) Senior Appraised Value: | + | $0 | |
| (+) Non-Senior Appraised Value: | + | $257,759 | |
| | | -------------------------- | |
| (=) Total Appraised Value: | = | $257,759 | |
| (–) Senior Exemption Loss: | – | $0 | |
| (–) Exemption Loss: | – | $0 | |
| | | -------------------------- | |
| (=) Taxable Value: | = | $257,759 | |
Taxing Jurisdiction
| Owner: | MICHAEL ELVERSTON | | |
| % Ownership: | 100.0000000000% | | |
| Total Value: | $257,759 | | |
| Tax Area: | 0441 - 1-46F4E4H2C1L1P2 |
| CE | COUNTY CURRENT EXPENSE | 0.9034619479 | $257,759 | $257,759 | $232.88 | | |
| CNTYDD | DEVELOPMENTAL DISABILITIES | 0.0052121823 | $257,759 | $257,759 | $1.34 | | |
| CNTYVET | VETERANS RELIEF | 0.0052777810 | $257,759 | $257,759 | $1.36 | | |
| MENTAL | MENTAL HEALTH | 0.0052121823 | $257,759 | $257,759 | $1.34 | | |
| ROADS | COUNTY ROADS | 0.7415066410 | $257,759 | $257,759 | $191.13 | | |
| ROADSCU | COUNTY ROADS TO CUR EXP | 0.0000000000 | $257,759 | $257,759 | $0.00 | | |
| HOSP2CASH | HOSP DIST #2 GENERAL | 0.0536075306 | $257,759 | $257,759 | $13.82 | | |
| SCH46MO | SCHOOL DIST #46 EP & O | 0.6890207067 | $257,759 | $257,759 | $177.60 | | |
| CEM1 | CEMETERY DIST #1 GENERAL | 0.0107168292 | $257,759 | $257,759 | $2.76 | | |
| CONSERVE | CONSERVATION FUTURES | 0.0275621078 | $257,759 | $257,759 | $7.10 | | |
| EMS4 | FIRE DIST #4 EMS | 0.4644216158 | $257,759 | $257,759 | $119.71 | | |
| FD4 | FIRE DIST #4 GENERAL | 1.3939598390 | $257,759 | $257,759 | $359.31 | | |
| FD4BOND | FIRE DIST #4 BOND 2019 | 0.2748466981 | $257,759 | $257,759 | $70.84 | | |
| LIB1 | LIBRARY DIST #1 GENERAL | 0.2868827388 | $257,759 | $257,759 | $73.95 | | |
| PORTPT | PORT OF PT GENERAL | 0.1134941229 | $257,759 | $257,759 | $29.25 | | |
| PORTPTIDD | PORT OF PT IDD 2019 | 0.2577346692 | $257,759 | $257,759 | $66.43 | | |
| PUD1 | PUD #1 GENERAL | 0.0597888892 | $257,759 | $257,759 | $15.41 | | |
| STATE | STATE SCHOOL PART 1 | 1.4940692947 | $257,759 | $257,759 | $385.11 | | |
| STATE2 | STATE SCHOOL PART 2 | 0.8050170049 | $257,759 | $257,759 | $207.50 | | |
| | Total Tax Rate: | 7.5917927814 | | | | | |
| | | | | Taxes w/Current Exemptions: | $1,956.84 | | |
| | | | | Taxes w/o Exemptions: | $1,956.84 | | |
Improvement / Building
| Improvement #1: | Residential Bldg | State Code: | 11 | 1184.0 sqft | Value: | $177,259 |
| Bathrooms (#): | 2 (FULL) | Bedrooms (#): | 2 | | Exterior Wall: | SI/ST | Fireplace: | WD ST-FAIR | | Floor Construction: | FRAME | Foundation: | CONBL | | Heating/Cooling: | HPUMP | Roof Cover: | METAL |
|
| | Type | Description | Class CD | Sub Class CD | Year Built | Area |
| | MA | Main Area | 3 | 15SF | 1974 | 864.0 |
| | MA2 | Second Floor Main Area | 3 | 15SF | 1974 | 320.0 |
| | HDECK | House Deck | 3 | * | 1974 | 528.0 |
| | GBSMT | Basement Garage | 3 | 15SF | 1974 | 552.0 |
| | SHED | Shed (Table Not Dep) | 3 | * | 1974 | 81.0 |
| | OTHER | Other | * | * | 1974 | 0.0 |
Sketch
Property Image
Land
| 1 | 1235-1185L | | 0.0000 | 0.00 | 0.00 | 0.00 | 1.00 | $80,500 | $0 |
Roll Value History
| 2026 | N/A | N/A | N/A | N/A | N/A |
| 2025 | $177,259 | $80,500 | $0 | $257,759 | $257,759 |
| 2024 | $177,259 | $77,000 | $0 | $254,259 | $254,259 |
| 2023 | $169,552 | $68,250 | $0 | $237,802 | $237,802 |
| 2022 | $154,138 | $60,000 | $0 | $214,138 | $214,138 |
Deed and Sales History
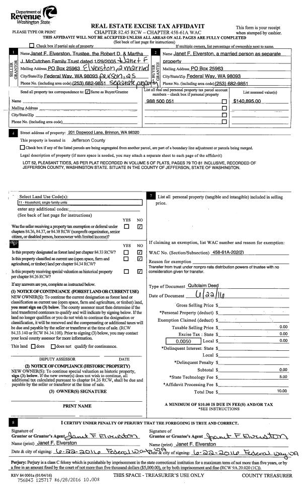
| 1 | 01/16/2020 | QCD | Quit Claim Deed | JANET F ELVERSTON | MICHAEL ELVERSTON | | | | 133868 | |
| 2 | 06/22/2016 | QCD | Quit Claim Deed | | | | | | 125717 | |
| 3 | 01/29/2005 | QCD | Quit Claim Deed | MCCUTCHEN, ROBERT D | MCCUTCHEN, ROBERT D & MARTHA | | | $0.00 | 103856 | 0 |
| 4 | 01/29/2005 | QCD | Quit Claim Deed | MCCUTCHEN, ROBERT D | ELVERSTON, JANET F | | | $0.00 | 103857 | 0 |
| 5 | 10/08/2003 | SWD | Statutory Warranty Deed | LAYTON, JANET S | MCCUTCHEN, ROBERT & MARTHA/TR | 0 | 0 | $125,000.00 | 98522 | 0 |
| 6 | 04/21/1993 | SWD | Statutory Warranty Deed | FLINDER, RONALD/AMM | LAYTON, MICHAEL/JANET | 0 | 0 | $82,265.00 | 70950 | 0 |
Payout Agreement
| No payout information available.. |