Property
Account |
| Property ID: | 38945 | Abbreviated Legal Description: | PLUMMER'S ADDITION BLK 7 LOTS 1 & 3 |
| Parcel # / Geo ID: | 988800701 | Agent Code: | |
| Type: | Real | | |
| Tax Area: | 0110 - C-50F1E1H2 | Land Use Code | 11 |
| Open Space: | N | DFL | N |
| Historic Property: | N | Remodel Property: | N |
| Multi-Family Redevelopment: | N | | |
| Township: | 30N | Section: | 2 |
| Range: | 1W |
Location |
| Address: | 436 LINCOLN ST PORT TOWNSEND, WA 98368 | Mapsco: | 108/016 |
| Neighborhood: | PLUMMERS LP AND HELANDER SP | Map ID: | |
| Neighborhood CD: | 6370 |
Owner |
| Name: | MARK & MARY WILLIAMS | Owner ID: | 112941 |
| Mailing Address: | 436 LINCOLN ST PORT TOWNSEND, WA 98368 | % Ownership: | 100.0000000000% |
| | | Exemptions: | |
Pay Tax Due
Select the appropriate checkbox next to the year to be paid. Multiple years may be selected.
*Convenience Fee not included
Taxes and Assessment Details
Property Tax Information as of
03/12/2026
Click on "Statement Details" to expand or collapse a tax statement.
* Please enter a valid date ** Please enter a valid date *
Statement Details |
| 2026 | 28123 | STATE - STATE LEVY (SCHOOL) | $881.54 | $881.52 | $0.00 | $0.00 | $0.00 | $1763.06 |
| 2026 | 28123 | COUNTY - COUNTY LEVIES (CE, DD, VET, MH) | $352.44 | $352.43 | $0.00 | $0.00 | $0.00 | $704.87 |
| 2026 | 28123 | CONSERVE - CONSERVATION FUTURES | $10.57 | $10.57 | $0.00 | $0.00 | $0.00 | $21.14 |
| 2026 | 28123 | CITYPT - CITY OF PT | $500.26 | $500.24 | $0.00 | $0.00 | $0.00 | $1000.50 |
| 2026 | 28123 | PORTPT - PORT DISTRICT | $142.34 | $142.33 | $0.00 | $0.00 | $0.00 | $284.67 |
| 2026 | 28123 | PUD1 - PUD #1 | $22.93 | $22.92 | $0.00 | $0.00 | $0.00 | $45.85 |
| 2026 | 28123 | HD2 - HOSP DIST #2 | $20.56 | $20.55 | $0.00 | $0.00 | $0.00 | $41.11 |
| 2026 | 28123 | SD50 - SCHOOL DIST #50 | $698.37 | $698.36 | $0.00 | $0.00 | $0.00 | $1396.73 |
| 2026 | 28123 | FD1 - FIRE DISTRICT #1 | $466.71 | $466.70 | $0.00 | $0.00 | $0.00 | $933.41 |
| 2026 | 28123 | EMS1 - FIRE DIST #1 EMS | $179.44 | $179.44 | $0.00 | $0.00 | $0.00 | $358.88 |
| 2026 | 28123 | JCCD - JC Conservation District | $2.55 | $2.55 | $0.00 | $0.00 | $0.00 | $5.10 |
| 2026 | 28123 | NWA - Noxious Weed Assessment | $2.98 | $2.97 | $0.00 | $0.00 | $0.00 | $5.95 |
| 2026 | 28123 | TOTAL: | $3280.69 | $3280.58 | $0.00 | $0.00 | $0.00 | $6561.27 |
|
| 2026 | 28123 | $3280.69 | $3280.58 | $0.00 | $0.00 | $0.00 | $6561.27 |
Statement Details |
| 2025 | 28195 | STATE - STATE LEVY (SCHOOL) | $594.96 | $594.95 | $0.00 | $0.00 | $1189.91 | $0.00 |
| 2025 | 28195 | COUNTY - COUNTY LEVIES (CE, DD, VET, MH) | $243.08 | $243.05 | $0.00 | $0.00 | $486.13 | $0.00 |
| 2025 | 28195 | CONSERVE - CONSERVATION FUTURES | $7.29 | $7.29 | $0.00 | $0.00 | $14.58 | $0.00 |
| 2025 | 28195 | CITYPT - CITY OF PT | $349.13 | $349.12 | $0.00 | $0.00 | $698.25 | $0.00 |
| 2025 | 28195 | PORTPT - PORT DISTRICT | $99.20 | $99.18 | $0.00 | $0.00 | $198.38 | $0.00 |
| 2025 | 28195 | PUD1 - PUD #1 | $15.91 | $15.90 | $0.00 | $0.00 | $31.81 | $0.00 |
| 2025 | 28195 | HD2 - HOSP DIST #2 | $14.18 | $14.18 | $0.00 | $0.00 | $28.36 | $0.00 |
| 2025 | 28195 | SD50 - SCHOOL DIST #50 | $403.37 | $403.36 | $0.00 | $0.00 | $806.73 | $0.00 |
| 2025 | 28195 | FD1 - FIRE DISTRICT #1 | $320.76 | $320.75 | $0.00 | $0.00 | $641.51 | $0.00 |
| 2025 | 28195 | EMS1 - FIRE DIST #1 EMS | $123.37 | $123.37 | $0.00 | $0.00 | $246.74 | $0.00 |
| 2025 | 28195 | TOTAL: | $2171.25 | $2171.15 | $0.00 | $0.00 | $4342.40 | $0.00 |
|
| 2025 | 28195 | $2171.25 | $2171.15 | $0.00 | $0.00 | $4342.40 | $0.00 |
Statement Details |
| 2024 | 28254 | STATE - STATE LEVY (SCHOOL) | $141.77 | $141.77 | $0.00 | $0.00 | $283.54 | $0.00 |
| 2024 | 28254 | COUNTY - COUNTY LEVIES (CE, DD, VET, MH) | $93.22 | $93.19 | $0.00 | $0.00 | $186.41 | $0.00 |
| 2024 | 28254 | CONSERVE - CONSERVATION FUTURES | $2.80 | $2.79 | $0.00 | $0.00 | $5.59 | $0.00 |
| 2024 | 28254 | CITYPT - CITY OF PT | $128.07 | $128.06 | $0.00 | $0.00 | $256.13 | $0.00 |
| 2024 | 28254 | PORTPT - PORT DISTRICT | $38.50 | $38.50 | $0.00 | $0.00 | $77.00 | $0.00 |
| 2024 | 28254 | PUD1 - PUD #1 | $6.12 | $6.12 | $0.00 | $0.00 | $12.24 | $0.00 |
| 2024 | 28254 | HD2 - HOSP DIST #2 | $5.44 | $5.44 | $0.00 | $0.00 | $10.88 | $0.00 |
| 2024 | 28254 | SD50 - SCHOOL DIST #50 | $0.00 | $0.00 | $0.00 | $0.00 | $0.00 | $0.00 |
| 2024 | 28254 | FD1 - FIRE DISTRICT #1 | $123.24 | $123.24 | $0.00 | $0.00 | $246.48 | $0.00 |
| 2024 | 28254 | EMS1 - FIRE DIST #1 EMS | $47.08 | $47.07 | $0.00 | $0.00 | $94.15 | $0.00 |
| 2024 | 28254 | TOTAL: | $586.24 | $586.18 | $0.00 | $0.00 | $1172.42 | $0.00 |
|
| 2024 | 28254 | $586.24 | $586.18 | $0.00 | $0.00 | $1172.42 | $0.00 |
Statement Details |
| 2023 | 28296 | STATE - STATE LEVY (SCHOOL) | $144.40 | $144.40 | $0.00 | $0.00 | $288.80 | $0.00 |
| 2023 | 28296 | COUNTY - COUNTY LEVIES (CE, DD, VET, MH) | $96.72 | $96.71 | $0.00 | $0.00 | $193.43 | $0.00 |
| 2023 | 28296 | CONSERVE - CONSERVATION FUTURES | $2.90 | $2.90 | $0.00 | $0.00 | $5.80 | $0.00 |
| 2023 | 28296 | CITYPT - CITY OF PT | $131.30 | $131.29 | $0.00 | $0.00 | $262.59 | $0.00 |
| 2023 | 28296 | PORTPT - PORT DISTRICT | $40.74 | $40.74 | $0.00 | $0.00 | $81.48 | $0.00 |
| 2023 | 28296 | PUD1 - PUD #1 | $6.41 | $6.41 | $0.00 | $0.00 | $12.82 | $0.00 |
| 2023 | 28296 | HD2 - HOSP DIST #2 | $5.65 | $5.64 | $0.00 | $0.00 | $11.29 | $0.00 |
| 2023 | 28296 | SD50 - SCHOOL DIST #50 | $0.00 | $0.00 | $0.00 | $0.00 | $0.00 | $0.00 |
| 2023 | 28296 | FD1 - FIRE DISTRICT #1 | $79.68 | $79.67 | $0.00 | $0.00 | $159.35 | $0.00 |
| 2023 | 28296 | EMS1 - FIRE DIST #1 EMS | $33.89 | $33.89 | $0.00 | $0.00 | $67.78 | $0.00 |
| 2023 | 28296 | JCCD - JC Conservation District | $2.55 | $2.55 | $0.00 | $0.00 | $5.10 | $0.00 |
| 2023 | 28296 | NWA - Noxious Weed Assessment | $2.15 | $2.15 | $0.00 | $0.00 | $4.30 | $0.00 |
| 2023 | 28296 | TOTAL: | $546.39 | $546.35 | $0.00 | $0.00 | $1092.74 | $0.00 |
|
| 2023 | 28296 | $546.39 | $546.35 | $0.00 | $0.00 | $1092.74 | $0.00 |
Values
| (+) Improvement Homesite Value: | + | $384,351 | |
| (+) Improvement Non-Homesite Value: | + | $0 | |
| (+) Land Homesite Value: | + | $382,500 | |
| (+) Land Non-Homesite Value: | + | $0 | |
| (+) Curr Use (HS): | + | $0 | $0 |
| (+) Curr Use (NHS): | + | $0 | $0 |
| | | -------------------------- | |
| (=) Market Value: | = | $766,851 | |
| (–) Productivity Loss: | – | $0 | |
| | | -------------------------- | |
| (=) Subtotal: | = | $766,851 | |
| (+) Senior Appraised Value: | + | $0 | |
| (+) Non-Senior Appraised Value: | + | $766,851 | |
| | | -------------------------- | |
| (=) Total Appraised Value: | = | $766,851 | |
| (–) Senior Exemption Loss: | – | $0 | |
| (–) Exemption Loss: | – | $0 | |
| | | -------------------------- | |
| (=) Taxable Value: | = | $766,851 | |
Taxing Jurisdiction
| Owner: | MARK & MARY WILLIAMS | | |
| % Ownership: | 100.0000000000% | | |
| Total Value: | $766,851 | | |
| Tax Area: | 0110 - C-50F1E1H2 |
| CE | COUNTY CURRENT EXPENSE | 0.9034619479 | $766,851 | $766,851 | $692.82 | | |
| CNTYDD | DEVELOPMENTAL DISABILITIES | 0.0052121823 | $766,851 | $766,851 | $4.00 | | |
| CNTYVET | VETERANS RELIEF | 0.0052777810 | $766,851 | $766,851 | $4.05 | | |
| MENTAL | MENTAL HEALTH | 0.0052121823 | $766,851 | $766,851 | $4.00 | | |
| PTGEN | CITY OF PT GENERAL | 0.8551967795 | $766,851 | $766,851 | $655.81 | | |
| PTLLL | CITY OF PT - LIBRARY LID LIFT | 0.4010114288 | $766,851 | $766,851 | $307.52 | | |
| PTMVBOND | CITY OF PT MV BOND | 0.0484717981 | $766,851 | $766,851 | $37.17 | | |
| HOSP2CASH | HOSP DIST #2 GENERAL | 0.0536075306 | $766,851 | $766,851 | $41.11 | | |
| SCH50BOND | SCHOOL DIST #50 BOND 2016 | 0.5377451389 | $766,851 | $766,851 | $412.37 | | |
| SCH50CP | SCHOOL DIST #50 CAP PROJ | 0.4573475088 | $766,851 | $766,851 | $350.72 | | |
| SCH50MO | SCHOOL DIST #50 EP & O | 0.8262822886 | $766,851 | $766,851 | $633.64 | | |
| CONSERVE | CONSERVATION FUTURES | 0.0275621078 | $766,851 | $766,851 | $21.14 | | |
| EMS1 | FIRE DIST #1 EMS | 0.4679948282 | $766,851 | $766,851 | $358.88 | | |
| FD1 | FIRE DIST #1 GENERAL | 1.2171942929 | $766,851 | $766,851 | $933.41 | | |
| PORTPT | PORT OF PT GENERAL | 0.1134941229 | $766,851 | $766,851 | $87.03 | | |
| PORTPTIDD | PORT OF PT IDD 2019 | 0.2577346692 | $766,851 | $766,851 | $197.64 | | |
| PUD1 | PUD #1 GENERAL | 0.0597888892 | $766,851 | $766,851 | $45.85 | | |
| STATE | STATE SCHOOL PART 1 | 1.4940692947 | $766,851 | $766,851 | $1,145.73 | | |
| STATE2 | STATE SCHOOL PART 2 | 0.8050170049 | $766,851 | $766,851 | $617.33 | | |
| | Total Tax Rate: | 8.5416817766 | | | | | |
| | | | | Taxes w/Current Exemptions: | $6,550.22 | | |
| | | | | Taxes w/o Exemptions: | $6,550.22 | | |
Improvement / Building
| Improvement #1: | Residential Bldg | State Code: | 11 | 2105.0 sqft | Value: | $384,351 |
| Bathrooms (#): | 1 (FULL) | Bedrooms (#): | 2 | | Exterior Wall: | SI/ST | Fireplace: | SIN 1-AVG | | Floor Construction: | FRAME | Foundation: | CONPR | | Heating/Cooling: | ELBB | Inside Verify: | YES-FIX | | Roof Cover: | COMP |   |   |
|
| | Type | Description | Class CD | Sub Class CD | Year Built | Area |
| | MA | Main Area | 4- | 15SF | 1883 | 1753.0 |
| | MA2 | Second Floor Main Area | 4- | 15SF | 1883 | 352.0 |
| | HWPOR | House Wood Porch | 3 | * | 1883 | 188.0 |
| | BSMTU | House basement unfinished | * | * | 1883 | 0.0 |
Sketch
Property Image
Land
| 1 | 6370-1155L | | 0.0000 | 0.00 | 0.00 | 0.00 | 1.00 | $265,000 | $0 |
| 2 | 6370-1155L | | 0.0000 | 0.00 | 0.00 | 0.00 | 1.00 | $117,500 | $0 |
Roll Value History
| 2026 | N/A | N/A | N/A | N/A | N/A |
| 2025 | $384,351 | $382,500 | $0 | $766,851 | $766,851 |
| 2024 | $273,225 | $378,000 | $0 | $651,225 | $188,292 |
| 2023 | $261,346 | $355,000 | $0 | $616,346 | $188,292 |
| 2022 | $261,346 | $350,000 | $0 | $611,346 | $188,292 |
Deed and Sales History
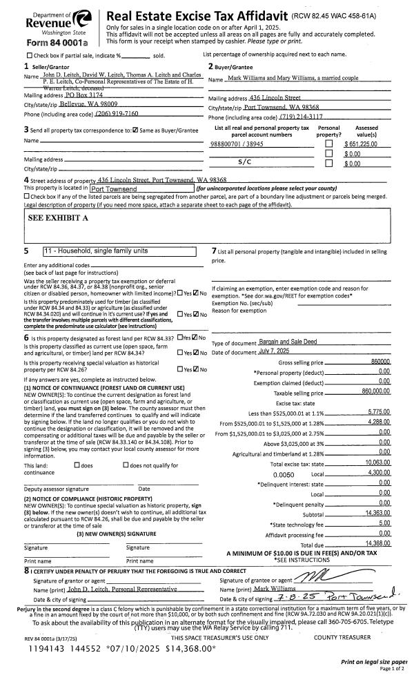
| 1 | 07/07/2025 | BSD | Bargain and Sale Deed | JOHN/DAVID/THOMAS/CHARLES LEITCH | MARK & MARY WILLIAMS | | | $860,000.00 | 144552 | |
Payout Agreement
| No payout information available.. |