Property
Account |
| Property ID: | 38946 | Abbreviated Legal Description: | PLUMMER'S ADDITION BLK 7 LOTS 2 & 4 2 & 4(ALL),6(S2'OF E25') BND BY LLA#134895 |
| Parcel # / Geo ID: | 988800702 | Agent Code: | |
| Type: | Real | | |
| Tax Area: | 0110 - C-50F1E1H2 | Land Use Code | 11 |
| Open Space: | N | DFL | N |
| Historic Property: | N | Remodel Property: | N |
| Multi-Family Redevelopment: | N | | |
| Township: | 30N | Section: | 1 |
| Range: | 1W |
Location |
| Address: | 410 LINCOLN ST PORT TOWNSEND, WA 98368 | Mapsco: | 108/018 |
| Neighborhood: | PLUMMERS LP AND HELANDER SP | Map ID: | |
| Neighborhood CD: | 6370 |
Owner |
| Name: | DANIEL L & ALLISON D NEEDLES | Owner ID: | 91429 |
| Mailing Address: | 410 LINCOLN ST PORT TOWNSEND, WA 98368-4411 | % Ownership: | 100.0000000000% |
| | | Exemptions: | |
Pay Tax Due
Select the appropriate checkbox next to the year to be paid. Multiple years may be selected.
*Convenience Fee not included
Taxes and Assessment Details
Property Tax Information as of
03/10/2026
Click on "Statement Details" to expand or collapse a tax statement.
* Please enter a valid date ** Please enter a valid date *
Statement Details |
| 2026 | 28124 | STATE - STATE LEVY (SCHOOL) | $1447.97 | $1447.96 | $0.00 | $0.00 | $0.00 | $2895.93 |
| 2026 | 28124 | COUNTY - COUNTY LEVIES (CE, DD, VET, MH) | $578.91 | $578.88 | $0.00 | $0.00 | $0.00 | $1157.79 |
| 2026 | 28124 | CONSERVE - CONSERVATION FUTURES | $17.36 | $17.36 | $0.00 | $0.00 | $0.00 | $34.72 |
| 2026 | 28124 | CITYPT - CITY OF PT | $821.70 | $821.68 | $0.00 | $0.00 | $0.00 | $1643.38 |
| 2026 | 28124 | PORTPT - PORT DISTRICT | $233.80 | $233.80 | $0.00 | $0.00 | $0.00 | $467.60 |
| 2026 | 28124 | PUD1 - PUD #1 | $37.66 | $37.65 | $0.00 | $0.00 | $0.00 | $75.31 |
| 2026 | 28124 | HD2 - HOSP DIST #2 | $33.76 | $33.76 | $0.00 | $0.00 | $0.00 | $67.52 |
| 2026 | 28124 | SD50 - SCHOOL DIST #50 | $1147.11 | $1147.10 | $0.00 | $0.00 | $0.00 | $2294.21 |
| 2026 | 28124 | FD1 - FIRE DISTRICT #1 | $766.59 | $766.59 | $0.00 | $0.00 | $0.00 | $1533.18 |
| 2026 | 28124 | EMS1 - FIRE DIST #1 EMS | $294.75 | $294.74 | $0.00 | $0.00 | $0.00 | $589.49 |
| 2026 | 28124 | JCCD - JC Conservation District | $2.55 | $2.55 | $0.00 | $0.00 | $0.00 | $5.10 |
| 2026 | 28124 | NWA - Noxious Weed Assessment | $2.98 | $2.97 | $0.00 | $0.00 | $0.00 | $5.95 |
| 2026 | 28124 | TOTAL: | $5385.14 | $5385.04 | $0.00 | $0.00 | $0.00 | $10770.18 |
|
| 2026 | 28124 | $5385.14 | $5385.04 | $0.00 | $0.00 | $0.00 | $10770.18 |
Statement Details |
| 2025 | 28196 | STATE - STATE LEVY (SCHOOL) | $1443.21 | $1443.21 | $0.00 | $0.00 | $2886.42 | $0.00 |
| 2025 | 28196 | COUNTY - COUNTY LEVIES (CE, DD, VET, MH) | $567.53 | $567.53 | $0.00 | $0.00 | $1135.06 | $0.00 |
| 2025 | 28196 | CONSERVE - CONSERVATION FUTURES | $17.02 | $17.02 | $0.00 | $0.00 | $34.04 | $0.00 |
| 2025 | 28196 | CITYPT - CITY OF PT | $818.45 | $818.44 | $0.00 | $0.00 | $1636.89 | $0.00 |
| 2025 | 28196 | PORTPT - PORT DISTRICT | $231.59 | $231.58 | $0.00 | $0.00 | $463.17 | $0.00 |
| 2025 | 28196 | PUD1 - PUD #1 | $37.14 | $37.13 | $0.00 | $0.00 | $74.27 | $0.00 |
| 2025 | 28196 | HD2 - HOSP DIST #2 | $33.11 | $33.11 | $0.00 | $0.00 | $66.22 | $0.00 |
| 2025 | 28196 | SD50 - SCHOOL DIST #50 | $1054.75 | $1054.74 | $0.00 | $0.00 | $2109.49 | $0.00 |
| 2025 | 28196 | FD1 - FIRE DISTRICT #1 | $748.93 | $748.92 | $0.00 | $0.00 | $1497.85 | $0.00 |
| 2025 | 28196 | EMS1 - FIRE DIST #1 EMS | $288.06 | $288.05 | $0.00 | $0.00 | $576.11 | $0.00 |
| 2025 | 28196 | JCCD - JC Conservation District | $2.55 | $2.55 | $0.00 | $0.00 | $5.10 | $0.00 |
| 2025 | 28196 | NWA - Noxious Weed Assessment | $2.15 | $2.15 | $0.00 | $0.00 | $4.30 | $0.00 |
| 2025 | 28196 | TOTAL: | $5244.49 | $5244.43 | $0.00 | $0.00 | $10488.92 | $0.00 |
|
| 2025 | 28196 | $5244.49 | $5244.43 | $0.00 | $0.00 | $10488.92 | $0.00 |
Statement Details |
| 2024 | 28255 | STATE - STATE LEVY (SCHOOL) | $1324.27 | $1324.26 | $0.00 | $0.00 | $2648.53 | $0.00 |
| 2024 | 28255 | COUNTY - COUNTY LEVIES (CE, DD, VET, MH) | $566.67 | $566.67 | $0.00 | $0.00 | $1133.34 | $0.00 |
| 2024 | 28255 | CONSERVE - CONSERVATION FUTURES | $16.99 | $16.99 | $0.00 | $0.00 | $33.98 | $0.00 |
| 2024 | 28255 | CITYPT - CITY OF PT | $809.70 | $809.67 | $0.00 | $0.00 | $1619.37 | $0.00 |
| 2024 | 28255 | PORTPT - PORT DISTRICT | $234.06 | $234.06 | $0.00 | $0.00 | $468.12 | $0.00 |
| 2024 | 28255 | PUD1 - PUD #1 | $37.22 | $37.22 | $0.00 | $0.00 | $74.44 | $0.00 |
| 2024 | 28255 | HD2 - HOSP DIST #2 | $33.07 | $33.06 | $0.00 | $0.00 | $66.13 | $0.00 |
| 2024 | 28255 | SD50 - SCHOOL DIST #50 | $1071.40 | $1071.39 | $0.00 | $0.00 | $2142.79 | $0.00 |
| 2024 | 28255 | FD1 - FIRE DISTRICT #1 | $749.27 | $749.26 | $0.00 | $0.00 | $1498.53 | $0.00 |
| 2024 | 28255 | EMS1 - FIRE DIST #1 EMS | $286.19 | $286.19 | $0.00 | $0.00 | $572.38 | $0.00 |
| 2024 | 28255 | JCCD - JC Conservation District | $2.55 | $2.55 | $0.00 | $0.00 | $5.10 | $0.00 |
| 2024 | 28255 | NWA - Noxious Weed Assessment | $2.15 | $2.15 | $0.00 | $0.00 | $4.30 | $0.00 |
| 2024 | 28255 | TOTAL: | $5133.54 | $5133.47 | $0.00 | $0.00 | $10267.01 | $0.00 |
|
| 2024 | 28255 | $5133.54 | $5133.47 | $0.00 | $0.00 | $10267.01 | $0.00 |
Statement Details |
| 2023 | 28297 | STATE - STATE LEVY (SCHOOL) | $1300.27 | $1300.26 | $0.00 | $0.00 | $2600.53 | $0.00 |
| 2023 | 28297 | COUNTY - COUNTY LEVIES (CE, DD, VET, MH) | $567.39 | $567.39 | $0.00 | $0.00 | $1134.78 | $0.00 |
| 2023 | 28297 | CONSERVE - CONSERVATION FUTURES | $17.02 | $17.01 | $0.00 | $0.00 | $34.03 | $0.00 |
| 2023 | 28297 | CITYPT - CITY OF PT | $801.93 | $801.92 | $0.00 | $0.00 | $1603.85 | $0.00 |
| 2023 | 28297 | PORTPT - PORT DISTRICT | $239.02 | $239.02 | $0.00 | $0.00 | $478.04 | $0.00 |
| 2023 | 28297 | PUD1 - PUD #1 | $37.61 | $37.61 | $0.00 | $0.00 | $75.22 | $0.00 |
| 2023 | 28297 | HD2 - HOSP DIST #2 | $33.12 | $33.10 | $0.00 | $0.00 | $66.22 | $0.00 |
| 2023 | 28297 | SD50 - SCHOOL DIST #50 | $1031.79 | $1031.78 | $0.00 | $0.00 | $2063.57 | $0.00 |
| 2023 | 28297 | FD1 - FIRE DISTRICT #1 | $467.42 | $467.42 | $0.00 | $0.00 | $934.84 | $0.00 |
| 2023 | 28297 | EMS1 - FIRE DIST #1 EMS | $198.83 | $198.83 | $0.00 | $0.00 | $397.66 | $0.00 |
| 2023 | 28297 | JCCD - JC Conservation District | $2.55 | $2.55 | $0.00 | $0.00 | $5.10 | $0.00 |
| 2023 | 28297 | NWA - Noxious Weed Assessment | $2.15 | $2.15 | $0.00 | $0.00 | $4.30 | $0.00 |
| 2023 | 28297 | TOTAL: | $4699.10 | $4699.04 | $0.00 | $0.00 | $9398.14 | $0.00 |
|
| 2023 | 28297 | $4699.10 | $4699.04 | $0.00 | $0.00 | $9398.14 | $0.00 |
Values
| (+) Improvement Homesite Value: | + | $0 | |
| (+) Improvement Non-Homesite Value: | + | $877,102 | |
| (+) Land Homesite Value: | + | $0 | |
| (+) Land Non-Homesite Value: | + | $382,500 | |
| (+) Curr Use (HS): | + | $0 | $0 |
| (+) Curr Use (NHS): | + | $0 | $0 |
| | | -------------------------- | |
| (=) Market Value: | = | $1,259,602 | |
| (–) Productivity Loss: | – | $0 | |
| | | -------------------------- | |
| (=) Subtotal: | = | $1,259,602 | |
| (+) Senior Appraised Value: | + | $0 | |
| (+) Non-Senior Appraised Value: | + | $1,259,602 | |
| | | -------------------------- | |
| (=) Total Appraised Value: | = | $1,259,602 | |
| (–) Senior Exemption Loss: | – | $0 | |
| (–) Exemption Loss: | – | $0 | |
| | | -------------------------- | |
| (=) Taxable Value: | = | $1,259,602 | |
Taxing Jurisdiction
| Owner: | DANIEL L & ALLISON D NEEDLES | | |
| % Ownership: | 100.0000000000% | | |
| Total Value: | $1,259,602 | | |
| Tax Area: | 0110 - C-50F1E1H2 |
| CE | COUNTY CURRENT EXPENSE | 0.9034619479 | $1,259,602 | $1,259,602 | $1,138.00 | | |
| CNTYDD | DEVELOPMENTAL DISABILITIES | 0.0052121823 | $1,259,602 | $1,259,602 | $6.57 | | |
| CNTYVET | VETERANS RELIEF | 0.0052777810 | $1,259,602 | $1,259,602 | $6.65 | | |
| MENTAL | MENTAL HEALTH | 0.0052121823 | $1,259,602 | $1,259,602 | $6.57 | | |
| PTGEN | CITY OF PT GENERAL | 0.8551967795 | $1,259,602 | $1,259,602 | $1,077.21 | | |
| PTLLL | CITY OF PT - LIBRARY LID LIFT | 0.4010114288 | $1,259,602 | $1,259,602 | $505.11 | | |
| PTMVBOND | CITY OF PT MV BOND | 0.0484717981 | $1,259,602 | $1,259,602 | $61.06 | | |
| HOSP2CASH | HOSP DIST #2 GENERAL | 0.0536075306 | $1,259,602 | $1,259,602 | $67.52 | | |
| SCH50BOND | SCHOOL DIST #50 BOND 2016 | 0.5377451389 | $1,259,602 | $1,259,602 | $677.34 | | |
| SCH50CP | SCHOOL DIST #50 CAP PROJ | 0.4573475088 | $1,259,602 | $1,259,602 | $576.08 | | |
| SCH50MO | SCHOOL DIST #50 EP & O | 0.8262822886 | $1,259,602 | $1,259,602 | $1,040.79 | | |
| CONSERVE | CONSERVATION FUTURES | 0.0275621078 | $1,259,602 | $1,259,602 | $34.72 | | |
| EMS1 | FIRE DIST #1 EMS | 0.4679948282 | $1,259,602 | $1,259,602 | $589.49 | | |
| FD1 | FIRE DIST #1 GENERAL | 1.2171942929 | $1,259,602 | $1,259,602 | $1,533.18 | | |
| PORTPT | PORT OF PT GENERAL | 0.1134941229 | $1,259,602 | $1,259,602 | $142.96 | | |
| PORTPTIDD | PORT OF PT IDD 2019 | 0.2577346692 | $1,259,602 | $1,259,602 | $324.64 | | |
| PUD1 | PUD #1 GENERAL | 0.0597888892 | $1,259,602 | $1,259,602 | $75.31 | | |
| STATE | STATE SCHOOL PART 1 | 1.4940692947 | $1,259,602 | $1,259,602 | $1,881.93 | | |
| STATE2 | STATE SCHOOL PART 2 | 0.8050170049 | $1,259,602 | $1,259,602 | $1,014.00 | | |
| | Total Tax Rate: | 8.5416817766 | | | | | |
| | | | | Taxes w/Current Exemptions: | $10,759.13 | | |
| | | | | Taxes w/o Exemptions: | $10,759.13 | | |
Improvement / Building
| Improvement #1: | Residential Bldg | State Code: | 11 | 2602.0 sqft | Value: | $877,102 |
| Bathrooms (#): | 2 (FULL) | Bedrooms (#): | 4 | | Exterior Wall: | SI/ST | Fireplace: | SIN 2-GOOD | | Floor Construction: | FRAME | Foundation: | CONBL | | Heating/Cooling: | F/A | Roof Cover: | COMP |
|
| | Type | Description | Class CD | Sub Class CD | Year Built | Area |
| | MA | Main Area | 5+ | 2S | 1889 | 1301.0 |
| | MA2 | Second Floor Main Area | 5+ | 2S | 1889 | 1301.0 |
| | HWPOR | House Wood Porch | 5 | * | 1889 | 112.0 |
| | HCPOR | House Concrete Porch | 5 | * | 1889 | 216.0 |
| | GDET | Detached Garage | 5 | 2S | 1889 | 336.0 |
| | ADDN | Addition (Table Not Dep) | 5 | * | 1889 | 512.0 |
| | ADDN | Addition (Table Not Dep) | 3 | * | 1889 | 240.0 |
| | HDECK | House Deck | 3 | * | 1889 | 240.0 |
Sketch
Property Image
Land
| 1 | 6370-1155L | | 0.0000 | 0.00 | 0.00 | 0.00 | 1.00 | $265,000 | $0 |
| 2 | 6370-1155L | | 0.0000 | 0.00 | 0.00 | 0.00 | 1.00 | $117,500 | $0 |
Roll Value History
| 2026 | N/A | N/A | N/A | N/A | N/A |
| 2025 | $877,102 | $382,500 | $0 | $1,259,602 | $1,259,602 |
| 2024 | $825,667 | $378,000 | $0 | $1,203,667 | $1,203,667 |
| 2023 | $789,768 | $355,000 | $0 | $1,144,768 | $1,144,768 |
| 2022 | $754,654 | $350,000 | $0 | $1,104,654 | $1,104,654 |
Deed and Sales History
| 1 | 08/07/2020 | QCD | Quit Claim Deed | MARGARET H SCHOCH | DANIEL L & ALLISON D NEEDLES | | | | 134896 | |
| 2 | 08/12/2020 | BLA | Boundary Line Adjustment | MARGARET H SCHOCH | DANIEL L & ALLISON D NEEDLES | | | | 0 | |
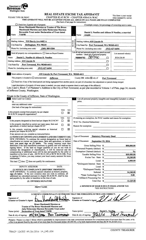
| 3 | 09/22/2016 | SWD | Statutory Warranty Deed | BRUCE M MARSTON TRTE | DANIEL L & ALLISON D NEEDLES | | | $800,000.00 | 126303 | |
| 4 | 07/10/1998 | QCD | Quit Claim Deed | MARSTON, BRUCE M/JULIA M | MARSTON, BRUCE M & JULIA M/TR | 0 | 0 | $0.00 | 85023 | 0 |
Payout Agreement
| No payout information available.. |