Property
Account |
| Property ID: | 38955 | Abbreviated Legal Description: | LE BRANE SUMMARY SHORT PLAT LOT B |
| Parcel # / Geo ID: | 988800806 | Agent Code: | |
| Type: | Real | | |
| Tax Area: | 0110 - C-50F1E1H2 | Land Use Code | 11 |
| Open Space: | N | DFL | N |
| Historic Property: | N | Remodel Property: | N |
| Multi-Family Redevelopment: | N | | |
| Township: | 30N | Section: | 2 |
| Range: | 1W |
Location |
| Address: | 877 MONROE ST PORT TOWNSEND, WA 98368 | Mapsco: | 162/046 |
| Neighborhood: | PLUMMERS LP AND HELANDER SP | Map ID: | |
| Neighborhood CD: | 6370 |
Owner |
| Name: | IAN NAYLOR & MATHEW SMITH TRUST | Owner ID: | 113173 |
| Mailing Address: | IAN NAYLOR TRUSTEE MATHEW SMITH TRUSTEE 9009 DAYTON AVE N SEATTLE, WA 98103-3716 | % Ownership: | 100.0000000000% |
| | | Exemptions: | |
Pay Tax Due
There is currently No Amount Due on this property.
Taxes and Assessment Details
Property Tax Information as of
03/13/2026
Click on "Statement Details" to expand or collapse a tax statement.
* Please enter a valid date ** Please enter a valid date *
Statement Details |
| | TOTAL: | $0.00 | $0.00 | $0.00 | $0.00 | $0.00 | $0.00 |
|
| | $0.00 | $0.00 | $0.00 | $0.00 | $0.00 | $0.00 |
Values
| (+) Improvement Homesite Value: | + | $0 | |
| (+) Improvement Non-Homesite Value: | + | $610,728 | |
| (+) Land Homesite Value: | + | $0 | |
| (+) Land Non-Homesite Value: | + | $240,000 | |
| (+) Curr Use (HS): | + | $0 | $0 |
| (+) Curr Use (NHS): | + | $0 | $0 |
| | | -------------------------- | |
| (=) Market Value: | = | $850,728 | |
| (–) Productivity Loss: | – | $0 | |
| | | -------------------------- | |
| (=) Subtotal: | = | $850,728 | |
| (+) Senior Appraised Value: | + | $0 | |
| (+) Non-Senior Appraised Value: | + | $850,728 | |
| | | -------------------------- | |
| (=) Total Appraised Value: | = | $850,728 | |
| (–) Senior Exemption Loss: | – | $0 | |
| (–) Exemption Loss: | – | $0 | |
| | | -------------------------- | |
| (=) Taxable Value: | = | $850,728 | |
Taxing Jurisdiction
| Owner: | IAN NAYLOR & MATHEW SMITH TRUST | | |
| % Ownership: | 100.0000000000% | | |
| Total Value: | $850,728 | | |
| Tax Area: | 0110 - C-50F1E1H2 |
| CE | COUNTY CURRENT EXPENSE | 0.9034619479 | $850,728 | $850,728 | $768.60 | | |
| CNTYDD | DEVELOPMENTAL DISABILITIES | 0.0052121823 | $850,728 | $850,728 | $4.43 | | |
| CNTYVET | VETERANS RELIEF | 0.0052777810 | $850,728 | $850,728 | $4.49 | | |
| MENTAL | MENTAL HEALTH | 0.0052121823 | $850,728 | $850,728 | $4.43 | | |
| PTGEN | CITY OF PT GENERAL | 0.8551967795 | $850,728 | $850,728 | $727.54 | | |
| PTLLL | CITY OF PT - LIBRARY LID LIFT | 0.4010114288 | $850,728 | $850,728 | $341.15 | | |
| PTMVBOND | CITY OF PT MV BOND | 0.0484717981 | $850,728 | $850,728 | $41.24 | | |
| HOSP2CASH | HOSP DIST #2 GENERAL | 0.0536075306 | $850,728 | $850,728 | $45.61 | | |
| SCH50BOND | SCHOOL DIST #50 BOND 2016 | 0.5377451389 | $850,728 | $850,728 | $457.47 | | |
| SCH50CP | SCHOOL DIST #50 CAP PROJ | 0.4573475088 | $850,728 | $850,728 | $389.08 | | |
| SCH50MO | SCHOOL DIST #50 EP & O | 0.8262822886 | $850,728 | $850,728 | $702.94 | | |
| CONSERVE | CONSERVATION FUTURES | 0.0275621078 | $850,728 | $850,728 | $23.45 | | |
| EMS1 | FIRE DIST #1 EMS | 0.4679948282 | $850,728 | $850,728 | $398.14 | | |
| FD1 | FIRE DIST #1 GENERAL | 1.2171942929 | $850,728 | $850,728 | $1,035.50 | | |
| PORTPT | PORT OF PT GENERAL | 0.1134941229 | $850,728 | $850,728 | $96.55 | | |
| PORTPTIDD | PORT OF PT IDD 2019 | 0.2577346692 | $850,728 | $850,728 | $219.26 | | |
| PUD1 | PUD #1 GENERAL | 0.0597888892 | $850,728 | $850,728 | $50.86 | | |
| STATE | STATE SCHOOL PART 1 | 1.4940692947 | $850,728 | $850,728 | $1,271.05 | | |
| STATE2 | STATE SCHOOL PART 2 | 0.8050170049 | $850,728 | $850,728 | $684.85 | | |
| | Total Tax Rate: | 8.5416817766 | | | | | |
| | | | | Taxes w/Current Exemptions: | $7,266.64 | | |
| | | | | Taxes w/o Exemptions: | $7,266.64 | | |
Improvement / Building
| Improvement #1: | Residential Bldg | State Code: | 11 | 1578.0 sqft | Value: | $481,711 |
| Bathrooms (#): | 2 (FULL) | Bedrooms (#): | 3 | | Exterior Wall: | SI/ST | Fireplace: | WD ST-AVG | | Floor Construction: | FRAME | Foundation: | CONPR | | Heating/Cooling: | HTWTR | Inside Verify: | YES-FIX | | Roof Cover: | COMP |   |   |
|
| | Type | Description | Class CD | Sub Class CD | Year Built | Area |
| | MA | Main Area | 5+ | 2S | 2001 | 1059.0 |
| | MA2 | Second Floor Main Area | 5+ | 2S | 2001 | 519.0 |
| | PATIO | House Patio | 5 | * | 2001 | 400.0 |
| | HWPOR | House Wood Porch | 5 | * | 2001 | 60.0 |
| | HBAL | House Balcony | 5 | * | 2001 | 6.0 |
| | CONCD | Concrete Drive | 5 | * | 2001 | 300.0 |
| Improvement #2: | Residential Bldg | State Code: | 11 | 0.0 sqft | Value: | $129,017 |
| | Type | Description | Class CD | Sub Class CD | Year Built | Area |
| | GDET | Detached Garage | 4 | ADU | 2001 | 676.0 |
| | ADDN | Addition (Table Not Dep) | 4 | ADU | 2001 | 530.0 |
Sketch
Property Image
Land
| 1 | 6370-1165L | Uptown Std Lot (Avg) | 0.0000 | 0.00 | 0.00 | 0.00 | 1.00 | $240,000 | $0 |
Roll Value History
| 2026 | N/A | N/A | N/A | N/A | N/A |
| 2025 | $610,728 | $240,000 | $0 | $850,728 | $850,728 |
| 2024 | $579,265 | $241,500 | $0 | $820,765 | $820,765 |
| 2023 | $554,080 | $225,000 | $0 | $779,080 | $779,080 |
| 2022 | $554,080 | $220,000 | $0 | $774,080 | $774,080 |
Deed and Sales History
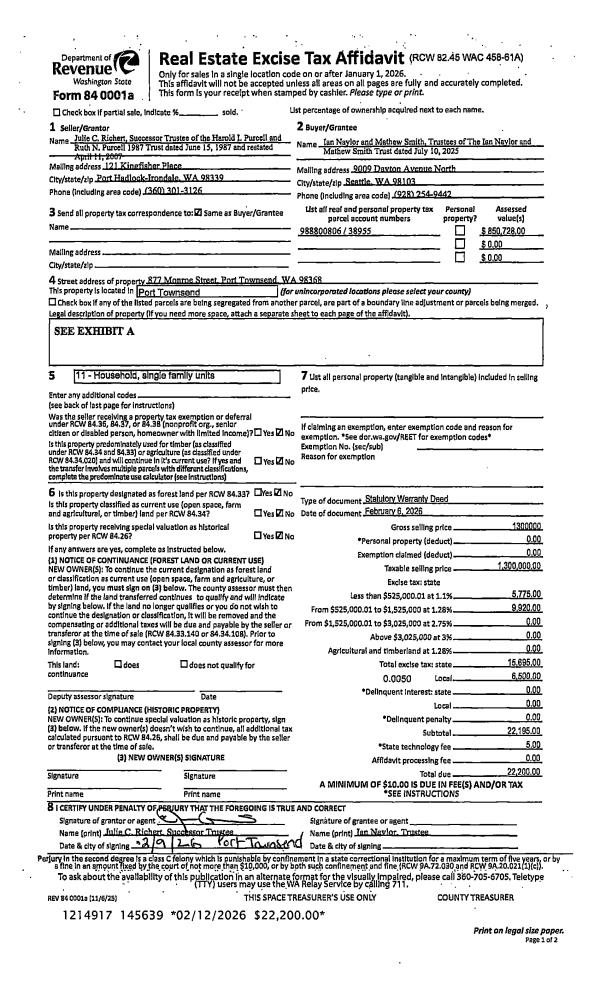
| 1 | 02/06/2026 | SWD | Statutory Warranty Deed | RUTH N PURCELL TRUSTEE | IAN NAYLOR & MATHEW SMITH TRUST | | | $1,300,000.00 | 145639 | |
| 2 | 04/11/2007 | TRED | Trustee Deed | PURCELL, HAROLD I/RUTH N | PURCELL, HAROLD I/RUTH N TRUST | | | $0.00 | 108990 | 0 |
| 3 | 10/09/2000 | SWD | Statutory Warranty Deed | MONSOUR, JOHN E/MARSHA K | PURCELL, HAROLD I & RUTH N/TR | 0 | 0 | $60,500.00 | 90794 | 0 |
| 4 | 11/21/1994 | SWD | Statutory Warranty Deed | ACKERT, CATHERINE H | MONSOUR, JOHN E/TORNOW, MARSHA | 0 | 0 | $55,000.00 | 75683 | 0 |
Payout Agreement
| No payout information available.. |