Property
Account |
| Property ID: | 38975 | Abbreviated Legal Description: | PLUMMER'S ADDITION- BLK 12 LOTS 3(ALL), 5(S14') |
| Parcel # / Geo ID: | 988801203 | Agent Code: | |
| Type: | Real | | |
| Tax Area: | 0110 - C-50F1E1H2 | Land Use Code | 11 |
| Open Space: | N | DFL | N |
| Historic Property: | N | Remodel Property: | N |
| Multi-Family Redevelopment: | N | | |
| Township: | 30N | Section: | 2 |
| Range: | 1W |
Location |
| Address: | 820 TYLER ST PORT TOWNSEND, WA 98368 | Mapsco: | 109/003 |
| Neighborhood: | PLUMMERS LP AND HELANDER SP | Map ID: | |
| Neighborhood CD: | 6370 |
Owner |
| Name: | 2005 MATTINSON FAMILY TRUST | Owner ID: | 109891 |
| Mailing Address: | LAURIE A & WILLIAM J MATTINSON TRUSTEES 820 TYLER ST PORT TOWNSEND, WA 98368-6540 | % Ownership: | 100.0000000000% |
| | | Exemptions: | |
Pay Tax Due
Select the appropriate checkbox next to the year to be paid. Multiple years may be selected.
*Convenience Fee not included
Taxes and Assessment Details
Property Tax Information as of
03/12/2026
Click on "Statement Details" to expand or collapse a tax statement.
* Please enter a valid date ** Please enter a valid date *
Statement Details |
| 2026 | 28153 | STATE - STATE LEVY (SCHOOL) | $784.87 | $784.85 | $0.00 | $0.00 | $784.87 | $784.85 |
| 2026 | 28153 | COUNTY - COUNTY LEVIES (CE, DD, VET, MH) | $313.79 | $313.78 | $0.00 | $0.00 | $313.79 | $313.78 |
| 2026 | 28153 | CONSERVE - CONSERVATION FUTURES | $9.41 | $9.41 | $0.00 | $0.00 | $9.41 | $9.41 |
| 2026 | 28153 | CITYPT - CITY OF PT | $445.40 | $445.37 | $0.00 | $0.00 | $445.40 | $445.37 |
| 2026 | 28153 | PORTPT - PORT DISTRICT | $126.74 | $126.72 | $0.00 | $0.00 | $126.74 | $126.72 |
| 2026 | 28153 | PUD1 - PUD #1 | $20.41 | $20.41 | $0.00 | $0.00 | $20.41 | $20.41 |
| 2026 | 28153 | HD2 - HOSP DIST #2 | $18.30 | $18.30 | $0.00 | $0.00 | $18.30 | $18.30 |
| 2026 | 28153 | SD50 - SCHOOL DIST #50 | $621.79 | $621.77 | $0.00 | $0.00 | $621.79 | $621.77 |
| 2026 | 28153 | FD1 - FIRE DISTRICT #1 | $415.53 | $415.52 | $0.00 | $0.00 | $415.53 | $415.52 |
| 2026 | 28153 | EMS1 - FIRE DIST #1 EMS | $159.77 | $159.76 | $0.00 | $0.00 | $159.77 | $159.76 |
| 2026 | 28153 | JCCD - JC Conservation District | $2.55 | $2.55 | $0.00 | $0.00 | $2.55 | $2.55 |
| 2026 | 28153 | NWA - Noxious Weed Assessment | $2.98 | $2.97 | $0.00 | $0.00 | $2.98 | $2.97 |
| 2026 | 28153 | TOTAL: | $2921.54 | $2921.41 | $0.00 | $0.00 | $2921.54 | $2921.41 |
|
| 2026 | 28153 | $2921.54 | $2921.41 | $0.00 | $0.00 | $2921.54 | $2921.41 |
Statement Details |
| 2025 | 28225 | STATE - STATE LEVY (SCHOOL) | $784.51 | $784.50 | $0.00 | $0.00 | $1569.01 | $0.00 |
| 2025 | 28225 | COUNTY - COUNTY LEVIES (CE, DD, VET, MH) | $308.52 | $308.48 | $0.00 | $0.00 | $617.00 | $0.00 |
| 2025 | 28225 | CONSERVE - CONSERVATION FUTURES | $9.25 | $9.25 | $0.00 | $0.00 | $18.50 | $0.00 |
| 2025 | 28225 | CITYPT - CITY OF PT | $444.90 | $444.88 | $0.00 | $0.00 | $889.78 | $0.00 |
| 2025 | 28225 | PORTPT - PORT DISTRICT | $125.89 | $125.88 | $0.00 | $0.00 | $251.77 | $0.00 |
| 2025 | 28225 | PUD1 - PUD #1 | $20.19 | $20.18 | $0.00 | $0.00 | $40.37 | $0.00 |
| 2025 | 28225 | HD2 - HOSP DIST #2 | $18.00 | $18.00 | $0.00 | $0.00 | $36.00 | $0.00 |
| 2025 | 28225 | SD50 - SCHOOL DIST #50 | $573.35 | $573.33 | $0.00 | $0.00 | $1146.68 | $0.00 |
| 2025 | 28225 | FD1 - FIRE DISTRICT #1 | $407.10 | $407.10 | $0.00 | $0.00 | $814.20 | $0.00 |
| 2025 | 28225 | EMS1 - FIRE DIST #1 EMS | $156.58 | $156.58 | $0.00 | $0.00 | $313.16 | $0.00 |
| 2025 | 28225 | JCCD - JC Conservation District | $2.55 | $2.55 | $0.00 | $0.00 | $5.10 | $0.00 |
| 2025 | 28225 | NWA - Noxious Weed Assessment | $2.15 | $2.15 | $0.00 | $0.00 | $4.30 | $0.00 |
| 2025 | 28225 | TOTAL: | $2852.99 | $2852.88 | $0.00 | $0.00 | $5705.87 | $0.00 |
|
| 2025 | 28225 | $2852.99 | $2852.88 | $0.00 | $0.00 | $5705.87 | $0.00 |
Statement Details |
| 2024 | 28284 | STATE - STATE LEVY (SCHOOL) | $734.11 | $734.09 | $0.00 | $0.00 | $1468.20 | $0.00 |
| 2024 | 28284 | COUNTY - COUNTY LEVIES (CE, DD, VET, MH) | $314.15 | $314.11 | $0.00 | $0.00 | $628.26 | $0.00 |
| 2024 | 28284 | CONSERVE - CONSERVATION FUTURES | $9.42 | $9.42 | $0.00 | $0.00 | $18.84 | $0.00 |
| 2024 | 28284 | CITYPT - CITY OF PT | $448.85 | $448.84 | $0.00 | $0.00 | $897.69 | $0.00 |
| 2024 | 28284 | PORTPT - PORT DISTRICT | $129.75 | $129.74 | $0.00 | $0.00 | $259.49 | $0.00 |
| 2024 | 28284 | PUD1 - PUD #1 | $20.64 | $20.63 | $0.00 | $0.00 | $41.27 | $0.00 |
| 2024 | 28284 | HD2 - HOSP DIST #2 | $18.33 | $18.33 | $0.00 | $0.00 | $36.66 | $0.00 |
| 2024 | 28284 | SD50 - SCHOOL DIST #50 | $593.93 | $593.91 | $0.00 | $0.00 | $1187.84 | $0.00 |
| 2024 | 28284 | FD1 - FIRE DISTRICT #1 | $415.35 | $415.35 | $0.00 | $0.00 | $830.70 | $0.00 |
| 2024 | 28284 | EMS1 - FIRE DIST #1 EMS | $158.65 | $158.65 | $0.00 | $0.00 | $317.30 | $0.00 |
| 2024 | 28284 | JCCD - JC Conservation District | $2.55 | $2.55 | $0.00 | $0.00 | $5.10 | $0.00 |
| 2024 | 28284 | NWA - Noxious Weed Assessment | $2.15 | $2.15 | $0.00 | $0.00 | $4.30 | $0.00 |
| 2024 | 28284 | TOTAL: | $2847.88 | $2847.77 | $0.00 | $0.00 | $5695.65 | $0.00 |
|
| 2024 | 28284 | $2847.88 | $2847.77 | $0.00 | $0.00 | $5695.65 | $0.00 |
Statement Details |
| 2023 | 28326 | STATE - STATE LEVY (SCHOOL) | $651.76 | $651.75 | $0.00 | $0.00 | $1303.51 | $0.00 |
| 2023 | 28326 | COUNTY - COUNTY LEVIES (CE, DD, VET, MH) | $284.42 | $284.39 | $0.00 | $0.00 | $568.81 | $0.00 |
| 2023 | 28326 | CONSERVE - CONSERVATION FUTURES | $8.53 | $8.53 | $0.00 | $0.00 | $17.06 | $0.00 |
| 2023 | 28326 | CITYPT - CITY OF PT | $401.97 | $401.95 | $0.00 | $0.00 | $803.92 | $0.00 |
| 2023 | 28326 | PORTPT - PORT DISTRICT | $119.81 | $119.80 | $0.00 | $0.00 | $239.61 | $0.00 |
| 2023 | 28326 | PUD1 - PUD #1 | $18.85 | $18.85 | $0.00 | $0.00 | $37.70 | $0.00 |
| 2023 | 28326 | HD2 - HOSP DIST #2 | $16.60 | $16.59 | $0.00 | $0.00 | $33.19 | $0.00 |
| 2023 | 28326 | SD50 - SCHOOL DIST #50 | $517.19 | $517.17 | $0.00 | $0.00 | $1034.36 | $0.00 |
| 2023 | 28326 | FD1 - FIRE DISTRICT #1 | $234.30 | $234.29 | $0.00 | $0.00 | $468.59 | $0.00 |
| 2023 | 28326 | EMS1 - FIRE DIST #1 EMS | $99.67 | $99.66 | $0.00 | $0.00 | $199.33 | $0.00 |
| 2023 | 28326 | JCCD - JC Conservation District | $2.55 | $2.55 | $0.00 | $0.00 | $5.10 | $0.00 |
| 2023 | 28326 | NWA - Noxious Weed Assessment | $2.15 | $2.15 | $0.00 | $0.00 | $4.30 | $0.00 |
| 2023 | 28326 | TOTAL: | $2357.80 | $2357.68 | $0.00 | $0.00 | $4715.48 | $0.00 |
|
| 2023 | 28326 | $2357.80 | $2357.68 | $0.00 | $0.00 | $4715.48 | $0.00 |
Values
| (+) Improvement Homesite Value: | + | $333,834 | |
| (+) Improvement Non-Homesite Value: | + | $44,551 | |
| (+) Land Homesite Value: | + | $275,000 | |
| (+) Land Non-Homesite Value: | + | $29,375 | |
| (+) Curr Use (HS): | + | $0 | $0 |
| (+) Curr Use (NHS): | + | $0 | $0 |
| | | -------------------------- | |
| (=) Market Value: | = | $682,760 | |
| (–) Productivity Loss: | – | $0 | |
| | | -------------------------- | |
| (=) Subtotal: | = | $682,760 | |
| (+) Senior Appraised Value: | + | $0 | |
| (+) Non-Senior Appraised Value: | + | $682,760 | |
| | | -------------------------- | |
| (=) Total Appraised Value: | = | $682,760 | |
| (–) Senior Exemption Loss: | – | $0 | |
| (–) Exemption Loss: | – | $0 | |
| | | -------------------------- | |
| (=) Taxable Value: | = | $682,760 | |
Taxing Jurisdiction
| Owner: | 2005 MATTINSON FAMILY TRUST | | |
| % Ownership: | 100.0000000000% | | |
| Total Value: | $682,760 | | |
| Tax Area: | 0110 - C-50F1E1H2 |
| CE | COUNTY CURRENT EXPENSE | 0.9034619479 | $682,760 | $682,760 | $616.85 | | |
| CNTYDD | DEVELOPMENTAL DISABILITIES | 0.0052121823 | $682,760 | $682,760 | $3.56 | | |
| CNTYVET | VETERANS RELIEF | 0.0052777810 | $682,760 | $682,760 | $3.60 | | |
| MENTAL | MENTAL HEALTH | 0.0052121823 | $682,760 | $682,760 | $3.56 | | |
| PTGEN | CITY OF PT GENERAL | 0.8551967795 | $682,760 | $682,760 | $583.89 | | |
| PTLLL | CITY OF PT - LIBRARY LID LIFT | 0.4010114288 | $682,760 | $682,760 | $273.79 | | |
| PTMVBOND | CITY OF PT MV BOND | 0.0484717981 | $682,760 | $682,760 | $33.09 | | |
| HOSP2CASH | HOSP DIST #2 GENERAL | 0.0536075306 | $682,760 | $682,760 | $36.60 | | |
| SCH50BOND | SCHOOL DIST #50 BOND 2016 | 0.5377451389 | $682,760 | $682,760 | $367.15 | | |
| SCH50CP | SCHOOL DIST #50 CAP PROJ | 0.4573475088 | $682,760 | $682,760 | $312.26 | | |
| SCH50MO | SCHOOL DIST #50 EP & O | 0.8262822886 | $682,760 | $682,760 | $564.15 | | |
| CONSERVE | CONSERVATION FUTURES | 0.0275621078 | $682,760 | $682,760 | $18.82 | | |
| EMS1 | FIRE DIST #1 EMS | 0.4679948282 | $682,760 | $682,760 | $319.53 | | |
| FD1 | FIRE DIST #1 GENERAL | 1.2171942929 | $682,760 | $682,760 | $831.05 | | |
| PORTPT | PORT OF PT GENERAL | 0.1134941229 | $682,760 | $682,760 | $77.49 | | |
| PORTPTIDD | PORT OF PT IDD 2019 | 0.2577346692 | $682,760 | $682,760 | $175.97 | | |
| PUD1 | PUD #1 GENERAL | 0.0597888892 | $682,760 | $682,760 | $40.82 | | |
| STATE | STATE SCHOOL PART 1 | 1.4940692947 | $682,760 | $682,760 | $1,020.09 | | |
| STATE2 | STATE SCHOOL PART 2 | 0.8050170049 | $682,760 | $682,760 | $549.63 | | |
| | Total Tax Rate: | 8.5416817766 | | | | | |
| | | | | Taxes w/Current Exemptions: | $5,831.90 | | |
| | | | | Taxes w/o Exemptions: | $5,831.90 | | |
Improvement / Building
| Improvement #1: | Residential Bldg | State Code: | 11 | 1133.0 sqft | Value: | $333,834 |
| Bathrooms (#): | 1 (FULL) | Bedrooms (#): | 2 | | Exterior Wall: | SI/ST | Fireplace: | WD ST-AVG | | Floor Construction: | FRAME | Foundation: | CONBL | | Heating/Cooling: | F/A | Inside Verify: | YES-FIX | | Roof Cover: | COMP |   |   |
|
| | Type | Description | Class CD | Sub Class CD | Year Built | Area |
| | MA | Main Area | 4+ | 1S | 1910 | 1133.0 |
| | BSMTU | House basement unfinished | 3 | * | 1910 | 566.0 |
| | HDECK | House Deck | 4 | 1S | 1910 | 200.0 |
| | HENCL | House Enclosure | 4 | 1S | 1910 | 120.0 |
| Improvement #2: | Residential Bldg | State Code: | 19 | 0.0 sqft | Value: | $44,551 |
| | Type | Description | Class CD | Sub Class CD | Year Built | Area |
| | GDET | Detached Garage | 3 | * | 0 | 350.0 |
| | ADDN | Addition (Table Not Dep) | 3 | * | 0 | 350.0 |
Sketch
Property Image
Land
| 1 | 6370-1155L | | 0.0000 | 0.00 | 0.00 | 0.00 | 1.00 | $275,000 | $0 |
| 2 | 6370-1155L | | 0.0000 | 0.00 | 0.00 | 0.00 | 1.00 | $29,375 | $0 |
Roll Value History
| 2026 | N/A | N/A | N/A | N/A | N/A |
| 2025 | $378,385 | $304,375 | $0 | $682,760 | $682,760 |
| 2024 | $352,418 | $301,875 | $0 | $654,293 | $654,293 |
| 2023 | $337,096 | $297,500 | $0 | $634,596 | $634,596 |
| 2022 | $266,204 | $287,500 | $0 | $553,704 | $553,704 |
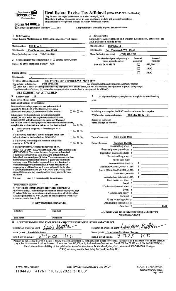
Deed and Sales History
| 1 | 10/13/2023 | QCD | Quit Claim Deed | LAURIE & BILL MATTINSON | 2005 MATTINSON FAMILY TRUST | | | | 141761 | |
| 2 | 05/28/2021 | SWD | Statutory Warranty Deed | MINDY LOU PARESI | LAURIE & BILL MATTINSON | | | $595,000.00 | 136844 | |
| 3 | 09/11/2019 | PRD | Personal Representatives Deed | JOYCE A COX | MINDY LOU PARESI | | | $0.00 | 133124 | |
Payout Agreement
| No payout information available.. |