Property
Account |
| Property ID: | 39040 | Abbreviated Legal Description: | PLUMMER'S ADDITION BLK 20 LOTS 7(N45'), 9(ALL) |
| Parcel # / Geo ID: | 988802005 | Agent Code: | |
| Type: | Real | | |
| Tax Area: | 0110 - C-50F1E1H2 | Land Use Code | 11 |
| Open Space: | N | DFL | N |
| Historic Property: | N | Remodel Property: | N |
| Multi-Family Redevelopment: | N | | |
| Township: | 30N | Section: | 2 |
| Range: | 1W |
Location |
| Address: | 1104 MADISON ST PORT TOWNSEND, WA 98368 | Mapsco: | 110/037 |
| Neighborhood: | PLUMMERS LP AND HELANDER SP | Map ID: | |
| Neighborhood CD: | 6370 |
Owner |
| Name: | DAPHNE N WYSHAM | Owner ID: | 113816 |
| Mailing Address: | 1016 MADISON ST PORT TOWNSEND, WA 98368-4420 | % Ownership: | 100.0000000000% |
| | | Exemptions: | |
Pay Tax Due
Select the appropriate checkbox next to the year to be paid. Multiple years may be selected.
*Convenience Fee not included
Taxes and Assessment Details
Property Tax Information as of
03/10/2026
Click on "Statement Details" to expand or collapse a tax statement.
* Please enter a valid date ** Please enter a valid date *
Statement Details |
| 2026 | 28216 | STATE - STATE LEVY (SCHOOL) | $1047.71 | $1047.71 | $0.00 | $0.00 | $0.00 | $2095.42 |
| 2026 | 28216 | COUNTY - COUNTY LEVIES (CE, DD, VET, MH) | $418.89 | $418.85 | $0.00 | $0.00 | $0.00 | $837.74 |
| 2026 | 28216 | CONSERVE - CONSERVATION FUTURES | $12.56 | $12.56 | $0.00 | $0.00 | $0.00 | $25.12 |
| 2026 | 28216 | CITYPT - CITY OF PT | $594.56 | $594.55 | $0.00 | $0.00 | $0.00 | $1189.11 |
| 2026 | 28216 | PORTPT - PORT DISTRICT | $169.17 | $169.17 | $0.00 | $0.00 | $0.00 | $338.34 |
| 2026 | 28216 | PUD1 - PUD #1 | $27.25 | $27.24 | $0.00 | $0.00 | $0.00 | $54.49 |
| 2026 | 28216 | HD2 - HOSP DIST #2 | $24.43 | $24.43 | $0.00 | $0.00 | $0.00 | $48.86 |
| 2026 | 28216 | SD50 - SCHOOL DIST #50 | $830.03 | $830.00 | $0.00 | $0.00 | $0.00 | $1660.03 |
| 2026 | 28216 | FD1 - FIRE DISTRICT #1 | $554.69 | $554.68 | $0.00 | $0.00 | $0.00 | $1109.37 |
| 2026 | 28216 | EMS1 - FIRE DIST #1 EMS | $213.27 | $213.27 | $0.00 | $0.00 | $0.00 | $426.54 |
| 2026 | 28216 | JCCD - JC Conservation District | $2.55 | $2.55 | $0.00 | $0.00 | $0.00 | $5.10 |
| 2026 | 28216 | NWA - Noxious Weed Assessment | $2.98 | $2.97 | $0.00 | $0.00 | $0.00 | $5.95 |
| 2026 | 28216 | TOTAL: | $3898.09 | $3897.98 | $0.00 | $0.00 | $0.00 | $7796.07 |
|
| 2026 | 28216 | $3898.09 | $3897.98 | $0.00 | $0.00 | $0.00 | $7796.07 |
Statement Details |
| 2025 | 28288 | STATE - STATE LEVY (SCHOOL) | $1063.46 | $1063.45 | $0.00 | $0.00 | $2126.91 | $0.00 |
| 2025 | 28288 | COUNTY - COUNTY LEVIES (CE, DD, VET, MH) | $418.21 | $418.18 | $0.00 | $0.00 | $836.39 | $0.00 |
| 2025 | 28288 | CONSERVE - CONSERVATION FUTURES | $12.54 | $12.54 | $0.00 | $0.00 | $25.08 | $0.00 |
| 2025 | 28288 | CITYPT - CITY OF PT | $603.10 | $603.08 | $0.00 | $0.00 | $1206.18 | $0.00 |
| 2025 | 28288 | PORTPT - PORT DISTRICT | $170.65 | $170.64 | $0.00 | $0.00 | $341.29 | $0.00 |
| 2025 | 28288 | PUD1 - PUD #1 | $27.37 | $27.36 | $0.00 | $0.00 | $54.73 | $0.00 |
| 2025 | 28288 | HD2 - HOSP DIST #2 | $24.40 | $24.40 | $0.00 | $0.00 | $48.80 | $0.00 |
| 2025 | 28288 | SD50 - SCHOOL DIST #50 | $777.22 | $777.20 | $0.00 | $0.00 | $1554.42 | $0.00 |
| 2025 | 28288 | FD1 - FIRE DISTRICT #1 | $551.86 | $551.85 | $0.00 | $0.00 | $1103.71 | $0.00 |
| 2025 | 28288 | EMS1 - FIRE DIST #1 EMS | $212.26 | $212.26 | $0.00 | $0.00 | $424.52 | $0.00 |
| 2025 | 28288 | JCCD - JC Conservation District | $2.55 | $2.55 | $0.00 | $0.00 | $5.10 | $0.00 |
| 2025 | 28288 | NWA - Noxious Weed Assessment | $2.15 | $2.15 | $0.00 | $0.00 | $4.30 | $0.00 |
| 2025 | 28288 | TOTAL: | $3865.77 | $3865.66 | $0.00 | $0.00 | $7731.43 | $0.00 |
|
| 2025 | 28288 | $3865.77 | $3865.66 | $0.00 | $0.00 | $7731.43 | $0.00 |
Statement Details |
| 2024 | 28347 | STATE - STATE LEVY (SCHOOL) | $973.53 | $973.53 | $0.00 | $0.00 | $1947.06 | $0.00 |
| 2024 | 28347 | COUNTY - COUNTY LEVIES (CE, DD, VET, MH) | $416.58 | $416.57 | $0.00 | $0.00 | $833.15 | $0.00 |
| 2024 | 28347 | CONSERVE - CONSERVATION FUTURES | $12.49 | $12.49 | $0.00 | $0.00 | $24.98 | $0.00 |
| 2024 | 28347 | CITYPT - CITY OF PT | $595.24 | $595.23 | $0.00 | $0.00 | $1190.47 | $0.00 |
| 2024 | 28347 | PORTPT - PORT DISTRICT | $172.07 | $172.07 | $0.00 | $0.00 | $344.14 | $0.00 |
| 2024 | 28347 | PUD1 - PUD #1 | $27.37 | $27.36 | $0.00 | $0.00 | $54.73 | $0.00 |
| 2024 | 28347 | HD2 - HOSP DIST #2 | $24.31 | $24.30 | $0.00 | $0.00 | $48.61 | $0.00 |
| 2024 | 28347 | SD50 - SCHOOL DIST #50 | $787.63 | $787.63 | $0.00 | $0.00 | $1575.26 | $0.00 |
| 2024 | 28347 | FD1 - FIRE DISTRICT #1 | $550.82 | $550.82 | $0.00 | $0.00 | $1101.64 | $0.00 |
| 2024 | 28347 | EMS1 - FIRE DIST #1 EMS | $210.40 | $210.39 | $0.00 | $0.00 | $420.79 | $0.00 |
| 2024 | 28347 | JCCD - JC Conservation District | $2.55 | $2.55 | $0.00 | $0.00 | $5.10 | $0.00 |
| 2024 | 28347 | NWA - Noxious Weed Assessment | $2.15 | $2.15 | $0.00 | $0.00 | $4.30 | $0.00 |
| 2024 | 28347 | TOTAL: | $3775.14 | $3775.09 | $0.00 | $0.00 | $7550.23 | $0.00 |
|
| 2024 | 28347 | $3775.14 | $3775.09 | $0.00 | $0.00 | $7550.23 | $0.00 |
Statement Details |
| 2023 | 28389 | STATE - STATE LEVY (SCHOOL) | $984.72 | $984.70 | $0.00 | $0.00 | $1969.42 | $0.00 |
| 2023 | 28389 | COUNTY - COUNTY LEVIES (CE, DD, VET, MH) | $429.70 | $429.70 | $0.00 | $0.00 | $859.40 | $0.00 |
| 2023 | 28389 | CONSERVE - CONSERVATION FUTURES | $12.89 | $12.88 | $0.00 | $0.00 | $25.77 | $0.00 |
| 2023 | 28389 | CITYPT - CITY OF PT | $607.31 | $607.30 | $0.00 | $0.00 | $1214.61 | $0.00 |
| 2023 | 28389 | PORTPT - PORT DISTRICT | $181.02 | $181.00 | $0.00 | $0.00 | $362.02 | $0.00 |
| 2023 | 28389 | PUD1 - PUD #1 | $28.49 | $28.48 | $0.00 | $0.00 | $56.97 | $0.00 |
| 2023 | 28389 | HD2 - HOSP DIST #2 | $25.08 | $25.07 | $0.00 | $0.00 | $50.15 | $0.00 |
| 2023 | 28389 | SD50 - SCHOOL DIST #50 | $781.40 | $781.38 | $0.00 | $0.00 | $1562.78 | $0.00 |
| 2023 | 28389 | FD1 - FIRE DISTRICT #1 | $353.99 | $353.98 | $0.00 | $0.00 | $707.97 | $0.00 |
| 2023 | 28389 | EMS1 - FIRE DIST #1 EMS | $150.58 | $150.58 | $0.00 | $0.00 | $301.16 | $0.00 |
| 2023 | 28389 | JCCD - JC Conservation District | $2.55 | $2.55 | $0.00 | $0.00 | $5.10 | $0.00 |
| 2023 | 28389 | NWA - Noxious Weed Assessment | $2.15 | $2.15 | $0.00 | $0.00 | $4.30 | $0.00 |
| 2023 | 28389 | TOTAL: | $3559.88 | $3559.77 | $0.00 | $0.00 | $7119.65 | $0.00 |
|
| 2023 | 28389 | $3559.88 | $3559.77 | $0.00 | $0.00 | $7119.65 | $0.00 |
Values
| (+) Improvement Homesite Value: | + | $0 | |
| (+) Improvement Non-Homesite Value: | + | $539,489 | |
| (+) Land Homesite Value: | + | $0 | |
| (+) Land Non-Homesite Value: | + | $371,925 | |
| (+) Curr Use (HS): | + | $0 | $0 |
| (+) Curr Use (NHS): | + | $0 | $0 |
| | | -------------------------- | |
| (=) Market Value: | = | $911,414 | |
| (–) Productivity Loss: | – | $0 | |
| | | -------------------------- | |
| (=) Subtotal: | = | $911,414 | |
| (+) Senior Appraised Value: | + | $0 | |
| (+) Non-Senior Appraised Value: | + | $911,414 | |
| | | -------------------------- | |
| (=) Total Appraised Value: | = | $911,414 | |
| (–) Senior Exemption Loss: | – | $0 | |
| (–) Exemption Loss: | – | $0 | |
| | | -------------------------- | |
| (=) Taxable Value: | = | $911,414 | |
Taxing Jurisdiction
| Owner: | DAPHNE N WYSHAM | | |
| % Ownership: | 100.0000000000% | | |
| Total Value: | $911,414 | | |
| Tax Area: | 0110 - C-50F1E1H2 |
| CE | COUNTY CURRENT EXPENSE | 0.9034619479 | $911,414 | $911,414 | $823.43 | | |
| CNTYDD | DEVELOPMENTAL DISABILITIES | 0.0052121823 | $911,414 | $911,414 | $4.75 | | |
| CNTYVET | VETERANS RELIEF | 0.0052777810 | $911,414 | $911,414 | $4.81 | | |
| MENTAL | MENTAL HEALTH | 0.0052121823 | $911,414 | $911,414 | $4.75 | | |
| PTGEN | CITY OF PT GENERAL | 0.8551967795 | $911,414 | $911,414 | $779.44 | | |
| PTLLL | CITY OF PT - LIBRARY LID LIFT | 0.4010114288 | $911,414 | $911,414 | $365.49 | | |
| PTMVBOND | CITY OF PT MV BOND | 0.0484717981 | $911,414 | $911,414 | $44.18 | | |
| HOSP2CASH | HOSP DIST #2 GENERAL | 0.0536075306 | $911,414 | $911,414 | $48.86 | | |
| SCH50BOND | SCHOOL DIST #50 BOND 2016 | 0.5377451389 | $911,414 | $911,414 | $490.11 | | |
| SCH50CP | SCHOOL DIST #50 CAP PROJ | 0.4573475088 | $911,414 | $911,414 | $416.83 | | |
| SCH50MO | SCHOOL DIST #50 EP & O | 0.8262822886 | $911,414 | $911,414 | $753.09 | | |
| CONSERVE | CONSERVATION FUTURES | 0.0275621078 | $911,414 | $911,414 | $25.12 | | |
| EMS1 | FIRE DIST #1 EMS | 0.4679948282 | $911,414 | $911,414 | $426.54 | | |
| FD1 | FIRE DIST #1 GENERAL | 1.2171942929 | $911,414 | $911,414 | $1,109.37 | | |
| PORTPT | PORT OF PT GENERAL | 0.1134941229 | $911,414 | $911,414 | $103.44 | | |
| PORTPTIDD | PORT OF PT IDD 2019 | 0.2577346692 | $911,414 | $911,414 | $234.90 | | |
| PUD1 | PUD #1 GENERAL | 0.0597888892 | $911,414 | $911,414 | $54.49 | | |
| STATE | STATE SCHOOL PART 1 | 1.4940692947 | $911,414 | $911,414 | $1,361.72 | | |
| STATE2 | STATE SCHOOL PART 2 | 0.8050170049 | $911,414 | $911,414 | $733.70 | | |
| | Total Tax Rate: | 8.5416817766 | | | | | |
| | | | | Taxes w/Current Exemptions: | $7,785.02 | | |
| | | | | Taxes w/o Exemptions: | $7,785.02 | | |
Improvement / Building
| Improvement #1: | Residential Bldg | State Code: | 11 | 2120.0 sqft | Value: | $366,500 |
| Bathrooms (#): | 1 (FULL) | Bathrooms (#): | 1 (HALF) | | Bedrooms (#): | 4 | Exterior Wall: | SI/ST | | Fireplace: | WD ST-AVG | Floor Construction: | FRAME | | Foundation: | CONPR | Heating/Cooling: | HPUMP | | Inside Verify: | YES-FIX | Roof Cover: | COMP |
|
| | Type | Description | Class CD | Sub Class CD | Year Built | Area |
| | MA | Main Area | 4- | 2S | 1900 | 1132.0 |
| | MA2 | Second Floor Main Area | 4- | 2S | 1900 | 988.0 |
| | HWPOR | House Wood Porch | 4 | * | 1900 | 180.0 |
| | BSMTU | House basement unfinished | 1 | * | 1900 | 1132.0 |
| | HATTIC | House Attic | 4 | * | 1900 | 400.0 |
| Improvement #2: | Residential Bldg | State Code: | 11 | 676.0 sqft | Value: | $172,989 |
| Exterior Wall: | SI/ST | Floor Construction: | FRAME | | Foundation: | CONPR | Heating/Cooling: | ELBB | | Inside Verify: | YES-FIX | Roof Cover: | COMP |
|
| | Type | Description | Class CD | Sub Class CD | Year Built | Area |
| | MA | Main Area | 3 | 1S | 1993 | 676.0 |
| | HDECK | House Deck | 3 | * | 1993 | 144.0 |
| | BSMTU | House basement unfinished | 3 | * | 1993 | 676.0 |
| | HLOFT | House Loft | 3 | * | 1993 | 200.0 |
| | CONCD | Concrete Drive | 3 | * | 1993 | 850.0 |
Sketch
Property Image
Land
| 1 | 6370-1155L | | 0.0000 | 0.00 | 0.00 | 0.00 | 1.00 | $276,750 | $0 |
| 2 | 6370-1155L | | 0.0000 | 0.00 | 0.00 | 0.00 | 1.00 | $95,175 | $0 |
Roll Value History
| 2026 | N/A | N/A | N/A | N/A | N/A |
| 2025 | $539,489 | $371,925 | $0 | $911,414 | $911,414 |
| 2024 | $519,338 | $367,605 | $0 | $886,943 | $886,943 |
| 2023 | $496,471 | $345,100 | $0 | $841,571 | $841,571 |
| 2022 | $496,471 | $340,100 | $0 | $836,571 | $836,571 |
Deed and Sales History
| 1 | 12/20/2025 | QCD | Quit Claim Deed | DOUGLAS G & CAROL H WYSHAM | DAPHNE N WYSHAM | | | | 145430 | |
| 2 | 12/14/2023 | QCD | Quit Claim Deed | HARRY J TALBERTH JR | DAPHNE WYSHAM | | | | 142096 | |
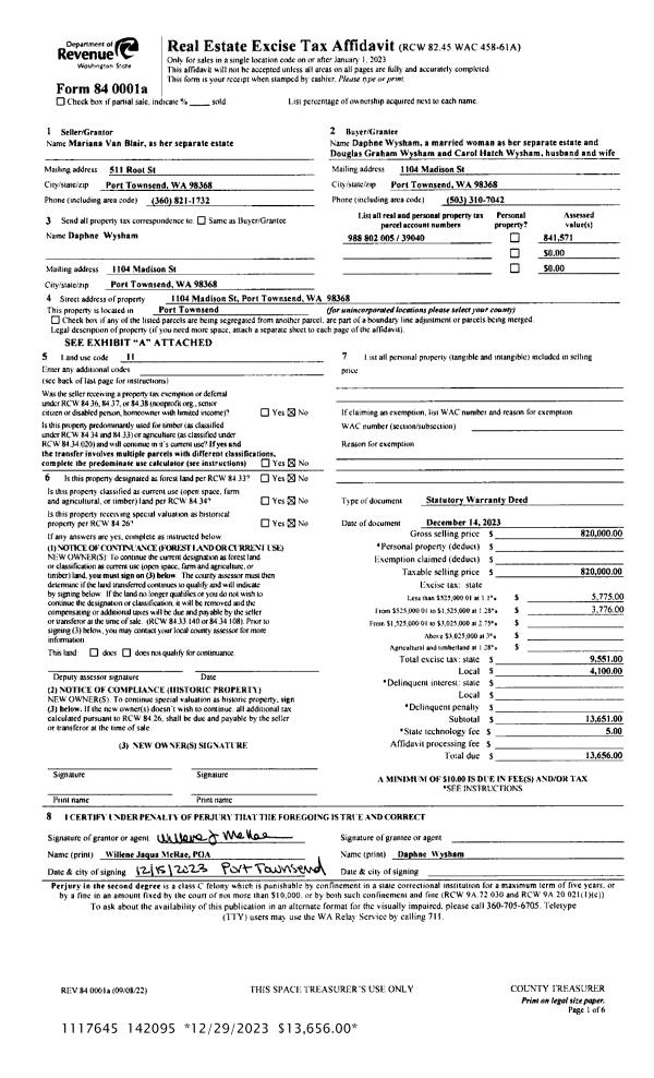
| 3 | 12/14/2023 | SWD | Statutory Warranty Deed | MARIANA VAN BLAIR | DAPHNE WYSHAM | | | $820,000.00 | 142095 | |
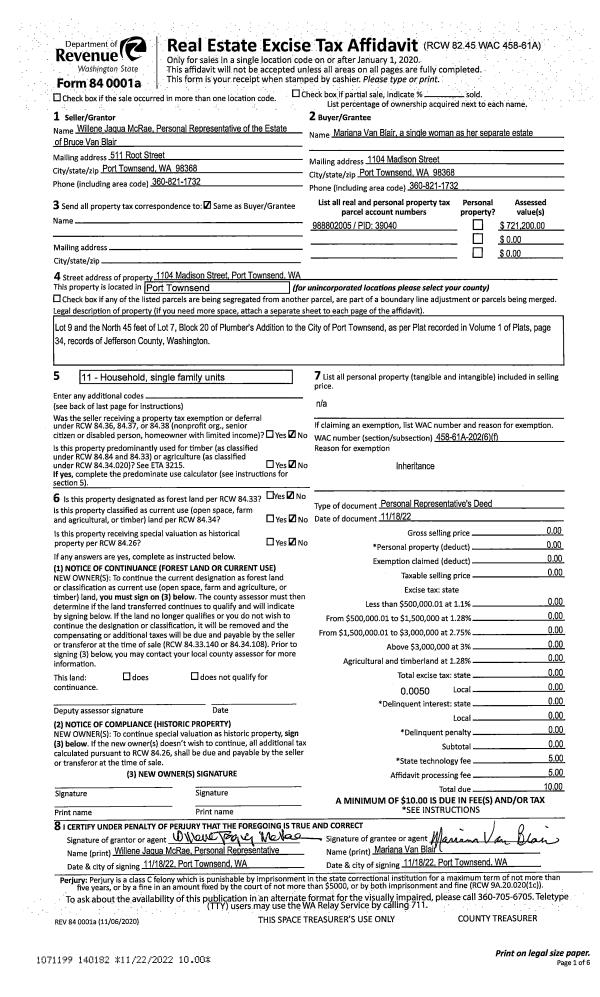
| 4 | 11/18/2022 | PRD | Personal Representatives Deed | WILLENE J MCRAE PERSONAL REP | MARIANA VAN BLAIR | | | | 140182 | |
| 5 | 11/18/2022 | PRD | Personal Representatives Deed | BRUCE VAN BLAIR | MARIANA VAN BLAIR | | | | 140182 | |
Payout Agreement
| No payout information available.. |