Property
Account |
| Property ID: | 39051 | Abbreviated Legal Description: | PLUMMER'S ADDITION BLK 21 LOT 4(E'LY 95.61') |
| Parcel # / Geo ID: | 988802107 | Agent Code: | |
| Type: | Real | | |
| Tax Area: | 0110 - C-50F1E1H2 | Land Use Code | 11 |
| Open Space: | N | DFL | N |
| Historic Property: | N | Remodel Property: | N |
| Multi-Family Redevelopment: | N | | |
| Township: | 30N | Section: | 2 |
| Range: | 1W |
Location |
| Address: | 1009 MADISON ST PORT TOWNSEND, WA 98368 | Mapsco: | 111/004 |
| Neighborhood: | PLUMMERS LP AND HELANDER SP | Map ID: | |
| Neighborhood CD: | 6370 |
Owner |
| Name: | MICHELLE K SANDOVAL | Owner ID: | 97828 |
| Mailing Address: | 1009 MADISON ST PORT TOWNSEND, WA 98368-4421 | % Ownership: | 100.0000000000% |
| | | Exemptions: | |
Pay Tax Due
Select the appropriate checkbox next to the year to be paid. Multiple years may be selected.
*Convenience Fee not included
Taxes and Assessment Details
Property Tax Information as of
03/10/2026
Click on "Statement Details" to expand or collapse a tax statement.
* Please enter a valid date ** Please enter a valid date *
Statement Details |
| 2026 | 28227 | STATE - STATE LEVY (SCHOOL) | $1028.80 | $1028.79 | $0.00 | $0.00 | $0.00 | $2057.59 |
| 2026 | 28227 | COUNTY - COUNTY LEVIES (CE, DD, VET, MH) | $411.30 | $411.30 | $0.00 | $0.00 | $0.00 | $822.60 |
| 2026 | 28227 | CONSERVE - CONSERVATION FUTURES | $12.34 | $12.33 | $0.00 | $0.00 | $0.00 | $24.67 |
| 2026 | 28227 | CITYPT - CITY OF PT | $583.82 | $583.81 | $0.00 | $0.00 | $0.00 | $1167.63 |
| 2026 | 28227 | PORTPT - PORT DISTRICT | $166.12 | $166.11 | $0.00 | $0.00 | $0.00 | $332.23 |
| 2026 | 28227 | PUD1 - PUD #1 | $26.76 | $26.75 | $0.00 | $0.00 | $0.00 | $53.51 |
| 2026 | 28227 | HD2 - HOSP DIST #2 | $23.99 | $23.99 | $0.00 | $0.00 | $0.00 | $47.98 |
| 2026 | 28227 | SD50 - SCHOOL DIST #50 | $815.04 | $815.02 | $0.00 | $0.00 | $0.00 | $1630.06 |
| 2026 | 28227 | FD1 - FIRE DISTRICT #1 | $544.67 | $544.67 | $0.00 | $0.00 | $0.00 | $1089.34 |
| 2026 | 28227 | EMS1 - FIRE DIST #1 EMS | $209.42 | $209.42 | $0.00 | $0.00 | $0.00 | $418.84 |
| 2026 | 28227 | JCCD - JC Conservation District | $2.55 | $2.55 | $0.00 | $0.00 | $0.00 | $5.10 |
| 2026 | 28227 | NWA - Noxious Weed Assessment | $2.98 | $2.97 | $0.00 | $0.00 | $0.00 | $5.95 |
| 2026 | 28227 | TOTAL: | $3827.79 | $3827.71 | $0.00 | $0.00 | $0.00 | $7655.50 |
|
| 2026 | 28227 | $3827.79 | $3827.71 | $0.00 | $0.00 | $0.00 | $7655.50 |
Statement Details |
| 2025 | 28299 | STATE - STATE LEVY (SCHOOL) | $1048.40 | $1048.39 | $0.00 | $0.00 | $2096.79 | $0.00 |
| 2025 | 28299 | COUNTY - COUNTY LEVIES (CE, DD, VET, MH) | $412.27 | $412.27 | $0.00 | $0.00 | $824.54 | $0.00 |
| 2025 | 28299 | CONSERVE - CONSERVATION FUTURES | $12.36 | $12.36 | $0.00 | $0.00 | $24.72 | $0.00 |
| 2025 | 28299 | CITYPT - CITY OF PT | $594.55 | $594.53 | $0.00 | $0.00 | $1189.08 | $0.00 |
| 2025 | 28299 | PORTPT - PORT DISTRICT | $168.24 | $168.22 | $0.00 | $0.00 | $336.46 | $0.00 |
| 2025 | 28299 | PUD1 - PUD #1 | $26.98 | $26.97 | $0.00 | $0.00 | $53.95 | $0.00 |
| 2025 | 28299 | HD2 - HOSP DIST #2 | $24.06 | $24.05 | $0.00 | $0.00 | $48.11 | $0.00 |
| 2025 | 28299 | SD50 - SCHOOL DIST #50 | $766.22 | $766.19 | $0.00 | $0.00 | $1532.41 | $0.00 |
| 2025 | 28299 | FD1 - FIRE DISTRICT #1 | $544.04 | $544.04 | $0.00 | $0.00 | $1088.08 | $0.00 |
| 2025 | 28299 | EMS1 - FIRE DIST #1 EMS | $209.26 | $209.25 | $0.00 | $0.00 | $418.51 | $0.00 |
| 2025 | 28299 | JCCD - JC Conservation District | $2.55 | $2.55 | $0.00 | $0.00 | $5.10 | $0.00 |
| 2025 | 28299 | NWA - Noxious Weed Assessment | $2.15 | $2.15 | $0.00 | $0.00 | $4.30 | $0.00 |
| 2025 | 28299 | TOTAL: | $3811.08 | $3810.97 | $0.00 | $0.00 | $7622.05 | $0.00 |
|
| 2025 | 28299 | $3811.08 | $3810.97 | $0.00 | $0.00 | $7622.05 | $0.00 |
Statement Details |
| 2024 | 28358 | STATE - STATE LEVY (SCHOOL) | $960.35 | $960.33 | $0.00 | $0.00 | $1920.68 | $0.00 |
| 2024 | 28358 | COUNTY - COUNTY LEVIES (CE, DD, VET, MH) | $410.94 | $410.94 | $0.00 | $0.00 | $821.88 | $0.00 |
| 2024 | 28358 | CONSERVE - CONSERVATION FUTURES | $12.32 | $12.32 | $0.00 | $0.00 | $24.64 | $0.00 |
| 2024 | 28358 | CITYPT - CITY OF PT | $587.18 | $587.17 | $0.00 | $0.00 | $1174.35 | $0.00 |
| 2024 | 28358 | PORTPT - PORT DISTRICT | $169.74 | $169.73 | $0.00 | $0.00 | $339.47 | $0.00 |
| 2024 | 28358 | PUD1 - PUD #1 | $26.99 | $26.99 | $0.00 | $0.00 | $53.98 | $0.00 |
| 2024 | 28358 | HD2 - HOSP DIST #2 | $23.98 | $23.97 | $0.00 | $0.00 | $47.95 | $0.00 |
| 2024 | 28358 | SD50 - SCHOOL DIST #50 | $776.96 | $776.95 | $0.00 | $0.00 | $1553.91 | $0.00 |
| 2024 | 28358 | FD1 - FIRE DISTRICT #1 | $543.36 | $543.35 | $0.00 | $0.00 | $1086.71 | $0.00 |
| 2024 | 28358 | EMS1 - FIRE DIST #1 EMS | $207.54 | $207.54 | $0.00 | $0.00 | $415.08 | $0.00 |
| 2024 | 28358 | JCCD - JC Conservation District | $2.55 | $2.55 | $0.00 | $0.00 | $5.10 | $0.00 |
| 2024 | 28358 | NWA - Noxious Weed Assessment | $2.15 | $2.15 | $0.00 | $0.00 | $4.30 | $0.00 |
| 2024 | 28358 | TOTAL: | $3724.06 | $3723.99 | $0.00 | $0.00 | $7448.05 | $0.00 |
|
| 2024 | 28358 | $3724.06 | $3723.99 | $0.00 | $0.00 | $7448.05 | $0.00 |
Statement Details |
| 2023 | 28400 | STATE - STATE LEVY (SCHOOL) | $770.67 | $770.66 | $0.00 | $0.00 | $1541.33 | $0.00 |
| 2023 | 28400 | COUNTY - COUNTY LEVIES (CE, DD, VET, MH) | $336.30 | $336.29 | $0.00 | $0.00 | $672.59 | $0.00 |
| 2023 | 28400 | CONSERVE - CONSERVATION FUTURES | $10.09 | $10.08 | $0.00 | $0.00 | $20.17 | $0.00 |
| 2023 | 28400 | CITYPT - CITY OF PT | $475.30 | $475.29 | $0.00 | $0.00 | $950.59 | $0.00 |
| 2023 | 28400 | PORTPT - PORT DISTRICT | $141.67 | $141.66 | $0.00 | $0.00 | $283.33 | $0.00 |
| 2023 | 28400 | PUD1 - PUD #1 | $22.29 | $22.29 | $0.00 | $0.00 | $44.58 | $0.00 |
| 2023 | 28400 | HD2 - HOSP DIST #2 | $19.63 | $19.62 | $0.00 | $0.00 | $39.25 | $0.00 |
| 2023 | 28400 | SD50 - SCHOOL DIST #50 | $611.54 | $611.53 | $0.00 | $0.00 | $1223.07 | $0.00 |
| 2023 | 28400 | FD1 - FIRE DISTRICT #1 | $277.04 | $277.04 | $0.00 | $0.00 | $554.08 | $0.00 |
| 2023 | 28400 | EMS1 - FIRE DIST #1 EMS | $117.85 | $117.84 | $0.00 | $0.00 | $235.69 | $0.00 |
| 2023 | 28400 | JCCD - JC Conservation District | $2.55 | $2.55 | $0.00 | $0.00 | $5.10 | $0.00 |
| 2023 | 28400 | NWA - Noxious Weed Assessment | $2.15 | $2.15 | $0.00 | $0.00 | $4.30 | $0.00 |
| 2023 | 28400 | TOTAL: | $2787.08 | $2787.00 | $0.00 | $0.00 | $5574.08 | $0.00 |
|
| 2023 | 28400 | $2787.08 | $2787.00 | $0.00 | $0.00 | $5574.08 | $0.00 |
Values
| (+) Improvement Homesite Value: | + | $0 | |
| (+) Improvement Non-Homesite Value: | + | $604,092 | |
| (+) Land Homesite Value: | + | $0 | |
| (+) Land Non-Homesite Value: | + | $290,865 | |
| (+) Curr Use (HS): | + | $0 | $0 |
| (+) Curr Use (NHS): | + | $0 | $0 |
| | | -------------------------- | |
| (=) Market Value: | = | $894,957 | |
| (–) Productivity Loss: | – | $0 | |
| | | -------------------------- | |
| (=) Subtotal: | = | $894,957 | |
| (+) Senior Appraised Value: | + | $0 | |
| (+) Non-Senior Appraised Value: | + | $894,957 | |
| | | -------------------------- | |
| (=) Total Appraised Value: | = | $894,957 | |
| (–) Senior Exemption Loss: | – | $0 | |
| (–) Exemption Loss: | – | $0 | |
| | | -------------------------- | |
| (=) Taxable Value: | = | $894,957 | |
Taxing Jurisdiction
| Owner: | MICHELLE K SANDOVAL | | |
| % Ownership: | 100.0000000000% | | |
| Total Value: | $894,957 | | |
| Tax Area: | 0110 - C-50F1E1H2 |
| CE | COUNTY CURRENT EXPENSE | 0.9034619479 | $894,957 | $894,957 | $808.56 | | |
| CNTYDD | DEVELOPMENTAL DISABILITIES | 0.0052121823 | $894,957 | $894,957 | $4.66 | | |
| CNTYVET | VETERANS RELIEF | 0.0052777810 | $894,957 | $894,957 | $4.72 | | |
| MENTAL | MENTAL HEALTH | 0.0052121823 | $894,957 | $894,957 | $4.66 | | |
| PTGEN | CITY OF PT GENERAL | 0.8551967795 | $894,957 | $894,957 | $765.36 | | |
| PTLLL | CITY OF PT - LIBRARY LID LIFT | 0.4010114288 | $894,957 | $894,957 | $358.89 | | |
| PTMVBOND | CITY OF PT MV BOND | 0.0484717981 | $894,957 | $894,957 | $43.38 | | |
| HOSP2CASH | HOSP DIST #2 GENERAL | 0.0536075306 | $894,957 | $894,957 | $47.98 | | |
| SCH50BOND | SCHOOL DIST #50 BOND 2016 | 0.5377451389 | $894,957 | $894,957 | $481.26 | | |
| SCH50CP | SCHOOL DIST #50 CAP PROJ | 0.4573475088 | $894,957 | $894,957 | $409.31 | | |
| SCH50MO | SCHOOL DIST #50 EP & O | 0.8262822886 | $894,957 | $894,957 | $739.49 | | |
| CONSERVE | CONSERVATION FUTURES | 0.0275621078 | $894,957 | $894,957 | $24.67 | | |
| EMS1 | FIRE DIST #1 EMS | 0.4679948282 | $894,957 | $894,957 | $418.84 | | |
| FD1 | FIRE DIST #1 GENERAL | 1.2171942929 | $894,957 | $894,957 | $1,089.34 | | |
| PORTPT | PORT OF PT GENERAL | 0.1134941229 | $894,957 | $894,957 | $101.57 | | |
| PORTPTIDD | PORT OF PT IDD 2019 | 0.2577346692 | $894,957 | $894,957 | $230.66 | | |
| PUD1 | PUD #1 GENERAL | 0.0597888892 | $894,957 | $894,957 | $53.51 | | |
| STATE | STATE SCHOOL PART 1 | 1.4940692947 | $894,957 | $894,957 | $1,337.13 | | |
| STATE2 | STATE SCHOOL PART 2 | 0.8050170049 | $894,957 | $894,957 | $720.46 | | |
| | Total Tax Rate: | 8.5416817766 | | | | | |
| | | | | Taxes w/Current Exemptions: | $7,644.45 | | |
| | | | | Taxes w/o Exemptions: | $7,644.45 | | |
Improvement / Building
| Improvement #1: | Residential Bldg | State Code: | 11 | 1751.0 sqft | Value: | $604,092 |
| Bathrooms (#): | 3 (FULL) | Bedrooms (#): | 2 | | Exterior Wall: | SI/ST | Foundation: | CONPR | | Heating/Cooling: | HPUMP | Roof Cover: | COMP |
|
| | Type | Description | Class CD | Sub Class CD | Year Built | Area |
| | MA | Main Area | 5+ | 1S | 2022 | 1751.0 |
| | HCPOR | House Concrete Porch | 5 | 1S | 2022 | 64.0 |
| | HWPOR | House Wood Porch | 5 | 1S | 2022 | 128.0 |
| | HDECK | House Deck | 5 | 1S | 2022 | 224.0 |
Sketch
Property Image
Land
| 1 | 6370-1145L | | 0.0000 | 0.00 | 0.00 | 0.00 | 1.00 | $290,865 | $0 |
Roll Value History
| 2026 | N/A | N/A | N/A | N/A | N/A |
| 2025 | $604,092 | $290,865 | $0 | $894,957 | $894,957 |
| 2024 | $585,087 | $289,296 | $0 | $874,383 | $874,383 |
| 2023 | $559,648 | $270,520 | $0 | $830,168 | $830,168 |
| 2022 | $389,203 | $265,520 | $0 | $654,723 | $654,723 |
Deed and Sales History
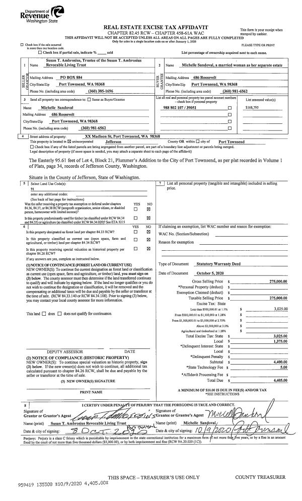
| 1 | 10/05/2020 | SWD | Statutory Warranty Deed | SUSAN T AMBROSIUS TSTE | MICHELLE K SANDOVAL | | | $275,000.00 | 135308 | |
| 2 | 02/28/2003 | QCD | Quit Claim Deed | AMBROSIUS, SUSAN T | AMBROSIUS, SUSAN T TRUSTEE OF | 0 | 0 | $0.00 | 96750 | 0 |
Payout Agreement
| No payout information available.. |