Property
Account |
| Property ID: | 39072 | Abbreviated Legal Description: | PLUMMER'S ADDITION BLK 23 LOT 6 |
| Parcel # / Geo ID: | 988802315 | Agent Code: | |
| Type: | Real | | |
| Tax Area: | 0110 - C-50F1E1H2 | Land Use Code | 18 |
| Open Space: | N | DFL | N |
| Historic Property: | N | Remodel Property: | N |
| Multi-Family Redevelopment: | N | | |
| Township: | 30N | Section: | 2 |
| Range: | 1W |
Location |
| Address: | | Mapsco: | 111/030 |
| Neighborhood: | PLUMMERS LP AND HELANDER SP | Map ID: | |
| Neighborhood CD: | 6370 |
Owner |
| Name: | SCOTT B WILSON | Owner ID: | 30616 |
| Mailing Address: | JENNIFER JAMES WILSON 804 BLAINE ST PORT TOWNSEND, WA 98368-5411 | % Ownership: | 100.0000000000% |
| | | Exemptions: | |
Pay Tax Due
Select the appropriate checkbox next to the year to be paid. Multiple years may be selected.
*Convenience Fee not included
Taxes and Assessment Details
Property Tax Information as of
03/11/2026
Click on "Statement Details" to expand or collapse a tax statement.
* Please enter a valid date ** Please enter a valid date *
Statement Details |
| 2026 | 28248 | STATE - STATE LEVY (SCHOOL) | $313.56 | $313.55 | $0.00 | $0.00 | $0.00 | $627.11 |
| 2026 | 28248 | COUNTY - COUNTY LEVIES (CE, DD, VET, MH) | $125.36 | $125.36 | $0.00 | $0.00 | $0.00 | $250.72 |
| 2026 | 28248 | CONSERVE - CONSERVATION FUTURES | $3.76 | $3.76 | $0.00 | $0.00 | $0.00 | $7.52 |
| 2026 | 28248 | CITYPT - CITY OF PT | $177.94 | $177.93 | $0.00 | $0.00 | $0.00 | $355.87 |
| 2026 | 28248 | PORTPT - PORT DISTRICT | $50.63 | $50.63 | $0.00 | $0.00 | $0.00 | $101.26 |
| 2026 | 28248 | PUD1 - PUD #1 | $8.16 | $8.15 | $0.00 | $0.00 | $0.00 | $16.31 |
| 2026 | 28248 | HD2 - HOSP DIST #2 | $7.31 | $7.31 | $0.00 | $0.00 | $0.00 | $14.62 |
| 2026 | 28248 | SD50 - SCHOOL DIST #50 | $248.41 | $248.40 | $0.00 | $0.00 | $0.00 | $496.81 |
| 2026 | 28248 | FD1 - FIRE DISTRICT #1 | $166.01 | $166.00 | $0.00 | $0.00 | $0.00 | $332.01 |
| 2026 | 28248 | EMS1 - FIRE DIST #1 EMS | $63.83 | $63.82 | $0.00 | $0.00 | $0.00 | $127.65 |
| 2026 | 28248 | JCCD - JC Conservation District | $2.53 | $2.53 | $0.00 | $0.00 | $0.00 | $5.06 |
| 2026 | 28248 | NWA - Noxious Weed Assessment | $2.98 | $2.97 | $0.00 | $0.00 | $0.00 | $5.95 |
| 2026 | 28248 | WAT - Clean Water District | $13.00 | $13.00 | $0.00 | $0.00 | $0.00 | $26.00 |
| 2026 | 28248 | TOTAL: | $1183.48 | $1183.41 | $0.00 | $0.00 | $0.00 | $2366.89 |
|
| 2026 | 28248 | $1183.48 | $1183.41 | $0.00 | $0.00 | $0.00 | $2366.89 |
Statement Details |
| 2025 | 28320 | STATE - STATE LEVY (SCHOOL) | $317.60 | $317.59 | $0.00 | $0.00 | $635.19 | $0.00 |
| 2025 | 28320 | COUNTY - COUNTY LEVIES (CE, DD, VET, MH) | $124.91 | $124.87 | $0.00 | $0.00 | $249.78 | $0.00 |
| 2025 | 28320 | CONSERVE - CONSERVATION FUTURES | $3.75 | $3.74 | $0.00 | $0.00 | $7.49 | $0.00 |
| 2025 | 28320 | CITYPT - CITY OF PT | $180.11 | $180.10 | $0.00 | $0.00 | $360.21 | $0.00 |
| 2025 | 28320 | PORTPT - PORT DISTRICT | $50.96 | $50.96 | $0.00 | $0.00 | $101.92 | $0.00 |
| 2025 | 28320 | PUD1 - PUD #1 | $8.17 | $8.17 | $0.00 | $0.00 | $16.34 | $0.00 |
| 2025 | 28320 | HD2 - HOSP DIST #2 | $7.29 | $7.28 | $0.00 | $0.00 | $14.57 | $0.00 |
| 2025 | 28320 | SD50 - SCHOOL DIST #50 | $232.12 | $232.10 | $0.00 | $0.00 | $464.22 | $0.00 |
| 2025 | 28320 | FD1 - FIRE DISTRICT #1 | $164.81 | $164.81 | $0.00 | $0.00 | $329.62 | $0.00 |
| 2025 | 28320 | EMS1 - FIRE DIST #1 EMS | $63.39 | $63.39 | $0.00 | $0.00 | $126.78 | $0.00 |
| 2025 | 28320 | JCCD - JC Conservation District | $2.55 | $2.55 | $0.00 | $0.00 | $5.10 | $0.00 |
| 2025 | 28320 | NWA - Noxious Weed Assessment | $2.15 | $2.15 | $0.00 | $0.00 | $4.30 | $0.00 |
| 2025 | 28320 | WAT - Clean Water District | $13.00 | $13.00 | $0.00 | $0.00 | $26.00 | $0.00 |
| 2025 | 28320 | TOTAL: | $1170.81 | $1170.71 | $0.00 | $0.00 | $2341.52 | $0.00 |
|
| 2025 | 28320 | $1170.81 | $1170.71 | $0.00 | $0.00 | $2341.52 | $0.00 |
Statement Details |
| 2024 | 28379 | STATE - STATE LEVY (SCHOOL) | $292.09 | $292.08 | $0.00 | $0.00 | $584.17 | $0.00 |
| 2024 | 28379 | COUNTY - COUNTY LEVIES (CE, DD, VET, MH) | $125.00 | $124.97 | $0.00 | $0.00 | $249.97 | $0.00 |
| 2024 | 28379 | CONSERVE - CONSERVATION FUTURES | $3.75 | $3.75 | $0.00 | $0.00 | $7.50 | $0.00 |
| 2024 | 28379 | CITYPT - CITY OF PT | $178.59 | $178.58 | $0.00 | $0.00 | $357.17 | $0.00 |
| 2024 | 28379 | PORTPT - PORT DISTRICT | $51.63 | $51.62 | $0.00 | $0.00 | $103.25 | $0.00 |
| 2024 | 28379 | PUD1 - PUD #1 | $8.21 | $8.21 | $0.00 | $0.00 | $16.42 | $0.00 |
| 2024 | 28379 | HD2 - HOSP DIST #2 | $7.30 | $7.29 | $0.00 | $0.00 | $14.59 | $0.00 |
| 2024 | 28379 | SD50 - SCHOOL DIST #50 | $236.32 | $236.30 | $0.00 | $0.00 | $472.62 | $0.00 |
| 2024 | 28379 | FD1 - FIRE DISTRICT #1 | $165.26 | $165.26 | $0.00 | $0.00 | $330.52 | $0.00 |
| 2024 | 28379 | EMS1 - FIRE DIST #1 EMS | $63.13 | $63.12 | $0.00 | $0.00 | $126.25 | $0.00 |
| 2024 | 28379 | JCCD - JC Conservation District | $2.55 | $2.55 | $0.00 | $0.00 | $5.10 | $0.00 |
| 2024 | 28379 | NWA - Noxious Weed Assessment | $2.15 | $2.15 | $0.00 | $0.00 | $4.30 | $0.00 |
| 2024 | 28379 | WAT - Clean Water District | $12.50 | $12.50 | $0.00 | $0.00 | $25.00 | $0.00 |
| 2024 | 28379 | TOTAL: | $1148.48 | $1148.38 | $0.00 | $0.00 | $2296.86 | $0.00 |
|
| 2024 | 28379 | $1148.48 | $1148.38 | $0.00 | $0.00 | $2296.86 | $0.00 |
Statement Details |
| 2023 | 28421 | STATE - STATE LEVY (SCHOOL) | $297.21 | $297.20 | $0.00 | $0.00 | $594.41 | $0.00 |
| 2023 | 28421 | COUNTY - COUNTY LEVIES (CE, DD, VET, MH) | $129.71 | $129.67 | $0.00 | $0.00 | $259.38 | $0.00 |
| 2023 | 28421 | CONSERVE - CONSERVATION FUTURES | $3.89 | $3.89 | $0.00 | $0.00 | $7.78 | $0.00 |
| 2023 | 28421 | CITYPT - CITY OF PT | $183.30 | $183.29 | $0.00 | $0.00 | $366.59 | $0.00 |
| 2023 | 28421 | PORTPT - PORT DISTRICT | $54.64 | $54.63 | $0.00 | $0.00 | $109.27 | $0.00 |
| 2023 | 28421 | PUD1 - PUD #1 | $8.60 | $8.59 | $0.00 | $0.00 | $17.19 | $0.00 |
| 2023 | 28421 | HD2 - HOSP DIST #2 | $7.57 | $7.57 | $0.00 | $0.00 | $15.14 | $0.00 |
| 2023 | 28421 | SD50 - SCHOOL DIST #50 | $235.84 | $235.83 | $0.00 | $0.00 | $471.67 | $0.00 |
| 2023 | 28421 | FD1 - FIRE DISTRICT #1 | $106.84 | $106.84 | $0.00 | $0.00 | $213.68 | $0.00 |
| 2023 | 28421 | EMS1 - FIRE DIST #1 EMS | $45.45 | $45.45 | $0.00 | $0.00 | $90.90 | $0.00 |
| 2023 | 28421 | JCCD - JC Conservation District | $2.55 | $2.55 | $0.00 | $0.00 | $5.10 | $0.00 |
| 2023 | 28421 | NWA - Noxious Weed Assessment | $2.15 | $2.15 | $0.00 | $0.00 | $4.30 | $0.00 |
| 2023 | 28421 | WAT - Clean Water District | $12.00 | $12.00 | $0.00 | $0.00 | $24.00 | $0.00 |
| 2023 | 28421 | TOTAL: | $1089.75 | $1089.66 | $0.00 | $0.00 | $2179.41 | $0.00 |
|
| 2023 | 28421 | $1089.75 | $1089.66 | $0.00 | $0.00 | $2179.41 | $0.00 |
Values
| (+) Improvement Homesite Value: | + | $0 | |
| (+) Improvement Non-Homesite Value: | + | $62,768 | |
| (+) Land Homesite Value: | + | $0 | |
| (+) Land Non-Homesite Value: | + | $210,000 | |
| (+) Curr Use (HS): | + | $0 | $0 |
| (+) Curr Use (NHS): | + | $0 | $0 |
| | | -------------------------- | |
| (=) Market Value: | = | $272,768 | |
| (–) Productivity Loss: | – | $0 | |
| | | -------------------------- | |
| (=) Subtotal: | = | $272,768 | |
| (+) Senior Appraised Value: | + | $0 | |
| (+) Non-Senior Appraised Value: | + | $272,768 | |
| | | -------------------------- | |
| (=) Total Appraised Value: | = | $272,768 | |
| (–) Senior Exemption Loss: | – | $0 | |
| (–) Exemption Loss: | – | $0 | |
| | | -------------------------- | |
| (=) Taxable Value: | = | $272,768 | |
Taxing Jurisdiction
| Owner: | SCOTT B WILSON | | |
| % Ownership: | 100.0000000000% | | |
| Total Value: | $272,768 | | |
| Tax Area: | 0110 - C-50F1E1H2 |
| CE | COUNTY CURRENT EXPENSE | 0.9034619479 | $272,768 | $272,768 | $246.44 | | |
| CNTYDD | DEVELOPMENTAL DISABILITIES | 0.0052121823 | $272,768 | $272,768 | $1.42 | | |
| CNTYVET | VETERANS RELIEF | 0.0052777810 | $272,768 | $272,768 | $1.44 | | |
| MENTAL | MENTAL HEALTH | 0.0052121823 | $272,768 | $272,768 | $1.42 | | |
| PTGEN | CITY OF PT GENERAL | 0.8551967795 | $272,768 | $272,768 | $233.27 | | |
| PTLLL | CITY OF PT - LIBRARY LID LIFT | 0.4010114288 | $272,768 | $272,768 | $109.38 | | |
| PTMVBOND | CITY OF PT MV BOND | 0.0484717981 | $272,768 | $272,768 | $13.22 | | |
| HOSP2CASH | HOSP DIST #2 GENERAL | 0.0536075306 | $272,768 | $272,768 | $14.62 | | |
| SCH50BOND | SCHOOL DIST #50 BOND 2016 | 0.5377451389 | $272,768 | $272,768 | $146.68 | | |
| SCH50CP | SCHOOL DIST #50 CAP PROJ | 0.4573475088 | $272,768 | $272,768 | $124.75 | | |
| SCH50MO | SCHOOL DIST #50 EP & O | 0.8262822886 | $272,768 | $272,768 | $225.38 | | |
| CONSERVE | CONSERVATION FUTURES | 0.0275621078 | $272,768 | $272,768 | $7.52 | | |
| EMS1 | FIRE DIST #1 EMS | 0.4679948282 | $272,768 | $272,768 | $127.65 | | |
| FD1 | FIRE DIST #1 GENERAL | 1.2171942929 | $272,768 | $272,768 | $332.01 | | |
| PORTPT | PORT OF PT GENERAL | 0.1134941229 | $272,768 | $272,768 | $30.96 | | |
| PORTPTIDD | PORT OF PT IDD 2019 | 0.2577346692 | $272,768 | $272,768 | $70.30 | | |
| PUD1 | PUD #1 GENERAL | 0.0597888892 | $272,768 | $272,768 | $16.31 | | |
| STATE | STATE SCHOOL PART 1 | 1.4940692947 | $272,768 | $272,768 | $407.53 | | |
| STATE2 | STATE SCHOOL PART 2 | 0.8050170049 | $272,768 | $272,768 | $219.58 | | |
| | Total Tax Rate: | 8.5416817766 | | | | | |
| | | | | Taxes w/Current Exemptions: | $2,329.88 | | |
| | | | | Taxes w/o Exemptions: | $2,329.88 | | |
Improvement / Building
| Improvement #1: | Residential Bldg | State Code: | 19 | 0.0 sqft | Value: | $62,768 |
| | Type | Description | Class CD | Sub Class CD | Year Built | Area |
| | GARAG | Garage (Table Not Dep) | 3 | * | 0 | 240.0 |
| | GARAG | Garage (Table Not Dep) | 4 | * | 0 | 1470.0 |
Sketch
Property Image
Land
| 1 | 6370-1165L | | 0.0000 | 0.00 | 0.00 | 0.00 | 1.00 | $210,000 | $0 |
Roll Value History
| 2026 | N/A | N/A | N/A | N/A | N/A |
| 2025 | $62,768 | $210,000 | $0 | $272,768 | $272,768 |
| 2024 | $54,879 | $210,000 | $0 | $264,879 | $264,879 |
| 2023 | $52,493 | $200,000 | $0 | $252,493 | $252,493 |
| 2022 | $52,493 | $200,000 | $0 | $252,493 | $252,493 |
Deed and Sales History
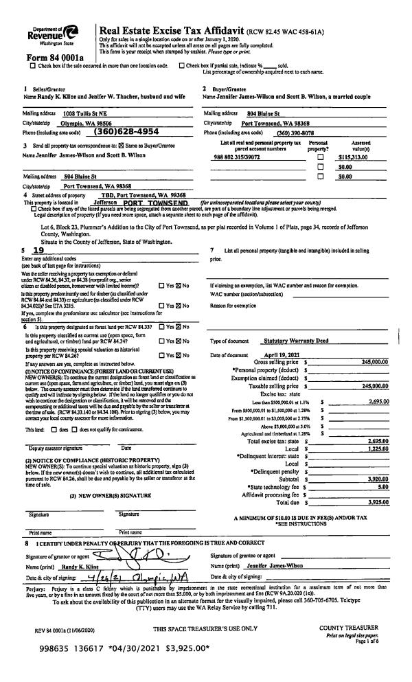
| 1 | 04/19/2021 | SWD | Statutory Warranty Deed | RANDALL K KLINE | SCOTT B WILSON | | | $245,000.00 | 136617 | |
| 2 | 07/15/2003 | SWD | Statutory Warranty Deed | MANLEY, PHILIP M/ISOBELLE | KLINE, RANDY/THACHER, JENIFER | 0 | 0 | $0.00 | 97792 | 0 |
Payout Agreement
| No payout information available.. |