Property
Account |
| Property ID: | 39076 | Abbreviated Legal Description: | PLUMMER'S ADDITION BLK 24 LOTS 3(LS S35'),5(ALL),7(LS TAX 207) BND BY LLA#129226 |
| Parcel # / Geo ID: | 988802404 | Agent Code: | |
| Type: | Real | | |
| Tax Area: | 0110 - C-50F1E1H2 | Land Use Code | 11 |
| Open Space: | N | DFL | N |
| Historic Property: | N | Remodel Property: | N |
| Multi-Family Redevelopment: | N | | |
| Township: | 30N | Section: | 2 |
| Range: | 1W |
Location |
| Address: | 1028 TYLER ST PORT TOWNSEND, WA 98368 | Mapsco: | 111/041 |
| Neighborhood: | PLUMMERS LP AND HELANDER SP | Map ID: | |
| Neighborhood CD: | 6370 |
Owner |
| Name: | XKO LLC | Owner ID: | 109179 |
| Mailing Address: | 1028 TYLER ST PORT TOWNSEND, WA 98368-6544 | % Ownership: | 100.0000000000% |
| | | Exemptions: | |
Pay Tax Due
There is currently No Amount Due on this property.
Taxes and Assessment Details
Property Tax Information as of
03/10/2026
Click on "Statement Details" to expand or collapse a tax statement.
* Please enter a valid date ** Please enter a valid date *
Statement Details |
| | TOTAL: | $0.00 | $0.00 | $0.00 | $0.00 | $0.00 | $0.00 |
|
| | $0.00 | $0.00 | $0.00 | $0.00 | $0.00 | $0.00 |
Values
| (+) Improvement Homesite Value: | + | $0 | |
| (+) Improvement Non-Homesite Value: | + | $853,809 | |
| (+) Land Homesite Value: | + | $0 | |
| (+) Land Non-Homesite Value: | + | $391,600 | |
| (+) Curr Use (HS): | + | $0 | $0 |
| (+) Curr Use (NHS): | + | $0 | $0 |
| | | -------------------------- | |
| (=) Market Value: | = | $1,245,409 | |
| (–) Productivity Loss: | – | $0 | |
| | | -------------------------- | |
| (=) Subtotal: | = | $1,245,409 | |
| (+) Senior Appraised Value: | + | $0 | |
| (+) Non-Senior Appraised Value: | + | $1,245,409 | |
| | | -------------------------- | |
| (=) Total Appraised Value: | = | $1,245,409 | |
| (–) Senior Exemption Loss: | – | $0 | |
| (–) Exemption Loss: | – | $0 | |
| | | -------------------------- | |
| (=) Taxable Value: | = | $1,245,409 | |
Taxing Jurisdiction
| Owner: | XKO LLC | | |
| % Ownership: | 100.0000000000% | | |
| Total Value: | $1,245,409 | | |
| Tax Area: | 0110 - C-50F1E1H2 |
| CE | COUNTY CURRENT EXPENSE | 0.9034619479 | $1,245,409 | $1,245,409 | $1,125.18 | | |
| CNTYDD | DEVELOPMENTAL DISABILITIES | 0.0052121823 | $1,245,409 | $1,245,409 | $6.49 | | |
| CNTYVET | VETERANS RELIEF | 0.0052777810 | $1,245,409 | $1,245,409 | $6.57 | | |
| MENTAL | MENTAL HEALTH | 0.0052121823 | $1,245,409 | $1,245,409 | $6.49 | | |
| PTGEN | CITY OF PT GENERAL | 0.8551967795 | $1,245,409 | $1,245,409 | $1,065.07 | | |
| PTLLL | CITY OF PT - LIBRARY LID LIFT | 0.4010114288 | $1,245,409 | $1,245,409 | $499.42 | | |
| PTMVBOND | CITY OF PT MV BOND | 0.0484717981 | $1,245,409 | $1,245,409 | $60.37 | | |
| HOSP2CASH | HOSP DIST #2 GENERAL | 0.0536075306 | $1,245,409 | $1,245,409 | $66.76 | | |
| SCH50BOND | SCHOOL DIST #50 BOND 2016 | 0.5377451389 | $1,245,409 | $1,245,409 | $669.71 | | |
| SCH50CP | SCHOOL DIST #50 CAP PROJ | 0.4573475088 | $1,245,409 | $1,245,409 | $569.58 | | |
| SCH50MO | SCHOOL DIST #50 EP & O | 0.8262822886 | $1,245,409 | $1,245,409 | $1,029.06 | | |
| CONSERVE | CONSERVATION FUTURES | 0.0275621078 | $1,245,409 | $1,245,409 | $34.33 | | |
| EMS1 | FIRE DIST #1 EMS | 0.4679948282 | $1,245,409 | $1,245,409 | $582.84 | | |
| FD1 | FIRE DIST #1 GENERAL | 1.2171942929 | $1,245,409 | $1,245,409 | $1,515.90 | | |
| PORTPT | PORT OF PT GENERAL | 0.1134941229 | $1,245,409 | $1,245,409 | $141.35 | | |
| PORTPTIDD | PORT OF PT IDD 2019 | 0.2577346692 | $1,245,409 | $1,245,409 | $320.99 | | |
| PUD1 | PUD #1 GENERAL | 0.0597888892 | $1,245,409 | $1,245,409 | $74.46 | | |
| STATE | STATE SCHOOL PART 1 | 1.4940692947 | $1,245,409 | $1,245,409 | $1,860.73 | | |
| STATE2 | STATE SCHOOL PART 2 | 0.8050170049 | $1,245,409 | $1,245,409 | $1,002.58 | | |
| | Total Tax Rate: | 8.5416817766 | | | | | |
| | | | | Taxes w/Current Exemptions: | $10,637.88 | | |
| | | | | Taxes w/o Exemptions: | $10,637.88 | | |
Improvement / Building
| Improvement #1: | Residential Bldg | State Code: | 11 | 3524.0 sqft | Value: | $853,809 |
| Bathrooms (#): | 3 (FULL) | Bathrooms (#): | 1 (HALF) | | Bedrooms (#): | 4 | Exterior Wall: | SI/ST | | Fireplace: | WD ST-AVG | Fireplace: | DBL 2-AVG | | Floor Construction: | FRAME | Foundation: | CONBL | | Heating/Cooling: | HTWTR | Inside Verify: | YES-FIX | | Roof Cover: | SHNGL |   |   |
|
| | Type | Description | Class CD | Sub Class CD | Year Built | Area |
| | MA | Main Area | 5+ | 2S | 1888 | 1356.0 |
| | MA2 | Second Floor Main Area | 5+ | 2S | 1888 | 1356.0 |
| | HWPOR | House Wood Porch | 5 | * | 1888 | 120.0 |
| | HDECK | House Deck | 5 | * | 1888 | 252.0 |
| | HENCL | House Enclosure | 5 | * | 1888 | 168.0 |
| | GARAG | Garage (Table Not Dep) | 4 | * | 1888 | 1008.0 |
| | MA3 | Third Floor Main Area | 5+ | 2S | 1888 | 812.0 |
Sketch
Property Image
Land
| 1 | 6370-1155L | Uptown Std Lot (View Area) | 0.0000 | 0.00 | 0.00 | 0.00 | 1.00 | $265,000 | $0 |
| 2 | 6370-1165L | Uptown Std Lot (Avg) | 0.0000 | 0.00 | 0.00 | 0.00 | 1.00 | $105,000 | $0 |
| 3 | 6370-1175L | Uptown Std Lot (Fair) | 0.0000 | 0.00 | 0.00 | 0.00 | 1.00 | $21,600 | $0 |
Roll Value History
| 2026 | N/A | N/A | N/A | N/A | N/A |
| 2025 | $853,809 | $391,600 | $0 | $1,245,409 | $1,245,409 |
| 2024 | $831,345 | $388,920 | $0 | $1,220,265 | $1,220,265 |
| 2023 | $795,200 | $365,400 | $0 | $1,160,600 | $1,160,600 |
| 2022 | $795,200 | $360,400 | $0 | $1,155,600 | $1,155,600 |
Deed and Sales History
| 1 | 06/23/2023 | QCD | Quit Claim Deed | JOSEPH & JENNIFER LAVY | XKO LLC | | | | 141136 | |
| 2 | 05/23/2022 | SWD | Statutory Warranty Deed | MARSHALL EARL RANEY | JOSEPH & JENNIFER LAVY | | | $1,298,000.00 | 139150 | |
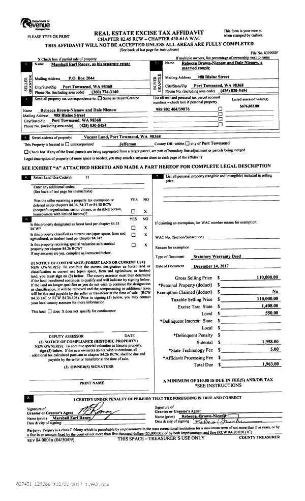
| 3 | 12/08/2017 | BLA | Boundary Line Adjustment | MARSHALL EARL RANEY | REBECCA & DALE NIENOW | | | | 129226 | |
| 4 | 07/19/2005 | QCD | Quit Claim Deed | RANEY, MARSHALL EARL | NESMITH, SHERRY/WILLIAM | 0 | 0 | $0.00 | 104975 | 0 |
| 5 | 04/01/2004 | BLA | Boundary Line Adjustment | RANEY, MARSHALL | RANEY, MARSHALL | 0 | 0 | $0.00 | 99856 | 0 |
| 6 | 09/14/1999 | SWD | Statutory Warranty Deed | SEVERIN GROUP INC | RANEY, MARSHALL EARL | 0 | 0 | $0.00 | 87872 | 0 |
| 7 | 12/07/1997 | SWD | Statutory Warranty Deed | SEVERIN GROUP INC | MARSHALL EARL RANEY | 0 | 0 | $0.00 | 86421 | 0 |
| 8 | 12/04/1997 | SWD | Statutory Warranty Deed | NOWAK, RONALD E/ROSE ANN | SEVERIN GROUP INC | 0 | 0 | $0.00 | 83423 | 0 |
Payout Agreement
| No payout information available.. |