Property
Account |
| Property ID: | 39126 | Abbreviated Legal Description: | PORTAGE BAY PARK 26 & 27(N1/2 OF EA) |
| Parcel # / Geo ID: | 989100032 | Agent Code: | |
| Type: | Real | | |
| Tax Area: | 0211 - 1-49F1E1H2L1 | Land Use Code | 91 |
| Open Space: | N | DFL | N |
| Historic Property: | N | Remodel Property: | N |
| Multi-Family Redevelopment: | N | | |
| Township: | 29N | Section: | 1 |
| Range: | 1W |
Location |
| Address: | | Mapsco: | 093/019 |
| Neighborhood: | PORTAGE BAY PARK | Map ID: | |
| Neighborhood CD: | 4205 |
Owner |
| Name: | LISA A STEPH | Owner ID: | 101193 |
| Mailing Address: | 111 LAUREL ST PORT HADLOCK, WA 98339-9756 | % Ownership: | 100.0000000000% |
| | | Exemptions: | |
Pay Tax Due
Select the appropriate checkbox next to the year to be paid. Multiple years may be selected.
*Convenience Fee not included
Taxes and Assessment Details
Property Tax Information as of
03/10/2026
Click on "Statement Details" to expand or collapse a tax statement.
* Please enter a valid date ** Please enter a valid date *
Statement Details |
| 2026 | 28301 | STATE - STATE LEVY (SCHOOL) | $96.74 | $96.73 | $0.00 | $0.00 | $0.00 | $193.47 |
| 2026 | 28301 | COUNTY - COUNTY LEVIES (CE, DD, VET, MH) | $38.68 | $38.67 | $0.00 | $0.00 | $0.00 | $77.35 |
| 2026 | 28301 | CONSERVE - CONSERVATION FUTURES | $1.16 | $1.16 | $0.00 | $0.00 | $0.00 | $2.32 |
| 2026 | 28301 | COROADS - COUNTY ROADS (ROADS, DIV TO CE) | $31.20 | $31.20 | $0.00 | $0.00 | $0.00 | $62.40 |
| 2026 | 28301 | PORTPT - PORT DISTRICT | $15.63 | $15.61 | $0.00 | $0.00 | $0.00 | $31.24 |
| 2026 | 28301 | PUD1 - PUD #1 | $2.52 | $2.51 | $0.00 | $0.00 | $0.00 | $5.03 |
| 2026 | 28301 | LIB1 - LIBRARY DIST #1 | $12.07 | $12.07 | $0.00 | $0.00 | $0.00 | $24.14 |
| 2026 | 28301 | HD2 - HOSP DIST #2 | $2.26 | $2.25 | $0.00 | $0.00 | $0.00 | $4.51 |
| 2026 | 28301 | SD49 - SCHOOL DIST #49 | $53.25 | $53.25 | $0.00 | $0.00 | $0.00 | $106.50 |
| 2026 | 28301 | FD1 - FIRE DISTRICT #1 | $51.22 | $51.21 | $0.00 | $0.00 | $0.00 | $102.43 |
| 2026 | 28301 | EMS1 - FIRE DIST #1 EMS | $19.69 | $19.69 | $0.00 | $0.00 | $0.00 | $39.38 |
| 2026 | 28301 | FP - DNR Forest Fire Protection Assmt | $8.50 | $8.50 | $0.00 | $0.00 | $0.00 | $17.00 |
| 2026 | 28301 | FPLCA - DNR Landowner Contingency Assmt | $3.00 | $3.00 | $0.00 | $0.00 | $0.00 | $6.00 |
| 2026 | 28301 | JCCD - JC Conservation District | $2.53 | $2.53 | $0.00 | $0.00 | $0.00 | $5.06 |
| 2026 | 28301 | NWA - Noxious Weed Assessment | $2.98 | $2.97 | $0.00 | $0.00 | $0.00 | $5.95 |
| 2026 | 28301 | WAT - Clean Water District | $13.00 | $13.00 | $0.00 | $0.00 | $0.00 | $26.00 |
| 2026 | 28301 | FP ADMIN - FP ADMIN | $0.50 | $0.00 | $0.00 | $0.00 | $0.00 | $0.50 |
| 2026 | 28301 | TOTAL: | $354.93 | $354.35 | $0.00 | $0.00 | $0.00 | $709.28 |
|
| 2026 | 28301 | $354.93 | $354.35 | $0.00 | $0.00 | $0.00 | $709.28 |
Statement Details |
| 2025 | 28373 | STATE - STATE LEVY (SCHOOL) | $96.31 | $96.31 | $0.00 | $0.00 | $192.62 | $0.00 |
| 2025 | 28373 | COUNTY - COUNTY LEVIES (CE, DD, VET, MH) | $37.89 | $37.86 | $0.00 | $0.00 | $75.75 | $0.00 |
| 2025 | 28373 | CONSERVE - CONSERVATION FUTURES | $1.14 | $1.13 | $0.00 | $0.00 | $2.27 | $0.00 |
| 2025 | 28373 | COROADS - COUNTY ROADS (ROADS, DIV TO CE) | $30.35 | $30.34 | $0.00 | $0.00 | $60.69 | $0.00 |
| 2025 | 28373 | PORTPT - PORT DISTRICT | $15.46 | $15.45 | $0.00 | $0.00 | $30.91 | $0.00 |
| 2025 | 28373 | PUD1 - PUD #1 | $2.48 | $2.48 | $0.00 | $0.00 | $4.96 | $0.00 |
| 2025 | 28373 | LIB1 - LIBRARY DIST #1 | $11.74 | $11.74 | $0.00 | $0.00 | $23.48 | $0.00 |
| 2025 | 28373 | HD2 - HOSP DIST #2 | $2.21 | $2.21 | $0.00 | $0.00 | $4.42 | $0.00 |
| 2025 | 28373 | SD49 - SCHOOL DIST #49 | $51.62 | $51.61 | $0.00 | $0.00 | $103.23 | $0.00 |
| 2025 | 28373 | FD1 - FIRE DISTRICT #1 | $49.98 | $49.98 | $0.00 | $0.00 | $99.96 | $0.00 |
| 2025 | 28373 | EMS1 - FIRE DIST #1 EMS | $19.23 | $19.22 | $0.00 | $0.00 | $38.45 | $0.00 |
| 2025 | 28373 | FP - DNR Forest Fire Protection Assmt | $8.50 | $8.50 | $0.00 | $0.00 | $17.00 | $0.00 |
| 2025 | 28373 | FPLCA - DNR Landowner Contingency Assmt | $3.00 | $3.00 | $0.00 | $0.00 | $6.00 | $0.00 |
| 2025 | 28373 | JCCD - JC Conservation District | $2.53 | $2.53 | $0.00 | $0.00 | $5.06 | $0.00 |
| 2025 | 28373 | NWA - Noxious Weed Assessment | $2.15 | $2.15 | $0.00 | $0.00 | $4.30 | $0.00 |
| 2025 | 28373 | WAT - Clean Water District | $13.00 | $13.00 | $0.00 | $0.00 | $26.00 | $0.00 |
| 2025 | 28373 | FP ADMIN - FP ADMIN | $0.50 | $0.00 | $0.00 | $0.00 | $0.50 | $0.00 |
| 2025 | 28373 | TOTAL: | $348.09 | $347.51 | $0.00 | $0.00 | $695.60 | $0.00 |
|
| 2025 | 28373 | $348.09 | $347.51 | $0.00 | $0.00 | $695.60 | $0.00 |
Statement Details |
| 2024 | 28432 | STATE - STATE LEVY (SCHOOL) | $88.50 | $88.49 | $0.00 | $0.00 | $176.99 | $0.00 |
| 2024 | 28432 | COUNTY - COUNTY LEVIES (CE, DD, VET, MH) | $37.89 | $37.85 | $0.00 | $0.00 | $75.74 | $0.00 |
| 2024 | 28432 | CONSERVE - CONSERVATION FUTURES | $1.14 | $1.13 | $0.00 | $0.00 | $2.27 | $0.00 |
| 2024 | 28432 | COROADS - COUNTY ROADS (ROADS, DIV TO CE) | $30.48 | $30.46 | $0.00 | $0.00 | $60.94 | $0.00 |
| 2024 | 28432 | PORTPT - PORT DISTRICT | $15.65 | $15.63 | $0.00 | $0.00 | $31.28 | $0.00 |
| 2024 | 28432 | PUD1 - PUD #1 | $2.49 | $2.48 | $0.00 | $0.00 | $4.97 | $0.00 |
| 2024 | 28432 | LIB1 - LIBRARY DIST #1 | $11.79 | $11.79 | $0.00 | $0.00 | $23.58 | $0.00 |
| 2024 | 28432 | HD2 - HOSP DIST #2 | $2.21 | $2.21 | $0.00 | $0.00 | $4.42 | $0.00 |
| 2024 | 28432 | SD49 - SCHOOL DIST #49 | $39.53 | $39.51 | $0.00 | $0.00 | $79.04 | $0.00 |
| 2024 | 28432 | FD1 - FIRE DISTRICT #1 | $50.07 | $50.07 | $0.00 | $0.00 | $100.14 | $0.00 |
| 2024 | 28432 | EMS1 - FIRE DIST #1 EMS | $19.13 | $19.12 | $0.00 | $0.00 | $38.25 | $0.00 |
| 2024 | 28432 | FP - DNR Forest Fire Protection Assmt | $8.50 | $8.50 | $0.00 | $0.00 | $17.00 | $0.00 |
| 2024 | 28432 | FPLCA - DNR Landowner Contingency Assmt | $3.00 | $3.00 | $0.00 | $0.00 | $6.00 | $0.00 |
| 2024 | 28432 | JCCD - JC Conservation District | $2.53 | $2.53 | $0.00 | $0.00 | $5.06 | $0.00 |
| 2024 | 28432 | NWA - Noxious Weed Assessment | $2.15 | $2.15 | $0.00 | $0.00 | $4.30 | $0.00 |
| 2024 | 28432 | WAT - Clean Water District | $12.50 | $12.50 | $0.00 | $0.00 | $25.00 | $0.00 |
| 2024 | 28432 | FP ADMIN - FP ADMIN | $0.50 | $0.00 | $0.00 | $0.00 | $0.50 | $0.00 |
| 2024 | 28432 | TOTAL: | $328.06 | $327.42 | $0.00 | $0.00 | $655.48 | $0.00 |
|
| 2024 | 28432 | $328.06 | $327.42 | $0.00 | $0.00 | $655.48 | $0.00 |
Statement Details |
| 2023 | 28474 | STATE - STATE LEVY (SCHOOL) | $76.04 | $76.04 | $0.00 | $0.00 | $152.08 | $0.00 |
| 2023 | 28474 | COUNTY - COUNTY LEVIES (CE, DD, VET, MH) | $33.19 | $33.18 | $0.00 | $0.00 | $66.37 | $0.00 |
| 2023 | 28474 | CONSERVE - CONSERVATION FUTURES | $1.00 | $0.99 | $0.00 | $0.00 | $1.99 | $0.00 |
| 2023 | 28474 | COROADS - COUNTY ROADS (ROADS, DIV TO CE) | $26.86 | $26.84 | $0.00 | $0.00 | $53.70 | $0.00 |
| 2023 | 28474 | PORTPT - PORT DISTRICT | $13.98 | $13.97 | $0.00 | $0.00 | $27.95 | $0.00 |
| 2023 | 28474 | PUD1 - PUD #1 | $2.20 | $2.20 | $0.00 | $0.00 | $4.40 | $0.00 |
| 2023 | 28474 | LIB1 - LIBRARY DIST #1 | $10.39 | $10.38 | $0.00 | $0.00 | $20.77 | $0.00 |
| 2023 | 28474 | HD2 - HOSP DIST #2 | $1.94 | $1.93 | $0.00 | $0.00 | $3.87 | $0.00 |
| 2023 | 28474 | SD49 - SCHOOL DIST #49 | $35.55 | $35.54 | $0.00 | $0.00 | $71.09 | $0.00 |
| 2023 | 28474 | FD1 - FIRE DISTRICT #1 | $27.34 | $27.33 | $0.00 | $0.00 | $54.67 | $0.00 |
| 2023 | 28474 | EMS1 - FIRE DIST #1 EMS | $11.63 | $11.63 | $0.00 | $0.00 | $23.26 | $0.00 |
| 2023 | 28474 | FP - DNR Forest Fire Protection Assmt | $8.50 | $8.50 | $0.00 | $0.00 | $17.00 | $0.00 |
| 2023 | 28474 | FPLCA - DNR Landowner Contingency Assmt | $3.00 | $3.00 | $0.00 | $0.00 | $6.00 | $0.00 |
| 2023 | 28474 | JCCD - JC Conservation District | $2.53 | $2.53 | $0.00 | $0.00 | $5.06 | $0.00 |
| 2023 | 28474 | NWA - Noxious Weed Assessment | $2.15 | $2.15 | $0.00 | $0.00 | $4.30 | $0.00 |
| 2023 | 28474 | WAT - Clean Water District | $12.00 | $12.00 | $0.00 | $0.00 | $24.00 | $0.00 |
| 2023 | 28474 | FP ADMIN - FP ADMIN | $0.50 | $0.00 | $0.00 | $0.00 | $0.50 | $0.00 |
| 2023 | 28474 | TOTAL: | $268.80 | $268.21 | $0.00 | $0.00 | $537.01 | $0.00 |
|
| 2023 | 28474 | $268.80 | $268.21 | $0.00 | $0.00 | $537.01 | $0.00 |
Values
| (+) Improvement Homesite Value: | + | $0 | |
| (+) Improvement Non-Homesite Value: | + | $0 | |
| (+) Land Homesite Value: | + | $0 | |
| (+) Land Non-Homesite Value: | + | $84,150 | |
| (+) Curr Use (HS): | + | $0 | $0 |
| (+) Curr Use (NHS): | + | $0 | $0 |
| | | -------------------------- | |
| (=) Market Value: | = | $84,150 | |
| (–) Productivity Loss: | – | $0 | |
| | | -------------------------- | |
| (=) Subtotal: | = | $84,150 | |
| (+) Senior Appraised Value: | + | $0 | |
| (+) Non-Senior Appraised Value: | + | $84,150 | |
| | | -------------------------- | |
| (=) Total Appraised Value: | = | $84,150 | |
| (–) Senior Exemption Loss: | – | $0 | |
| (–) Exemption Loss: | – | $0 | |
| | | -------------------------- | |
| (=) Taxable Value: | = | $84,150 | |
Taxing Jurisdiction
| Owner: | LISA A STEPH | | |
| % Ownership: | 100.0000000000% | | |
| Total Value: | $84,150 | | |
| Tax Area: | 0211 - 1-49F1E1H2L1 |
| CE | COUNTY CURRENT EXPENSE | 0.9034619479 | $84,150 | $84,150 | $76.03 | | |
| CNTYDD | DEVELOPMENTAL DISABILITIES | 0.0052121823 | $84,150 | $84,150 | $0.44 | | |
| CNTYVET | VETERANS RELIEF | 0.0052777810 | $84,150 | $84,150 | $0.44 | | |
| MENTAL | MENTAL HEALTH | 0.0052121823 | $84,150 | $84,150 | $0.44 | | |
| ROADS | COUNTY ROADS | 0.7415066410 | $84,150 | $84,150 | $62.40 | | |
| ROADSCU | COUNTY ROADS TO CUR EXP | 0.0000000000 | $84,150 | $84,150 | $0.00 | | |
| HOSP2CASH | HOSP DIST #2 GENERAL | 0.0536075306 | $84,150 | $84,150 | $4.51 | | |
| SCH49CP | SCHOOL DIST #49 CAP PROJ | 0.6279093905 | $84,150 | $84,150 | $52.84 | | |
| SCH49MO | SCHOOL DIST #49 EP & O | 0.6376483602 | $84,150 | $84,150 | $53.66 | | |
| CONSERVE | CONSERVATION FUTURES | 0.0275621078 | $84,150 | $84,150 | $2.32 | | |
| EMS1 | FIRE DIST #1 EMS | 0.4679948282 | $84,150 | $84,150 | $39.38 | | |
| FD1 | FIRE DIST #1 GENERAL | 1.2171942929 | $84,150 | $84,150 | $102.43 | | |
| LIB1 | LIBRARY DIST #1 GENERAL | 0.2868827388 | $84,150 | $84,150 | $24.14 | | |
| PORTPT | PORT OF PT GENERAL | 0.1134941229 | $84,150 | $84,150 | $9.55 | | |
| PORTPTIDD | PORT OF PT IDD 2019 | 0.2577346692 | $84,150 | $84,150 | $21.69 | | |
| PUD1 | PUD #1 GENERAL | 0.0597888892 | $84,150 | $84,150 | $5.03 | | |
| STATE | STATE SCHOOL PART 1 | 1.4940692947 | $84,150 | $84,150 | $125.73 | | |
| STATE2 | STATE SCHOOL PART 2 | 0.8050170049 | $84,150 | $84,150 | $67.74 | | |
| | Total Tax Rate: | 7.7095739644 | | | | | |
| | | | | Taxes w/Current Exemptions: | $648.77 | | |
| | | | | Taxes w/o Exemptions: | $648.77 | | |
Improvement / Building
Sketch
| No sketches available for this property. |
Property Image
Land
| 1 | 4205-1165S | | 0.0000 | 0.00 | 0.00 | 0.00 | 1.00 | $84,150 | $0 |
Roll Value History
| 2026 | N/A | N/A | N/A | N/A | N/A |
| 2025 | $0 | $84,150 | $0 | $84,150 | $84,150 |
| 2024 | $0 | $80,325 | $0 | $80,325 | $80,325 |
| 2023 | $0 | $76,500 | $0 | $76,500 | $76,500 |
| 2022 | $0 | $64,600 | $0 | $64,600 | $64,600 |
Deed and Sales History
| 1 | 06/12/2019 | SWD | Statutory Warranty Deed | JOSEPH A DACCURSO | LISA A STEPH | | | $65,000.00 | 132551 | |
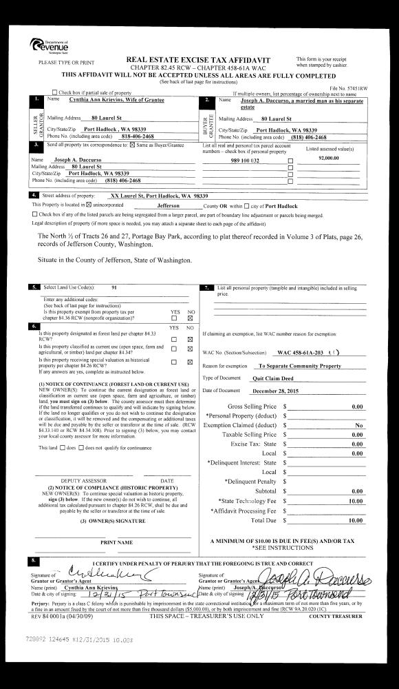
| 2 | 12/28/2015 | QCD | Quit Claim Deed | | | | | | 124645 | |
| 3 | 12/28/2015 | SWD | Statutory Warranty Deed | JOSEPH BRENT WHITE | JOSEPH A DACCURSO | | | $32,500.00 | 124644 | |
| 4 | 04/04/2006 | SWD | Statutory Warranty Deed | STAVNEY, LUTHARD S AKA ST | WHITE, J BRENT/JANET A | | | $115,000.00 | 106386 | 0 |
| 5 | 10/22/1996 | QCD | Quit Claim Deed | STAVNEY, L STANTON/M.D. I | STAVNEY, L STANTON/KATHLEEN J | 0 | 0 | $0.00 | 80644 | 0 |
Payout Agreement
| No payout information available.. |