Property
Account |
| Property ID: | 39134 | Abbreviated Legal Description: | PORTAGE BAY PARK LOT 42 |
| Parcel # / Geo ID: | 989100040 | Agent Code: | |
| Type: | Real | | |
| Tax Area: | 0211 - 1-49F1E1H2L1 | Land Use Code | 91 |
| Open Space: | N | DFL | N |
| Historic Property: | N | Remodel Property: | N |
| Multi-Family Redevelopment: | N | | |
| Township: | 29N | Section: | 1 |
| Range: | 1W |
Location |
| Address: | | Mapsco: | 093/031 |
| Neighborhood: | PORTAGE BAY PARK | Map ID: | |
| Neighborhood CD: | 4205 |
Owner |
| Name: | MIKE & LINDA MCCUTCHEON | Owner ID: | 97951 |
| Mailing Address: | 2558 FLAGLER RD PORT HADLOCK, WA 98339-9744 | % Ownership: | 100.0000000000% |
| | | Exemptions: | |
Pay Tax Due
Select the appropriate checkbox next to the year to be paid. Multiple years may be selected.
*Convenience Fee not included
Taxes and Assessment Details
Property Tax Information as of
03/12/2026
Click on "Statement Details" to expand or collapse a tax statement.
* Please enter a valid date ** Please enter a valid date *
Statement Details |
| 2026 | 28308 | STATE - STATE LEVY (SCHOOL) | $45.53 | $45.52 | $0.00 | $0.00 | $0.00 | $91.05 |
| 2026 | 28308 | COUNTY - COUNTY LEVIES (CE, DD, VET, MH) | $18.22 | $18.19 | $0.00 | $0.00 | $0.00 | $36.41 |
| 2026 | 28308 | CONSERVE - CONSERVATION FUTURES | $0.55 | $0.54 | $0.00 | $0.00 | $0.00 | $1.09 |
| 2026 | 28308 | COROADS - COUNTY ROADS (ROADS, DIV TO CE) | $14.68 | $14.68 | $0.00 | $0.00 | $0.00 | $29.36 |
| 2026 | 28308 | PORTPT - PORT DISTRICT | $7.36 | $7.34 | $0.00 | $0.00 | $0.00 | $14.70 |
| 2026 | 28308 | PUD1 - PUD #1 | $1.19 | $1.18 | $0.00 | $0.00 | $0.00 | $2.37 |
| 2026 | 28308 | LIB1 - LIBRARY DIST #1 | $5.68 | $5.68 | $0.00 | $0.00 | $0.00 | $11.36 |
| 2026 | 28308 | HD2 - HOSP DIST #2 | $1.06 | $1.06 | $0.00 | $0.00 | $0.00 | $2.12 |
| 2026 | 28308 | SD49 - SCHOOL DIST #49 | $25.07 | $25.05 | $0.00 | $0.00 | $0.00 | $50.12 |
| 2026 | 28308 | FD1 - FIRE DISTRICT #1 | $24.10 | $24.10 | $0.00 | $0.00 | $0.00 | $48.20 |
| 2026 | 28308 | EMS1 - FIRE DIST #1 EMS | $9.27 | $9.26 | $0.00 | $0.00 | $0.00 | $18.53 |
| 2026 | 28308 | FPLCA - DNR Landowner Contingency Assmt | $3.00 | $3.00 | $0.00 | $0.00 | $0.00 | $6.00 |
| 2026 | 28308 | JCCD - JC Conservation District | $2.57 | $2.57 | $0.00 | $0.00 | $0.00 | $5.14 |
| 2026 | 28308 | NWA - Noxious Weed Assessment | $3.20 | $3.20 | $0.00 | $0.00 | $0.00 | $6.40 |
| 2026 | 28308 | WAT - Clean Water District | $13.00 | $13.00 | $0.00 | $0.00 | $0.00 | $26.00 |
| 2026 | 28308 | TOTAL: | $174.48 | $174.37 | $0.00 | $0.00 | $0.00 | $348.85 |
|
| 2026 | 28308 | $174.48 | $174.37 | $0.00 | $0.00 | $0.00 | $348.85 |
Statement Details |
| 2025 | 28380 | STATE - STATE LEVY (SCHOOL) | $45.33 | $45.32 | $0.00 | $0.00 | $90.65 | $0.00 |
| 2025 | 28380 | COUNTY - COUNTY LEVIES (CE, DD, VET, MH) | $17.82 | $17.82 | $0.00 | $0.00 | $35.64 | $0.00 |
| 2025 | 28380 | CONSERVE - CONSERVATION FUTURES | $0.54 | $0.53 | $0.00 | $0.00 | $1.07 | $0.00 |
| 2025 | 28380 | COROADS - COUNTY ROADS (ROADS, DIV TO CE) | $14.28 | $14.28 | $0.00 | $0.00 | $28.56 | $0.00 |
| 2025 | 28380 | PORTPT - PORT DISTRICT | $7.27 | $7.27 | $0.00 | $0.00 | $14.54 | $0.00 |
| 2025 | 28380 | PUD1 - PUD #1 | $1.17 | $1.16 | $0.00 | $0.00 | $2.33 | $0.00 |
| 2025 | 28380 | LIB1 - LIBRARY DIST #1 | $5.53 | $5.52 | $0.00 | $0.00 | $11.05 | $0.00 |
| 2025 | 28380 | HD2 - HOSP DIST #2 | $1.04 | $1.04 | $0.00 | $0.00 | $2.08 | $0.00 |
| 2025 | 28380 | SD49 - SCHOOL DIST #49 | $24.30 | $24.28 | $0.00 | $0.00 | $48.58 | $0.00 |
| 2025 | 28380 | FD1 - FIRE DISTRICT #1 | $23.52 | $23.52 | $0.00 | $0.00 | $47.04 | $0.00 |
| 2025 | 28380 | EMS1 - FIRE DIST #1 EMS | $9.05 | $9.04 | $0.00 | $0.00 | $18.09 | $0.00 |
| 2025 | 28380 | FPLCA - DNR Landowner Contingency Assmt | $3.00 | $3.00 | $0.00 | $0.00 | $6.00 | $0.00 |
| 2025 | 28380 | JCCD - JC Conservation District | $2.57 | $2.57 | $0.00 | $0.00 | $5.14 | $0.00 |
| 2025 | 28380 | NWA - Noxious Weed Assessment | $2.30 | $2.30 | $0.00 | $0.00 | $4.60 | $0.00 |
| 2025 | 28380 | WAT - Clean Water District | $13.00 | $13.00 | $0.00 | $0.00 | $26.00 | $0.00 |
| 2025 | 28380 | TOTAL: | $170.72 | $170.65 | $0.00 | $0.00 | $341.37 | $0.00 |
|
| 2025 | 28380 | $170.72 | $170.65 | $0.00 | $0.00 | $341.37 | $0.00 |
Statement Details |
| 2024 | 28440 | STATE - STATE LEVY (SCHOOL) | $41.65 | $41.64 | $0.00 | $0.00 | $83.29 | $0.00 |
| 2024 | 28440 | COUNTY - COUNTY LEVIES (CE, DD, VET, MH) | $17.82 | $17.81 | $0.00 | $0.00 | $35.63 | $0.00 |
| 2024 | 28440 | CONSERVE - CONSERVATION FUTURES | $0.54 | $0.53 | $0.00 | $0.00 | $1.07 | $0.00 |
| 2024 | 28440 | COROADS - COUNTY ROADS (ROADS, DIV TO CE) | $14.34 | $14.34 | $0.00 | $0.00 | $28.68 | $0.00 |
| 2024 | 28440 | PORTPT - PORT DISTRICT | $7.36 | $7.36 | $0.00 | $0.00 | $14.72 | $0.00 |
| 2024 | 28440 | PUD1 - PUD #1 | $1.17 | $1.17 | $0.00 | $0.00 | $2.34 | $0.00 |
| 2024 | 28440 | LIB1 - LIBRARY DIST #1 | $5.55 | $5.55 | $0.00 | $0.00 | $11.10 | $0.00 |
| 2024 | 28440 | HD2 - HOSP DIST #2 | $1.04 | $1.04 | $0.00 | $0.00 | $2.08 | $0.00 |
| 2024 | 28440 | SD49 - SCHOOL DIST #49 | $18.60 | $18.59 | $0.00 | $0.00 | $37.19 | $0.00 |
| 2024 | 28440 | FD1 - FIRE DISTRICT #1 | $23.57 | $23.56 | $0.00 | $0.00 | $47.13 | $0.00 |
| 2024 | 28440 | EMS1 - FIRE DIST #1 EMS | $9.00 | $9.00 | $0.00 | $0.00 | $18.00 | $0.00 |
| 2024 | 28440 | FPLCA - DNR Landowner Contingency Assmt | $3.00 | $3.00 | $0.00 | $0.00 | $6.00 | $0.00 |
| 2024 | 28440 | JCCD - JC Conservation District | $2.57 | $2.57 | $0.00 | $0.00 | $5.14 | $0.00 |
| 2024 | 28440 | NWA - Noxious Weed Assessment | $2.30 | $2.30 | $0.00 | $0.00 | $4.60 | $0.00 |
| 2024 | 28440 | WAT - Clean Water District | $12.50 | $12.50 | $0.00 | $0.00 | $25.00 | $0.00 |
| 2024 | 28440 | TOTAL: | $161.01 | $160.96 | $0.00 | $0.00 | $321.97 | $0.00 |
|
| 2024 | 28440 | $161.01 | $160.96 | $0.00 | $0.00 | $321.97 | $0.00 |
Statement Details |
| 2023 | 28482 | STATE - STATE LEVY (SCHOOL) | $35.32 | $35.30 | $0.00 | $0.00 | $70.62 | $0.00 |
| 2023 | 28482 | COUNTY - COUNTY LEVIES (CE, DD, VET, MH) | $15.42 | $15.39 | $0.00 | $0.00 | $30.81 | $0.00 |
| 2023 | 28482 | CONSERVE - CONSERVATION FUTURES | $0.46 | $0.46 | $0.00 | $0.00 | $0.92 | $0.00 |
| 2023 | 28482 | COROADS - COUNTY ROADS (ROADS, DIV TO CE) | $12.47 | $12.46 | $0.00 | $0.00 | $24.93 | $0.00 |
| 2023 | 28482 | PORTPT - PORT DISTRICT | $6.50 | $6.49 | $0.00 | $0.00 | $12.99 | $0.00 |
| 2023 | 28482 | PUD1 - PUD #1 | $1.02 | $1.02 | $0.00 | $0.00 | $2.04 | $0.00 |
| 2023 | 28482 | LIB1 - LIBRARY DIST #1 | $4.83 | $4.82 | $0.00 | $0.00 | $9.65 | $0.00 |
| 2023 | 28482 | HD2 - HOSP DIST #2 | $0.90 | $0.90 | $0.00 | $0.00 | $1.80 | $0.00 |
| 2023 | 28482 | SD49 - SCHOOL DIST #49 | $16.52 | $16.50 | $0.00 | $0.00 | $33.02 | $0.00 |
| 2023 | 28482 | FD1 - FIRE DISTRICT #1 | $12.70 | $12.69 | $0.00 | $0.00 | $25.39 | $0.00 |
| 2023 | 28482 | EMS1 - FIRE DIST #1 EMS | $5.40 | $5.40 | $0.00 | $0.00 | $10.80 | $0.00 |
| 2023 | 28482 | FPLCA - DNR Landowner Contingency Assmt | $3.00 | $3.00 | $0.00 | $0.00 | $6.00 | $0.00 |
| 2023 | 28482 | JCCD - JC Conservation District | $2.57 | $2.57 | $0.00 | $0.00 | $5.14 | $0.00 |
| 2023 | 28482 | NWA - Noxious Weed Assessment | $2.30 | $2.30 | $0.00 | $0.00 | $4.60 | $0.00 |
| 2023 | 28482 | WAT - Clean Water District | $12.00 | $12.00 | $0.00 | $0.00 | $24.00 | $0.00 |
| 2023 | 28482 | TOTAL: | $131.41 | $131.30 | $0.00 | $0.00 | $262.71 | $0.00 |
|
| 2023 | 28482 | $131.41 | $131.30 | $0.00 | $0.00 | $262.71 | $0.00 |
Values
| (+) Improvement Homesite Value: | + | $0 | |
| (+) Improvement Non-Homesite Value: | + | $0 | |
| (+) Land Homesite Value: | + | $0 | |
| (+) Land Non-Homesite Value: | + | $39,600 | |
| (+) Curr Use (HS): | + | $0 | $0 |
| (+) Curr Use (NHS): | + | $0 | $0 |
| | | -------------------------- | |
| (=) Market Value: | = | $39,600 | |
| (–) Productivity Loss: | – | $0 | |
| | | -------------------------- | |
| (=) Subtotal: | = | $39,600 | |
| (+) Senior Appraised Value: | + | $0 | |
| (+) Non-Senior Appraised Value: | + | $39,600 | |
| | | -------------------------- | |
| (=) Total Appraised Value: | = | $39,600 | |
| (–) Senior Exemption Loss: | – | $0 | |
| (–) Exemption Loss: | – | $0 | |
| | | -------------------------- | |
| (=) Taxable Value: | = | $39,600 | |
Taxing Jurisdiction
| Owner: | MIKE & LINDA MCCUTCHEON | | |
| % Ownership: | 100.0000000000% | | |
| Total Value: | $39,600 | | |
| Tax Area: | 0211 - 1-49F1E1H2L1 |
| CE | COUNTY CURRENT EXPENSE | 0.9034619479 | $39,600 | $39,600 | $35.78 | | |
| CNTYDD | DEVELOPMENTAL DISABILITIES | 0.0052121823 | $39,600 | $39,600 | $0.21 | | |
| CNTYVET | VETERANS RELIEF | 0.0052777810 | $39,600 | $39,600 | $0.21 | | |
| MENTAL | MENTAL HEALTH | 0.0052121823 | $39,600 | $39,600 | $0.21 | | |
| ROADS | COUNTY ROADS | 0.7415066410 | $39,600 | $39,600 | $29.36 | | |
| ROADSCU | COUNTY ROADS TO CUR EXP | 0.0000000000 | $39,600 | $39,600 | $0.00 | | |
| HOSP2CASH | HOSP DIST #2 GENERAL | 0.0536075306 | $39,600 | $39,600 | $2.12 | | |
| SCH49CP | SCHOOL DIST #49 CAP PROJ | 0.6279093905 | $39,600 | $39,600 | $24.87 | | |
| SCH49MO | SCHOOL DIST #49 EP & O | 0.6376483602 | $39,600 | $39,600 | $25.25 | | |
| CONSERVE | CONSERVATION FUTURES | 0.0275621078 | $39,600 | $39,600 | $1.09 | | |
| EMS1 | FIRE DIST #1 EMS | 0.4679948282 | $39,600 | $39,600 | $18.53 | | |
| FD1 | FIRE DIST #1 GENERAL | 1.2171942929 | $39,600 | $39,600 | $48.20 | | |
| LIB1 | LIBRARY DIST #1 GENERAL | 0.2868827388 | $39,600 | $39,600 | $11.36 | | |
| PORTPT | PORT OF PT GENERAL | 0.1134941229 | $39,600 | $39,600 | $4.49 | | |
| PORTPTIDD | PORT OF PT IDD 2019 | 0.2577346692 | $39,600 | $39,600 | $10.21 | | |
| PUD1 | PUD #1 GENERAL | 0.0597888892 | $39,600 | $39,600 | $2.37 | | |
| STATE | STATE SCHOOL PART 1 | 1.4940692947 | $39,600 | $39,600 | $59.17 | | |
| STATE2 | STATE SCHOOL PART 2 | 0.8050170049 | $39,600 | $39,600 | $31.88 | | |
| | Total Tax Rate: | 7.7095739644 | | | | | |
| | | | | Taxes w/Current Exemptions: | $305.31 | | |
| | | | | Taxes w/o Exemptions: | $305.31 | | |
Improvement / Building
Sketch
| No sketches available for this property. |
Property Image
Land
| 1 | 4205-1185S | | 1.0000 | 43560.00 | 0.00 | 0.00 | 1.00 | $39,600 | $0 |
Roll Value History
| 2026 | N/A | N/A | N/A | N/A | N/A |
| 2025 | $0 | $39,600 | $0 | $39,600 | $39,600 |
| 2024 | $0 | $37,800 | $0 | $37,800 | $37,800 |
| 2023 | $0 | $36,000 | $0 | $36,000 | $36,000 |
| 2022 | $0 | $30,000 | $0 | $30,000 | $30,000 |
Deed and Sales History
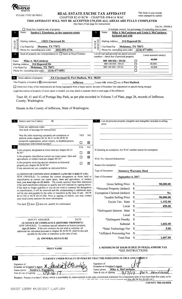
| 1 | 09/06/2017 | SWD | Statutory Warranty Deed | SANDRA L EISENBEISZ | MIKE & LINDA MCCUTCHEON | | | $90,000.00 | 128589 | |
|   | |
| 2 | 06/23/2008 | QCD | Quit Claim Deed | HELLWIG, JUDITH E | EISENBEISZ, SANDRA L | | | $0.00 | 111583 | 0 |
| 3 | 01/16/1998 | QCD | Quit Claim Deed | THOMPSON, SHIRLEY P | EISENBEISZ, SANDRA L | 0 | 0 | $0.00 | 83797 | 0 |
| 4 | 09/14/1995 | SWD | Statutory Warranty Deed | ROBINSON, WILLIAM A/LESLI | HELLWIG, J E/THOMPSON, S P | 0 | 0 | $49,950.00 | 77822 | 0 |
|   | |
Payout Agreement
| No payout information available.. |