Property
Account |
| Property ID: | 39171 | Abbreviated Legal Description: | PORT HADLOCK BLK 2 LOT 2 |
| Parcel # / Geo ID: | 989400202 | Agent Code: | |
| Type: | Real | | |
| Tax Area: | 0211 - 1-49F1E1H2L1 | Land Use Code | 11 |
| Open Space: | N | DFL | N |
| Historic Property: | N | Remodel Property: | N |
| Multi-Family Redevelopment: | N | | |
| Township: | 29N | Section: | 1 |
| Range: | 1W |
Location |
| Address: | 121 RANDOLPH ST PORT HADLOCK, WA 98339 | Mapsco: | 092/018 |
| Neighborhood: | SHOLD'S ADDITION, PORT HADLOCK | Map ID: | |
| Neighborhood CD: | 4203 |
Owner |
| Name: | JOAN E SMITH LIVING TRUST | Owner ID: | 108844 |
| Mailing Address: | JOAN E SMITH LIVING TRUST 121 RANDOLPH ST PORT HADLOCK, WA 98339-8507 | % Ownership: | 100.0000000000% |
| | | Exemptions: | SNR/DSBL |
Pay Tax Due
Select the appropriate checkbox next to the year to be paid. Multiple years may be selected.
*Convenience Fee not included
Taxes and Assessment Details
Property Tax Information as of
03/09/2026
Click on "Statement Details" to expand or collapse a tax statement.
* Please enter a valid date ** Please enter a valid date *
Statement Details |
| 2026 | 28345 | STATE - STATE LEVY (SCHOOL) | $108.41 | $108.40 | $0.00 | $0.00 | $0.00 | $216.81 |
| 2026 | 28345 | COUNTY - COUNTY LEVIES (CE, DD, VET, MH) | $66.71 | $66.69 | $0.00 | $0.00 | $0.00 | $133.40 |
| 2026 | 28345 | CONSERVE - CONSERVATION FUTURES | $2.00 | $2.00 | $0.00 | $0.00 | $0.00 | $4.00 |
| 2026 | 28345 | COROADS - COUNTY ROADS (ROADS, DIV TO CE) | $53.80 | $53.80 | $0.00 | $0.00 | $0.00 | $107.60 |
| 2026 | 28345 | PORTPT - PORT DISTRICT | $26.94 | $26.93 | $0.00 | $0.00 | $0.00 | $53.87 |
| 2026 | 28345 | PUD1 - PUD #1 | $4.34 | $4.34 | $0.00 | $0.00 | $0.00 | $8.68 |
| 2026 | 28345 | LIB1 - LIBRARY DIST #1 | $20.82 | $20.81 | $0.00 | $0.00 | $0.00 | $41.63 |
| 2026 | 28345 | HD2 - HOSP DIST #2 | $3.89 | $3.89 | $0.00 | $0.00 | $0.00 | $7.78 |
| 2026 | 28345 | SD49 - SCHOOL DIST #49 | $0.00 | $0.00 | $0.00 | $0.00 | $0.00 | $0.00 |
| 2026 | 28345 | FD1 - FIRE DISTRICT #1 | $88.32 | $88.31 | $0.00 | $0.00 | $0.00 | $176.63 |
| 2026 | 28345 | EMS1 - FIRE DIST #1 EMS | $33.96 | $33.95 | $0.00 | $0.00 | $0.00 | $67.91 |
| 2026 | 28345 | OSS - On Site Septic | $23.10 | $23.10 | $0.00 | $0.00 | $0.00 | $46.20 |
| 2026 | 28345 | TOTAL: | $432.29 | $432.22 | $0.00 | $0.00 | $0.00 | $864.51 |
|
| 2026 | 28345 | $432.29 | $432.22 | $0.00 | $0.00 | $0.00 | $864.51 |
Statement Details |
| 2025 | 28417 | STATE - STATE LEVY (SCHOOL) | $113.12 | $113.11 | $0.00 | $0.00 | $226.23 | $0.00 |
| 2025 | 28417 | COUNTY - COUNTY LEVIES (CE, DD, VET, MH) | $68.43 | $68.40 | $0.00 | $0.00 | $136.83 | $0.00 |
| 2025 | 28417 | CONSERVE - CONSERVATION FUTURES | $2.05 | $2.05 | $0.00 | $0.00 | $4.10 | $0.00 |
| 2025 | 28417 | COROADS - COUNTY ROADS (ROADS, DIV TO CE) | $54.82 | $54.82 | $0.00 | $0.00 | $109.64 | $0.00 |
| 2025 | 28417 | PORTPT - PORT DISTRICT | $27.92 | $27.92 | $0.00 | $0.00 | $55.84 | $0.00 |
| 2025 | 28417 | PUD1 - PUD #1 | $4.48 | $4.47 | $0.00 | $0.00 | $8.95 | $0.00 |
| 2025 | 28417 | LIB1 - LIBRARY DIST #1 | $21.21 | $21.21 | $0.00 | $0.00 | $42.42 | $0.00 |
| 2025 | 28417 | HD2 - HOSP DIST #2 | $3.99 | $3.99 | $0.00 | $0.00 | $7.98 | $0.00 |
| 2025 | 28417 | SD49 - SCHOOL DIST #49 | $0.00 | $0.00 | $0.00 | $0.00 | $0.00 | $0.00 |
| 2025 | 28417 | FD1 - FIRE DISTRICT #1 | $90.29 | $90.29 | $0.00 | $0.00 | $180.58 | $0.00 |
| 2025 | 28417 | EMS1 - FIRE DIST #1 EMS | $34.73 | $34.73 | $0.00 | $0.00 | $69.46 | $0.00 |
| 2025 | 28417 | JCCD - JC Conservation District | $2.55 | $2.55 | $0.00 | $0.00 | $5.10 | $0.00 |
| 2025 | 28417 | NWA - Noxious Weed Assessment | $2.15 | $2.15 | $0.00 | $0.00 | $4.30 | $0.00 |
| 2025 | 28417 | OSS - On Site Septic | $21.50 | $21.50 | $0.00 | $0.00 | $43.00 | $0.00 |
| 2025 | 28417 | WAT - Clean Water District | $13.00 | $13.00 | $0.00 | $0.00 | $26.00 | $0.00 |
| 2025 | 28417 | TOTAL: | $460.24 | $460.19 | $0.00 | $0.00 | $920.43 | $0.00 |
|
| 2025 | 28417 | $460.24 | $460.19 | $0.00 | $0.00 | $920.43 | $0.00 |
Statement Details |
| 2024 | 28477 | STATE - STATE LEVY (SCHOOL) | $393.91 | $393.89 | $0.00 | $0.00 | $787.80 | $0.00 |
| 2024 | 28477 | COUNTY - COUNTY LEVIES (CE, DD, VET, MH) | $168.56 | $168.55 | $0.00 | $0.00 | $337.11 | $0.00 |
| 2024 | 28477 | CONSERVE - CONSERVATION FUTURES | $5.06 | $5.05 | $0.00 | $0.00 | $10.11 | $0.00 |
| 2024 | 28477 | COROADS - COUNTY ROADS (ROADS, DIV TO CE) | $135.63 | $135.63 | $0.00 | $0.00 | $271.26 | $0.00 |
| 2024 | 28477 | PORTPT - PORT DISTRICT | $69.62 | $69.62 | $0.00 | $0.00 | $139.24 | $0.00 |
| 2024 | 28477 | PUD1 - PUD #1 | $11.07 | $11.07 | $0.00 | $0.00 | $22.14 | $0.00 |
| 2024 | 28477 | LIB1 - LIBRARY DIST #1 | $52.48 | $52.47 | $0.00 | $0.00 | $104.95 | $0.00 |
| 2024 | 28477 | HD2 - HOSP DIST #2 | $9.84 | $9.83 | $0.00 | $0.00 | $19.67 | $0.00 |
| 2024 | 28477 | SD49 - SCHOOL DIST #49 | $175.90 | $175.89 | $0.00 | $0.00 | $351.79 | $0.00 |
| 2024 | 28477 | FD1 - FIRE DISTRICT #1 | $222.87 | $222.87 | $0.00 | $0.00 | $445.74 | $0.00 |
| 2024 | 28477 | EMS1 - FIRE DIST #1 EMS | $85.13 | $85.13 | $0.00 | $0.00 | $170.26 | $0.00 |
| 2024 | 28477 | JCCD - JC Conservation District | $2.55 | $2.55 | $0.00 | $0.00 | $5.10 | $0.00 |
| 2024 | 28477 | NWA - Noxious Weed Assessment | $2.15 | $2.15 | $0.00 | $0.00 | $4.30 | $0.00 |
| 2024 | 28477 | OSS - On Site Septic | $21.00 | $21.00 | $0.00 | $0.00 | $42.00 | $0.00 |
| 2024 | 28477 | WAT - Clean Water District | $12.50 | $12.50 | $0.00 | $0.00 | $25.00 | $0.00 |
| 2024 | 28477 | TOTAL: | $1368.27 | $1368.20 | $0.00 | $0.00 | $2736.47 | $0.00 |
|
| 2024 | 28477 | $1368.27 | $1368.20 | $0.00 | $0.00 | $2736.47 | $0.00 |
Statement Details |
| 2023 | 28519 | STATE - STATE LEVY (SCHOOL) | $322.45 | $322.43 | $0.00 | $0.00 | $644.88 | $0.00 |
| 2023 | 28519 | COUNTY - COUNTY LEVIES (CE, DD, VET, MH) | $140.71 | $140.70 | $0.00 | $0.00 | $281.41 | $0.00 |
| 2023 | 28519 | CONSERVE - CONSERVATION FUTURES | $4.22 | $4.22 | $0.00 | $0.00 | $8.44 | $0.00 |
| 2023 | 28519 | COROADS - COUNTY ROADS (ROADS, DIV TO CE) | $113.84 | $113.84 | $0.00 | $0.00 | $227.68 | $0.00 |
| 2023 | 28519 | PORTPT - PORT DISTRICT | $59.28 | $59.27 | $0.00 | $0.00 | $118.55 | $0.00 |
| 2023 | 28519 | PUD1 - PUD #1 | $9.33 | $9.32 | $0.00 | $0.00 | $18.65 | $0.00 |
| 2023 | 28519 | LIB1 - LIBRARY DIST #1 | $44.05 | $44.04 | $0.00 | $0.00 | $88.09 | $0.00 |
| 2023 | 28519 | HD2 - HOSP DIST #2 | $8.22 | $8.20 | $0.00 | $0.00 | $16.42 | $0.00 |
| 2023 | 28519 | SD49 - SCHOOL DIST #49 | $150.73 | $150.71 | $0.00 | $0.00 | $301.44 | $0.00 |
| 2023 | 28519 | FD1 - FIRE DISTRICT #1 | $115.91 | $115.91 | $0.00 | $0.00 | $231.82 | $0.00 |
| 2023 | 28519 | EMS1 - FIRE DIST #1 EMS | $49.31 | $49.30 | $0.00 | $0.00 | $98.61 | $0.00 |
| 2023 | 28519 | JCCD - JC Conservation District | $2.55 | $2.55 | $0.00 | $0.00 | $5.10 | $0.00 |
| 2023 | 28519 | NWA - Noxious Weed Assessment | $2.15 | $2.15 | $0.00 | $0.00 | $4.30 | $0.00 |
| 2023 | 28519 | OSS - On Site Septic | $20.50 | $20.50 | $0.00 | $0.00 | $41.00 | $0.00 |
| 2023 | 28519 | WAT - Clean Water District | $12.00 | $12.00 | $0.00 | $0.00 | $24.00 | $0.00 |
| 2023 | 28519 | TOTAL: | $1055.25 | $1055.14 | $0.00 | $0.00 | $2110.39 | $0.00 |
|
| 2023 | 28519 | $1055.25 | $1055.14 | $0.00 | $0.00 | $2110.39 | $0.00 |
Values
| (+) Improvement Homesite Value: | + | $298,937 | |
| (+) Improvement Non-Homesite Value: | + | $0 | |
| (+) Land Homesite Value: | + | $81,125 | |
| (+) Land Non-Homesite Value: | + | $0 | |
| (+) Curr Use (HS): | + | $0 | $0 |
| (+) Curr Use (NHS): | + | $0 | $0 |
| | | -------------------------- | |
| (=) Market Value: | = | $380,062 | |
| (–) Productivity Loss: | – | $0 | |
| | | -------------------------- | |
| (=) Subtotal: | = | $380,062 | |
| (+) Senior Appraised Value: | + | $362,787 | |
| (+) Non-Senior Appraised Value: | + | $0 | |
| | | -------------------------- | |
| (=) Total Appraised Value: | = | $362,787 | |
| (–) Senior Exemption Loss: | – | $217,672 | |
| (–) Exemption Loss: | – | $0 | |
| | | -------------------------- | |
| (=) Taxable Value: | = | $145,115 | |
Taxing Jurisdiction
| Owner: | JOAN E SMITH LIVING TRUST | | |
| % Ownership: | 100.0000000000% | | |
| Total Value: | $380,062 | | |
| Tax Area: | 0211 - 1-49F1E1H2L1 |
| CE | COUNTY CURRENT EXPENSE | 0.9034619479 | $380,062 | $145,115 | $131.11 | | |
| CNTYDD | DEVELOPMENTAL DISABILITIES | 0.0052121823 | $380,062 | $145,115 | $0.76 | | |
| CNTYVET | VETERANS RELIEF | 0.0052777810 | $380,062 | $145,115 | $0.77 | | |
| MENTAL | MENTAL HEALTH | 0.0052121823 | $380,062 | $145,115 | $0.76 | | |
| ROADS | COUNTY ROADS | 0.7415066410 | $380,062 | $145,115 | $107.60 | | |
| ROADSCU | COUNTY ROADS TO CUR EXP | 0.0000000000 | $380,062 | $145,115 | $0.00 | | |
| HOSP2CASH | HOSP DIST #2 GENERAL | 0.0536075306 | $380,062 | $145,115 | $7.78 | | |
| SCH49CP | SCHOOL DIST #49 CAP PROJ | 0.0000000000 | $380,062 | $0 | $0.00 | | |
| SCH49MO | SCHOOL DIST #49 EP & O | 0.0000000000 | $380,062 | $0 | $0.00 | | |
| CONSERVE | CONSERVATION FUTURES | 0.0275621078 | $380,062 | $145,115 | $4.00 | | |
| EMS1 | FIRE DIST #1 EMS | 0.4679948282 | $380,062 | $145,115 | $67.91 | | |
| FD1 | FIRE DIST #1 GENERAL | 1.2171942929 | $380,062 | $145,115 | $176.63 | | |
| LIB1 | LIBRARY DIST #1 GENERAL | 0.2868827388 | $380,062 | $145,115 | $41.63 | | |
| PORTPT | PORT OF PT GENERAL | 0.1134941229 | $380,062 | $145,115 | $16.47 | | |
| PORTPTIDD | PORT OF PT IDD 2019 | 0.2577346692 | $380,062 | $145,115 | $37.40 | | |
| PUD1 | PUD #1 GENERAL | 0.0597888892 | $380,062 | $145,115 | $8.68 | | |
| STATE | STATE SCHOOL PART 1 | 1.4940692947 | $380,062 | $145,115 | $216.81 | | |
| STATE2 | STATE SCHOOL PART 2 | 0.0000000000 | $380,062 | $0 | $0.00 | | |
| | Total Tax Rate: | 5.6389992088 | | | | | |
| | | | | Taxes w/Current Exemptions: | $818.31 | | |
| | | | | Taxes w/o Exemptions: | $2,930.12 | | |
Improvement / Building
| Improvement #1: | Residential Bldg | State Code: | 11 | 1536.0 sqft | Value: | $298,937 |
| Bathrooms (#): | 1 (FULL) | Bedrooms (#): | 1 | | Exterior Wall: | SI/ST | Floor Construction: | FRAME | | Foundation: | PO&BL | Heating/Cooling: | ELBB | | Interior Finish: | FIN | Roof Cover: | COMP |
|
| | Type | Description | Class CD | Sub Class CD | Year Built | Area |
| | MA | Main Area | 4+ | 15SF | 1898 | 1008.0 |
| | MA2 | Second Floor Main Area | 4+ | 15SF | 1898 | 528.0 |
| | HDECK | House Deck | 4 | * | 1898 | 102.0 |
| | OTHER | Other | * | * | 1898 | 0.0 |
Sketch
Property Image
Land
| 1 | 4203-1165L | | 0.0000 | 0.00 | 0.00 | 0.00 | 1.00 | $81,125 | $0 |
Roll Value History
| 2026 | N/A | N/A | N/A | N/A | N/A |
| 2025 | $298,937 | $81,125 | $0 | $380,062 | $145,115 |
| 2024 | $285,349 | $77,438 | $0 | $362,787 | $145,115 |
| 2023 | $271,761 | $68,750 | $0 | $340,511 | $340,511 |
| 2022 | $217,184 | $56,750 | $0 | $273,934 | $273,934 |
Deed and Sales History
| 1 | 05/09/2023 | SWD | Statutory Warranty Deed | ALICIA ALLARD | JOAN E SMITH LIVING TRUST | | | $410,000.00 | 140885 | |
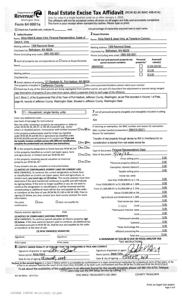
| 2 | 04/16/2022 | PRD | Personal Representatives Deed | DAVID A VOHS | ALICIA ALLARD | | | | 138938 | |
| 3 | 09/20/2012 | QCD | Quit Claim Deed | COSLER, candice sue | VOHS, david allan | 0 | 0 | $0.00 | 118080 | 0 |
| 4 | 11/08/2000 | SWD | Statutory Warranty Deed | HUBER, MIKE | VOHS, DAVID/COSLER, CANDICE | 0 | 0 | $50,000.00 | 90963 | 0 |
| 5 | 11/06/2000 | QCD | Quit Claim Deed | JOHNSON, PHILLIP/SANDRA H | HUBER, MIKE | 0 | 0 | $15,327.00 | 90962 | 0 |
| 6 | 03/08/1991 | QCD | Quit Claim Deed | HUBER, TERRI | HUBER, MIKE | 0 | 0 | $0.00 | 82641 | 0 |
Payout Agreement
| No payout information available.. |