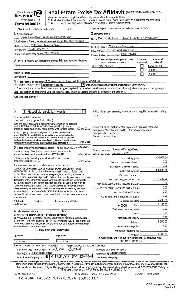
Property
Account |
| Property ID: | 39182 | Abbreviated Legal Description: | PORT HADLOCK BLK 4 LOTS 7 & 8 |
| Parcel # / Geo ID: | 989400403 | Agent Code: | |
| Type: | Real | | |
| Tax Area: | 0211 - 1-49F1E1H2L1 | Land Use Code | 12 |
| Open Space: | N | DFL | N |
| Historic Property: | N | Remodel Property: | N |
| Multi-Family Redevelopment: | N | | |
| Township: | 29N | Section: | 1 |
| Range: | 1W |
Location |
| Address: | 220 RANDOLPH ST PORT HADLOCK, WA 98339 | Mapsco: | 092/030 |
| Neighborhood: | SHOLD'S ADDITION, PORT HADLOCK | Map ID: | |
| Neighborhood CD: | 4203 |
Owner |
| Name: | RITCH CARR | Owner ID: | 39006 |
| Mailing Address: | 2034 W VALLEY RD CHIMACUM, WA 98325-9746 | % Ownership: | 100.0000000000% |
| | | Exemptions: | |
Pay Tax Due
Select the appropriate checkbox next to the year to be paid. Multiple years may be selected.
*Convenience Fee not included
Taxes and Assessment Details
Property Tax Information as of
03/10/2026
Click on "Statement Details" to expand or collapse a tax statement.
* Please enter a valid date ** Please enter a valid date *
Statement Details |
| 2026 | 28356 | STATE - STATE LEVY (SCHOOL) | $271.60 | $271.60 | $0.00 | $0.00 | $0.00 | $543.20 |
| 2026 | 28356 | COUNTY - COUNTY LEVIES (CE, DD, VET, MH) | $108.60 | $108.57 | $0.00 | $0.00 | $0.00 | $217.17 |
| 2026 | 28356 | CONSERVE - CONSERVATION FUTURES | $3.26 | $3.25 | $0.00 | $0.00 | $0.00 | $6.51 |
| 2026 | 28356 | COROADS - COUNTY ROADS (ROADS, DIV TO CE) | $87.60 | $87.59 | $0.00 | $0.00 | $0.00 | $175.19 |
| 2026 | 28356 | PORTPT - PORT DISTRICT | $43.86 | $43.84 | $0.00 | $0.00 | $0.00 | $87.70 |
| 2026 | 28356 | PUD1 - PUD #1 | $7.07 | $7.06 | $0.00 | $0.00 | $0.00 | $14.13 |
| 2026 | 28356 | LIB1 - LIBRARY DIST #1 | $33.89 | $33.89 | $0.00 | $0.00 | $0.00 | $67.78 |
| 2026 | 28356 | HD2 - HOSP DIST #2 | $6.34 | $6.33 | $0.00 | $0.00 | $0.00 | $12.67 |
| 2026 | 28356 | SD49 - SCHOOL DIST #49 | $149.51 | $149.49 | $0.00 | $0.00 | $0.00 | $299.00 |
| 2026 | 28356 | FD1 - FIRE DISTRICT #1 | $143.79 | $143.79 | $0.00 | $0.00 | $0.00 | $287.58 |
| 2026 | 28356 | EMS1 - FIRE DIST #1 EMS | $55.29 | $55.28 | $0.00 | $0.00 | $0.00 | $110.57 |
| 2026 | 28356 | JCCD - JC Conservation District | $2.55 | $2.55 | $0.00 | $0.00 | $0.00 | $5.10 |
| 2026 | 28356 | NWA - Noxious Weed Assessment | $2.98 | $2.97 | $0.00 | $0.00 | $0.00 | $5.95 |
| 2026 | 28356 | OSS - On Site Septic | $23.10 | $23.10 | $0.00 | $0.00 | $0.00 | $46.20 |
| 2026 | 28356 | WAT - Clean Water District | $13.00 | $13.00 | $0.00 | $0.00 | $0.00 | $26.00 |
| 2026 | 28356 | TOTAL: | $952.44 | $952.31 | $0.00 | $0.00 | $0.00 | $1904.75 |
|
| 2026 | 28356 | $952.44 | $952.31 | $0.00 | $0.00 | $0.00 | $1904.75 |
Statement Details |
| 2025 | 28428 | STATE - STATE LEVY (SCHOOL) | $270.41 | $270.41 | $0.00 | $0.00 | $540.82 | $0.00 |
| 2025 | 28428 | COUNTY - COUNTY LEVIES (CE, DD, VET, MH) | $106.34 | $106.33 | $0.00 | $0.00 | $212.67 | $0.00 |
| 2025 | 28428 | CONSERVE - CONSERVATION FUTURES | $3.19 | $3.19 | $0.00 | $0.00 | $6.38 | $0.00 |
| 2025 | 28428 | COROADS - COUNTY ROADS (ROADS, DIV TO CE) | $85.19 | $85.19 | $0.00 | $0.00 | $170.38 | $0.00 |
| 2025 | 28428 | PORTPT - PORT DISTRICT | $43.39 | $43.39 | $0.00 | $0.00 | $86.78 | $0.00 |
| 2025 | 28428 | PUD1 - PUD #1 | $6.96 | $6.96 | $0.00 | $0.00 | $13.92 | $0.00 |
| 2025 | 28428 | LIB1 - LIBRARY DIST #1 | $32.96 | $32.96 | $0.00 | $0.00 | $65.92 | $0.00 |
| 2025 | 28428 | HD2 - HOSP DIST #2 | $6.21 | $6.20 | $0.00 | $0.00 | $12.41 | $0.00 |
| 2025 | 28428 | SD49 - SCHOOL DIST #49 | $144.93 | $144.91 | $0.00 | $0.00 | $289.84 | $0.00 |
| 2025 | 28428 | FD1 - FIRE DISTRICT #1 | $140.33 | $140.32 | $0.00 | $0.00 | $280.65 | $0.00 |
| 2025 | 28428 | EMS1 - FIRE DIST #1 EMS | $53.97 | $53.97 | $0.00 | $0.00 | $107.94 | $0.00 |
| 2025 | 28428 | JCCD - JC Conservation District | $2.55 | $2.55 | $0.00 | $0.00 | $5.10 | $0.00 |
| 2025 | 28428 | NWA - Noxious Weed Assessment | $2.15 | $2.15 | $0.00 | $0.00 | $4.30 | $0.00 |
| 2025 | 28428 | OSS - On Site Septic | $21.50 | $21.50 | $0.00 | $0.00 | $43.00 | $0.00 |
| 2025 | 28428 | WAT - Clean Water District | $13.00 | $13.00 | $0.00 | $0.00 | $26.00 | $0.00 |
| 2025 | 28428 | TOTAL: | $933.08 | $933.03 | $0.00 | $0.00 | $1866.11 | $0.00 |
|
| 2025 | 28428 | $933.08 | $933.03 | $0.00 | $0.00 | $1866.11 | $0.00 |
Statement Details |
| 2024 | 28488 | STATE - STATE LEVY (SCHOOL) | $248.47 | $248.46 | $0.00 | $0.00 | $496.93 | $0.00 |
| 2024 | 28488 | COUNTY - COUNTY LEVIES (CE, DD, VET, MH) | $106.32 | $106.32 | $0.00 | $0.00 | $212.64 | $0.00 |
| 2024 | 28488 | CONSERVE - CONSERVATION FUTURES | $3.19 | $3.19 | $0.00 | $0.00 | $6.38 | $0.00 |
| 2024 | 28488 | COROADS - COUNTY ROADS (ROADS, DIV TO CE) | $85.55 | $85.55 | $0.00 | $0.00 | $171.10 | $0.00 |
| 2024 | 28488 | PORTPT - PORT DISTRICT | $43.92 | $43.91 | $0.00 | $0.00 | $87.83 | $0.00 |
| 2024 | 28488 | PUD1 - PUD #1 | $6.99 | $6.98 | $0.00 | $0.00 | $13.97 | $0.00 |
| 2024 | 28488 | LIB1 - LIBRARY DIST #1 | $33.10 | $33.10 | $0.00 | $0.00 | $66.20 | $0.00 |
| 2024 | 28488 | HD2 - HOSP DIST #2 | $6.21 | $6.20 | $0.00 | $0.00 | $12.41 | $0.00 |
| 2024 | 28488 | SD49 - SCHOOL DIST #49 | $110.96 | $110.94 | $0.00 | $0.00 | $221.90 | $0.00 |
| 2024 | 28488 | FD1 - FIRE DISTRICT #1 | $140.58 | $140.58 | $0.00 | $0.00 | $281.16 | $0.00 |
| 2024 | 28488 | EMS1 - FIRE DIST #1 EMS | $53.70 | $53.69 | $0.00 | $0.00 | $107.39 | $0.00 |
| 2024 | 28488 | JCCD - JC Conservation District | $2.55 | $2.55 | $0.00 | $0.00 | $5.10 | $0.00 |
| 2024 | 28488 | NWA - Noxious Weed Assessment | $2.15 | $2.15 | $0.00 | $0.00 | $4.30 | $0.00 |
| 2024 | 28488 | OSS - On Site Septic | $21.00 | $21.00 | $0.00 | $0.00 | $42.00 | $0.00 |
| 2024 | 28488 | WAT - Clean Water District | $12.50 | $12.50 | $0.00 | $0.00 | $25.00 | $0.00 |
| 2024 | 28488 | TOTAL: | $877.19 | $877.12 | $0.00 | $0.00 | $1754.31 | $0.00 |
|
| 2024 | 28488 | $877.19 | $877.12 | $0.00 | $0.00 | $1754.31 | $0.00 |
Statement Details |
| 2023 | 28530 | STATE - STATE LEVY (SCHOOL) | $227.33 | $227.33 | $0.00 | $0.00 | $454.66 | $0.00 |
| 2023 | 28530 | COUNTY - COUNTY LEVIES (CE, DD, VET, MH) | $99.21 | $99.19 | $0.00 | $0.00 | $198.40 | $0.00 |
| 2023 | 28530 | CONSERVE - CONSERVATION FUTURES | $2.98 | $2.97 | $0.00 | $0.00 | $5.95 | $0.00 |
| 2023 | 28530 | COROADS - COUNTY ROADS (ROADS, DIV TO CE) | $80.27 | $80.25 | $0.00 | $0.00 | $160.52 | $0.00 |
| 2023 | 28530 | PORTPT - PORT DISTRICT | $41.79 | $41.79 | $0.00 | $0.00 | $83.58 | $0.00 |
| 2023 | 28530 | PUD1 - PUD #1 | $6.58 | $6.57 | $0.00 | $0.00 | $13.15 | $0.00 |
| 2023 | 28530 | LIB1 - LIBRARY DIST #1 | $31.05 | $31.05 | $0.00 | $0.00 | $62.10 | $0.00 |
| 2023 | 28530 | HD2 - HOSP DIST #2 | $5.79 | $5.79 | $0.00 | $0.00 | $11.58 | $0.00 |
| 2023 | 28530 | SD49 - SCHOOL DIST #49 | $106.27 | $106.26 | $0.00 | $0.00 | $212.53 | $0.00 |
| 2023 | 28530 | FD1 - FIRE DISTRICT #1 | $81.72 | $81.72 | $0.00 | $0.00 | $163.44 | $0.00 |
| 2023 | 28530 | EMS1 - FIRE DIST #1 EMS | $34.76 | $34.76 | $0.00 | $0.00 | $69.52 | $0.00 |
| 2023 | 28530 | JCCD - JC Conservation District | $2.55 | $2.55 | $0.00 | $0.00 | $5.10 | $0.00 |
| 2023 | 28530 | NWA - Noxious Weed Assessment | $2.15 | $2.15 | $0.00 | $0.00 | $4.30 | $0.00 |
| 2023 | 28530 | OSS - On Site Septic | $20.50 | $20.50 | $0.00 | $0.00 | $41.00 | $0.00 |
| 2023 | 28530 | WAT - Clean Water District | $12.00 | $12.00 | $0.00 | $0.00 | $24.00 | $0.00 |
| 2023 | 28530 | TOTAL: | $754.95 | $754.88 | $0.00 | $0.00 | $1509.83 | $0.00 |
|
| 2023 | 28530 | $754.95 | $754.88 | $0.00 | $0.00 | $1509.83 | $0.00 |
Values
| (+) Improvement Homesite Value: | + | $0 | |
| (+) Improvement Non-Homesite Value: | + | $142,766 | |
| (+) Land Homesite Value: | + | $0 | |
| (+) Land Non-Homesite Value: | + | $93,500 | |
| (+) Curr Use (HS): | + | $0 | $0 |
| (+) Curr Use (NHS): | + | $0 | $0 |
| | | -------------------------- | |
| (=) Market Value: | = | $236,266 | |
| (–) Productivity Loss: | – | $0 | |
| | | -------------------------- | |
| (=) Subtotal: | = | $236,266 | |
| (+) Senior Appraised Value: | + | $0 | |
| (+) Non-Senior Appraised Value: | + | $236,266 | |
| | | -------------------------- | |
| (=) Total Appraised Value: | = | $236,266 | |
| (–) Senior Exemption Loss: | – | $0 | |
| (–) Exemption Loss: | – | $0 | |
| | | -------------------------- | |
| (=) Taxable Value: | = | $236,266 | |
Taxing Jurisdiction
| Owner: | RITCH CARR | | |
| % Ownership: | 100.0000000000% | | |
| Total Value: | $236,266 | | |
| Tax Area: | 0211 - 1-49F1E1H2L1 |
| CE | COUNTY CURRENT EXPENSE | 0.9034619479 | $236,266 | $236,266 | $213.46 | | |
| CNTYDD | DEVELOPMENTAL DISABILITIES | 0.0052121823 | $236,266 | $236,266 | $1.23 | | |
| CNTYVET | VETERANS RELIEF | 0.0052777810 | $236,266 | $236,266 | $1.25 | | |
| MENTAL | MENTAL HEALTH | 0.0052121823 | $236,266 | $236,266 | $1.23 | | |
| ROADS | COUNTY ROADS | 0.7415066410 | $236,266 | $236,266 | $175.19 | | |
| ROADSCU | COUNTY ROADS TO CUR EXP | 0.0000000000 | $236,266 | $236,266 | $0.00 | | |
| HOSP2CASH | HOSP DIST #2 GENERAL | 0.0536075306 | $236,266 | $236,266 | $12.67 | | |
| SCH49CP | SCHOOL DIST #49 CAP PROJ | 0.6279093905 | $236,266 | $236,266 | $148.35 | | |
| SCH49MO | SCHOOL DIST #49 EP & O | 0.6376483602 | $236,266 | $236,266 | $150.65 | | |
| CONSERVE | CONSERVATION FUTURES | 0.0275621078 | $236,266 | $236,266 | $6.51 | | |
| EMS1 | FIRE DIST #1 EMS | 0.4679948282 | $236,266 | $236,266 | $110.57 | | |
| FD1 | FIRE DIST #1 GENERAL | 1.2171942929 | $236,266 | $236,266 | $287.58 | | |
| LIB1 | LIBRARY DIST #1 GENERAL | 0.2868827388 | $236,266 | $236,266 | $67.78 | | |
| PORTPT | PORT OF PT GENERAL | 0.1134941229 | $236,266 | $236,266 | $26.81 | | |
| PORTPTIDD | PORT OF PT IDD 2019 | 0.2577346692 | $236,266 | $236,266 | $60.89 | | |
| PUD1 | PUD #1 GENERAL | 0.0597888892 | $236,266 | $236,266 | $14.13 | | |
| STATE | STATE SCHOOL PART 1 | 1.4940692947 | $236,266 | $236,266 | $353.00 | | |
| STATE2 | STATE SCHOOL PART 2 | 0.8050170049 | $236,266 | $236,266 | $190.20 | | |
| | Total Tax Rate: | 7.7095739644 | | | | | |
| | | | | Taxes w/Current Exemptions: | $1,821.50 | | |
| | | | | Taxes w/o Exemptions: | $1,821.50 | | |
Improvement / Building
| Improvement #1: | Residential Bldg | State Code: | 12 | 1884.0 sqft | Value: | $142,766 |
| Bathrooms (#): | 1 (FULL) | Bedrooms (#): | 2 | | Exterior Wall: | PL/T1 | Fireplace: | SIN 1-AVG | | Floor Construction: | FRAME | Foundation: | CONPR | | Heating/Cooling: | ELBB | Interior Finish: | FIN | | Roof Cover: | METAL |   |   |
|
| | Type | Description | Class CD | Sub Class CD | Year Built | Area |
| | MA | Main Area | 3- | D1S | 1976 | 1884.0 |
| | PATIO | House Patio | 3 | * | 1976 | 288.0 |
| | DATT | Duplex Attached Garage | 2 | D1S | 1976 | 700.0 |
Sketch
Property Image
Land
| 1 | 4203-1283S | | 0.0000 | 0.00 | 0.00 | 0.00 | 1.00 | $60,500 | $0 |
| 2 | 9808 | | 0.0000 | 0.00 | 0.00 | 0.00 | 1.00 | $33,000 | $0 |
Roll Value History
| 2026 | N/A | N/A | N/A | N/A | N/A |
| 2025 | $142,766 | $93,500 | $0 | $236,266 | $236,266 |
| 2024 | $136,276 | $89,250 | $0 | $225,526 | $225,526 |
| 2023 | $129,787 | $85,000 | $0 | $214,787 | $214,787 |
| 2022 | $118,129 | $75,000 | $0 | $193,129 | $193,129 |
Deed and Sales History
| 1 | 12/04/2025 | SWD | Statutory Warranty Deed | RICHARD A BRODERS | RITCH CARR | | | | 145491 | |
| 2 | 03/02/2003 | QCD | Quit Claim Deed | BRODERS, CHARLES D & MARI | BRODERS, RICHARD A | 0 | 0 | $0.00 | 96890 | 0 |
| 3 | 02/11/2002 | QCD | Quit Claim Deed | BRODERS, CHARLES D/MARIE | BRODERS, RICHARD A | 0 | 0 | $0.00 | 93987 | 0 |
| 4 | 01/26/2001 | QCD | Quit Claim Deed | BRODERS, CHARLES D/MARIE | BRODERS, RICHARD A | 0 | 0 | $0.00 | 91567 | 0 |
| 5 | 09/18/2000 | QCD | Quit Claim Deed | BRODERS, CHARLES D/MARIE | BRODERS, RICHARD A | 0 | 0 | $0.00 | 90613 | 0 |
Payout Agreement
| No payout information available.. |