Property
Account |
| Property ID: | 39184 | Abbreviated Legal Description: | PORT HADLOCK BLK 4 LOT 11 |
| Parcel # / Geo ID: | 989400405 | Agent Code: | |
| Type: | Real | | |
| Tax Area: | 0211 - 1-49F1E1H2L1 | Land Use Code | 50 |
| Open Space: | N | DFL | N |
| Historic Property: | N | Remodel Property: | N |
| Multi-Family Redevelopment: | N | | |
| Township: | 29N | Section: | 2 |
| Range: | 1W |
Location |
| Address: | 1821 IRONDALE RD PORT HADLOCK, WA 98339 | Mapsco: | 092/032 |
| Neighborhood: | HADLOCK COMMERCIAL CENTER | Map ID: | |
| Neighborhood CD: | 4210C |
Owner |
| Name: | MARLA ALTHOUSE | Owner ID: | 101063 |
| Mailing Address: | PO BOX 732 POULSBO, WA 98370-0732 | % Ownership: | 100.0000000000% |
| | | Exemptions: | |
Pay Tax Due
There is currently No Amount Due on this property.
Taxes and Assessment Details
Property Tax Information as of
03/12/2026
Click on "Statement Details" to expand or collapse a tax statement.
* Please enter a valid date ** Please enter a valid date *
Statement Details |
| | TOTAL: | $0.00 | $0.00 | $0.00 | $0.00 | $0.00 | $0.00 |
|
| | $0.00 | $0.00 | $0.00 | $0.00 | $0.00 | $0.00 |
Values
| (+) Improvement Homesite Value: | + | $0 | |
| (+) Improvement Non-Homesite Value: | + | $194,856 | |
| (+) Land Homesite Value: | + | $0 | |
| (+) Land Non-Homesite Value: | + | $67,500 | |
| (+) Curr Use (HS): | + | $0 | $0 |
| (+) Curr Use (NHS): | + | $0 | $0 |
| | | -------------------------- | |
| (=) Market Value: | = | $262,356 | |
| (–) Productivity Loss: | – | $0 | |
| | | -------------------------- | |
| (=) Subtotal: | = | $262,356 | |
| (+) Senior Appraised Value: | + | $0 | |
| (+) Non-Senior Appraised Value: | + | $262,356 | |
| | | -------------------------- | |
| (=) Total Appraised Value: | = | $262,356 | |
| (–) Senior Exemption Loss: | – | $0 | |
| (–) Exemption Loss: | – | $0 | |
| | | -------------------------- | |
| (=) Taxable Value: | = | $262,356 | |
Taxing Jurisdiction
| Owner: | MARLA ALTHOUSE | | |
| % Ownership: | 100.0000000000% | | |
| Total Value: | N/A | | |
| Tax Area: | 0211 - 1-49F1E1H2L1 |
| CE | COUNTY CURRENT EXPENSE | N/A | N/A | N/A | N/A | | |
| CNTYDD | DEVELOPMENTAL DISABILITIES | N/A | N/A | N/A | N/A | | |
| CNTYVET | VETERANS RELIEF | N/A | N/A | N/A | N/A | | |
| MENTAL | MENTAL HEALTH | N/A | N/A | N/A | N/A | | |
| ROADS | COUNTY ROADS | N/A | N/A | N/A | N/A | | |
| HOSP2CASH | HOSP DIST #2 GENERAL | N/A | N/A | N/A | N/A | | |
| SCH49CP | SCHOOL DIST #49 CAP PROJ | N/A | N/A | N/A | N/A | | |
| SCH49MO | SCHOOL DIST #49 EP & O | N/A | N/A | N/A | N/A | | |
| CONSERVE | CONSERVATION FUTURES | N/A | N/A | N/A | N/A | | |
| EMS1 | FIRE DIST #1 EMS | N/A | N/A | N/A | N/A | | |
| FD1 | FIRE DIST #1 GENERAL | N/A | N/A | N/A | N/A | | |
| LIB1 | LIBRARY DIST #1 GENERAL | N/A | N/A | N/A | N/A | | |
| PORTPT | PORT OF PT GENERAL | N/A | N/A | N/A | N/A | | |
| PORTPTIDD | PORT OF PT IDD 2019 | N/A | N/A | N/A | N/A | | |
| PUD1 | PUD #1 GENERAL | N/A | N/A | N/A | N/A | | |
| STATE | STATE SCHOOL PART 1 | N/A | N/A | N/A | N/A | | |
| STATE2 | STATE SCHOOL PART 2 | N/A | N/A | N/A | N/A | | |
| | Total Tax Rate: | N/A | | | | | |
| | | | | Taxes w/Current Exemptions: | N/A | | |
| | | | | Taxes w/o Exemptions: | N/A | | |
Improvement / Building
| Improvement #1: | Residential Bldg | State Code: | 50 | 1321.0 sqft | Value: | $194,856 |
| Bathrooms (#): | 1 (FULL) | Exterior Wall: | SI/ST | | Floor Construction: | FRAME | Foundation: | PO&BL | | Heating/Cooling: | ELBB | Inside Verify: | YES-FIX | | Interior Finish: | FIN | Roof Cover: | COMP |
|
| | Type | Description | Class CD | Sub Class CD | Year Built | Area |
| | MA | Main Area | 3+ | 1S | 1925 | 1321.0 |
| | HWPOR | House Wood Porch | 3 | * | 1925 | 35.0 |
| | HCPOR | House Concrete Porch | 3 | * | 1925 | 72.0 |
| | HENCL | House Enclosure | 3 | * | 1925 | 50.0 |
| | GDET | Detached Garage | 3 | 1S | 1925 | 880.0 |
| | ADDN | Addition (Table Not Dep) | 1 | * | 1925 | 880.0 |
Sketch
Property Image
Land
| 1 | 4203-6173L | Commercial Zoned Lots W/Irondale Rd Frtg | 0.0000 | 0.00 | 0.00 | 0.00 | 1.00 | $67,500 | $0 |
Roll Value History
| 2026 | N/A | N/A | N/A | N/A | N/A |
| 2025 | $194,856 | $67,500 | $0 | $262,356 | $262,356 |
| 2024 | $194,856 | $67,500 | $0 | $262,356 | $262,356 |
| 2023 | $194,856 | $62,500 | $0 | $257,356 | $257,356 |
| 2022 | $159,073 | $57,500 | $0 | $216,573 | $216,573 |
Deed and Sales History
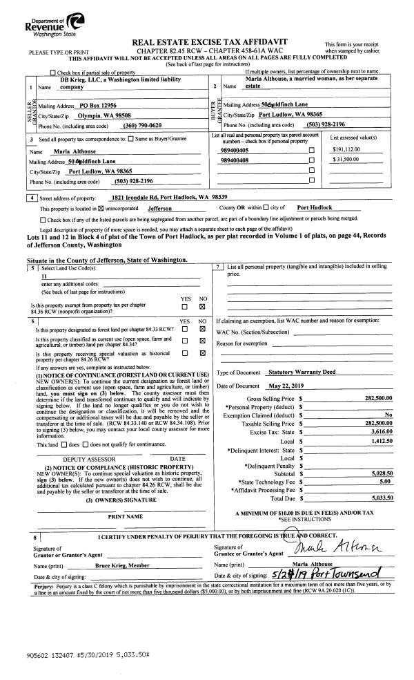
| 1 | 05/22/2019 | QCD | Quit Claim Deed | | | | | | 132408 | |
| 2 | 05/22/2019 | SWD | Statutory Warranty Deed | DB KRIEG LLC | MARLA ALTHOUSE | | | $282,500.00 | 132407 | |
|   | |
| 3 | 09/06/2012 | QCD | Quit Claim Deed | KRIEG, DIXIE LYNN, KRIEG, | DB KRIEG, LLC | 0 | 0 | $0.00 | 118072 | 0 |
| 4 | 04/19/1994 | TRED | Trustee Deed | GRIFFITH, MARY B | GRIFFITH, MARY B/TRUST | 0 | 0 | $0.00 | 73903 | 0 |
| 5 | 01/21/1992 | QCD | Quit Claim Deed | GRIFFITH, MARY B | GRIFFITH, MARY B/EDMUND | 0 | 0 | $0.00 | 67577 | 0 |
Payout Agreement
| No payout information available.. |