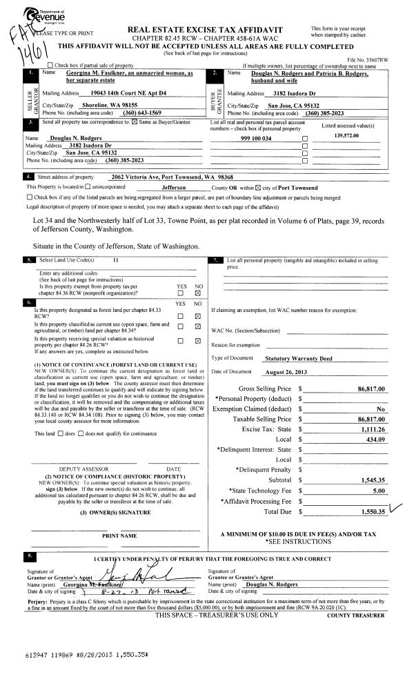
Property
Account |
| Property ID: | 39198 | Abbreviated Legal Description: | PORT HADLOCK BLK 6, LOTS 7(LS S12' OF E50'), 8(ALL) LESS TAX 48, 49 & 50 BND BY BLA #92845 |
| Parcel # / Geo ID: | 989400602 | Agent Code: | |
| Type: | Real | | |
| Tax Area: | 0211 - 1-49F1E1H2L1 | Land Use Code | 50 |
| Open Space: | N | DFL | N |
| Historic Property: | N | Remodel Property: | N |
| Multi-Family Redevelopment: | N | | |
| Township: | 29N | Section: | 1 |
| Range: | 1W |
Location |
| Address: | 81 N WATER ST PORT HADLOCK, WA 98339 | Mapsco: | 092/046 |
| Neighborhood: | LOWER HADLOCK COMMERCIAL AREA | Map ID: | |
| Neighborhood CD: | 4203C |
Owner |
| Name: | HOKULELE LLC | Owner ID: | 98063 |
| Mailing Address: | PO BOX 549 PORT HADLOCK, WA 98339-0549 | % Ownership: | 100.0000000000% |
| | | Exemptions: | |
Pay Tax Due
Select the appropriate checkbox next to the year to be paid. Multiple years may be selected.
*Convenience Fee not included
Taxes and Assessment Details
Property Tax Information as of
03/12/2026
Click on "Statement Details" to expand or collapse a tax statement.
* Please enter a valid date ** Please enter a valid date *
Statement Details |
| 2026 | 28372 | STATE - STATE LEVY (SCHOOL) | $217.25 | $217.23 | $0.00 | $0.00 | $0.00 | $434.48 |
| 2026 | 28372 | COUNTY - COUNTY LEVIES (CE, DD, VET, MH) | $86.85 | $86.84 | $0.00 | $0.00 | $0.00 | $173.69 |
| 2026 | 28372 | CONSERVE - CONSERVATION FUTURES | $2.61 | $2.60 | $0.00 | $0.00 | $0.00 | $5.21 |
| 2026 | 28372 | COROADS - COUNTY ROADS (ROADS, DIV TO CE) | $70.07 | $70.06 | $0.00 | $0.00 | $0.00 | $140.13 |
| 2026 | 28372 | PORTPT - PORT DISTRICT | $35.09 | $35.07 | $0.00 | $0.00 | $0.00 | $70.16 |
| 2026 | 28372 | PUD1 - PUD #1 | $5.65 | $5.65 | $0.00 | $0.00 | $0.00 | $11.30 |
| 2026 | 28372 | LIB1 - LIBRARY DIST #1 | $27.11 | $27.10 | $0.00 | $0.00 | $0.00 | $54.21 |
| 2026 | 28372 | HD2 - HOSP DIST #2 | $5.07 | $5.06 | $0.00 | $0.00 | $0.00 | $10.13 |
| 2026 | 28372 | SD49 - SCHOOL DIST #49 | $119.58 | $119.58 | $0.00 | $0.00 | $0.00 | $239.16 |
| 2026 | 28372 | FD1 - FIRE DISTRICT #1 | $115.01 | $115.01 | $0.00 | $0.00 | $0.00 | $230.02 |
| 2026 | 28372 | EMS1 - FIRE DIST #1 EMS | $44.22 | $44.22 | $0.00 | $0.00 | $0.00 | $88.44 |
| 2026 | 28372 | JCCD - JC Conservation District | $2.53 | $2.53 | $0.00 | $0.00 | $0.00 | $5.06 |
| 2026 | 28372 | NWA - Noxious Weed Assessment | $2.98 | $2.97 | $0.00 | $0.00 | $0.00 | $5.95 |
| 2026 | 28372 | OSS - On Site Septic | $23.10 | $23.10 | $0.00 | $0.00 | $0.00 | $46.20 |
| 2026 | 28372 | WAT - Clean Water District | $13.00 | $13.00 | $0.00 | $0.00 | $0.00 | $26.00 |
| 2026 | 28372 | TOTAL: | $770.12 | $770.02 | $0.00 | $0.00 | $0.00 | $1540.14 |
|
| 2026 | 28372 | $770.12 | $770.02 | $0.00 | $0.00 | $0.00 | $1540.14 |
Statement Details |
| 2025 | 28444 | STATE - STATE LEVY (SCHOOL) | $226.60 | $226.58 | $0.00 | $0.00 | $453.18 | $0.00 |
| 2025 | 28444 | COUNTY - COUNTY LEVIES (CE, DD, VET, MH) | $89.12 | $89.09 | $0.00 | $0.00 | $178.21 | $0.00 |
| 2025 | 28444 | CONSERVE - CONSERVATION FUTURES | $2.67 | $2.67 | $0.00 | $0.00 | $5.34 | $0.00 |
| 2025 | 28444 | COROADS - COUNTY ROADS (ROADS, DIV TO CE) | $71.39 | $71.39 | $0.00 | $0.00 | $142.78 | $0.00 |
| 2025 | 28444 | PORTPT - PORT DISTRICT | $36.36 | $36.35 | $0.00 | $0.00 | $72.71 | $0.00 |
| 2025 | 28444 | PUD1 - PUD #1 | $5.83 | $5.83 | $0.00 | $0.00 | $11.66 | $0.00 |
| 2025 | 28444 | LIB1 - LIBRARY DIST #1 | $27.62 | $27.62 | $0.00 | $0.00 | $55.24 | $0.00 |
| 2025 | 28444 | HD2 - HOSP DIST #2 | $5.20 | $5.20 | $0.00 | $0.00 | $10.40 | $0.00 |
| 2025 | 28444 | SD49 - SCHOOL DIST #49 | $121.44 | $121.43 | $0.00 | $0.00 | $242.87 | $0.00 |
| 2025 | 28444 | FD1 - FIRE DISTRICT #1 | $117.58 | $117.58 | $0.00 | $0.00 | $235.16 | $0.00 |
| 2025 | 28444 | EMS1 - FIRE DIST #1 EMS | $45.23 | $45.22 | $0.00 | $0.00 | $90.45 | $0.00 |
| 2025 | 28444 | JCCD - JC Conservation District | $2.53 | $2.53 | $0.00 | $0.00 | $5.06 | $0.00 |
| 2025 | 28444 | NWA - Noxious Weed Assessment | $2.15 | $2.15 | $0.00 | $0.00 | $4.30 | $0.00 |
| 2025 | 28444 | OSS - On Site Septic | $21.50 | $21.50 | $0.00 | $0.00 | $43.00 | $0.00 |
| 2025 | 28444 | WAT - Clean Water District | $13.00 | $13.00 | $0.00 | $0.00 | $26.00 | $0.00 |
| 2025 | 28444 | TOTAL: | $788.22 | $788.14 | $0.00 | $0.00 | $1576.36 | $0.00 |
|
| 2025 | 28444 | $788.22 | $788.14 | $0.00 | $0.00 | $1576.36 | $0.00 |
Statement Details |
| 2024 | 28504 | STATE - STATE LEVY (SCHOOL) | $212.83 | $212.82 | $0.00 | $0.00 | $425.65 | $0.00 |
| 2024 | 28504 | COUNTY - COUNTY LEVIES (CE, DD, VET, MH) | $91.08 | $91.06 | $0.00 | $0.00 | $182.14 | $0.00 |
| 2024 | 28504 | CONSERVE - CONSERVATION FUTURES | $2.73 | $2.73 | $0.00 | $0.00 | $5.46 | $0.00 |
| 2024 | 28504 | COROADS - COUNTY ROADS (ROADS, DIV TO CE) | $73.29 | $73.27 | $0.00 | $0.00 | $146.56 | $0.00 |
| 2024 | 28504 | PORTPT - PORT DISTRICT | $37.62 | $37.61 | $0.00 | $0.00 | $75.23 | $0.00 |
| 2024 | 28504 | PUD1 - PUD #1 | $5.98 | $5.98 | $0.00 | $0.00 | $11.96 | $0.00 |
| 2024 | 28504 | LIB1 - LIBRARY DIST #1 | $28.35 | $28.35 | $0.00 | $0.00 | $56.70 | $0.00 |
| 2024 | 28504 | HD2 - HOSP DIST #2 | $5.32 | $5.31 | $0.00 | $0.00 | $10.63 | $0.00 |
| 2024 | 28504 | SD49 - SCHOOL DIST #49 | $95.05 | $95.03 | $0.00 | $0.00 | $190.08 | $0.00 |
| 2024 | 28504 | FD1 - FIRE DISTRICT #1 | $120.42 | $120.41 | $0.00 | $0.00 | $240.83 | $0.00 |
| 2024 | 28504 | EMS1 - FIRE DIST #1 EMS | $46.00 | $45.99 | $0.00 | $0.00 | $91.99 | $0.00 |
| 2024 | 28504 | JCCD - JC Conservation District | $2.53 | $2.53 | $0.00 | $0.00 | $5.06 | $0.00 |
| 2024 | 28504 | NWA - Noxious Weed Assessment | $2.15 | $2.15 | $0.00 | $0.00 | $4.30 | $0.00 |
| 2024 | 28504 | OSS - On Site Septic | $21.00 | $21.00 | $0.00 | $0.00 | $42.00 | $0.00 |
| 2024 | 28504 | WAT - Clean Water District | $12.50 | $12.50 | $0.00 | $0.00 | $25.00 | $0.00 |
| 2024 | 28504 | TOTAL: | $756.85 | $756.74 | $0.00 | $0.00 | $1513.59 | $0.00 |
|
| 2024 | 28504 | $756.85 | $756.74 | $0.00 | $0.00 | $1513.59 | $0.00 |
Statement Details |
| 2023 | 28546 | STATE - STATE LEVY (SCHOOL) | $191.15 | $191.14 | $0.00 | $0.00 | $382.29 | $0.00 |
| 2023 | 28546 | COUNTY - COUNTY LEVIES (CE, DD, VET, MH) | $83.43 | $83.40 | $0.00 | $0.00 | $166.83 | $0.00 |
| 2023 | 28546 | CONSERVE - CONSERVATION FUTURES | $2.50 | $2.50 | $0.00 | $0.00 | $5.00 | $0.00 |
| 2023 | 28546 | COROADS - COUNTY ROADS (ROADS, DIV TO CE) | $67.49 | $67.48 | $0.00 | $0.00 | $134.97 | $0.00 |
| 2023 | 28546 | PORTPT - PORT DISTRICT | $35.14 | $35.14 | $0.00 | $0.00 | $70.28 | $0.00 |
| 2023 | 28546 | PUD1 - PUD #1 | $5.53 | $5.53 | $0.00 | $0.00 | $11.06 | $0.00 |
| 2023 | 28546 | LIB1 - LIBRARY DIST #1 | $26.11 | $26.11 | $0.00 | $0.00 | $52.22 | $0.00 |
| 2023 | 28546 | HD2 - HOSP DIST #2 | $4.88 | $4.86 | $0.00 | $0.00 | $9.74 | $0.00 |
| 2023 | 28546 | SD49 - SCHOOL DIST #49 | $89.36 | $89.35 | $0.00 | $0.00 | $178.71 | $0.00 |
| 2023 | 28546 | FD1 - FIRE DISTRICT #1 | $68.72 | $68.71 | $0.00 | $0.00 | $137.43 | $0.00 |
| 2023 | 28546 | EMS1 - FIRE DIST #1 EMS | $29.23 | $29.23 | $0.00 | $0.00 | $58.46 | $0.00 |
| 2023 | 28546 | JCCD - JC Conservation District | $2.53 | $2.53 | $0.00 | $0.00 | $5.06 | $0.00 |
| 2023 | 28546 | NWA - Noxious Weed Assessment | $2.15 | $2.15 | $0.00 | $0.00 | $4.30 | $0.00 |
| 2023 | 28546 | OSS - On Site Septic | $20.50 | $20.50 | $0.00 | $0.00 | $41.00 | $0.00 |
| 2023 | 28546 | WAT - Clean Water District | $12.00 | $12.00 | $0.00 | $0.00 | $24.00 | $0.00 |
| 2023 | 28546 | TOTAL: | $640.72 | $640.63 | $0.00 | $0.00 | $1281.35 | $0.00 |
|
| 2023 | 28546 | $640.72 | $640.63 | $0.00 | $0.00 | $1281.35 | $0.00 |
Values
| (+) Improvement Homesite Value: | + | $0 | |
| (+) Improvement Non-Homesite Value: | + | $71,354 | |
| (+) Land Homesite Value: | + | $0 | |
| (+) Land Non-Homesite Value: | + | $117,624 | |
| (+) Curr Use (HS): | + | $0 | $0 |
| (+) Curr Use (NHS): | + | $0 | $0 |
| | | -------------------------- | |
| (=) Market Value: | = | $188,978 | |
| (–) Productivity Loss: | – | $0 | |
| | | -------------------------- | |
| (=) Subtotal: | = | $188,978 | |
| (+) Senior Appraised Value: | + | $0 | |
| (+) Non-Senior Appraised Value: | + | $188,978 | |
| | | -------------------------- | |
| (=) Total Appraised Value: | = | $188,978 | |
| (–) Senior Exemption Loss: | – | $0 | |
| (–) Exemption Loss: | – | $0 | |
| | | -------------------------- | |
| (=) Taxable Value: | = | $188,978 | |
Taxing Jurisdiction
| Owner: | HOKULELE LLC | | |
| % Ownership: | 100.0000000000% | | |
| Total Value: | $188,978 | | |
| Tax Area: | 0211 - 1-49F1E1H2L1 |
| CE | COUNTY CURRENT EXPENSE | 0.9034619479 | $188,978 | $188,978 | $170.73 | | |
| CNTYDD | DEVELOPMENTAL DISABILITIES | 0.0052121823 | $188,978 | $188,978 | $0.98 | | |
| CNTYVET | VETERANS RELIEF | 0.0052777810 | $188,978 | $188,978 | $1.00 | | |
| MENTAL | MENTAL HEALTH | 0.0052121823 | $188,978 | $188,978 | $0.98 | | |
| ROADS | COUNTY ROADS | 0.7415066410 | $188,978 | $188,978 | $140.13 | | |
| ROADSCU | COUNTY ROADS TO CUR EXP | 0.0000000000 | $188,978 | $188,978 | $0.00 | | |
| HOSP2CASH | HOSP DIST #2 GENERAL | 0.0536075306 | $188,978 | $188,978 | $10.13 | | |
| SCH49CP | SCHOOL DIST #49 CAP PROJ | 0.6279093905 | $188,978 | $188,978 | $118.66 | | |
| SCH49MO | SCHOOL DIST #49 EP & O | 0.6376483602 | $188,978 | $188,978 | $120.50 | | |
| CONSERVE | CONSERVATION FUTURES | 0.0275621078 | $188,978 | $188,978 | $5.21 | | |
| EMS1 | FIRE DIST #1 EMS | 0.4679948282 | $188,978 | $188,978 | $88.44 | | |
| FD1 | FIRE DIST #1 GENERAL | 1.2171942929 | $188,978 | $188,978 | $230.02 | | |
| LIB1 | LIBRARY DIST #1 GENERAL | 0.2868827388 | $188,978 | $188,978 | $54.21 | | |
| PORTPT | PORT OF PT GENERAL | 0.1134941229 | $188,978 | $188,978 | $21.45 | | |
| PORTPTIDD | PORT OF PT IDD 2019 | 0.2577346692 | $188,978 | $188,978 | $48.71 | | |
| PUD1 | PUD #1 GENERAL | 0.0597888892 | $188,978 | $188,978 | $11.30 | | |
| STATE | STATE SCHOOL PART 1 | 1.4940692947 | $188,978 | $188,978 | $282.35 | | |
| STATE2 | STATE SCHOOL PART 2 | 0.8050170049 | $188,978 | $188,978 | $152.13 | | |
| | Total Tax Rate: | 7.7095739644 | | | | | |
| | | | | Taxes w/Current Exemptions: | $1,456.93 | | |
| | | | | Taxes w/o Exemptions: | $1,456.93 | | |
Improvement / Building
| Improvement #1: | Residential Bldg | State Code: | 50 | 0.0 sqft | Value: | $71,354 |
| | Type | Description | Class CD | Sub Class CD | Year Built | Area |
| | GDET | Detached Garage | 3 | * | 2000 | 1343.0 |
| | HLOFT | House Loft | 2 | * | 2000 | 427.5 |
Sketch
Property Image
Land
| 1 | 4203-6273Q | | 0.2794 | 12170.00 | 0.00 | 0.00 | 1.00 | $117,624 | $0 |
Roll Value History
| 2026 | N/A | N/A | N/A | N/A | N/A |
| 2025 | $71,354 | $117,624 | $0 | $188,978 | $188,978 |
| 2024 | $71,354 | $117,624 | $0 | $188,978 | $188,978 |
| 2023 | $71,354 | $112,624 | $0 | $183,978 | $183,978 |
| 2022 | $76,673 | $85,718 | $0 | $162,391 | $162,391 |
Deed and Sales History
| 1 | 10/02/2017 | SWD | Statutory Warranty Deed | ERIC PANZER | HOKULELE LLC | | | $1,450,000.00 | 128741 | |
|   | |
| 2 | 07/10/2017 | QCD | Quit Claim Deed | | | | | | 128118 | |
| 3 | 06/29/2017 | QCD | Quit Claim Deed | | | | | | 128119 | |
| 4 | 09/12/2013 | QCD | Quit Claim Deed | | | | | | 119964 | |
| 5 | 09/12/2013 | QCD | Quit Claim Deed | | | | | | 119965 | |
| 6 | 08/19/2013 | QCD | Quit Claim Deed | LARS A THANEM | ERIC PANZER | | | | 119810 | |
| 7 | 03/18/2013 | QCD | Quit Claim Deed | ERIC PANZER | LARS A THANEM | | | | 118935 | |
| 8 | 10/01/2012 | SWD | Statutory Warranty Deed | NEWELL, SCOTT D/KELLY MAR | PANZER, ERIC | 0 | 0 | $0.00 | 118196 | 0 |
| 9 | 10/01/2012 | QCD | Quit Claim Deed | PANZER, RACHAEL LEAH | PANZER, ERIC | 0 | 0 | $0.00 | 118197 | 0 |
| 10 | 07/16/2003 | SWD | Statutory Warranty Deed | ARTHUR, KATHLEEN L | NEWELL, SCOTT/MEGAN/ERIN | 0 | 0 | $0.00 | 98101 | 0 |
| 11 | 07/16/2003 | SWD | Statutory Warranty Deed | ARTHUR, KATHLEEN L | NEWELL, SCOTT/MEGAN/ERIN | 0 | 0 | $0.00 | 97785 | 0 |
| 12 | 08/10/2001 | BLA | Boundary Line Adjustment | ARTHUR, KATHLEEN L | ARTHUR, KATHLEEN L | 0 | 0 | $0.00 | 92845 | 0 |
Payout Agreement
| No payout information available.. |