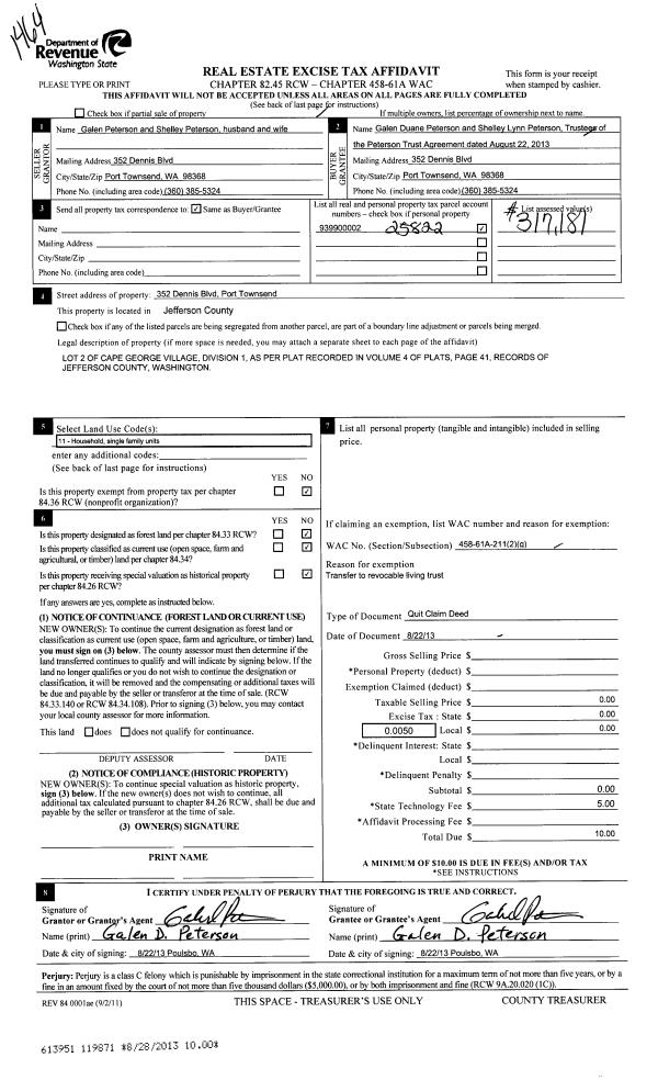
Property
Account |
| Property ID: | 39203 | Abbreviated Legal Description: | PORT HADLOCK BLK 7 LOTS 5(NW1/2),6(ALL) ENLGD BY TAX 48 T/W PTN TL TAX L FRTG BND BY BLA #92845 |
| Parcel # / Geo ID: | 989400704 | Agent Code: | |
| Type: | Real | | |
| Tax Area: | 0211 - 1-49F1E1H2L1 | Land Use Code | 55 |
| Open Space: | N | DFL | N |
| Historic Property: | N | Remodel Property: | N |
| Multi-Family Redevelopment: | N | | |
| Township: | 29N | Section: | 1 |
| Range: | 1W |
Location |
| Address: | 64 N WATER ST PORT HADLOCK, WA 98339 | Mapsco: | 092/052 |
| Neighborhood: | LOWER HADLOCK COMMERCIAL AREA | Map ID: | |
| Neighborhood CD: | 4203C |
Owner |
| Name: | HOKULELE LLC | Owner ID: | 98063 |
| Mailing Address: | PO BOX 549 PORT HADLOCK, WA 98339-0549 | % Ownership: | 100.0000000000% |
| | | Exemptions: | |
Pay Tax Due
Select the appropriate checkbox next to the year to be paid. Multiple years may be selected.
*Convenience Fee not included
Taxes and Assessment Details
Property Tax Information as of
03/12/2026
Click on "Statement Details" to expand or collapse a tax statement.
* Please enter a valid date ** Please enter a valid date *
Statement Details |
| 2026 | 28377 | STATE - STATE LEVY (SCHOOL) | $554.74 | $554.72 | $0.00 | $0.00 | $0.00 | $1109.46 |
| 2026 | 28377 | COUNTY - COUNTY LEVIES (CE, DD, VET, MH) | $221.79 | $221.78 | $0.00 | $0.00 | $0.00 | $443.57 |
| 2026 | 28377 | CONSERVE - CONSERVATION FUTURES | $6.65 | $6.65 | $0.00 | $0.00 | $0.00 | $13.30 |
| 2026 | 28377 | COROADS - COUNTY ROADS (ROADS, DIV TO CE) | $178.92 | $178.91 | $0.00 | $0.00 | $0.00 | $357.83 |
| 2026 | 28377 | PORTPT - PORT DISTRICT | $89.58 | $89.56 | $0.00 | $0.00 | $0.00 | $179.14 |
| 2026 | 28377 | PUD1 - PUD #1 | $14.43 | $14.42 | $0.00 | $0.00 | $0.00 | $28.85 |
| 2026 | 28377 | LIB1 - LIBRARY DIST #1 | $69.22 | $69.22 | $0.00 | $0.00 | $0.00 | $138.44 |
| 2026 | 28377 | HD2 - HOSP DIST #2 | $12.94 | $12.93 | $0.00 | $0.00 | $0.00 | $25.87 |
| 2026 | 28377 | SD49 - SCHOOL DIST #49 | $305.37 | $305.35 | $0.00 | $0.00 | $0.00 | $610.72 |
| 2026 | 28377 | FD1 - FIRE DISTRICT #1 | $293.69 | $293.69 | $0.00 | $0.00 | $0.00 | $587.38 |
| 2026 | 28377 | EMS1 - FIRE DIST #1 EMS | $112.92 | $112.92 | $0.00 | $0.00 | $0.00 | $225.84 |
| 2026 | 28377 | JCCD - JC Conservation District | $2.53 | $2.53 | $0.00 | $0.00 | $0.00 | $5.06 |
| 2026 | 28377 | NWA - Noxious Weed Assessment | $2.98 | $2.97 | $0.00 | $0.00 | $0.00 | $5.95 |
| 2026 | 28377 | WAT - Clean Water District | $13.00 | $13.00 | $0.00 | $0.00 | $0.00 | $26.00 |
| 2026 | 28377 | TOTAL: | $1878.76 | $1878.65 | $0.00 | $0.00 | $0.00 | $3757.41 |
|
| 2026 | 28377 | $1878.76 | $1878.65 | $0.00 | $0.00 | $0.00 | $3757.41 |
Statement Details |
| 2025 | 28449 | STATE - STATE LEVY (SCHOOL) | $578.61 | $578.60 | $0.00 | $0.00 | $1157.21 | $0.00 |
| 2025 | 28449 | COUNTY - COUNTY LEVIES (CE, DD, VET, MH) | $227.55 | $227.51 | $0.00 | $0.00 | $455.06 | $0.00 |
| 2025 | 28449 | CONSERVE - CONSERVATION FUTURES | $6.83 | $6.82 | $0.00 | $0.00 | $13.65 | $0.00 |
| 2025 | 28449 | COROADS - COUNTY ROADS (ROADS, DIV TO CE) | $182.29 | $182.28 | $0.00 | $0.00 | $364.57 | $0.00 |
| 2025 | 28449 | PORTPT - PORT DISTRICT | $92.85 | $92.84 | $0.00 | $0.00 | $185.69 | $0.00 |
| 2025 | 28449 | PUD1 - PUD #1 | $14.89 | $14.89 | $0.00 | $0.00 | $29.78 | $0.00 |
| 2025 | 28449 | LIB1 - LIBRARY DIST #1 | $70.53 | $70.52 | $0.00 | $0.00 | $141.05 | $0.00 |
| 2025 | 28449 | HD2 - HOSP DIST #2 | $13.28 | $13.27 | $0.00 | $0.00 | $26.55 | $0.00 |
| 2025 | 28449 | SD49 - SCHOOL DIST #49 | $310.10 | $310.09 | $0.00 | $0.00 | $620.19 | $0.00 |
| 2025 | 28449 | FD1 - FIRE DISTRICT #1 | $300.26 | $300.25 | $0.00 | $0.00 | $600.51 | $0.00 |
| 2025 | 28449 | EMS1 - FIRE DIST #1 EMS | $115.49 | $115.48 | $0.00 | $0.00 | $230.97 | $0.00 |
| 2025 | 28449 | JCCD - JC Conservation District | $2.53 | $2.53 | $0.00 | $0.00 | $5.06 | $0.00 |
| 2025 | 28449 | NWA - Noxious Weed Assessment | $2.15 | $2.15 | $0.00 | $0.00 | $4.30 | $0.00 |
| 2025 | 28449 | WAT - Clean Water District | $13.00 | $13.00 | $0.00 | $0.00 | $26.00 | $0.00 |
| 2025 | 28449 | TOTAL: | $1930.36 | $1930.23 | $0.00 | $0.00 | $3860.59 | $0.00 |
|
| 2025 | 28449 | $1930.36 | $1930.23 | $0.00 | $0.00 | $3860.59 | $0.00 |
Statement Details |
| 2024 | 28509 | STATE - STATE LEVY (SCHOOL) | $552.45 | $552.44 | $0.00 | $0.00 | $1104.89 | $0.00 |
| 2024 | 28509 | COUNTY - COUNTY LEVIES (CE, DD, VET, MH) | $236.41 | $236.38 | $0.00 | $0.00 | $472.79 | $0.00 |
| 2024 | 28509 | CONSERVE - CONSERVATION FUTURES | $7.09 | $7.09 | $0.00 | $0.00 | $14.18 | $0.00 |
| 2024 | 28509 | COROADS - COUNTY ROADS (ROADS, DIV TO CE) | $190.23 | $190.21 | $0.00 | $0.00 | $380.44 | $0.00 |
| 2024 | 28509 | PORTPT - PORT DISTRICT | $97.65 | $97.64 | $0.00 | $0.00 | $195.29 | $0.00 |
| 2024 | 28509 | PUD1 - PUD #1 | $15.53 | $15.53 | $0.00 | $0.00 | $31.06 | $0.00 |
| 2024 | 28509 | LIB1 - LIBRARY DIST #1 | $73.60 | $73.59 | $0.00 | $0.00 | $147.19 | $0.00 |
| 2024 | 28509 | HD2 - HOSP DIST #2 | $13.80 | $13.79 | $0.00 | $0.00 | $27.59 | $0.00 |
| 2024 | 28509 | SD49 - SCHOOL DIST #49 | $246.70 | $246.69 | $0.00 | $0.00 | $493.39 | $0.00 |
| 2024 | 28509 | FD1 - FIRE DISTRICT #1 | $312.58 | $312.57 | $0.00 | $0.00 | $625.15 | $0.00 |
| 2024 | 28509 | EMS1 - FIRE DIST #1 EMS | $119.39 | $119.39 | $0.00 | $0.00 | $238.78 | $0.00 |
| 2024 | 28509 | JCCD - JC Conservation District | $2.53 | $2.53 | $0.00 | $0.00 | $5.06 | $0.00 |
| 2024 | 28509 | NWA - Noxious Weed Assessment | $2.15 | $2.15 | $0.00 | $0.00 | $4.30 | $0.00 |
| 2024 | 28509 | WAT - Clean Water District | $12.50 | $12.50 | $0.00 | $0.00 | $25.00 | $0.00 |
| 2024 | 28509 | TOTAL: | $1882.61 | $1882.50 | $0.00 | $0.00 | $3765.11 | $0.00 |
|
| 2024 | 28509 | $1882.61 | $1882.50 | $0.00 | $0.00 | $3765.11 | $0.00 |
Statement Details |
| 2023 | 28551 | STATE - STATE LEVY (SCHOOL) | $530.10 | $530.09 | $0.00 | $0.00 | $1060.19 | $0.00 |
| 2023 | 28551 | COUNTY - COUNTY LEVIES (CE, DD, VET, MH) | $231.33 | $231.31 | $0.00 | $0.00 | $462.64 | $0.00 |
| 2023 | 28551 | CONSERVE - CONSERVATION FUTURES | $6.94 | $6.93 | $0.00 | $0.00 | $13.87 | $0.00 |
| 2023 | 28551 | COROADS - COUNTY ROADS (ROADS, DIV TO CE) | $187.16 | $187.15 | $0.00 | $0.00 | $374.31 | $0.00 |
| 2023 | 28551 | PORTPT - PORT DISTRICT | $97.44 | $97.44 | $0.00 | $0.00 | $194.88 | $0.00 |
| 2023 | 28551 | PUD1 - PUD #1 | $15.34 | $15.33 | $0.00 | $0.00 | $30.67 | $0.00 |
| 2023 | 28551 | LIB1 - LIBRARY DIST #1 | $72.41 | $72.40 | $0.00 | $0.00 | $144.81 | $0.00 |
| 2023 | 28551 | HD2 - HOSP DIST #2 | $13.50 | $13.49 | $0.00 | $0.00 | $26.99 | $0.00 |
| 2023 | 28551 | SD49 - SCHOOL DIST #49 | $247.79 | $247.79 | $0.00 | $0.00 | $495.58 | $0.00 |
| 2023 | 28551 | FD1 - FIRE DISTRICT #1 | $190.56 | $190.56 | $0.00 | $0.00 | $381.12 | $0.00 |
| 2023 | 28551 | EMS1 - FIRE DIST #1 EMS | $81.06 | $81.06 | $0.00 | $0.00 | $162.12 | $0.00 |
| 2023 | 28551 | JCCD - JC Conservation District | $2.53 | $2.53 | $0.00 | $0.00 | $5.06 | $0.00 |
| 2023 | 28551 | NWA - Noxious Weed Assessment | $2.15 | $2.15 | $0.00 | $0.00 | $4.30 | $0.00 |
| 2023 | 28551 | WAT - Clean Water District | $12.00 | $12.00 | $0.00 | $0.00 | $24.00 | $0.00 |
| 2023 | 28551 | TOTAL: | $1690.31 | $1690.23 | $0.00 | $0.00 | $3380.54 | $0.00 |
|
| 2023 | 28551 | $1690.31 | $1690.23 | $0.00 | $0.00 | $3380.54 | $0.00 |
Values
| (+) Improvement Homesite Value: | + | $0 | |
| (+) Improvement Non-Homesite Value: | + | $234,317 | |
| (+) Land Homesite Value: | + | $0 | |
| (+) Land Non-Homesite Value: | + | $248,250 | |
| (+) Curr Use (HS): | + | $0 | $0 |
| (+) Curr Use (NHS): | + | $0 | $0 |
| | | -------------------------- | |
| (=) Market Value: | = | $482,567 | |
| (–) Productivity Loss: | – | $0 | |
| | | -------------------------- | |
| (=) Subtotal: | = | $482,567 | |
| (+) Senior Appraised Value: | + | $0 | |
| (+) Non-Senior Appraised Value: | + | $482,567 | |
| | | -------------------------- | |
| (=) Total Appraised Value: | = | $482,567 | |
| (–) Senior Exemption Loss: | – | $0 | |
| (–) Exemption Loss: | – | $0 | |
| | | -------------------------- | |
| (=) Taxable Value: | = | $482,567 | |
Taxing Jurisdiction
| Owner: | HOKULELE LLC | | |
| % Ownership: | 100.0000000000% | | |
| Total Value: | N/A | | |
| Tax Area: | 0211 - 1-49F1E1H2L1 |
| CE | COUNTY CURRENT EXPENSE | N/A | N/A | N/A | N/A | | |
| CNTYDD | DEVELOPMENTAL DISABILITIES | N/A | N/A | N/A | N/A | | |
| CNTYVET | VETERANS RELIEF | N/A | N/A | N/A | N/A | | |
| MENTAL | MENTAL HEALTH | N/A | N/A | N/A | N/A | | |
| ROADS | COUNTY ROADS | N/A | N/A | N/A | N/A | | |
| HOSP2CASH | HOSP DIST #2 GENERAL | N/A | N/A | N/A | N/A | | |
| SCH49CP | SCHOOL DIST #49 CAP PROJ | N/A | N/A | N/A | N/A | | |
| SCH49MO | SCHOOL DIST #49 EP & O | N/A | N/A | N/A | N/A | | |
| CONSERVE | CONSERVATION FUTURES | N/A | N/A | N/A | N/A | | |
| EMS1 | FIRE DIST #1 EMS | N/A | N/A | N/A | N/A | | |
| FD1 | FIRE DIST #1 GENERAL | N/A | N/A | N/A | N/A | | |
| LIB1 | LIBRARY DIST #1 GENERAL | N/A | N/A | N/A | N/A | | |
| PORTPT | PORT OF PT GENERAL | N/A | N/A | N/A | N/A | | |
| PORTPTIDD | PORT OF PT IDD 2019 | N/A | N/A | N/A | N/A | | |
| PUD1 | PUD #1 GENERAL | N/A | N/A | N/A | N/A | | |
| STATE | STATE SCHOOL PART 1 | N/A | N/A | N/A | N/A | | |
| STATE2 | STATE SCHOOL PART 2 | N/A | N/A | N/A | N/A | | |
| | Total Tax Rate: | N/A | | | | | |
| | | | | Taxes w/Current Exemptions: | N/A | | |
| | | | | Taxes w/o Exemptions: | N/A | | |
Improvement / Building
| Improvement #1: | Residential Bldg | State Code: | 53 | 204.0 sqft | Value: | $234,317 |
| Exterior Wall: | SI/ST | Floor Construction: | FRAME | | Foundation: | CONPR | Interior Finish: | FIN | | Roof Cover: | METAL |   |   |
|
| | Type | Description | Class CD | Sub Class CD | Year Built | Area |
| | MA | Main Area | 4 | 1S | 2012 | 204.0 |
| | GATT | House Attached Garage | 4 | | 2012 | 765.0 |
| | CARPTN | Carport W/O Floor | 4 | | 2012 | 627.0 |
| | SHED | Shed (Table Not Dep) | 4 | | 2012 | 138.0 |
| | CARPTN | Carport W/O Floor | 4 | | 2012 | 420.0 |
| | OTHER | Other | 4 | | 2012 | 0.0 |
Sketch
Property Image
Land
| 1 | 4203-1115F | | 0.0000 | 0.00 | 0.00 | 0.00 | 0.00 | $246,000 | $0 |
| 2 | 9301F | | 0.0000 | 0.00 | 0.00 | 0.00 | 0.00 | $2,250 | $0 |
Roll Value History
| 2026 | N/A | N/A | N/A | N/A | N/A |
| 2025 | $234,317 | $248,250 | $0 | $482,567 | $482,567 |
| 2024 | $234,317 | $248,250 | $0 | $482,567 | $482,567 |
| 2023 | $234,317 | $243,250 | $0 | $477,567 | $477,567 |
| 2022 | $212,097 | $238,250 | $0 | $450,347 | $450,347 |
Deed and Sales History
| 1 | 10/02/2017 | SWD | Statutory Warranty Deed | ERIC PANZER | HOKULELE LLC | | | $1,450,000.00 | 128741 | |
|   | |
| 2 | 07/10/2017 | QCD | Quit Claim Deed | | | | | | 128118 | |
| 3 | 06/29/2017 | QCD | Quit Claim Deed | | | | | | 128119 | |
| 4 | 09/12/2013 | QCD | Quit Claim Deed | | | | | | 119964 | |
| 5 | 09/12/2013 | QCD | Quit Claim Deed | | | | | | 119965 | |
| 6 | 08/19/2013 | QCD | Quit Claim Deed | | ERIC PANZER | | | | 119810 | |
| 7 | 03/18/2013 | QCD | Quit Claim Deed | ERIC PANZER | LARS A THANEM | | | | 118935 | |
| 8 | 10/01/2012 | SWD | Statutory Warranty Deed | NEWELL, SCOTT D/KELLY MAR | PANZER, ERIC | 0 | 0 | $0.00 | 118196 | 0 |
| 9 | 10/01/2012 | QCD | Quit Claim Deed | PANZER, RACHAEL LEAH | PANZER, ERIC | 0 | 0 | $0.00 | 118197 | 0 |
| 10 | 04/29/2008 | QCD | Quit Claim Deed | NEWELL, KELLY M | NEWELL, SCOTT D | | | $0.00 | 111225 | 0 |
| 11 | 07/16/2003 | SWD | Statutory Warranty Deed | ARTHUR, KATHLEEN L | NEWELL, SCOTT/MEGAN/ERIN | 0 | 0 | $0.00 | 98101 | 0 |
| 12 | 07/16/2003 | SWD | Statutory Warranty Deed | ARTHUR, KATHLEEN L | NEWELL, SCOTT/MEGAN/ERIN | 0 | 0 | $0.00 | 97785 | 0 |
| 13 | 08/10/2001 | BLA | Boundary Line Adjustment | ARTHUR, KATHLEEN L | ARTHUR, KATHLEEN L | 0 | 0 | $0.00 | 92845 | 0 |
Payout Agreement
| No payout information available.. |