| 1 | 03/17/2025 | QCD | Quit Claim Deed | EDWARD FRANK FETTIG | OLYMPIC OHANA PROPERTIES LLC | | | | 144049 | |
| 2 | 10/12/2023 | QCD | Quit Claim Deed | EDWARD FRANK FETTIG | EDWARD FRANK FETTIG | | | | 142003 | |
| 3 | 10/12/2023 | QCD | Quit Claim Deed | EDWARD F FETTIG REVOCABLE LIVING TRUST | EDWARD FRANK FETTIG | | | | 141721 | |
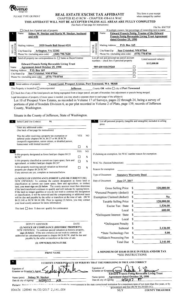
| 4 | 06/27/2017 | SWD | Statutory Warranty Deed | SIDNEY W STECKER | EDWARD F FETTIG REVOCABLE LIVING TRUST | | | $120,000.00 | 128040 | |
| 5 | 02/01/2012 | WD | Warranty Deed | WASHINGTON FEDERAL SAVING | STECKER, SIDNEY W/KARLA M | 0 | 0 | $70,000.00 | 117323 | 0 |
| 6 | 01/28/2011 | WD | Warranty Deed | BISHOP, WHITE, MARSHALL & | WASHINGTON FEDERAL SAVINGS | 0 | 0 | $0.00 | 115491 | 0 |
| 7 | 11/03/2006 | SWD | Statutory Warranty Deed | BRIETIGAM, SUSAN & CHARLE | BULICH, CECILIA | 0 | 0 | $325,000.00 | 108228 | 0 |
| 8 | 12/11/2001 | SWD | Statutory Warranty Deed | CHANG, YEW C/MARGARET M | BRIETIGAM, SUSAN C/CHARLES T | 0 | 0 | $112,500.00 | 93748 | 0 |
| 9 | 11/09/1995 | SWD | Statutory Warranty Deed | PROSPECT VIEW INC | CHANG, YEW C/MARGARET M | 0 | 0 | $85,600.00 | 78242 | 0 |