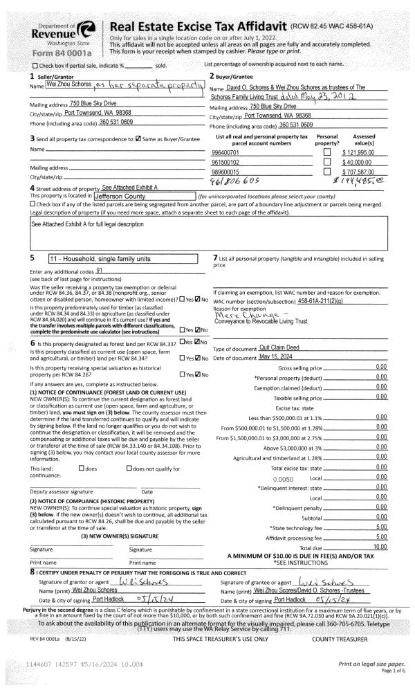
Property
Account |
| Property ID: | 39265 | Abbreviated Legal Description: | PROSPECT VIEW ESTATES LOT 15 |
| Parcel # / Geo ID: | 989600015 | Agent Code: | |
| Type: | Real | | |
| Tax Area: | 0211 - 1-49F1E1H2L1 | Land Use Code | 11 |
| Open Space: | N | DFL | N |
| Historic Property: | N | Remodel Property: | N |
| Multi-Family Redevelopment: | N | | |
| Township: | 30N | Section: | 35 |
| Range: | 1W |
Location |
| Address: | 26 N LYTER AVE PORT TOWNSEND, WA 98368 | Mapsco: | 118/015 |
| Neighborhood: | IRONDALE BLOCKS 100 - 179 (I.E. PROSPECT AVENUE AREA) | Map ID: | |
| Neighborhood CD: | 4120 |
Owner |
| Name: | SCHORES FAMILY LIVING TRUST | Owner ID: | 26787 |
| Mailing Address: | DAVID O & WEI ZHOU SCHORES TRUSTEES 750 BLUE SKY DR PORT TOWNSEND, WA 98368-9691 | % Ownership: | 100.0000000000% |
| | | Exemptions: | |
Pay Tax Due
Select the appropriate checkbox next to the year to be paid. Multiple years may be selected.
*Convenience Fee not included
Taxes and Assessment Details
Property Tax Information as of
03/09/2026
Click on "Statement Details" to expand or collapse a tax statement.
* Please enter a valid date ** Please enter a valid date *
Statement Details |
| 2026 | 28439 | STATE - STATE LEVY (SCHOOL) | $858.47 | $858.46 | $0.00 | $0.00 | $0.00 | $1716.93 |
| 2026 | 28439 | COUNTY - COUNTY LEVIES (CE, DD, VET, MH) | $343.22 | $343.19 | $0.00 | $0.00 | $0.00 | $686.41 |
| 2026 | 28439 | CONSERVE - CONSERVATION FUTURES | $10.29 | $10.29 | $0.00 | $0.00 | $0.00 | $20.58 |
| 2026 | 28439 | COROADS - COUNTY ROADS (ROADS, DIV TO CE) | $276.88 | $276.87 | $0.00 | $0.00 | $0.00 | $553.75 |
| 2026 | 28439 | PORTPT - PORT DISTRICT | $138.62 | $138.61 | $0.00 | $0.00 | $0.00 | $277.23 |
| 2026 | 28439 | PUD1 - PUD #1 | $22.33 | $22.32 | $0.00 | $0.00 | $0.00 | $44.65 |
| 2026 | 28439 | LIB1 - LIBRARY DIST #1 | $107.12 | $107.12 | $0.00 | $0.00 | $0.00 | $214.24 |
| 2026 | 28439 | HD2 - HOSP DIST #2 | $20.02 | $20.01 | $0.00 | $0.00 | $0.00 | $40.03 |
| 2026 | 28439 | SD49 - SCHOOL DIST #49 | $472.56 | $472.54 | $0.00 | $0.00 | $0.00 | $945.10 |
| 2026 | 28439 | FD1 - FIRE DISTRICT #1 | $454.49 | $454.49 | $0.00 | $0.00 | $0.00 | $908.98 |
| 2026 | 28439 | EMS1 - FIRE DIST #1 EMS | $174.75 | $174.74 | $0.00 | $0.00 | $0.00 | $349.49 |
| 2026 | 28439 | JCCD - JC Conservation District | $2.55 | $2.55 | $0.00 | $0.00 | $0.00 | $5.10 |
| 2026 | 28439 | NWA - Noxious Weed Assessment | $2.98 | $2.97 | $0.00 | $0.00 | $0.00 | $5.95 |
| 2026 | 28439 | OSS - On Site Septic | $23.10 | $23.10 | $0.00 | $0.00 | $0.00 | $46.20 |
| 2026 | 28439 | WAT - Clean Water District | $13.00 | $13.00 | $0.00 | $0.00 | $0.00 | $26.00 |
| 2026 | 28439 | TOTAL: | $2920.38 | $2920.26 | $0.00 | $0.00 | $0.00 | $5840.64 |
|
| 2026 | 28439 | $2920.38 | $2920.26 | $0.00 | $0.00 | $0.00 | $5840.64 |
Statement Details |
| 2025 | 28511 | STATE - STATE LEVY (SCHOOL) | $895.41 | $895.41 | $0.00 | $0.00 | $1790.82 | $0.00 |
| 2025 | 28511 | COUNTY - COUNTY LEVIES (CE, DD, VET, MH) | $352.11 | $352.10 | $0.00 | $0.00 | $704.21 | $0.00 |
| 2025 | 28511 | CONSERVE - CONSERVATION FUTURES | $10.56 | $10.56 | $0.00 | $0.00 | $21.12 | $0.00 |
| 2025 | 28511 | COROADS - COUNTY ROADS (ROADS, DIV TO CE) | $282.10 | $282.09 | $0.00 | $0.00 | $564.19 | $0.00 |
| 2025 | 28511 | PORTPT - PORT DISTRICT | $143.69 | $143.67 | $0.00 | $0.00 | $287.36 | $0.00 |
| 2025 | 28511 | PUD1 - PUD #1 | $23.04 | $23.04 | $0.00 | $0.00 | $46.08 | $0.00 |
| 2025 | 28511 | LIB1 - LIBRARY DIST #1 | $109.14 | $109.14 | $0.00 | $0.00 | $218.28 | $0.00 |
| 2025 | 28511 | HD2 - HOSP DIST #2 | $20.55 | $20.54 | $0.00 | $0.00 | $41.09 | $0.00 |
| 2025 | 28511 | SD49 - SCHOOL DIST #49 | $479.89 | $479.88 | $0.00 | $0.00 | $959.77 | $0.00 |
| 2025 | 28511 | FD1 - FIRE DISTRICT #1 | $464.65 | $464.65 | $0.00 | $0.00 | $929.30 | $0.00 |
| 2025 | 28511 | EMS1 - FIRE DIST #1 EMS | $178.72 | $178.72 | $0.00 | $0.00 | $357.44 | $0.00 |
| 2025 | 28511 | JCCD - JC Conservation District | $2.55 | $2.55 | $0.00 | $0.00 | $5.10 | $0.00 |
| 2025 | 28511 | NWA - Noxious Weed Assessment | $2.15 | $2.15 | $0.00 | $0.00 | $4.30 | $0.00 |
| 2025 | 28511 | OSS - On Site Septic | $21.50 | $21.50 | $0.00 | $0.00 | $43.00 | $0.00 |
| 2025 | 28511 | WAT - Clean Water District | $13.00 | $13.00 | $0.00 | $0.00 | $26.00 | $0.00 |
| 2025 | 28511 | TOTAL: | $2999.06 | $2999.00 | $0.00 | $0.00 | $5998.06 | $0.00 |
|
| 2025 | 28511 | $2999.06 | $2999.00 | $0.00 | $0.00 | $5998.06 | $0.00 |
Statement Details |
| 2024 | 28571 | STATE - STATE LEVY (SCHOOL) | $818.54 | $818.53 | $0.00 | $0.00 | $1637.07 | $0.00 |
| 2024 | 28571 | COUNTY - COUNTY LEVIES (CE, DD, VET, MH) | $350.26 | $350.26 | $0.00 | $0.00 | $700.52 | $0.00 |
| 2024 | 28571 | CONSERVE - CONSERVATION FUTURES | $10.51 | $10.50 | $0.00 | $0.00 | $21.01 | $0.00 |
| 2024 | 28571 | COROADS - COUNTY ROADS (ROADS, DIV TO CE) | $281.85 | $281.84 | $0.00 | $0.00 | $563.69 | $0.00 |
| 2024 | 28571 | PORTPT - PORT DISTRICT | $144.68 | $144.67 | $0.00 | $0.00 | $289.35 | $0.00 |
| 2024 | 28571 | PUD1 - PUD #1 | $23.01 | $23.00 | $0.00 | $0.00 | $46.01 | $0.00 |
| 2024 | 28571 | LIB1 - LIBRARY DIST #1 | $109.04 | $109.04 | $0.00 | $0.00 | $218.08 | $0.00 |
| 2024 | 28571 | HD2 - HOSP DIST #2 | $20.44 | $20.43 | $0.00 | $0.00 | $40.87 | $0.00 |
| 2024 | 28571 | SD49 - SCHOOL DIST #49 | $365.52 | $365.52 | $0.00 | $0.00 | $731.04 | $0.00 |
| 2024 | 28571 | FD1 - FIRE DISTRICT #1 | $463.13 | $463.12 | $0.00 | $0.00 | $926.25 | $0.00 |
| 2024 | 28571 | EMS1 - FIRE DIST #1 EMS | $176.90 | $176.89 | $0.00 | $0.00 | $353.79 | $0.00 |
| 2024 | 28571 | JCCD - JC Conservation District | $2.55 | $2.55 | $0.00 | $0.00 | $5.10 | $0.00 |
| 2024 | 28571 | NWA - Noxious Weed Assessment | $2.15 | $2.15 | $0.00 | $0.00 | $4.30 | $0.00 |
| 2024 | 28571 | OSS - On Site Septic | $21.00 | $21.00 | $0.00 | $0.00 | $42.00 | $0.00 |
| 2024 | 28571 | WAT - Clean Water District | $12.50 | $12.50 | $0.00 | $0.00 | $25.00 | $0.00 |
| 2024 | 28571 | TOTAL: | $2802.08 | $2802.00 | $0.00 | $0.00 | $5604.08 | $0.00 |
|
| 2024 | 28571 | $2802.08 | $2802.00 | $0.00 | $0.00 | $5604.08 | $0.00 |
Statement Details |
| 2023 | 28613 | STATE - STATE LEVY (SCHOOL) | $727.83 | $727.82 | $0.00 | $0.00 | $1455.65 | $0.00 |
| 2023 | 28613 | COUNTY - COUNTY LEVIES (CE, DD, VET, MH) | $317.62 | $317.58 | $0.00 | $0.00 | $635.20 | $0.00 |
| 2023 | 28613 | CONSERVE - CONSERVATION FUTURES | $9.53 | $9.52 | $0.00 | $0.00 | $19.05 | $0.00 |
| 2023 | 28613 | COROADS - COUNTY ROADS (ROADS, DIV TO CE) | $256.96 | $256.96 | $0.00 | $0.00 | $513.92 | $0.00 |
| 2023 | 28613 | PORTPT - PORT DISTRICT | $133.80 | $133.78 | $0.00 | $0.00 | $267.58 | $0.00 |
| 2023 | 28613 | PUD1 - PUD #1 | $21.06 | $21.05 | $0.00 | $0.00 | $42.11 | $0.00 |
| 2023 | 28613 | LIB1 - LIBRARY DIST #1 | $99.42 | $99.41 | $0.00 | $0.00 | $198.83 | $0.00 |
| 2023 | 28613 | HD2 - HOSP DIST #2 | $18.54 | $18.52 | $0.00 | $0.00 | $37.06 | $0.00 |
| 2023 | 28613 | SD49 - SCHOOL DIST #49 | $340.22 | $340.21 | $0.00 | $0.00 | $680.43 | $0.00 |
| 2023 | 28613 | FD1 - FIRE DISTRICT #1 | $261.64 | $261.64 | $0.00 | $0.00 | $523.28 | $0.00 |
| 2023 | 28613 | EMS1 - FIRE DIST #1 EMS | $111.30 | $111.29 | $0.00 | $0.00 | $222.59 | $0.00 |
| 2023 | 28613 | JCCD - JC Conservation District | $2.55 | $2.55 | $0.00 | $0.00 | $5.10 | $0.00 |
| 2023 | 28613 | NWA - Noxious Weed Assessment | $2.15 | $2.15 | $0.00 | $0.00 | $4.30 | $0.00 |
| 2023 | 28613 | OSS - On Site Septic | $20.50 | $20.50 | $0.00 | $0.00 | $41.00 | $0.00 |
| 2023 | 28613 | WAT - Clean Water District | $12.00 | $12.00 | $0.00 | $0.00 | $24.00 | $0.00 |
| 2023 | 28613 | TOTAL: | $2335.12 | $2334.98 | $0.00 | $0.00 | $4670.10 | $0.00 |
|
| 2023 | 28613 | $2335.12 | $2334.98 | $0.00 | $0.00 | $4670.10 | $0.00 |
Values
| (+) Improvement Homesite Value: | + | $0 | |
| (+) Improvement Non-Homesite Value: | + | $628,662 | |
| (+) Land Homesite Value: | + | $0 | |
| (+) Land Non-Homesite Value: | + | $118,125 | |
| (+) Curr Use (HS): | + | $0 | $0 |
| (+) Curr Use (NHS): | + | $0 | $0 |
| | | -------------------------- | |
| (=) Market Value: | = | $746,787 | |
| (–) Productivity Loss: | – | $0 | |
| | | -------------------------- | |
| (=) Subtotal: | = | $746,787 | |
| (+) Senior Appraised Value: | + | $0 | |
| (+) Non-Senior Appraised Value: | + | $746,787 | |
| | | -------------------------- | |
| (=) Total Appraised Value: | = | $746,787 | |
| (–) Senior Exemption Loss: | – | $0 | |
| (–) Exemption Loss: | – | $0 | |
| | | -------------------------- | |
| (=) Taxable Value: | = | $746,787 | |
Taxing Jurisdiction
| Owner: | SCHORES FAMILY LIVING TRUST | | |
| % Ownership: | 100.0000000000% | | |
| Total Value: | $746,787 | | |
| Tax Area: | 0211 - 1-49F1E1H2L1 |
| CE | COUNTY CURRENT EXPENSE | 0.9034619479 | $746,787 | $746,787 | $674.69 | | |
| CNTYDD | DEVELOPMENTAL DISABILITIES | 0.0052121823 | $746,787 | $746,787 | $3.89 | | |
| CNTYVET | VETERANS RELIEF | 0.0052777810 | $746,787 | $746,787 | $3.94 | | |
| MENTAL | MENTAL HEALTH | 0.0052121823 | $746,787 | $746,787 | $3.89 | | |
| ROADS | COUNTY ROADS | 0.7415066410 | $746,787 | $746,787 | $553.75 | | |
| ROADSCU | COUNTY ROADS TO CUR EXP | 0.0000000000 | $746,787 | $746,787 | $0.00 | | |
| HOSP2CASH | HOSP DIST #2 GENERAL | 0.0536075306 | $746,787 | $746,787 | $40.03 | | |
| SCH49CP | SCHOOL DIST #49 CAP PROJ | 0.6279093905 | $746,787 | $746,787 | $468.91 | | |
| SCH49MO | SCHOOL DIST #49 EP & O | 0.6376483602 | $746,787 | $746,787 | $476.19 | | |
| CONSERVE | CONSERVATION FUTURES | 0.0275621078 | $746,787 | $746,787 | $20.58 | | |
| EMS1 | FIRE DIST #1 EMS | 0.4679948282 | $746,787 | $746,787 | $349.49 | | |
| FD1 | FIRE DIST #1 GENERAL | 1.2171942929 | $746,787 | $746,787 | $908.98 | | |
| LIB1 | LIBRARY DIST #1 GENERAL | 0.2868827388 | $746,787 | $746,787 | $214.24 | | |
| PORTPT | PORT OF PT GENERAL | 0.1134941229 | $746,787 | $746,787 | $84.76 | | |
| PORTPTIDD | PORT OF PT IDD 2019 | 0.2577346692 | $746,787 | $746,787 | $192.47 | | |
| PUD1 | PUD #1 GENERAL | 0.0597888892 | $746,787 | $746,787 | $44.65 | | |
| STATE | STATE SCHOOL PART 1 | 1.4940692947 | $746,787 | $746,787 | $1,115.75 | | |
| STATE2 | STATE SCHOOL PART 2 | 0.8050170049 | $746,787 | $746,787 | $601.18 | | |
| | Total Tax Rate: | 7.7095739644 | | | | | |
| | | | | Taxes w/Current Exemptions: | $5,757.39 | | |
| | | | | Taxes w/o Exemptions: | $5,757.39 | | |
Improvement / Building
| Improvement #1: | Residential Bldg | State Code: | 11 | 1890.0 sqft | Value: | $628,662 |
| Bathrooms (#): | 3 (FULL) | Bedrooms (#): | 3 | | Exterior Wall: | SI/ST | Foundation: | CONPR | | Heating/Cooling: | ELBB | Roof Cover: | COMP |
|
| | Type | Description | Class CD | Sub Class CD | Year Built | Area |
| | MA | Main Area | 6- | 15SF | 2021 | 1200.0 |
| | MA2 | Second Floor Main Area | 6- | 15SF | 2021 | 690.0 |
| | GATT | House Attached Garage | 5 | 15SF | 2021 | 560.0 |
| | HCPOR | House Concrete Porch | 5 | 15SF | 2021 | 72.0 |
Sketch
Property Image
Land
| 1 | 4120-1245S | | 0.0000 | 0.00 | 0.00 | 0.00 | 1.00 | $118,125 | $0 |
Roll Value History
| 2026 | N/A | N/A | N/A | N/A | N/A |
| 2025 | $628,662 | $118,125 | $0 | $746,787 | $746,787 |
| 2024 | $628,662 | $118,125 | $0 | $746,787 | $746,787 |
| 2023 | $600,087 | $107,500 | $0 | $707,587 | $707,587 |
| 2022 | $515,828 | $102,500 | $0 | $618,328 | $618,328 |
Deed and Sales History
| 1 | 05/15/2024 | QCD | Quit Claim Deed | WEI ZHOU | SCHORES FAMILY LIVING TRUST | | | | 142597 | |
| 2 | 03/12/2008 | QCD | Quit Claim Deed | RAIGUEL, LI LI-MEI | ZHOU, WEI | 0 | 0 | $0.00 | 110925 | 0 |
| 3 | 09/12/2003 | SWD | Statutory Warranty Deed | PROSPECT VIEW, INC A WASH | RAIGUEL, LI LI-MEI, ZHOU, WEI | 0 | 0 | $43,000.00 | 98340 | 0 |
Payout Agreement
| No payout information available.. |