Property
Account |
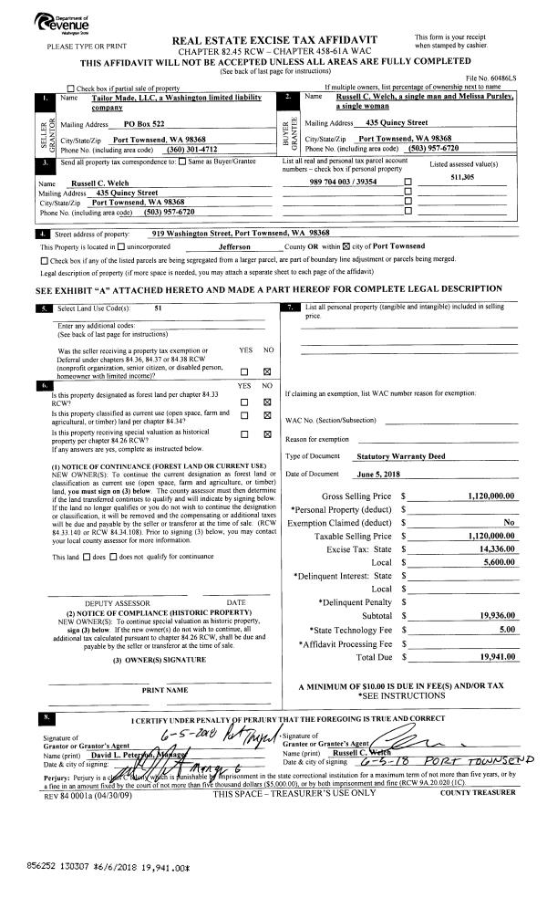
| Property ID: | 39354 | Abbreviated Legal Description: | PORT TOWNSEND O.T. BLK 40 LOT 4(W1/2 LESS S10' & TAX 184) & LOT 6(E30' LESS S10') |
| Parcel # / Geo ID: | 989704003 | Agent Code: | |
| Type: | Real | | |
| Tax Area: | 0110 - C-50F1E1H2 | Land Use Code | 51 |
| Open Space: | N | DFL | N |
| Historic Property: | N | Remodel Property: | N |
| Multi-Family Redevelopment: | N | | |
| Township: | 30N | Section: | 11 |
| Range: | 1W |
Location |
| Address: | 919 WASHINGTON ST PORT TOWNSEND, WA 98368 | Mapsco: | 116/018 |
| Neighborhood: | PORT TOWNSEND DOWNTOWN COMMERCIAL DISTRICT | Map ID: | |
| Neighborhood CD: | 6290C |
Owner |
| Name: | BAUHAUS PT LLC | Owner ID: | 103846 |
| Mailing Address: | 919 WASHINGTON ST PORT TOWNSEND, WA 98368-5721 | % Ownership: | 100.0000000000% |
| | | Exemptions: | |
Pay Tax Due
Select the appropriate checkbox next to the year to be paid. Multiple years may be selected.
*Convenience Fee not included
Taxes and Assessment Details
Property Tax Information as of
03/11/2026
Click on "Statement Details" to expand or collapse a tax statement.
* Please enter a valid date ** Please enter a valid date *
Statement Details |
| 2026 | 28528 | STATE - STATE LEVY (SCHOOL) | $1319.73 | $1319.71 | $0.00 | $0.00 | $0.00 | $2639.44 |
| 2026 | 28528 | COUNTY - COUNTY LEVIES (CE, DD, VET, MH) | $527.62 | $527.61 | $0.00 | $0.00 | $0.00 | $1055.23 |
| 2026 | 28528 | CONSERVE - CONSERVATION FUTURES | $15.82 | $15.82 | $0.00 | $0.00 | $0.00 | $31.64 |
| 2026 | 28528 | CITYPT - CITY OF PT | $748.92 | $748.91 | $0.00 | $0.00 | $0.00 | $1497.83 |
| 2026 | 28528 | PORTPT - PORT DISTRICT | $213.10 | $213.09 | $0.00 | $0.00 | $0.00 | $426.19 |
| 2026 | 28528 | PUD1 - PUD #1 | $34.32 | $34.32 | $0.00 | $0.00 | $0.00 | $68.64 |
| 2026 | 28528 | HD2 - HOSP DIST #2 | $30.77 | $30.77 | $0.00 | $0.00 | $0.00 | $61.54 |
| 2026 | 28528 | SD50 - SCHOOL DIST #50 | $1045.52 | $1045.49 | $0.00 | $0.00 | $0.00 | $2091.01 |
| 2026 | 28528 | FD1 - FIRE DISTRICT #1 | $698.70 | $698.69 | $0.00 | $0.00 | $0.00 | $1397.39 |
| 2026 | 28528 | EMS1 - FIRE DIST #1 EMS | $268.64 | $268.64 | $0.00 | $0.00 | $0.00 | $537.28 |
| 2026 | 28528 | JCCD - JC Conservation District | $2.53 | $2.53 | $0.00 | $0.00 | $0.00 | $5.06 |
| 2026 | 28528 | NWA - Noxious Weed Assessment | $2.98 | $2.97 | $0.00 | $0.00 | $0.00 | $5.95 |
| 2026 | 28528 | TOTAL: | $4908.65 | $4908.55 | $0.00 | $0.00 | $0.00 | $9817.20 |
|
| 2026 | 28528 | $4908.65 | $4908.55 | $0.00 | $0.00 | $0.00 | $9817.20 |
Statement Details |
| 2025 | 28600 | STATE - STATE LEVY (SCHOOL) | $1361.99 | $1361.99 | $299.64 | $299.64 | $0.00 | $3323.26 |
| 2025 | 28600 | COUNTY - COUNTY LEVIES (CE, DD, VET, MH) | $535.60 | $535.59 | $117.81 | $117.84 | $0.00 | $1306.84 |
| 2025 | 28600 | CONSERVE - CONSERVATION FUTURES | $16.06 | $16.06 | $3.53 | $3.53 | $0.00 | $39.18 |
| 2025 | 28600 | CITYPT - CITY OF PT | $772.39 | $772.38 | $169.92 | $169.92 | $0.00 | $1884.61 |
| 2025 | 28600 | PORTPT - PORT DISTRICT | $218.56 | $218.55 | $48.09 | $48.08 | $0.00 | $533.28 |
| 2025 | 28600 | PUD1 - PUD #1 | $35.05 | $35.04 | $7.71 | $7.71 | $0.00 | $85.51 |
| 2025 | 28600 | HD2 - HOSP DIST #2 | $31.25 | $31.25 | $6.88 | $6.88 | $0.00 | $76.26 |
| 2025 | 28600 | SD50 - SCHOOL DIST #50 | $995.39 | $995.38 | $218.98 | $218.99 | $0.00 | $2428.74 |
| 2025 | 28600 | FD1 - FIRE DISTRICT #1 | $706.78 | $706.77 | $155.49 | $155.49 | $0.00 | $1724.53 |
| 2025 | 28600 | EMS1 - FIRE DIST #1 EMS | $271.85 | $271.84 | $59.81 | $59.81 | $0.00 | $663.31 |
| 2025 | 28600 | JCCD - JC Conservation District | $2.53 | $2.53 | $0.55 | $0.56 | $0.00 | $6.17 |
| 2025 | 28600 | NWA - Noxious Weed Assessment | $2.15 | $2.15 | $0.47 | $0.47 | $0.00 | $5.24 |
| 2025 | 28600 | TOTAL: | $4949.60 | $4949.53 | $1088.88 | $1088.92 | $0.00 | $12076.93 |
|
| 2025 | 28600 | $4949.60 | $4949.53 | $1088.88 | $1088.92 | $0.00 | $12076.93 |
Statement Details |
| 2024 | 28660 | STATE - STATE LEVY (SCHOOL) | $1308.26 | $1308.25 | $266.54 | $557.31 | $193.43 | $3246.93 |
| 2024 | 28660 | COUNTY - COUNTY LEVIES (CE, DD, VET, MH) | $559.81 | $559.81 | $114.07 | $238.48 | $82.75 | $1389.42 |
| 2024 | 28660 | CONSERVE - CONSERVATION FUTURES | $16.79 | $16.78 | $3.42 | $7.15 | $2.48 | $41.66 |
| 2024 | 28660 | CITYPT - CITY OF PT | $799.90 | $799.89 | $162.97 | $340.74 | $118.26 | $1985.24 |
| 2024 | 28660 | PORTPT - PORT DISTRICT | $231.24 | $231.22 | $47.11 | $98.51 | $34.17 | $573.91 |
| 2024 | 28660 | PUD1 - PUD #1 | $36.77 | $36.77 | $7.49 | $15.66 | $5.44 | $91.25 |
| 2024 | 28660 | HD2 - HOSP DIST #2 | $32.67 | $32.66 | $6.66 | $13.92 | $4.83 | $81.08 |
| 2024 | 28660 | SD50 - SCHOOL DIST #50 | $1058.45 | $1058.43 | $215.64 | $450.88 | $156.49 | $2626.91 |
| 2024 | 28660 | FD1 - FIRE DISTRICT #1 | $740.21 | $740.20 | $150.81 | $315.32 | $109.44 | $1837.10 |
| 2024 | 28660 | EMS1 - FIRE DIST #1 EMS | $282.73 | $282.73 | $57.60 | $120.44 | $41.80 | $701.70 |
| 2024 | 28660 | JCCD - JC Conservation District | $2.53 | $2.53 | $0.52 | $1.08 | $0.37 | $6.29 |
| 2024 | 28660 | NWA - Noxious Weed Assessment | $2.15 | $2.15 | $0.44 | $0.92 | $0.32 | $5.34 |
| 2024 | 28660 | TOTAL: | $5071.51 | $5071.42 | $1033.27 | $2160.41 | $749.78 | $12586.83 |
|
| 2024 | 28660 | $5071.51 | $5071.42 | $1033.27 | $2160.41 | $749.78 | $12586.83 |
Statement Details |
| 2023 | 28702 | STATE - STATE LEVY (SCHOOL) | $1279.86 | $1279.86 | $0.00 | $0.00 | $2559.72 | $0.00 |
| 2023 | 28702 | COUNTY - COUNTY LEVIES (CE, DD, VET, MH) | $558.49 | $558.49 | $0.00 | $0.00 | $1116.98 | $0.00 |
| 2023 | 28702 | CONSERVE - CONSERVATION FUTURES | $16.75 | $16.74 | $0.00 | $0.00 | $33.49 | $0.00 |
| 2023 | 28702 | CITYPT - CITY OF PT | $789.34 | $789.33 | $0.00 | $0.00 | $1578.67 | $0.00 |
| 2023 | 28702 | PORTPT - PORT DISTRICT | $235.27 | $235.26 | $0.00 | $0.00 | $470.53 | $0.00 |
| 2023 | 28702 | PUD1 - PUD #1 | $37.02 | $37.02 | $0.00 | $0.00 | $74.04 | $0.00 |
| 2023 | 28702 | HD2 - HOSP DIST #2 | $32.59 | $32.59 | $0.00 | $0.00 | $65.18 | $0.00 |
| 2023 | 28702 | SD50 - SCHOOL DIST #50 | $1015.59 | $1015.59 | $0.00 | $0.00 | $2031.18 | $0.00 |
| 2023 | 28702 | FD1 - FIRE DISTRICT #1 | $460.09 | $460.08 | $0.00 | $0.00 | $920.17 | $0.00 |
| 2023 | 28702 | EMS1 - FIRE DIST #1 EMS | $195.71 | $195.71 | $0.00 | $0.00 | $391.42 | $0.00 |
| 2023 | 28702 | JCCD - JC Conservation District | $2.53 | $2.53 | $0.00 | $0.00 | $5.06 | $0.00 |
| 2023 | 28702 | NWA - Noxious Weed Assessment | $2.15 | $2.15 | $0.00 | $0.00 | $4.30 | $0.00 |
| 2023 | 28702 | TOTAL: | $4625.39 | $4625.35 | $0.00 | $0.00 | $9250.74 | $0.00 |
|
| 2023 | 28702 | $4625.39 | $4625.35 | $0.00 | $0.00 | $9250.74 | $0.00 |
Values
| (+) Improvement Homesite Value: | + | $0 | |
| (+) Improvement Non-Homesite Value: | + | $822,920 | |
| (+) Land Homesite Value: | + | $0 | |
| (+) Land Non-Homesite Value: | + | $325,120 | |
| (+) Curr Use (HS): | + | $0 | $0 |
| (+) Curr Use (NHS): | + | $0 | $0 |
| | | -------------------------- | |
| (=) Market Value: | = | $1,148,040 | |
| (–) Productivity Loss: | – | $0 | |
| | | -------------------------- | |
| (=) Subtotal: | = | $1,148,040 | |
| (+) Senior Appraised Value: | + | $0 | |
| (+) Non-Senior Appraised Value: | + | $1,148,040 | |
| | | -------------------------- | |
| (=) Total Appraised Value: | = | $1,148,040 | |
| (–) Senior Exemption Loss: | – | $0 | |
| (–) Exemption Loss: | – | $0 | |
| | | -------------------------- | |
| (=) Taxable Value: | = | $1,148,040 | |
Taxing Jurisdiction
| Owner: | BAUHAUS PT LLC | | |
| % Ownership: | 100.0000000000% | | |
| Total Value: | $1,148,040 | | |
| Tax Area: | 0110 - C-50F1E1H2 |
| CE | COUNTY CURRENT EXPENSE | 0.9034619479 | $1,148,040 | $1,148,040 | $1,037.21 | | |
| CNTYDD | DEVELOPMENTAL DISABILITIES | 0.0052121823 | $1,148,040 | $1,148,040 | $5.98 | | |
| CNTYVET | VETERANS RELIEF | 0.0052777810 | $1,148,040 | $1,148,040 | $6.06 | | |
| MENTAL | MENTAL HEALTH | 0.0052121823 | $1,148,040 | $1,148,040 | $5.98 | | |
| PTGEN | CITY OF PT GENERAL | 0.8551967795 | $1,148,040 | $1,148,040 | $981.80 | | |
| PTLLL | CITY OF PT - LIBRARY LID LIFT | 0.4010114288 | $1,148,040 | $1,148,040 | $460.38 | | |
| PTMVBOND | CITY OF PT MV BOND | 0.0484717981 | $1,148,040 | $1,148,040 | $55.65 | | |
| HOSP2CASH | HOSP DIST #2 GENERAL | 0.0536075306 | $1,148,040 | $1,148,040 | $61.54 | | |
| SCH50BOND | SCHOOL DIST #50 BOND 2016 | 0.5377451389 | $1,148,040 | $1,148,040 | $617.35 | | |
| SCH50CP | SCHOOL DIST #50 CAP PROJ | 0.4573475088 | $1,148,040 | $1,148,040 | $525.05 | | |
| SCH50MO | SCHOOL DIST #50 EP & O | 0.8262822886 | $1,148,040 | $1,148,040 | $948.61 | | |
| CONSERVE | CONSERVATION FUTURES | 0.0275621078 | $1,148,040 | $1,148,040 | $31.64 | | |
| EMS1 | FIRE DIST #1 EMS | 0.4679948282 | $1,148,040 | $1,148,040 | $537.28 | | |
| FD1 | FIRE DIST #1 GENERAL | 1.2171942929 | $1,148,040 | $1,148,040 | $1,397.39 | | |
| PORTPT | PORT OF PT GENERAL | 0.1134941229 | $1,148,040 | $1,148,040 | $130.30 | | |
| PORTPTIDD | PORT OF PT IDD 2019 | 0.2577346692 | $1,148,040 | $1,148,040 | $295.89 | | |
| PUD1 | PUD #1 GENERAL | 0.0597888892 | $1,148,040 | $1,148,040 | $68.64 | | |
| STATE | STATE SCHOOL PART 1 | 1.4940692947 | $1,148,040 | $1,148,040 | $1,715.25 | | |
| STATE2 | STATE SCHOOL PART 2 | 0.8050170049 | $1,148,040 | $1,148,040 | $924.19 | | |
| | Total Tax Rate: | 8.5416817766 | | | | | |
| | | | | Taxes w/Current Exemptions: | $9,806.19 | | |
| | | | | Taxes w/o Exemptions: | $9,806.19 | | |
Improvement / Building
| Improvement #1: | Commercial/Industrial/Government Bldg | State Code: | 51 | 4950.0 sqft | Value: | $822,920 |
Sketch
Property Image
Land
| 1 | 6290-6265Q | | 0.1190 | 5184.00 | 0.00 | 0.00 | 0.00 | $325,120 | $0 |
Roll Value History
| 2026 | N/A | N/A | N/A | N/A | N/A |
| 2025 | $822,920 | $325,120 | $0 | $1,148,040 | $1,148,040 |
| 2024 | $810,805 | $325,120 | $0 | $1,135,925 | $1,135,925 |
| 2023 | $810,805 | $320,120 | $0 | $1,130,925 | $1,130,925 |
| 2022 | $772,195 | $315,120 | $0 | $1,087,315 | $1,087,315 |
Deed and Sales History
| 1 | 12/11/2020 | QCD | Quit Claim Deed | RUSSELL WELCH | BAUHAUS PT LLC | | | | 135734 | |
| 2 | 04/18/2019 | QCD | Quit Claim Deed | RUSSELL C WELCH | RUSSELL WELCH | | | | 133282 | |
| 3 | 06/05/2018 | SWD | Statutory Warranty Deed | TAILOR MADE LLC WA LLC | RUSSELL C WELCH | | | $1,120,000.00 | 130307 | |
| 4 | 04/18/2008 | SWD | Statutory Warranty Deed | TERRY BUILDING LLC | TAILOR MADE LLC | | | $925,000.00 | 111164 | 0 |
| 5 | 02/16/2007 | QCD | Quit Claim Deed | johnson, phillip GOULD, A | TERRY BUILDING LLC | 0 | 0 | $0.00 | 108640 | 0 |
| 6 | 02/29/2000 | BLA | Boundary Line Adjustment | ROSE INC | JOHNSON, PHILLIP/SANDRA KRIST | 0 | 0 | $0.00 | 89066 | 0 |
| 7 | 01/28/2000 | QCD | Quit Claim Deed | GOULD, ARLETTA/ET AL | ROSE INC | 0 | 0 | $0.00 | 89136 | 0 |
| 8 | 01/28/2000 | QCD | Quit Claim Deed | GOULD, ARLETTA/ET AL | ROSE INC/JOHNSON, P/KRIST, S | 0 | 0 | $0.00 | 89011 | 0 |
| 9 | 03/27/1995 | QCD | Quit Claim Deed | JOHNSON, P/GOULD, A/KRIST | ROSE INC | 0 | 0 | $0.00 | 76605 | 0 |
Payout Agreement
| No payout information available.. |