Property
Account |
| Property ID: | 39364 | Abbreviated Legal Description: | PORT TOWNSEND O.T. BLK 41 3(W1/2 LS W1 1/2') SUBJ TO EASE |
| Parcel # / Geo ID: | 989704105 | Agent Code: | |
| Type: | Real | | |
| Tax Area: | 0110 - C-50F1E1H2 | Land Use Code | 51 |
| Open Space: | N | DFL | N |
| Historic Property: | N | Remodel Property: | N |
| Multi-Family Redevelopment: | N | | |
| Township: | 30N | Section: | 1 |
| Range: | 1W |
Location |
| Address: | 820 WATER ST PORT TOWNSEND, WA 98368 | Mapsco: | 117/005 |
| Neighborhood: | PORT TOWNSEND DOWNTOWN COMMERCIAL DISTRICT | Map ID: | |
| Neighborhood CD: | 6290C |
Owner |
| Name: | WINALOME LLC | Owner ID: | 114112 |
| Mailing Address: | 62 TANGLEWOOD LN PORT TOWNSEND, WA 98368-6562 | % Ownership: | 100.0000000000% |
| | | Exemptions: | |
Pay Tax Due
There is currently No Amount Due on this property.
Taxes and Assessment Details
Property Tax Information as of
03/10/2026
Click on "Statement Details" to expand or collapse a tax statement.
* Please enter a valid date ** Please enter a valid date *
Statement Details |
| | TOTAL: | $0.00 | $0.00 | $0.00 | $0.00 | $0.00 | $0.00 |
|
| | $0.00 | $0.00 | $0.00 | $0.00 | $0.00 | $0.00 |
Values
| (+) Improvement Homesite Value: | + | $0 | |
| (+) Improvement Non-Homesite Value: | + | $813,597 | |
| (+) Land Homesite Value: | + | $0 | |
| (+) Land Non-Homesite Value: | + | $268,560 | |
| (+) Curr Use (HS): | + | $0 | $0 |
| (+) Curr Use (NHS): | + | $0 | $0 |
| | | -------------------------- | |
| (=) Market Value: | = | $1,082,157 | |
| (–) Productivity Loss: | – | $0 | |
| | | -------------------------- | |
| (=) Subtotal: | = | $1,082,157 | |
| (+) Senior Appraised Value: | + | $0 | |
| (+) Non-Senior Appraised Value: | + | $1,082,157 | |
| | | -------------------------- | |
| (=) Total Appraised Value: | = | $1,082,157 | |
| (–) Senior Exemption Loss: | – | $0 | |
| (–) Exemption Loss: | – | $0 | |
| | | -------------------------- | |
| (=) Taxable Value: | = | $1,082,157 | |
Taxing Jurisdiction
| Owner: | WINALOME LLC | | |
| % Ownership: | 100.0000000000% | | |
| Total Value: | $1,082,157 | | |
| Tax Area: | 0110 - C-50F1E1H2 |
| CE | COUNTY CURRENT EXPENSE | 0.9034619479 | $1,082,157 | $1,082,157 | $977.69 | | |
| CNTYDD | DEVELOPMENTAL DISABILITIES | 0.0052121823 | $1,082,157 | $1,082,157 | $5.64 | | |
| CNTYVET | VETERANS RELIEF | 0.0052777810 | $1,082,157 | $1,082,157 | $5.71 | | |
| MENTAL | MENTAL HEALTH | 0.0052121823 | $1,082,157 | $1,082,157 | $5.64 | | |
| PTGEN | CITY OF PT GENERAL | 0.8551967795 | $1,082,157 | $1,082,157 | $925.46 | | |
| PTLLL | CITY OF PT - LIBRARY LID LIFT | 0.4010114288 | $1,082,157 | $1,082,157 | $433.96 | | |
| PTMVBOND | CITY OF PT MV BOND | 0.0484717981 | $1,082,157 | $1,082,157 | $52.45 | | |
| HOSP2CASH | HOSP DIST #2 GENERAL | 0.0536075306 | $1,082,157 | $1,082,157 | $58.01 | | |
| SCH50BOND | SCHOOL DIST #50 BOND 2016 | 0.5377451389 | $1,082,157 | $1,082,157 | $581.92 | | |
| SCH50CP | SCHOOL DIST #50 CAP PROJ | 0.4573475088 | $1,082,157 | $1,082,157 | $494.92 | | |
| SCH50MO | SCHOOL DIST #50 EP & O | 0.8262822886 | $1,082,157 | $1,082,157 | $894.17 | | |
| CONSERVE | CONSERVATION FUTURES | 0.0275621078 | $1,082,157 | $1,082,157 | $29.83 | | |
| EMS1 | FIRE DIST #1 EMS | 0.4679948282 | $1,082,157 | $1,082,157 | $506.44 | | |
| FD1 | FIRE DIST #1 GENERAL | 1.2171942929 | $1,082,157 | $1,082,157 | $1,317.20 | | |
| PORTPT | PORT OF PT GENERAL | 0.1134941229 | $1,082,157 | $1,082,157 | $122.82 | | |
| PORTPTIDD | PORT OF PT IDD 2019 | 0.2577346692 | $1,082,157 | $1,082,157 | $278.91 | | |
| PUD1 | PUD #1 GENERAL | 0.0597888892 | $1,082,157 | $1,082,157 | $64.70 | | |
| STATE | STATE SCHOOL PART 1 | 1.4940692947 | $1,082,157 | $1,082,157 | $1,616.82 | | |
| STATE2 | STATE SCHOOL PART 2 | 0.8050170049 | $1,082,157 | $1,082,157 | $871.15 | | |
| | Total Tax Rate: | 8.5416817766 | | | | | |
| | | | | Taxes w/Current Exemptions: | $9,243.44 | | |
| | | | | Taxes w/o Exemptions: | $9,243.44 | | |
Improvement / Building
| Improvement #1: | Commercial/Industrial/Government Bldg | State Code: | 51 | 3640.0 sqft | Value: | $813,597 |
Sketch
Property Image
Land
| 1 | 6290-6263Q | Comm/Apts along Water Street | 0.0656 | 2857.00 | 0.00 | 0.00 | 0.00 | $268,560 | $0 |
Roll Value History
| 2026 | N/A | N/A | N/A | N/A | N/A |
| 2025 | $813,597 | $268,560 | $0 | $1,082,157 | $1,082,157 |
| 2024 | $801,420 | $268,560 | $0 | $1,069,980 | $1,069,980 |
| 2023 | $747,208 | $263,560 | $0 | $1,010,768 | $1,010,768 |
| 2022 | $711,627 | $258,560 | $0 | $970,187 | $970,187 |
Deed and Sales History
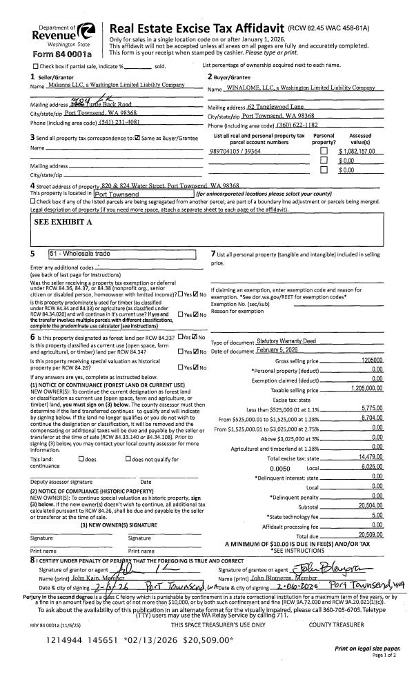
| 1 | 02/05/2026 | SWD | Statutory Warranty Deed | MAKANNA LLC | WINALOME LLC | | | $1,205,000.00 | 145651 | |
| 2 | 04/04/2019 | SWD | Statutory Warranty Deed | RAGGS BEACON LLC | MAKANNA LLC | | | $1,025,000.00 | 132130 | |
| 3 | 11/08/2010 | SWD | Statutory Warranty Deed | DAMERON JR, FRANK L | RAGES BEACON LLC | 0 | 0 | $650,000.00 | 115173 | 0 |
| 4 | 07/02/2010 | TRED | Trustee Deed | NEUPERT SUCCESSOR TRUSTEE | DAMERON JR, FRANK L | | | $0.00 | 114595 | 0 |
| 5 | 06/06/2006 | QCD | Quit Claim Deed | SORGEN, CHARLES R/M EGBER | CRACKER FACTORY LLC | | | $0.00 | 107161 | 0 |
| 6 | 06/06/2006 | QCD | Quit Claim Deed | SORGEN, CHARLES R, EGBERD | CRACKER FACTORY, LLC | | | $0.00 | 107029 | 0 |
| 7 | 12/11/2001 | SWD | Statutory Warranty Deed | ARCHER, GLEN E | SORGEN, CHARLES R, EGBERDING, | 0 | 0 | $525,000.00 | 93678 | 0 |
Payout Agreement
| No payout information available.. |