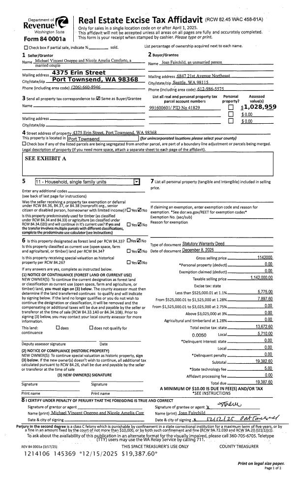
Property
Account |
| Property ID: | 39379 | Abbreviated Legal Description: | PORT TOWNSEND O.T. BLK 43 LOTS 2 & 4(N1/2) |
| Parcel # / Geo ID: | 989704302 | Agent Code: | |
| Type: | Real | | |
| Tax Area: | 0110 - C-50F1E1H2 | Land Use Code | 58 |
| Open Space: | N | DFL | N |
| Historic Property: | N | Remodel Property: | N |
| Multi-Family Redevelopment: | N | | |
| Township: | 30N | Section: | 1 |
| Range: | 1W |
Location |
| Address: | 609 WASHINGTON ST PORT TOWNSEND, WA 98368 | Mapsco: | 117/021 |
| Neighborhood: | PORT TOWNSEND DOWNTOWN COMMERCIAL DISTRICT | Map ID: | |
| Neighborhood CD: | 6290C |
Owner |
| Name: | KIEN H LEE | Owner ID: | 20653 |
| Mailing Address: | MAN T BACH 729 HASTINGS AVE PORT TOWNSEND, WA 98368-6105 | % Ownership: | 100.0000000000% |
| | | Exemptions: | |
Pay Tax Due
Select the appropriate checkbox next to the year to be paid. Multiple years may be selected.
*Convenience Fee not included
Taxes and Assessment Details
Property Tax Information as of
03/12/2026
Click on "Statement Details" to expand or collapse a tax statement.
* Please enter a valid date ** Please enter a valid date *
Statement Details |
| 2026 | 28553 | STATE - STATE LEVY (SCHOOL) | $693.59 | $693.57 | $0.00 | $0.00 | $0.00 | $1387.16 |
| 2026 | 28553 | COUNTY - COUNTY LEVIES (CE, DD, VET, MH) | $277.28 | $277.28 | $0.00 | $0.00 | $0.00 | $554.56 |
| 2026 | 28553 | CONSERVE - CONSERVATION FUTURES | $8.32 | $8.31 | $0.00 | $0.00 | $0.00 | $16.63 |
| 2026 | 28553 | CITYPT - CITY OF PT | $393.60 | $393.58 | $0.00 | $0.00 | $0.00 | $787.18 |
| 2026 | 28553 | PORTPT - PORT DISTRICT | $111.99 | $111.99 | $0.00 | $0.00 | $0.00 | $223.98 |
| 2026 | 28553 | PUD1 - PUD #1 | $18.04 | $18.03 | $0.00 | $0.00 | $0.00 | $36.07 |
| 2026 | 28553 | HD2 - HOSP DIST #2 | $16.17 | $16.17 | $0.00 | $0.00 | $0.00 | $32.34 |
| 2026 | 28553 | SD50 - SCHOOL DIST #50 | $549.47 | $549.46 | $0.00 | $0.00 | $0.00 | $1098.93 |
| 2026 | 28553 | FD1 - FIRE DISTRICT #1 | $367.20 | $367.20 | $0.00 | $0.00 | $0.00 | $734.40 |
| 2026 | 28553 | EMS1 - FIRE DIST #1 EMS | $141.19 | $141.18 | $0.00 | $0.00 | $0.00 | $282.37 |
| 2026 | 28553 | JCCD - JC Conservation District | $2.53 | $2.53 | $0.00 | $0.00 | $0.00 | $5.06 |
| 2026 | 28553 | NWA - Noxious Weed Assessment | $2.98 | $2.97 | $0.00 | $0.00 | $0.00 | $5.95 |
| 2026 | 28553 | TOTAL: | $2582.36 | $2582.27 | $0.00 | $0.00 | $0.00 | $5164.63 |
|
| 2026 | 28553 | $2582.36 | $2582.27 | $0.00 | $0.00 | $0.00 | $5164.63 |
Statement Details |
| 2025 | 28625 | STATE - STATE LEVY (SCHOOL) | $720.20 | $720.19 | $0.00 | $0.00 | $1440.39 | $0.00 |
| 2025 | 28625 | COUNTY - COUNTY LEVIES (CE, DD, VET, MH) | $283.21 | $283.20 | $0.00 | $0.00 | $566.41 | $0.00 |
| 2025 | 28625 | CONSERVE - CONSERVATION FUTURES | $8.49 | $8.49 | $0.00 | $0.00 | $16.98 | $0.00 |
| 2025 | 28625 | CITYPT - CITY OF PT | $408.44 | $408.41 | $0.00 | $0.00 | $816.85 | $0.00 |
| 2025 | 28625 | PORTPT - PORT DISTRICT | $115.57 | $115.56 | $0.00 | $0.00 | $231.13 | $0.00 |
| 2025 | 28625 | PUD1 - PUD #1 | $18.53 | $18.53 | $0.00 | $0.00 | $37.06 | $0.00 |
| 2025 | 28625 | HD2 - HOSP DIST #2 | $16.53 | $16.52 | $0.00 | $0.00 | $33.05 | $0.00 |
| 2025 | 28625 | SD50 - SCHOOL DIST #50 | $526.35 | $526.34 | $0.00 | $0.00 | $1052.69 | $0.00 |
| 2025 | 28625 | FD1 - FIRE DISTRICT #1 | $373.73 | $373.73 | $0.00 | $0.00 | $747.46 | $0.00 |
| 2025 | 28625 | EMS1 - FIRE DIST #1 EMS | $143.75 | $143.74 | $0.00 | $0.00 | $287.49 | $0.00 |
| 2025 | 28625 | JCCD - JC Conservation District | $2.53 | $2.53 | $0.00 | $0.00 | $5.06 | $0.00 |
| 2025 | 28625 | NWA - Noxious Weed Assessment | $2.15 | $2.15 | $0.00 | $0.00 | $4.30 | $0.00 |
| 2025 | 28625 | TOTAL: | $2619.48 | $2619.39 | $0.00 | $0.00 | $5238.87 | $0.00 |
|
| 2025 | 28625 | $2619.48 | $2619.39 | $0.00 | $0.00 | $5238.87 | $0.00 |
Statement Details |
| 2024 | 28685 | STATE - STATE LEVY (SCHOOL) | $679.98 | $679.96 | $0.00 | $0.00 | $1359.94 | $0.00 |
| 2024 | 28685 | COUNTY - COUNTY LEVIES (CE, DD, VET, MH) | $290.99 | $290.95 | $0.00 | $0.00 | $581.94 | $0.00 |
| 2024 | 28685 | CONSERVE - CONSERVATION FUTURES | $8.73 | $8.72 | $0.00 | $0.00 | $17.45 | $0.00 |
| 2024 | 28685 | CITYPT - CITY OF PT | $415.75 | $415.74 | $0.00 | $0.00 | $831.49 | $0.00 |
| 2024 | 28685 | PORTPT - PORT DISTRICT | $120.19 | $120.17 | $0.00 | $0.00 | $240.36 | $0.00 |
| 2024 | 28685 | PUD1 - PUD #1 | $19.11 | $19.11 | $0.00 | $0.00 | $38.22 | $0.00 |
| 2024 | 28685 | HD2 - HOSP DIST #2 | $16.98 | $16.97 | $0.00 | $0.00 | $33.95 | $0.00 |
| 2024 | 28685 | SD50 - SCHOOL DIST #50 | $550.13 | $550.12 | $0.00 | $0.00 | $1100.25 | $0.00 |
| 2024 | 28685 | FD1 - FIRE DISTRICT #1 | $384.73 | $384.72 | $0.00 | $0.00 | $769.45 | $0.00 |
| 2024 | 28685 | EMS1 - FIRE DIST #1 EMS | $146.95 | $146.95 | $0.00 | $0.00 | $293.90 | $0.00 |
| 2024 | 28685 | JCCD - JC Conservation District | $2.53 | $2.53 | $0.00 | $0.00 | $5.06 | $0.00 |
| 2024 | 28685 | NWA - Noxious Weed Assessment | $2.15 | $2.15 | $0.00 | $0.00 | $4.30 | $0.00 |
| 2024 | 28685 | TOTAL: | $2638.22 | $2638.09 | $0.00 | $0.00 | $5276.31 | $0.00 |
|
| 2024 | 28685 | $2638.22 | $2638.09 | $0.00 | $0.00 | $5276.31 | $0.00 |
Statement Details |
| 2023 | 28727 | STATE - STATE LEVY (SCHOOL) | $675.53 | $675.53 | $0.00 | $0.00 | $1351.06 | $0.00 |
| 2023 | 28727 | COUNTY - COUNTY LEVIES (CE, DD, VET, MH) | $294.80 | $294.77 | $0.00 | $0.00 | $589.57 | $0.00 |
| 2023 | 28727 | CONSERVE - CONSERVATION FUTURES | $8.84 | $8.84 | $0.00 | $0.00 | $17.68 | $0.00 |
| 2023 | 28727 | CITYPT - CITY OF PT | $416.64 | $416.61 | $0.00 | $0.00 | $833.25 | $0.00 |
| 2023 | 28727 | PORTPT - PORT DISTRICT | $124.18 | $124.18 | $0.00 | $0.00 | $248.36 | $0.00 |
| 2023 | 28727 | PUD1 - PUD #1 | $19.54 | $19.54 | $0.00 | $0.00 | $39.08 | $0.00 |
| 2023 | 28727 | HD2 - HOSP DIST #2 | $17.20 | $17.20 | $0.00 | $0.00 | $34.40 | $0.00 |
| 2023 | 28727 | SD50 - SCHOOL DIST #50 | $536.05 | $536.04 | $0.00 | $0.00 | $1072.09 | $0.00 |
| 2023 | 28727 | FD1 - FIRE DISTRICT #1 | $242.84 | $242.84 | $0.00 | $0.00 | $485.68 | $0.00 |
| 2023 | 28727 | EMS1 - FIRE DIST #1 EMS | $103.30 | $103.30 | $0.00 | $0.00 | $206.60 | $0.00 |
| 2023 | 28727 | JCCD - JC Conservation District | $2.53 | $2.53 | $0.00 | $0.00 | $5.06 | $0.00 |
| 2023 | 28727 | NWA - Noxious Weed Assessment | $2.15 | $2.15 | $0.00 | $0.00 | $4.30 | $0.00 |
| 2023 | 28727 | TOTAL: | $2443.60 | $2443.53 | $0.00 | $0.00 | $4887.13 | $0.00 |
|
| 2023 | 28727 | $2443.60 | $2443.53 | $0.00 | $0.00 | $4887.13 | $0.00 |
Values
| (+) Improvement Homesite Value: | + | $0 | |
| (+) Improvement Non-Homesite Value: | + | $197,507 | |
| (+) Land Homesite Value: | + | $0 | |
| (+) Land Non-Homesite Value: | + | $405,844 | |
| (+) Curr Use (HS): | + | $0 | $0 |
| (+) Curr Use (NHS): | + | $0 | $0 |
| | | -------------------------- | |
| (=) Market Value: | = | $603,351 | |
| (–) Productivity Loss: | – | $0 | |
| | | -------------------------- | |
| (=) Subtotal: | = | $603,351 | |
| (+) Senior Appraised Value: | + | $0 | |
| (+) Non-Senior Appraised Value: | + | $603,351 | |
| | | -------------------------- | |
| (=) Total Appraised Value: | = | $603,351 | |
| (–) Senior Exemption Loss: | – | $0 | |
| (–) Exemption Loss: | – | $0 | |
| | | -------------------------- | |
| (=) Taxable Value: | = | $603,351 | |
Taxing Jurisdiction
| Owner: | KIEN H LEE | | |
| % Ownership: | 100.0000000000% | | |
| Total Value: | $603,351 | | |
| Tax Area: | 0110 - C-50F1E1H2 |
| CE | COUNTY CURRENT EXPENSE | 0.9034619479 | $603,351 | $603,351 | $545.10 | | |
| CNTYDD | DEVELOPMENTAL DISABILITIES | 0.0052121823 | $603,351 | $603,351 | $3.14 | | |
| CNTYVET | VETERANS RELIEF | 0.0052777810 | $603,351 | $603,351 | $3.18 | | |
| MENTAL | MENTAL HEALTH | 0.0052121823 | $603,351 | $603,351 | $3.14 | | |
| PTGEN | CITY OF PT GENERAL | 0.8551967795 | $603,351 | $603,351 | $515.98 | | |
| PTLLL | CITY OF PT - LIBRARY LID LIFT | 0.4010114288 | $603,351 | $603,351 | $241.95 | | |
| PTMVBOND | CITY OF PT MV BOND | 0.0484717981 | $603,351 | $603,351 | $29.25 | | |
| HOSP2CASH | HOSP DIST #2 GENERAL | 0.0536075306 | $603,351 | $603,351 | $32.34 | | |
| SCH50BOND | SCHOOL DIST #50 BOND 2016 | 0.5377451389 | $603,351 | $603,351 | $324.45 | | |
| SCH50CP | SCHOOL DIST #50 CAP PROJ | 0.4573475088 | $603,351 | $603,351 | $275.94 | | |
| SCH50MO | SCHOOL DIST #50 EP & O | 0.8262822886 | $603,351 | $603,351 | $498.54 | | |
| CONSERVE | CONSERVATION FUTURES | 0.0275621078 | $603,351 | $603,351 | $16.63 | | |
| EMS1 | FIRE DIST #1 EMS | 0.4679948282 | $603,351 | $603,351 | $282.37 | | |
| FD1 | FIRE DIST #1 GENERAL | 1.2171942929 | $603,351 | $603,351 | $734.40 | | |
| PORTPT | PORT OF PT GENERAL | 0.1134941229 | $603,351 | $603,351 | $68.48 | | |
| PORTPTIDD | PORT OF PT IDD 2019 | 0.2577346692 | $603,351 | $603,351 | $155.50 | | |
| PUD1 | PUD #1 GENERAL | 0.0597888892 | $603,351 | $603,351 | $36.07 | | |
| STATE | STATE SCHOOL PART 1 | 1.4940692947 | $603,351 | $603,351 | $901.45 | | |
| STATE2 | STATE SCHOOL PART 2 | 0.8050170049 | $603,351 | $603,351 | $485.71 | | |
| | Total Tax Rate: | 8.5416817766 | | | | | |
| | | | | Taxes w/Current Exemptions: | $5,153.62 | | |
| | | | | Taxes w/o Exemptions: | $5,153.62 | | |
Improvement / Building
| Improvement #1: | Commercial/Industrial/Government Bldg | State Code: | 58 | 1245.0 sqft | Value: | $197,507 |
| Exterior Wall: | SI/ST | Floor Construction: | CONCR | | Foundation: | CONPR | Interior Finish: | FIN | | Roof Cover: | METAL |   |   |
|
Sketch
Property Image
Land
| 1 | 6290-6265Q | | 0.1388 | 6047.00 | 0.00 | 0.00 | 0.00 | $405,844 | $0 |
Roll Value History
| 2026 | N/A | N/A | N/A | N/A | N/A |
| 2025 | $197,507 | $405,844 | $0 | $603,351 | $603,351 |
| 2024 | $194,813 | $405,844 | $0 | $600,657 | $600,657 |
| 2023 | $186,961 | $400,844 | $0 | $587,805 | $587,805 |
| 2022 | $178,058 | $395,844 | $0 | $573,902 | $573,902 |
Deed and Sales History
| 1 | 11/19/2015 | SWD | Statutory Warranty Deed | ALEXANDER R HIGGINS | KIEN H LEE | | | $435,000.00 | 124409 | |
| 2 | 01/04/1996 | SWD | Statutory Warranty Deed | DARLINGTON & SPECK | HIGGINS, ALEXANDER & ANNA | 0 | 0 | $120,000.00 | 78641 | 0 |
Payout Agreement
| No payout information available.. |