Property
Account |
| Property ID: | 39383 | Abbreviated Legal Description: | PORT TOWNSEND O.T. BLK 43 LOT 7 |
| Parcel # / Geo ID: | 989704306 | Agent Code: | |
| Type: | Real | | |
| Tax Area: | 0110 - C-50F1E1H2 | Land Use Code | 59 |
| Open Space: | N | DFL | N |
| Historic Property: | N | Remodel Property: | N |
| Multi-Family Redevelopment: | N | | |
| Township: | 30N | Section: | 1 |
| Range: | 1W |
Location |
| Address: | 696 WATER ST PORT TOWNSEND, WA 98368 | Mapsco: | 117/026 |
| Neighborhood: | PORT TOWNSEND DOWNTOWN COMMERCIAL DISTRICT | Map ID: | |
| Neighborhood CD: | 6290C |
Owner |
| Name: | RAGGS BEACON LLC | Owner ID: | 25389 |
| Mailing Address: | % KEVIN BURGLER 405 FOSTER ST PORT TOWNSEND, WA 98368-4301 | % Ownership: | 100.0000000000% |
| | | Exemptions: | |
Pay Tax Due
Select the appropriate checkbox next to the year to be paid. Multiple years may be selected.
*Convenience Fee not included
Taxes and Assessment Details
Property Tax Information as of
03/10/2026
Click on "Statement Details" to expand or collapse a tax statement.
* Please enter a valid date ** Please enter a valid date *
Statement Details |
| 2026 | 28557 | STATE - STATE LEVY (SCHOOL) | $1109.14 | $1109.14 | $0.00 | $0.00 | $1109.14 | $1109.14 |
| 2026 | 28557 | COUNTY - COUNTY LEVIES (CE, DD, VET, MH) | $443.45 | $443.41 | $0.00 | $0.00 | $443.45 | $443.41 |
| 2026 | 28557 | CONSERVE - CONSERVATION FUTURES | $13.30 | $13.29 | $0.00 | $0.00 | $13.30 | $13.29 |
| 2026 | 28557 | CITYPT - CITY OF PT | $629.42 | $629.41 | $0.00 | $0.00 | $629.42 | $629.41 |
| 2026 | 28557 | PORTPT - PORT DISTRICT | $179.10 | $179.09 | $0.00 | $0.00 | $179.10 | $179.09 |
| 2026 | 28557 | PUD1 - PUD #1 | $28.85 | $28.84 | $0.00 | $0.00 | $28.85 | $28.84 |
| 2026 | 28557 | HD2 - HOSP DIST #2 | $25.86 | $25.86 | $0.00 | $0.00 | $25.86 | $25.86 |
| 2026 | 28557 | SD50 - SCHOOL DIST #50 | $878.69 | $878.67 | $0.00 | $0.00 | $878.69 | $878.67 |
| 2026 | 28557 | FD1 - FIRE DISTRICT #1 | $587.21 | $587.21 | $0.00 | $0.00 | $587.21 | $587.21 |
| 2026 | 28557 | EMS1 - FIRE DIST #1 EMS | $225.78 | $225.77 | $0.00 | $0.00 | $225.78 | $225.77 |
| 2026 | 28557 | JCCD - JC Conservation District | $2.53 | $2.53 | $0.00 | $0.00 | $2.53 | $2.53 |
| 2026 | 28557 | NWA - Noxious Weed Assessment | $2.98 | $2.97 | $0.00 | $0.00 | $2.98 | $2.97 |
| 2026 | 28557 | TOTAL: | $4126.31 | $4126.19 | $0.00 | $0.00 | $4126.31 | $4126.19 |
|
| 2026 | 28557 | $4126.31 | $4126.19 | $0.00 | $0.00 | $4126.31 | $4126.19 |
Statement Details |
| 2025 | 28629 | STATE - STATE LEVY (SCHOOL) | $1165.37 | $1165.37 | $0.00 | $0.00 | $2330.74 | $0.00 |
| 2025 | 28629 | COUNTY - COUNTY LEVIES (CE, DD, VET, MH) | $458.30 | $458.26 | $0.00 | $0.00 | $916.56 | $0.00 |
| 2025 | 28629 | CONSERVE - CONSERVATION FUTURES | $13.74 | $13.74 | $0.00 | $0.00 | $27.48 | $0.00 |
| 2025 | 28629 | CITYPT - CITY OF PT | $660.88 | $660.88 | $0.00 | $0.00 | $1321.76 | $0.00 |
| 2025 | 28629 | PORTPT - PORT DISTRICT | $187.01 | $186.99 | $0.00 | $0.00 | $374.00 | $0.00 |
| 2025 | 28629 | PUD1 - PUD #1 | $29.99 | $29.98 | $0.00 | $0.00 | $59.97 | $0.00 |
| 2025 | 28629 | HD2 - HOSP DIST #2 | $26.74 | $26.73 | $0.00 | $0.00 | $53.47 | $0.00 |
| 2025 | 28629 | SD50 - SCHOOL DIST #50 | $851.70 | $851.69 | $0.00 | $0.00 | $1703.39 | $0.00 |
| 2025 | 28629 | FD1 - FIRE DISTRICT #1 | $604.75 | $604.74 | $0.00 | $0.00 | $1209.49 | $0.00 |
| 2025 | 28629 | EMS1 - FIRE DIST #1 EMS | $232.60 | $232.60 | $0.00 | $0.00 | $465.20 | $0.00 |
| 2025 | 28629 | JCCD - JC Conservation District | $2.53 | $2.53 | $0.00 | $0.00 | $5.06 | $0.00 |
| 2025 | 28629 | NWA - Noxious Weed Assessment | $2.15 | $2.15 | $0.00 | $0.00 | $4.30 | $0.00 |
| 2025 | 28629 | TOTAL: | $4235.76 | $4235.66 | $0.00 | $0.00 | $8471.42 | $0.00 |
|
| 2025 | 28629 | $4235.76 | $4235.66 | $0.00 | $0.00 | $8471.42 | $0.00 |
Statement Details |
| 2024 | 28689 | STATE - STATE LEVY (SCHOOL) | $1087.43 | $1087.42 | $0.00 | $0.00 | $2174.85 | $0.00 |
| 2024 | 28689 | COUNTY - COUNTY LEVIES (CE, DD, VET, MH) | $465.33 | $465.30 | $0.00 | $0.00 | $930.63 | $0.00 |
| 2024 | 28689 | CONSERVE - CONSERVATION FUTURES | $13.96 | $13.95 | $0.00 | $0.00 | $27.91 | $0.00 |
| 2024 | 28689 | CITYPT - CITY OF PT | $664.89 | $664.87 | $0.00 | $0.00 | $1329.76 | $0.00 |
| 2024 | 28689 | PORTPT - PORT DISTRICT | $192.20 | $192.19 | $0.00 | $0.00 | $384.39 | $0.00 |
| 2024 | 28689 | PUD1 - PUD #1 | $30.57 | $30.56 | $0.00 | $0.00 | $61.13 | $0.00 |
| 2024 | 28689 | HD2 - HOSP DIST #2 | $27.15 | $27.15 | $0.00 | $0.00 | $54.30 | $0.00 |
| 2024 | 28689 | SD50 - SCHOOL DIST #50 | $879.79 | $879.77 | $0.00 | $0.00 | $1759.56 | $0.00 |
| 2024 | 28689 | FD1 - FIRE DISTRICT #1 | $615.26 | $615.26 | $0.00 | $0.00 | $1230.52 | $0.00 |
| 2024 | 28689 | EMS1 - FIRE DIST #1 EMS | $235.01 | $235.00 | $0.00 | $0.00 | $470.01 | $0.00 |
| 2024 | 28689 | JCCD - JC Conservation District | $2.53 | $2.53 | $0.00 | $0.00 | $5.06 | $0.00 |
| 2024 | 28689 | NWA - Noxious Weed Assessment | $2.15 | $2.15 | $0.00 | $0.00 | $4.30 | $0.00 |
| 2024 | 28689 | TOTAL: | $4216.27 | $4216.15 | $0.00 | $0.00 | $8432.42 | $0.00 |
|
| 2024 | 28689 | $4216.27 | $4216.15 | $0.00 | $0.00 | $8432.42 | $0.00 |
Statement Details |
| 2023 | 28731 | STATE - STATE LEVY (SCHOOL) | $1079.70 | $1079.69 | $0.00 | $0.00 | $2159.39 | $0.00 |
| 2023 | 28731 | COUNTY - COUNTY LEVIES (CE, DD, VET, MH) | $471.16 | $471.14 | $0.00 | $0.00 | $942.30 | $0.00 |
| 2023 | 28731 | CONSERVE - CONSERVATION FUTURES | $14.13 | $14.13 | $0.00 | $0.00 | $28.26 | $0.00 |
| 2023 | 28731 | CITYPT - CITY OF PT | $665.90 | $665.88 | $0.00 | $0.00 | $1331.78 | $0.00 |
| 2023 | 28731 | PORTPT - PORT DISTRICT | $198.48 | $198.47 | $0.00 | $0.00 | $396.95 | $0.00 |
| 2023 | 28731 | PUD1 - PUD #1 | $31.23 | $31.23 | $0.00 | $0.00 | $62.46 | $0.00 |
| 2023 | 28731 | HD2 - HOSP DIST #2 | $27.50 | $27.49 | $0.00 | $0.00 | $54.99 | $0.00 |
| 2023 | 28731 | SD50 - SCHOOL DIST #50 | $856.77 | $856.75 | $0.00 | $0.00 | $1713.52 | $0.00 |
| 2023 | 28731 | FD1 - FIRE DISTRICT #1 | $388.13 | $388.13 | $0.00 | $0.00 | $776.26 | $0.00 |
| 2023 | 28731 | EMS1 - FIRE DIST #1 EMS | $165.11 | $165.10 | $0.00 | $0.00 | $330.21 | $0.00 |
| 2023 | 28731 | JCCD - JC Conservation District | $2.53 | $2.53 | $0.00 | $0.00 | $5.06 | $0.00 |
| 2023 | 28731 | NWA - Noxious Weed Assessment | $2.15 | $2.15 | $0.00 | $0.00 | $4.30 | $0.00 |
| 2023 | 28731 | TOTAL: | $3902.79 | $3902.69 | $0.00 | $0.00 | $7805.48 | $0.00 |
|
| 2023 | 28731 | $3902.79 | $3902.69 | $0.00 | $0.00 | $7805.48 | $0.00 |
Values
| (+) Improvement Homesite Value: | + | $0 | |
| (+) Improvement Non-Homesite Value: | + | $392,807 | |
| (+) Land Homesite Value: | + | $0 | |
| (+) Land Non-Homesite Value: | + | $572,048 | |
| (+) Curr Use (HS): | + | $0 | $0 |
| (+) Curr Use (NHS): | + | $0 | $0 |
| | | -------------------------- | |
| (=) Market Value: | = | $964,855 | |
| (–) Productivity Loss: | – | $0 | |
| | | -------------------------- | |
| (=) Subtotal: | = | $964,855 | |
| (+) Senior Appraised Value: | + | $0 | |
| (+) Non-Senior Appraised Value: | + | $964,855 | |
| | | -------------------------- | |
| (=) Total Appraised Value: | = | $964,855 | |
| (–) Senior Exemption Loss: | – | $0 | |
| (–) Exemption Loss: | – | $0 | |
| | | -------------------------- | |
| (=) Taxable Value: | = | $964,855 | |
Taxing Jurisdiction
| Owner: | RAGGS BEACON LLC | | |
| % Ownership: | 100.0000000000% | | |
| Total Value: | $964,855 | | |
| Tax Area: | 0110 - C-50F1E1H2 |
| CE | COUNTY CURRENT EXPENSE | 0.9034619479 | $964,855 | $964,855 | $871.71 | | |
| CNTYDD | DEVELOPMENTAL DISABILITIES | 0.0052121823 | $964,855 | $964,855 | $5.03 | | |
| CNTYVET | VETERANS RELIEF | 0.0052777810 | $964,855 | $964,855 | $5.09 | | |
| MENTAL | MENTAL HEALTH | 0.0052121823 | $964,855 | $964,855 | $5.03 | | |
| PTGEN | CITY OF PT GENERAL | 0.8551967795 | $964,855 | $964,855 | $825.14 | | |
| PTLLL | CITY OF PT - LIBRARY LID LIFT | 0.4010114288 | $964,855 | $964,855 | $386.92 | | |
| PTMVBOND | CITY OF PT MV BOND | 0.0484717981 | $964,855 | $964,855 | $46.77 | | |
| HOSP2CASH | HOSP DIST #2 GENERAL | 0.0536075306 | $964,855 | $964,855 | $51.72 | | |
| SCH50BOND | SCHOOL DIST #50 BOND 2016 | 0.5377451389 | $964,855 | $964,855 | $518.85 | | |
| SCH50CP | SCHOOL DIST #50 CAP PROJ | 0.4573475088 | $964,855 | $964,855 | $441.27 | | |
| SCH50MO | SCHOOL DIST #50 EP & O | 0.8262822886 | $964,855 | $964,855 | $797.24 | | |
| CONSERVE | CONSERVATION FUTURES | 0.0275621078 | $964,855 | $964,855 | $26.59 | | |
| EMS1 | FIRE DIST #1 EMS | 0.4679948282 | $964,855 | $964,855 | $451.55 | | |
| FD1 | FIRE DIST #1 GENERAL | 1.2171942929 | $964,855 | $964,855 | $1,174.42 | | |
| PORTPT | PORT OF PT GENERAL | 0.1134941229 | $964,855 | $964,855 | $109.51 | | |
| PORTPTIDD | PORT OF PT IDD 2019 | 0.2577346692 | $964,855 | $964,855 | $248.68 | | |
| PUD1 | PUD #1 GENERAL | 0.0597888892 | $964,855 | $964,855 | $57.69 | | |
| STATE | STATE SCHOOL PART 1 | 1.4940692947 | $964,855 | $964,855 | $1,441.56 | | |
| STATE2 | STATE SCHOOL PART 2 | 0.8050170049 | $964,855 | $964,855 | $776.72 | | |
| | Total Tax Rate: | 8.5416817766 | | | | | |
| | | | | Taxes w/Current Exemptions: | $8,241.49 | | |
| | | | | Taxes w/o Exemptions: | $8,241.49 | | |
Improvement / Building
| Improvement #1: | Commercial/Industrial/Government Bldg | State Code: | 59 | 2704.0 sqft | Value: | $392,807 |
Sketch
Property Image
Land
| 1 | 6290-6263Q | | 0.1388 | 6046.00 | 0.00 | 0.00 | 0.00 | $572,048 | $0 |
Roll Value History
| 2026 | N/A | N/A | N/A | N/A | N/A |
| 2025 | $392,807 | $572,048 | $0 | $964,855 | $964,855 |
| 2024 | $399,895 | $572,048 | $0 | $971,943 | $971,943 |
| 2023 | $372,981 | $567,048 | $0 | $940,029 | $940,029 |
| 2022 | $355,220 | $562,048 | $0 | $917,268 | $917,268 |
Deed and Sales History
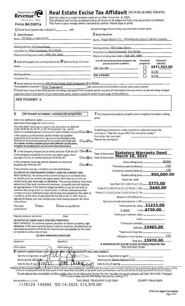
| 1 | 03/10/2025 | SWD | Statutory Warranty Deed | JILL SPIER | RAGGS BEACON LLC | | | $950,000.00 | 143993 | |
| 2 | 12/30/1998 | SWD | Statutory Warranty Deed | GOINS, JACK C/LOIS M | SPIER, JILL | 0 | 0 | $200,000.00 | 86124 | 0 |
Payout Agreement
| No payout information available.. |