Property
Account |
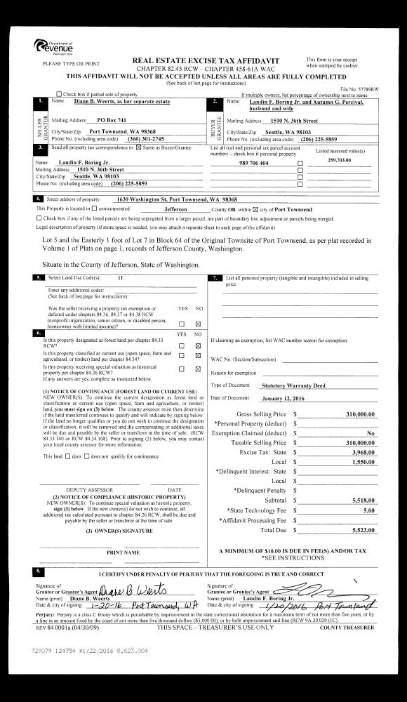
| Property ID: | 39440 | Abbreviated Legal Description: | PORT TOWNSEND O.T. BLK 64 LOT 5 (ALL), 7 (E1') |
| Parcel # / Geo ID: | 989706404 | Agent Code: | |
| Type: | Real | | |
| Tax Area: | 0110 - C-50F1E1H2 | Land Use Code | 11 |
| Open Space: | N | DFL | N |
| Historic Property: | N | Remodel Property: | N |
| Multi-Family Redevelopment: | N | | |
| Township: | 30N | Section: | 11 |
| Range: | 1W |
Location |
| Address: | 1630 WASHINGTON ST PORT TOWNSEND, WA 98368 | Mapsco: | 120/005 |
| Neighborhood: | PTOT ABOVE BLUFF TO LAWRENCE ST, WEST OF TYLER | Map ID: | |
| Neighborhood CD: | 6280 |
Owner |
| Name: | LANDIN F BORING JR & AUTUMN G PERCIVAL | Owner ID: | 94868 |
| Mailing Address: | PO BOX 1854 PORT TOWNSEND, WA 98368 | % Ownership: | 100.0000000000% |
| | | Exemptions: | SNR/DSBL |
Pay Tax Due
There is currently No Amount Due on this property.
Taxes and Assessment Details
Property Tax Information as of
03/12/2026
Click on "Statement Details" to expand or collapse a tax statement.
* Please enter a valid date ** Please enter a valid date *
Statement Details |
| | TOTAL: | $0.00 | $0.00 | $0.00 | $0.00 | $0.00 | $0.00 |
|
| | $0.00 | $0.00 | $0.00 | $0.00 | $0.00 | $0.00 |
Values
| (+) Improvement Homesite Value: | + | $280,024 | |
| (+) Improvement Non-Homesite Value: | + | $0 | |
| (+) Land Homesite Value: | + | $234,000 | |
| (+) Land Non-Homesite Value: | + | $0 | |
| (+) Curr Use (HS): | + | $0 | $0 |
| (+) Curr Use (NHS): | + | $0 | $0 |
| | | -------------------------- | |
| (=) Market Value: | = | $514,024 | |
| (–) Productivity Loss: | – | $0 | |
| | | -------------------------- | |
| (=) Subtotal: | = | $514,024 | |
| (+) Senior Appraised Value: | + | $499,806 | |
| (+) Non-Senior Appraised Value: | + | $0 | |
| | | -------------------------- | |
| (=) Total Appraised Value: | = | $499,806 | |
| (–) Senior Exemption Loss: | – | $299,884 | |
| (–) Exemption Loss: | – | $0 | |
| | | -------------------------- | |
| (=) Taxable Value: | = | $199,922 | |
Taxing Jurisdiction
| Owner: | LANDIN F BORING JR & AUTUMN G PERCIVAL | | |
| % Ownership: | 100.0000000000% | | |
| Total Value: | $514,024 | | |
| Tax Area: | 0110 - C-50F1E1H2 |
| CE | COUNTY CURRENT EXPENSE | 0.9034619479 | $514,024 | $199,922 | $180.62 | | |
| CNTYDD | DEVELOPMENTAL DISABILITIES | 0.0052121823 | $514,024 | $199,922 | $1.04 | | |
| CNTYVET | VETERANS RELIEF | 0.0052777810 | $514,024 | $199,922 | $1.06 | | |
| MENTAL | MENTAL HEALTH | 0.0052121823 | $514,024 | $199,922 | $1.04 | | |
| PTGEN | CITY OF PT GENERAL | 0.8551967795 | $514,024 | $199,922 | $170.97 | | |
| PTLLL | CITY OF PT - LIBRARY LID LIFT | 0.4010114288 | $514,024 | $199,922 | $80.17 | | |
| PTMVBOND | CITY OF PT MV BOND | 0.0000000000 | $514,024 | $0 | $0.00 | | |
| HOSP2CASH | HOSP DIST #2 GENERAL | 0.0536075306 | $514,024 | $199,922 | $10.72 | | |
| SCH50BOND | SCHOOL DIST #50 BOND 2016 | 0.0000000000 | $514,024 | $0 | $0.00 | | |
| SCH50CP | SCHOOL DIST #50 CAP PROJ | 0.0000000000 | $514,024 | $0 | $0.00 | | |
| SCH50MO | SCHOOL DIST #50 EP & O | 0.0000000000 | $514,024 | $0 | $0.00 | | |
| CONSERVE | CONSERVATION FUTURES | 0.0275621078 | $514,024 | $199,922 | $5.51 | | |
| EMS1 | FIRE DIST #1 EMS | 0.4679948282 | $514,024 | $199,922 | $93.56 | | |
| FD1 | FIRE DIST #1 GENERAL | 1.2171942929 | $514,024 | $199,922 | $243.34 | | |
| PORTPT | PORT OF PT GENERAL | 0.1134941229 | $514,024 | $199,922 | $22.69 | | |
| PORTPTIDD | PORT OF PT IDD 2019 | 0.2577346692 | $514,024 | $199,922 | $51.53 | | |
| PUD1 | PUD #1 GENERAL | 0.0597888892 | $514,024 | $199,922 | $11.95 | | |
| STATE | STATE SCHOOL PART 1 | 1.4940692947 | $514,024 | $199,922 | $298.70 | | |
| STATE2 | STATE SCHOOL PART 2 | 0.0000000000 | $514,024 | $0 | $0.00 | | |
| | Total Tax Rate: | 5.8668180373 | | | | | |
| | | | | Taxes w/Current Exemptions: | $1,172.90 | | |
| | | | | Taxes w/o Exemptions: | $4,390.64 | | |
Improvement / Building
| Improvement #1: | Residential Bldg | State Code: | 11 | 1526.0 sqft | Value: | $280,024 |
| Bathrooms (#): | 1 (FULL) | Bathrooms (#): | 1 (HALF) | | Bedrooms (#): | 3 | Exterior Wall: | PL/T1 | | Fireplace: | SIN 1-AVG | Floor Construction: | FRAME | | Foundation: | CONBL | Heating/Cooling: | ELBB | | Roof Cover: | COMP |   |   |
|
| | Type | Description | Class CD | Sub Class CD | Year Built | Area |
| | MA | Main Area | 3+ | 1S | 1963 | 1526.0 |
| | HCPOR | House Concrete Porch | 3 | * | 1963 | 8.0 |
| | GATT | House Attached Garage | 3 | 1S | 1963 | 550.0 |
| | HATTIC | House Attic | 3 | * | 1963 | 228.0 |
| | HRPO | House Roof Patio | 3 | * | 1963 | 150.0 |
| | CONCD | Concrete Drive | 3 | * | 1963 | 770.0 |
Sketch
Property Image
Land
| 1 | 6280-1165L | Uptown Std Lot (Avg) | 0.0000 | 0.00 | 0.00 | 0.00 | 1.00 | $234,000 | $0 |
Roll Value History
| 2026 | N/A | N/A | N/A | N/A | N/A |
| 2025 | $280,024 | $234,000 | $0 | $514,024 | $199,922 |
| 2024 | $264,816 | $234,990 | $0 | $499,806 | $199,922 |
| 2023 | $253,303 | $218,800 | $0 | $472,103 | $472,103 |
| 2022 | $253,302 | $213,800 | $0 | $467,102 | $467,102 |
Deed and Sales History
| 1 | 01/12/2016 | SWD | Statutory Warranty Deed | DIANE B WEERTS | LANDIN F BORING JR & AUTUMN G PERCIVAL | | | $310,000.00 | 124754 | |
| 2 | 05/09/2000 | SWD | Statutory Warranty Deed | LINEBERRY, MICHAEL J/ELIZ | WEERTS, DIANE B | 0 | 0 | $160,000.00 | 89567 | 0 |
| 3 | 03/20/1998 | SWD | Statutory Warranty Deed | BANKERS TRUST COMPANY | AMRESCO RESIDENT MORTGAGE CO | 0 | 0 | $0.00 | 84072 | 0 |
| 4 | 03/20/1998 | SWD | Statutory Warranty Deed | AMRESCO RESIDENTIAL MRTG | LINEBERRY, MICHAEL J/ELIZABETH | 0 | 0 | $119,500.00 | 84073 | 0 |
| 5 | 06/27/1997 | TRED | Trustee Deed | DCBL INC | BANKER'S TRUST COMPANY | 0 | 0 | $0.00 | 82319 | 0 |
| 6 | 02/21/1996 | QCD | Quit Claim Deed | WEDDLE, PATRICIA H/EST | WEDDLE, G HAROLD | 0 | 0 | $0.00 | 78968 | 0 |
Payout Agreement
| No payout information available.. |