Property
Account |
| Property ID: | 39534 | Abbreviated Legal Description: | PORT TOWNSEND O.T. BLK 107 LOTS 5 & 7 |
| Parcel # / Geo ID: | 989710704 | Agent Code: | |
| Type: | Real | | |
| Tax Area: | 0110 - C-50F1E1H2 | Land Use Code | 11 |
| Open Space: | N | DFL | N |
| Historic Property: | N | Remodel Property: | N |
| Multi-Family Redevelopment: | N | | |
| Township: | 30N | Section: | 2 |
| Range: | 1W |
Location |
| Address: | 518 FILLMORE ST PORT TOWNSEND, WA 98368 | Mapsco: | 123/011 |
| Neighborhood: | PTOT ABOVE BLUFF TO LAWRENCE ST, WEST OF TYLER | Map ID: | |
| Neighborhood CD: | 6280 |
Owner |
| Name: | ALANNA SHERSTAD TRUST | Owner ID: | 112082 |
| Mailing Address: | ALANNA SHERSTAD-MAY TRUSTEE MATTHEW SHERSTAD TRUSTEE 518 FILLMORE ST PORT TOWNSEND, WA 98368-6609 | % Ownership: | 100.0000000000% |
| | | Exemptions: | |
Pay Tax Due
Select the appropriate checkbox next to the year to be paid. Multiple years may be selected.
*Convenience Fee not included
Taxes and Assessment Details
Property Tax Information as of
03/10/2026
Click on "Statement Details" to expand or collapse a tax statement.
* Please enter a valid date ** Please enter a valid date *
Statement Details |
| 2026 | 28707 | STATE - STATE LEVY (SCHOOL) | $978.87 | $978.85 | $0.00 | $0.00 | $0.00 | $1957.72 |
| 2026 | 28707 | COUNTY - COUNTY LEVIES (CE, DD, VET, MH) | $391.35 | $391.34 | $0.00 | $0.00 | $0.00 | $782.69 |
| 2026 | 28707 | CONSERVE - CONSERVATION FUTURES | $11.74 | $11.73 | $0.00 | $0.00 | $0.00 | $23.47 |
| 2026 | 28707 | CITYPT - CITY OF PT | $555.49 | $555.47 | $0.00 | $0.00 | $0.00 | $1110.96 |
| 2026 | 28707 | PORTPT - PORT DISTRICT | $158.06 | $158.05 | $0.00 | $0.00 | $0.00 | $316.11 |
| 2026 | 28707 | PUD1 - PUD #1 | $25.46 | $25.45 | $0.00 | $0.00 | $0.00 | $50.91 |
| 2026 | 28707 | HD2 - HOSP DIST #2 | $22.83 | $22.82 | $0.00 | $0.00 | $0.00 | $45.65 |
| 2026 | 28707 | SD50 - SCHOOL DIST #50 | $775.47 | $775.47 | $0.00 | $0.00 | $0.00 | $1550.94 |
| 2026 | 28707 | FD1 - FIRE DISTRICT #1 | $518.23 | $518.23 | $0.00 | $0.00 | $0.00 | $1036.46 |
| 2026 | 28707 | EMS1 - FIRE DIST #1 EMS | $199.26 | $199.25 | $0.00 | $0.00 | $0.00 | $398.51 |
| 2026 | 28707 | JCCD - JC Conservation District | $2.55 | $2.55 | $0.00 | $0.00 | $0.00 | $5.10 |
| 2026 | 28707 | NWA - Noxious Weed Assessment | $2.98 | $2.97 | $0.00 | $0.00 | $0.00 | $5.95 |
| 2026 | 28707 | TOTAL: | $3642.29 | $3642.18 | $0.00 | $0.00 | $0.00 | $7284.47 |
|
| 2026 | 28707 | $3642.29 | $3642.18 | $0.00 | $0.00 | $0.00 | $7284.47 |
Statement Details |
| 2025 | 28779 | STATE - STATE LEVY (SCHOOL) | $779.37 | $779.36 | $0.00 | $0.00 | $1558.73 | $0.00 |
| 2025 | 28779 | COUNTY - COUNTY LEVIES (CE, DD, VET, MH) | $306.50 | $306.46 | $0.00 | $0.00 | $612.96 | $0.00 |
| 2025 | 28779 | CONSERVE - CONSERVATION FUTURES | $9.19 | $9.19 | $0.00 | $0.00 | $18.38 | $0.00 |
| 2025 | 28779 | CITYPT - CITY OF PT | $441.99 | $441.97 | $0.00 | $0.00 | $883.96 | $0.00 |
| 2025 | 28779 | PORTPT - PORT DISTRICT | $125.07 | $125.06 | $0.00 | $0.00 | $250.13 | $0.00 |
| 2025 | 28779 | PUD1 - PUD #1 | $20.06 | $20.05 | $0.00 | $0.00 | $40.11 | $0.00 |
| 2025 | 28779 | HD2 - HOSP DIST #2 | $17.88 | $17.88 | $0.00 | $0.00 | $35.76 | $0.00 |
| 2025 | 28779 | SD50 - SCHOOL DIST #50 | $569.60 | $569.58 | $0.00 | $0.00 | $1139.18 | $0.00 |
| 2025 | 28779 | FD1 - FIRE DISTRICT #1 | $404.44 | $404.43 | $0.00 | $0.00 | $808.87 | $0.00 |
| 2025 | 28779 | EMS1 - FIRE DIST #1 EMS | $155.56 | $155.55 | $0.00 | $0.00 | $311.11 | $0.00 |
| 2025 | 28779 | JCCD - JC Conservation District | $2.55 | $2.55 | $0.00 | $0.00 | $5.10 | $0.00 |
| 2025 | 28779 | NWA - Noxious Weed Assessment | $2.15 | $2.15 | $0.00 | $0.00 | $4.30 | $0.00 |
| 2025 | 28779 | TOTAL: | $2834.36 | $2834.23 | $0.00 | $0.00 | $5668.59 | $0.00 |
|
| 2025 | 28779 | $2834.36 | $2834.23 | $0.00 | $0.00 | $5668.59 | $0.00 |
Statement Details |
| 2024 | 28839 | STATE - STATE LEVY (SCHOOL) | $711.87 | $711.86 | $0.00 | $0.00 | $1423.73 | $0.00 |
| 2024 | 28839 | COUNTY - COUNTY LEVIES (CE, DD, VET, MH) | $304.62 | $304.61 | $0.00 | $0.00 | $609.23 | $0.00 |
| 2024 | 28839 | CONSERVE - CONSERVATION FUTURES | $9.14 | $9.13 | $0.00 | $0.00 | $18.27 | $0.00 |
| 2024 | 28839 | CITYPT - CITY OF PT | $435.26 | $435.25 | $0.00 | $0.00 | $870.51 | $0.00 |
| 2024 | 28839 | PORTPT - PORT DISTRICT | $125.82 | $125.81 | $0.00 | $0.00 | $251.63 | $0.00 |
| 2024 | 28839 | PUD1 - PUD #1 | $20.01 | $20.01 | $0.00 | $0.00 | $40.02 | $0.00 |
| 2024 | 28839 | HD2 - HOSP DIST #2 | $17.78 | $17.77 | $0.00 | $0.00 | $35.55 | $0.00 |
| 2024 | 28839 | SD50 - SCHOOL DIST #50 | $575.94 | $575.93 | $0.00 | $0.00 | $1151.87 | $0.00 |
| 2024 | 28839 | FD1 - FIRE DISTRICT #1 | $402.78 | $402.77 | $0.00 | $0.00 | $805.55 | $0.00 |
| 2024 | 28839 | EMS1 - FIRE DIST #1 EMS | $153.85 | $153.84 | $0.00 | $0.00 | $307.69 | $0.00 |
| 2024 | 28839 | JCCD - JC Conservation District | $2.55 | $2.55 | $0.00 | $0.00 | $5.10 | $0.00 |
| 2024 | 28839 | NWA - Noxious Weed Assessment | $2.15 | $2.15 | $0.00 | $0.00 | $4.30 | $0.00 |
| 2024 | 28839 | TOTAL: | $2761.77 | $2761.68 | $0.00 | $0.00 | $5523.45 | $0.00 |
|
| 2024 | 28839 | $2761.77 | $2761.68 | $0.00 | $0.00 | $5523.45 | $0.00 |
Statement Details |
| 2023 | 28881 | STATE - STATE LEVY (SCHOOL) | $718.46 | $718.46 | $0.00 | $0.00 | $1436.92 | $0.00 |
| 2023 | 28881 | COUNTY - COUNTY LEVIES (CE, DD, VET, MH) | $313.52 | $313.51 | $0.00 | $0.00 | $627.03 | $0.00 |
| 2023 | 28881 | CONSERVE - CONSERVATION FUTURES | $9.40 | $9.40 | $0.00 | $0.00 | $18.80 | $0.00 |
| 2023 | 28881 | CITYPT - CITY OF PT | $443.11 | $443.09 | $0.00 | $0.00 | $886.20 | $0.00 |
| 2023 | 28881 | PORTPT - PORT DISTRICT | $132.07 | $132.07 | $0.00 | $0.00 | $264.14 | $0.00 |
| 2023 | 28881 | PUD1 - PUD #1 | $20.78 | $20.78 | $0.00 | $0.00 | $41.56 | $0.00 |
| 2023 | 28881 | HD2 - HOSP DIST #2 | $18.30 | $18.29 | $0.00 | $0.00 | $36.59 | $0.00 |
| 2023 | 28881 | SD50 - SCHOOL DIST #50 | $570.11 | $570.11 | $0.00 | $0.00 | $1140.22 | $0.00 |
| 2023 | 28881 | FD1 - FIRE DISTRICT #1 | $258.28 | $258.27 | $0.00 | $0.00 | $516.55 | $0.00 |
| 2023 | 28881 | EMS1 - FIRE DIST #1 EMS | $109.87 | $109.86 | $0.00 | $0.00 | $219.73 | $0.00 |
| 2023 | 28881 | JCCD - JC Conservation District | $2.55 | $2.55 | $0.00 | $0.00 | $5.10 | $0.00 |
| 2023 | 28881 | NWA - Noxious Weed Assessment | $2.15 | $2.15 | $0.00 | $0.00 | $4.30 | $0.00 |
| 2023 | 28881 | TOTAL: | $2598.60 | $2598.54 | $0.00 | $0.00 | $5197.14 | $0.00 |
|
| 2023 | 28881 | $2598.60 | $2598.54 | $0.00 | $0.00 | $5197.14 | $0.00 |
Values
| (+) Improvement Homesite Value: | + | $0 | |
| (+) Improvement Non-Homesite Value: | + | $521,519 | |
| (+) Land Homesite Value: | + | $0 | |
| (+) Land Non-Homesite Value: | + | $330,000 | |
| (+) Curr Use (HS): | + | $0 | $0 |
| (+) Curr Use (NHS): | + | $0 | $0 |
| | | -------------------------- | |
| (=) Market Value: | = | $851,519 | |
| (–) Productivity Loss: | – | $0 | |
| | | -------------------------- | |
| (=) Subtotal: | = | $851,519 | |
| (+) Senior Appraised Value: | + | $0 | |
| (+) Non-Senior Appraised Value: | + | $851,519 | |
| | | -------------------------- | |
| (=) Total Appraised Value: | = | $851,519 | |
| (–) Senior Exemption Loss: | – | $0 | |
| (–) Exemption Loss: | – | $0 | |
| | | -------------------------- | |
| (=) Taxable Value: | = | $851,519 | |
Taxing Jurisdiction
| Owner: | ALANNA SHERSTAD TRUST | | |
| % Ownership: | 100.0000000000% | | |
| Total Value: | $851,519 | | |
| Tax Area: | 0110 - C-50F1E1H2 |
| CE | COUNTY CURRENT EXPENSE | 0.9034619479 | $851,519 | $851,519 | $769.32 | | |
| CNTYDD | DEVELOPMENTAL DISABILITIES | 0.0052121823 | $851,519 | $851,519 | $4.44 | | |
| CNTYVET | VETERANS RELIEF | 0.0052777810 | $851,519 | $851,519 | $4.49 | | |
| MENTAL | MENTAL HEALTH | 0.0052121823 | $851,519 | $851,519 | $4.44 | | |
| PTGEN | CITY OF PT GENERAL | 0.8551967795 | $851,519 | $851,519 | $728.22 | | |
| PTLLL | CITY OF PT - LIBRARY LID LIFT | 0.4010114288 | $851,519 | $851,519 | $341.47 | | |
| PTMVBOND | CITY OF PT MV BOND | 0.0484717981 | $851,519 | $851,519 | $41.27 | | |
| HOSP2CASH | HOSP DIST #2 GENERAL | 0.0536075306 | $851,519 | $851,519 | $45.65 | | |
| SCH50BOND | SCHOOL DIST #50 BOND 2016 | 0.5377451389 | $851,519 | $851,519 | $457.90 | | |
| SCH50CP | SCHOOL DIST #50 CAP PROJ | 0.4573475088 | $851,519 | $851,519 | $389.44 | | |
| SCH50MO | SCHOOL DIST #50 EP & O | 0.8262822886 | $851,519 | $851,519 | $703.60 | | |
| CONSERVE | CONSERVATION FUTURES | 0.0275621078 | $851,519 | $851,519 | $23.47 | | |
| EMS1 | FIRE DIST #1 EMS | 0.4679948282 | $851,519 | $851,519 | $398.51 | | |
| FD1 | FIRE DIST #1 GENERAL | 1.2171942929 | $851,519 | $851,519 | $1,036.46 | | |
| PORTPT | PORT OF PT GENERAL | 0.1134941229 | $851,519 | $851,519 | $96.64 | | |
| PORTPTIDD | PORT OF PT IDD 2019 | 0.2577346692 | $851,519 | $851,519 | $219.47 | | |
| PUD1 | PUD #1 GENERAL | 0.0597888892 | $851,519 | $851,519 | $50.91 | | |
| STATE | STATE SCHOOL PART 1 | 1.4940692947 | $851,519 | $851,519 | $1,272.23 | | |
| STATE2 | STATE SCHOOL PART 2 | 0.8050170049 | $851,519 | $851,519 | $685.49 | | |
| | Total Tax Rate: | 8.5416817766 | | | | | |
| | | | | Taxes w/Current Exemptions: | $7,273.42 | | |
| | | | | Taxes w/o Exemptions: | $7,273.42 | | |
Improvement / Building
| Improvement #1: | Residential Bldg | State Code: | 11 | 2227.0 sqft | Value: | $521,519 |
| Bathrooms (#): | 1 (FULL) | Bathrooms (#): | 1 (HALF) | | Bedrooms (#): | 4 | Exterior Wall: | SI/ST | | Fireplace: | SIN 2-AVG | Fireplace: | WD ST-AVG | | Floor Construction: | FRAME | Foundation: | CONBL | | Heating/Cooling: | WD/NO | Roof Cover: | COMP |
|
| | Type | Description | Class CD | Sub Class CD | Year Built | Area |
| | MA | Main Area | 5- | 2S | 1878 | 1392.0 |
| | MA2 | Second Floor Main Area | 5- | 2S | 1878 | 835.0 |
| | PATIO | House Patio | 4 | * | 1878 | 64.0 |
| | HWPOR | House Wood Porch | 4 | * | 1878 | 138.0 |
| | HENCL | House Enclosure | 4 | * | 1878 | 96.0 |
| | GATT | House Attached Garage | 4 | 2S | 1878 | 480.0 |
Sketch
Property Image
Land
| 1 | 6280-1165L | | 0.0000 | 0.00 | 0.00 | 0.00 | 1.00 | $230,000 | $0 |
| 2 | 6280-1165L | | 0.0000 | 0.00 | 0.00 | 0.00 | 1.00 | $100,000 | $0 |
Roll Value History
| 2026 | N/A | N/A | N/A | N/A | N/A |
| 2025 | $521,519 | $330,000 | $0 | $851,519 | $851,519 |
| 2024 | $319,257 | $330,750 | $0 | $650,007 | $650,007 |
| 2023 | $305,377 | $310,000 | $0 | $615,377 | $615,377 |
| 2022 | $305,377 | $305,000 | $0 | $610,377 | $610,377 |
Deed and Sales History
| 1 | 01/22/2025 | SWD | Statutory Warranty Deed | PROSAURUS LLC | ALANNA SHERSTAD TRUST | | | $905,000.00 | 143823 | |
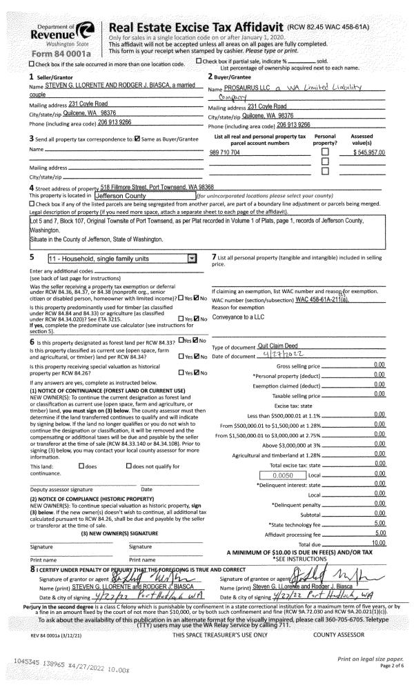
| 2 | 04/27/2022 | QCD | Quit Claim Deed | STEVEN G LLORENTE & RODGER J BIASCA | PROSAURUS LLC | | | | 138965 | |
| 3 | 07/30/2020 | SWD | Statutory Warranty Deed | ALLAN & ALLAN LLC | STEVEN G LLORENTE & RODGER J BIASCA | | | $666,500.00 | 134799 | |
| 4 | 07/20/2006 | QCD | Quit Claim Deed | ALLAN, PHILIP D | ALLAN & ALLAN LLC | | | $0.00 | 107143 | 0 |
| 5 | 07/07/2006 | QCD | Quit Claim Deed | ALLAN & ALLAN LLC A WASHI | ALLAN, PHILIP D | | | $0.00 | 107081 | 0 |
| 6 | 03/15/2004 | QCD | Quit Claim Deed | ALLAN, PHILIP/JAMES R | ALLAN & ALLAN, LLC | 0 | 0 | $0.00 | 99936 | 0 |
| 7 | 11/12/2003 | QCD | Quit Claim Deed | ALLAN, ROBERT A | ALLAN, JAMES R/ALLAN, PHILIP | 0 | 0 | $0.00 | 99007 | 0 |
| 8 | 05/07/1997 | QCD | Quit Claim Deed | ALLAN, HELEN L | ALLAN, ROBERT A | 0 | 0 | $0.00 | 81941 | 0 |
Payout Agreement
| No payout information available.. |