Property
Account |
| Property ID: | 39618 | Abbreviated Legal Description: | PORT TOWNSEND O.T. BLK 138 LOTS 2 & 4(N62.5'),6(E1.70' OF N62.50')BND BY LLA #124959 |
| Parcel # / Geo ID: | 989713802 | Agent Code: | |
| Type: | Real | | |
| Tax Area: | 0110 - C-50F1E1H2 | Land Use Code | 11 |
| Open Space: | N | DFL | N |
| Historic Property: | N | Remodel Property: | N |
| Multi-Family Redevelopment: | N | | |
| Township: | 30N | Section: | 2 |
| Range: | 1W |
Location |
| Address: | 633 QUINCY ST PORT TOWNSEND, WA 98368 | Mapsco: | 126/007 |
| Neighborhood: | PTOT ABOVE BLUFF TO LAWRENCE ST, EAST OF TYLER | Map ID: | |
| Neighborhood CD: | 6285 |
Owner |
| Name: | JOHN & JO ANN AKLONIS LIVING REVOCABLE TRUST | Owner ID: | 101296 |
| Mailing Address: | JOHN J AKLONIS TRUSTEE JO ANN AKLONIS TRUSTEE 633 QUINCY ST PORT TOWNSEND, WA 98368-5522 | % Ownership: | 100.0000000000% |
| | | Exemptions: | |
Pay Tax Due
There is currently No Amount Due on this property.
Taxes and Assessment Details
Property Tax Information as of
03/12/2026
Click on "Statement Details" to expand or collapse a tax statement.
* Please enter a valid date ** Please enter a valid date *
Statement Details |
| 2026 | 28791 | STATE - STATE LEVY (SCHOOL) | $1058.87 | $1058.85 | $0.00 | $0.00 | $2117.72 | $0.00 |
| 2026 | 28791 | COUNTY - COUNTY LEVIES (CE, DD, VET, MH) | $423.33 | $423.32 | $0.00 | $0.00 | $846.65 | $0.00 |
| 2026 | 28791 | CONSERVE - CONSERVATION FUTURES | $12.70 | $12.69 | $0.00 | $0.00 | $25.39 | $0.00 |
| 2026 | 28791 | CITYPT - CITY OF PT | $600.89 | $600.87 | $0.00 | $0.00 | $1201.76 | $0.00 |
| 2026 | 28791 | PORTPT - PORT DISTRICT | $170.97 | $170.97 | $0.00 | $0.00 | $341.94 | $0.00 |
| 2026 | 28791 | PUD1 - PUD #1 | $27.54 | $27.53 | $0.00 | $0.00 | $55.07 | $0.00 |
| 2026 | 28791 | HD2 - HOSP DIST #2 | $24.69 | $24.69 | $0.00 | $0.00 | $49.38 | $0.00 |
| 2026 | 28791 | SD50 - SCHOOL DIST #50 | $838.85 | $838.84 | $0.00 | $0.00 | $1677.69 | $0.00 |
| 2026 | 28791 | FD1 - FIRE DISTRICT #1 | $560.59 | $560.58 | $0.00 | $0.00 | $1121.17 | $0.00 |
| 2026 | 28791 | EMS1 - FIRE DIST #1 EMS | $215.54 | $215.54 | $0.00 | $0.00 | $431.08 | $0.00 |
| 2026 | 28791 | JCCD - JC Conservation District | $2.55 | $2.55 | $0.00 | $0.00 | $5.10 | $0.00 |
| 2026 | 28791 | NWA - Noxious Weed Assessment | $2.98 | $2.97 | $0.00 | $0.00 | $5.95 | $0.00 |
| 2026 | 28791 | TOTAL: | $3939.50 | $3939.40 | $0.00 | $0.00 | $7878.90 | $0.00 |
|
| 2026 | 28791 | $3939.50 | $3939.40 | $0.00 | $0.00 | $7878.90 | $0.00 |
Statement Details |
| 2025 | 28863 | STATE - STATE LEVY (SCHOOL) | $1075.11 | $1075.10 | $0.00 | $0.00 | $2150.21 | $0.00 |
| 2025 | 28863 | COUNTY - COUNTY LEVIES (CE, DD, VET, MH) | $422.77 | $422.77 | $0.00 | $0.00 | $845.54 | $0.00 |
| 2025 | 28863 | CONSERVE - CONSERVATION FUTURES | $12.68 | $12.67 | $0.00 | $0.00 | $25.35 | $0.00 |
| 2025 | 28863 | CITYPT - CITY OF PT | $609.70 | $609.68 | $0.00 | $0.00 | $1219.38 | $0.00 |
| 2025 | 28863 | PORTPT - PORT DISTRICT | $172.53 | $172.51 | $0.00 | $0.00 | $345.04 | $0.00 |
| 2025 | 28863 | PUD1 - PUD #1 | $27.67 | $27.66 | $0.00 | $0.00 | $55.33 | $0.00 |
| 2025 | 28863 | HD2 - HOSP DIST #2 | $24.67 | $24.66 | $0.00 | $0.00 | $49.33 | $0.00 |
| 2025 | 28863 | SD50 - SCHOOL DIST #50 | $785.73 | $785.72 | $0.00 | $0.00 | $1571.45 | $0.00 |
| 2025 | 28863 | FD1 - FIRE DISTRICT #1 | $557.90 | $557.90 | $0.00 | $0.00 | $1115.80 | $0.00 |
| 2025 | 28863 | EMS1 - FIRE DIST #1 EMS | $214.59 | $214.58 | $0.00 | $0.00 | $429.17 | $0.00 |
| 2025 | 28863 | JCCD - JC Conservation District | $2.55 | $2.55 | $0.00 | $0.00 | $5.10 | $0.00 |
| 2025 | 28863 | NWA - Noxious Weed Assessment | $2.15 | $2.15 | $0.00 | $0.00 | $4.30 | $0.00 |
| 2025 | 28863 | TOTAL: | $3908.05 | $3907.95 | $0.00 | $0.00 | $7816.00 | $0.00 |
|
| 2025 | 28863 | $3908.05 | $3907.95 | $0.00 | $0.00 | $7816.00 | $0.00 |
Statement Details |
| 2024 | 28923 | STATE - STATE LEVY (SCHOOL) | $942.78 | $942.77 | $0.00 | $0.00 | $1885.55 | $0.00 |
| 2024 | 28923 | COUNTY - COUNTY LEVIES (CE, DD, VET, MH) | $403.43 | $403.42 | $0.00 | $0.00 | $806.85 | $0.00 |
| 2024 | 28923 | CONSERVE - CONSERVATION FUTURES | $12.10 | $12.09 | $0.00 | $0.00 | $24.19 | $0.00 |
| 2024 | 28923 | CITYPT - CITY OF PT | $576.44 | $576.42 | $0.00 | $0.00 | $1152.86 | $0.00 |
| 2024 | 28923 | PORTPT - PORT DISTRICT | $166.64 | $166.62 | $0.00 | $0.00 | $333.26 | $0.00 |
| 2024 | 28923 | PUD1 - PUD #1 | $26.50 | $26.50 | $0.00 | $0.00 | $53.00 | $0.00 |
| 2024 | 28923 | HD2 - HOSP DIST #2 | $23.54 | $23.54 | $0.00 | $0.00 | $47.08 | $0.00 |
| 2024 | 28923 | SD50 - SCHOOL DIST #50 | $762.75 | $762.75 | $0.00 | $0.00 | $1525.50 | $0.00 |
| 2024 | 28923 | FD1 - FIRE DISTRICT #1 | $533.42 | $533.42 | $0.00 | $0.00 | $1066.84 | $0.00 |
| 2024 | 28923 | EMS1 - FIRE DIST #1 EMS | $203.75 | $203.74 | $0.00 | $0.00 | $407.49 | $0.00 |
| 2024 | 28923 | JCCD - JC Conservation District | $2.55 | $2.55 | $0.00 | $0.00 | $5.10 | $0.00 |
| 2024 | 28923 | NWA - Noxious Weed Assessment | $2.15 | $2.15 | $0.00 | $0.00 | $4.30 | $0.00 |
| 2024 | 28923 | TOTAL: | $3656.05 | $3655.97 | $0.00 | $0.00 | $7312.02 | $0.00 |
|
| 2024 | 28923 | $3656.05 | $3655.97 | $0.00 | $0.00 | $7312.02 | $0.00 |
Statement Details |
| 2023 | 28965 | STATE - STATE LEVY (SCHOOL) | $953.42 | $953.41 | $0.00 | $0.00 | $1906.83 | $0.00 |
| 2023 | 28965 | COUNTY - COUNTY LEVIES (CE, DD, VET, MH) | $416.04 | $416.03 | $0.00 | $0.00 | $832.07 | $0.00 |
| 2023 | 28965 | CONSERVE - CONSERVATION FUTURES | $12.48 | $12.47 | $0.00 | $0.00 | $24.95 | $0.00 |
| 2023 | 28965 | CITYPT - CITY OF PT | $588.01 | $588.01 | $0.00 | $0.00 | $1176.02 | $0.00 |
| 2023 | 28965 | PORTPT - PORT DISTRICT | $175.26 | $175.26 | $0.00 | $0.00 | $350.52 | $0.00 |
| 2023 | 28965 | PUD1 - PUD #1 | $27.58 | $27.58 | $0.00 | $0.00 | $55.16 | $0.00 |
| 2023 | 28965 | HD2 - HOSP DIST #2 | $24.28 | $24.28 | $0.00 | $0.00 | $48.56 | $0.00 |
| 2023 | 28965 | SD50 - SCHOOL DIST #50 | $756.56 | $756.55 | $0.00 | $0.00 | $1513.11 | $0.00 |
| 2023 | 28965 | FD1 - FIRE DISTRICT #1 | $342.74 | $342.73 | $0.00 | $0.00 | $685.47 | $0.00 |
| 2023 | 28965 | EMS1 - FIRE DIST #1 EMS | $145.80 | $145.79 | $0.00 | $0.00 | $291.59 | $0.00 |
| 2023 | 28965 | JCCD - JC Conservation District | $2.55 | $2.55 | $0.00 | $0.00 | $5.10 | $0.00 |
| 2023 | 28965 | NWA - Noxious Weed Assessment | $2.15 | $2.15 | $0.00 | $0.00 | $4.30 | $0.00 |
| 2023 | 28965 | TOTAL: | $3446.87 | $3446.81 | $0.00 | $0.00 | $6893.68 | $0.00 |
|
| 2023 | 28965 | $3446.87 | $3446.81 | $0.00 | $0.00 | $6893.68 | $0.00 |
Values
| (+) Improvement Homesite Value: | + | $0 | |
| (+) Improvement Non-Homesite Value: | + | $665,362 | |
| (+) Land Homesite Value: | + | $0 | |
| (+) Land Non-Homesite Value: | + | $255,750 | |
| (+) Curr Use (HS): | + | $0 | $0 |
| (+) Curr Use (NHS): | + | $0 | $0 |
| | | -------------------------- | |
| (=) Market Value: | = | $921,112 | |
| (–) Productivity Loss: | – | $0 | |
| | | -------------------------- | |
| (=) Subtotal: | = | $921,112 | |
| (+) Senior Appraised Value: | + | $0 | |
| (+) Non-Senior Appraised Value: | + | $921,112 | |
| | | -------------------------- | |
| (=) Total Appraised Value: | = | $921,112 | |
| (–) Senior Exemption Loss: | – | $0 | |
| (–) Exemption Loss: | – | $0 | |
| | | -------------------------- | |
| (=) Taxable Value: | = | $921,112 | |
Taxing Jurisdiction
| Owner: | JOHN & JO ANN AKLONIS LIVING REVOCABLE TRUST | | |
| % Ownership: | 100.0000000000% | | |
| Total Value: | $921,112 | | |
| Tax Area: | 0110 - C-50F1E1H2 |
| CE | COUNTY CURRENT EXPENSE | 0.9034619479 | $921,112 | $921,112 | $832.19 | | |
| CNTYDD | DEVELOPMENTAL DISABILITIES | 0.0052121823 | $921,112 | $921,112 | $4.80 | | |
| CNTYVET | VETERANS RELIEF | 0.0052777810 | $921,112 | $921,112 | $4.86 | | |
| MENTAL | MENTAL HEALTH | 0.0052121823 | $921,112 | $921,112 | $4.80 | | |
| PTGEN | CITY OF PT GENERAL | 0.8551967795 | $921,112 | $921,112 | $787.73 | | |
| PTLLL | CITY OF PT - LIBRARY LID LIFT | 0.4010114288 | $921,112 | $921,112 | $369.38 | | |
| PTMVBOND | CITY OF PT MV BOND | 0.0484717981 | $921,112 | $921,112 | $44.65 | | |
| HOSP2CASH | HOSP DIST #2 GENERAL | 0.0536075306 | $921,112 | $921,112 | $49.38 | | |
| SCH50BOND | SCHOOL DIST #50 BOND 2016 | 0.5377451389 | $921,112 | $921,112 | $495.32 | | |
| SCH50CP | SCHOOL DIST #50 CAP PROJ | 0.4573475088 | $921,112 | $921,112 | $421.27 | | |
| SCH50MO | SCHOOL DIST #50 EP & O | 0.8262822886 | $921,112 | $921,112 | $761.10 | | |
| CONSERVE | CONSERVATION FUTURES | 0.0275621078 | $921,112 | $921,112 | $25.39 | | |
| EMS1 | FIRE DIST #1 EMS | 0.4679948282 | $921,112 | $921,112 | $431.08 | | |
| FD1 | FIRE DIST #1 GENERAL | 1.2171942929 | $921,112 | $921,112 | $1,121.17 | | |
| PORTPT | PORT OF PT GENERAL | 0.1134941229 | $921,112 | $921,112 | $104.54 | | |
| PORTPTIDD | PORT OF PT IDD 2019 | 0.2577346692 | $921,112 | $921,112 | $237.40 | | |
| PUD1 | PUD #1 GENERAL | 0.0597888892 | $921,112 | $921,112 | $55.07 | | |
| STATE | STATE SCHOOL PART 1 | 1.4940692947 | $921,112 | $921,112 | $1,376.21 | | |
| STATE2 | STATE SCHOOL PART 2 | 0.8050170049 | $921,112 | $921,112 | $741.51 | | |
| | Total Tax Rate: | 8.5416817766 | | | | | |
| | | | | Taxes w/Current Exemptions: | $7,867.85 | | |
| | | | | Taxes w/o Exemptions: | $7,867.85 | | |
Improvement / Building
| Improvement #1: | Residential Bldg | State Code: | 11 | 1600.0 sqft | Value: | $665,362 |
| Bathrooms (#): | 3 (FULL) | Bedrooms (#): | 3 | | Exterior Wall: | PL/T1 | Fireplace: | SIN 2-GOOD | | Fireplace: | WD ST-GOOD | Floor Construction: | FRAME | | Foundation: | CONPR | Heating/Cooling: | ELBB | | Roof Cover: | COMP |   |   |
|
| | Type | Description | Class CD | Sub Class CD | Year Built | Area |
| | MA | Main Area | 5 | 1S | 1979 | 1600.0 |
| | HDECK | House Deck | 5 | * | 2016 | 384.0 |
| | GBLTIN | Builtin Garage | 5 | 1S | 1979 | 720.0 |
| | BSMTF | House basement finished | 5 | * | 1979 | 780.0 |
Sketch
Property Image
Land
| 1 | 6285-1165L | | 0.0000 | 0.00 | 0.00 | 0.00 | 1.00 | $240,000 | $0 |
| 2 | 6285-1165L | | 0.0000 | 0.00 | 0.00 | 0.00 | 1.00 | $15,750 | $0 |
Roll Value History
| 2026 | N/A | N/A | N/A | N/A | N/A |
| 2025 | $665,362 | $255,750 | $0 | $921,112 | $921,112 |
| 2024 | $638,983 | $257,675 | $0 | $896,658 | $896,658 |
| 2023 | $585,735 | $229,250 | $0 | $814,985 | $814,985 |
| 2022 | $585,735 | $224,250 | $0 | $809,985 | $809,985 |
Deed and Sales History
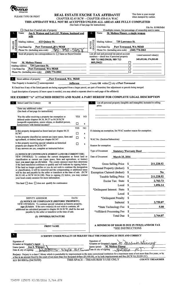
| 1 | 07/02/2019 | SWD | Statutory Warranty Deed | JON S WATSON | JOHN & JO ANN AKLONIS LIVING REVOCABLE TRUST | | | $650,000.00 | 132671 | |
| 2 | 02/29/2016 | BLA | Boundary Line Adjustment | JON S WATSON | | | | | 124959 | |
| 3 | 03/21/2011 | SWD | Statutory Warranty Deed | HIGGINS ESTATE, EMILY K | WATSON, JON S/LORI JF | | | $325,000.00 | 115793 | 0 |
|   | |
Payout Agreement
| No payout information available.. |