Property
Account |
| Property ID: | 39643 | Abbreviated Legal Description: | PORT TOWNSEND O.T. BLK 142 TAX 45(TR I SURVEY 6/46) |
| Parcel # / Geo ID: | 989714206 | Agent Code: | |
| Type: | Real | | |
| Tax Area: | 0110 - C-50F1E1H2 | Land Use Code | 11 |
| Open Space: | N | DFL | N |
| Historic Property: | N | Remodel Property: | N |
| Multi-Family Redevelopment: | N | | |
| Township: | 30N | Section: | 1 |
| Range: | 1W |
Location |
| Address: | 680 HUDSON PL PORT TOWNSEND, WA 98368 | Mapsco: | 126/033 |
| Neighborhood: | S1T30R1W TAX#S,LINCOLN BCH,PTOT BLK 142,PORTER SP | Map ID: | |
| Neighborhood CD: | 6380 |
Owner |
| Name: | ROGER T BECK & REGINA A NORTON BECK REV LIVING TRUST | Owner ID: | 108781 |
| Mailing Address: | ROGER T BECK TRUSTEE REGINA A NORTON BECK TRUSTEE 420 BLACK NUGGET LN CLE ELUM, WA 98922-3244 | % Ownership: | 100.0000000000% |
| | | Exemptions: | |
Pay Tax Due
Select the appropriate checkbox next to the year to be paid. Multiple years may be selected.
*Convenience Fee not included
Taxes and Assessment Details
Property Tax Information as of
03/09/2026
Click on "Statement Details" to expand or collapse a tax statement.
* Please enter a valid date ** Please enter a valid date *
Statement Details |
| 2026 | 28816 | STATE - STATE LEVY (SCHOOL) | $1389.42 | $1389.42 | $0.00 | $0.00 | $0.00 | $2778.84 |
| 2026 | 28816 | COUNTY - COUNTY LEVIES (CE, DD, VET, MH) | $555.49 | $555.48 | $0.00 | $0.00 | $0.00 | $1110.97 |
| 2026 | 28816 | CONSERVE - CONSERVATION FUTURES | $16.66 | $16.65 | $0.00 | $0.00 | $0.00 | $33.31 |
| 2026 | 28816 | CITYPT - CITY OF PT | $788.48 | $788.45 | $0.00 | $0.00 | $0.00 | $1576.93 |
| 2026 | 28816 | PORTPT - PORT DISTRICT | $224.35 | $224.35 | $0.00 | $0.00 | $0.00 | $448.70 |
| 2026 | 28816 | PUD1 - PUD #1 | $36.14 | $36.13 | $0.00 | $0.00 | $0.00 | $72.27 |
| 2026 | 28816 | HD2 - HOSP DIST #2 | $32.40 | $32.39 | $0.00 | $0.00 | $0.00 | $64.79 |
| 2026 | 28816 | SD50 - SCHOOL DIST #50 | $1100.72 | $1100.72 | $0.00 | $0.00 | $0.00 | $2201.44 |
| 2026 | 28816 | FD1 - FIRE DISTRICT #1 | $735.60 | $735.59 | $0.00 | $0.00 | $0.00 | $1471.19 |
| 2026 | 28816 | EMS1 - FIRE DIST #1 EMS | $282.83 | $282.82 | $0.00 | $0.00 | $0.00 | $565.65 |
| 2026 | 28816 | JCCD - JC Conservation District | $2.55 | $2.55 | $0.00 | $0.00 | $0.00 | $5.10 |
| 2026 | 28816 | NWA - Noxious Weed Assessment | $2.98 | $2.97 | $0.00 | $0.00 | $0.00 | $5.95 |
| 2026 | 28816 | TOTAL: | $5167.62 | $5167.52 | $0.00 | $0.00 | $0.00 | $10335.14 |
|
| 2026 | 28816 | $5167.62 | $5167.52 | $0.00 | $0.00 | $0.00 | $10335.14 |
Statement Details |
| 2025 | 28888 | STATE - STATE LEVY (SCHOOL) | $1390.97 | $1390.96 | $0.00 | $0.00 | $2781.93 | $0.00 |
| 2025 | 28888 | COUNTY - COUNTY LEVIES (CE, DD, VET, MH) | $547.01 | $546.97 | $0.00 | $0.00 | $1093.98 | $0.00 |
| 2025 | 28888 | CONSERVE - CONSERVATION FUTURES | $16.40 | $16.40 | $0.00 | $0.00 | $32.80 | $0.00 |
| 2025 | 28888 | CITYPT - CITY OF PT | $788.83 | $788.80 | $0.00 | $0.00 | $1577.63 | $0.00 |
| 2025 | 28888 | PORTPT - PORT DISTRICT | $223.21 | $223.20 | $0.00 | $0.00 | $446.41 | $0.00 |
| 2025 | 28888 | PUD1 - PUD #1 | $35.79 | $35.79 | $0.00 | $0.00 | $71.58 | $0.00 |
| 2025 | 28888 | HD2 - HOSP DIST #2 | $31.92 | $31.91 | $0.00 | $0.00 | $63.83 | $0.00 |
| 2025 | 28888 | SD50 - SCHOOL DIST #50 | $1016.57 | $1016.56 | $0.00 | $0.00 | $2033.13 | $0.00 |
| 2025 | 28888 | FD1 - FIRE DISTRICT #1 | $721.81 | $721.81 | $0.00 | $0.00 | $1443.62 | $0.00 |
| 2025 | 28888 | EMS1 - FIRE DIST #1 EMS | $277.63 | $277.63 | $0.00 | $0.00 | $555.26 | $0.00 |
| 2025 | 28888 | JCCD - JC Conservation District | $2.55 | $2.55 | $0.00 | $0.00 | $5.10 | $0.00 |
| 2025 | 28888 | NWA - Noxious Weed Assessment | $2.15 | $2.15 | $0.00 | $0.00 | $4.30 | $0.00 |
| 2025 | 28888 | TOTAL: | $5054.84 | $5054.73 | $0.00 | $0.00 | $10109.57 | $0.00 |
|
| 2025 | 28888 | $5054.84 | $5054.73 | $0.00 | $0.00 | $10109.57 | $0.00 |
Statement Details |
| 2024 | 28948 | STATE - STATE LEVY (SCHOOL) | $1220.91 | $1220.91 | $0.00 | $0.00 | $2441.82 | $0.00 |
| 2024 | 28948 | COUNTY - COUNTY LEVIES (CE, DD, VET, MH) | $522.44 | $522.43 | $0.00 | $0.00 | $1044.87 | $0.00 |
| 2024 | 28948 | CONSERVE - CONSERVATION FUTURES | $15.67 | $15.66 | $0.00 | $0.00 | $31.33 | $0.00 |
| 2024 | 28948 | CITYPT - CITY OF PT | $746.49 | $746.48 | $0.00 | $0.00 | $1492.97 | $0.00 |
| 2024 | 28948 | PORTPT - PORT DISTRICT | $215.79 | $215.79 | $0.00 | $0.00 | $431.58 | $0.00 |
| 2024 | 28948 | PUD1 - PUD #1 | $34.32 | $34.31 | $0.00 | $0.00 | $68.63 | $0.00 |
| 2024 | 28948 | HD2 - HOSP DIST #2 | $30.49 | $30.48 | $0.00 | $0.00 | $60.97 | $0.00 |
| 2024 | 28948 | SD50 - SCHOOL DIST #50 | $987.78 | $987.76 | $0.00 | $0.00 | $1975.54 | $0.00 |
| 2024 | 28948 | FD1 - FIRE DISTRICT #1 | $690.79 | $690.78 | $0.00 | $0.00 | $1381.57 | $0.00 |
| 2024 | 28948 | EMS1 - FIRE DIST #1 EMS | $263.86 | $263.85 | $0.00 | $0.00 | $527.71 | $0.00 |
| 2024 | 28948 | JCCD - JC Conservation District | $2.55 | $2.55 | $0.00 | $0.00 | $5.10 | $0.00 |
| 2024 | 28948 | NWA - Noxious Weed Assessment | $2.15 | $2.15 | $0.00 | $0.00 | $4.30 | $0.00 |
| 2024 | 28948 | TOTAL: | $4733.24 | $4733.15 | $0.00 | $0.00 | $9466.39 | $0.00 |
|
| 2024 | 28948 | $4733.24 | $4733.15 | $0.00 | $0.00 | $9466.39 | $0.00 |
Statement Details |
| 2023 | 28990 | STATE - STATE LEVY (SCHOOL) | $1236.43 | $1236.42 | $0.00 | $0.00 | $2472.85 | $0.00 |
| 2023 | 28990 | COUNTY - COUNTY LEVIES (CE, DD, VET, MH) | $539.55 | $539.53 | $0.00 | $0.00 | $1079.08 | $0.00 |
| 2023 | 28990 | CONSERVE - CONSERVATION FUTURES | $16.18 | $16.18 | $0.00 | $0.00 | $32.36 | $0.00 |
| 2023 | 28990 | CITYPT - CITY OF PT | $762.56 | $762.54 | $0.00 | $0.00 | $1525.10 | $0.00 |
| 2023 | 28990 | PORTPT - PORT DISTRICT | $227.29 | $227.28 | $0.00 | $0.00 | $454.57 | $0.00 |
| 2023 | 28990 | PUD1 - PUD #1 | $35.77 | $35.76 | $0.00 | $0.00 | $71.53 | $0.00 |
| 2023 | 28990 | HD2 - HOSP DIST #2 | $31.49 | $31.48 | $0.00 | $0.00 | $62.97 | $0.00 |
| 2023 | 28990 | SD50 - SCHOOL DIST #50 | $981.13 | $981.12 | $0.00 | $0.00 | $1962.25 | $0.00 |
| 2023 | 28990 | FD1 - FIRE DISTRICT #1 | $444.47 | $444.47 | $0.00 | $0.00 | $888.94 | $0.00 |
| 2023 | 28990 | EMS1 - FIRE DIST #1 EMS | $189.07 | $189.07 | $0.00 | $0.00 | $378.14 | $0.00 |
| 2023 | 28990 | JCCD - JC Conservation District | $2.55 | $2.55 | $0.00 | $0.00 | $5.10 | $0.00 |
| 2023 | 28990 | NWA - Noxious Weed Assessment | $2.15 | $2.15 | $0.00 | $0.00 | $4.30 | $0.00 |
| 2023 | 28990 | TOTAL: | $4468.64 | $4468.55 | $0.00 | $0.00 | $8937.19 | $0.00 |
|
| 2023 | 28990 | $4468.64 | $4468.55 | $0.00 | $0.00 | $8937.19 | $0.00 |
Values
| (+) Improvement Homesite Value: | + | $0 | |
| (+) Improvement Non-Homesite Value: | + | $811,171 | |
| (+) Land Homesite Value: | + | $0 | |
| (+) Land Non-Homesite Value: | + | $397,500 | |
| (+) Curr Use (HS): | + | $0 | $0 |
| (+) Curr Use (NHS): | + | $0 | $0 |
| | | -------------------------- | |
| (=) Market Value: | = | $1,208,671 | |
| (–) Productivity Loss: | – | $0 | |
| | | -------------------------- | |
| (=) Subtotal: | = | $1,208,671 | |
| (+) Senior Appraised Value: | + | $0 | |
| (+) Non-Senior Appraised Value: | + | $1,208,671 | |
| | | -------------------------- | |
| (=) Total Appraised Value: | = | $1,208,671 | |
| (–) Senior Exemption Loss: | – | $0 | |
| (–) Exemption Loss: | – | $0 | |
| | | -------------------------- | |
| (=) Taxable Value: | = | $1,208,671 | |
Taxing Jurisdiction
| Owner: | ROGER T BECK & REGINA A NORTON BECK REV LIVING TRUST | | |
| % Ownership: | 100.0000000000% | | |
| Total Value: | $1,208,671 | | |
| Tax Area: | 0110 - C-50F1E1H2 |
| CE | COUNTY CURRENT EXPENSE | 0.9034619479 | $1,208,671 | $1,208,671 | $1,091.99 | | |
| CNTYDD | DEVELOPMENTAL DISABILITIES | 0.0052121823 | $1,208,671 | $1,208,671 | $6.30 | | |
| CNTYVET | VETERANS RELIEF | 0.0052777810 | $1,208,671 | $1,208,671 | $6.38 | | |
| MENTAL | MENTAL HEALTH | 0.0052121823 | $1,208,671 | $1,208,671 | $6.30 | | |
| PTGEN | CITY OF PT GENERAL | 0.8551967795 | $1,208,671 | $1,208,671 | $1,033.65 | | |
| PTLLL | CITY OF PT - LIBRARY LID LIFT | 0.4010114288 | $1,208,671 | $1,208,671 | $484.69 | | |
| PTMVBOND | CITY OF PT MV BOND | 0.0484717981 | $1,208,671 | $1,208,671 | $58.59 | | |
| HOSP2CASH | HOSP DIST #2 GENERAL | 0.0536075306 | $1,208,671 | $1,208,671 | $64.79 | | |
| SCH50BOND | SCHOOL DIST #50 BOND 2016 | 0.5377451389 | $1,208,671 | $1,208,671 | $649.96 | | |
| SCH50CP | SCHOOL DIST #50 CAP PROJ | 0.4573475088 | $1,208,671 | $1,208,671 | $552.78 | | |
| SCH50MO | SCHOOL DIST #50 EP & O | 0.8262822886 | $1,208,671 | $1,208,671 | $998.70 | | |
| CONSERVE | CONSERVATION FUTURES | 0.0275621078 | $1,208,671 | $1,208,671 | $33.31 | | |
| EMS1 | FIRE DIST #1 EMS | 0.4679948282 | $1,208,671 | $1,208,671 | $565.65 | | |
| FD1 | FIRE DIST #1 GENERAL | 1.2171942929 | $1,208,671 | $1,208,671 | $1,471.19 | | |
| PORTPT | PORT OF PT GENERAL | 0.1134941229 | $1,208,671 | $1,208,671 | $137.18 | | |
| PORTPTIDD | PORT OF PT IDD 2019 | 0.2577346692 | $1,208,671 | $1,208,671 | $311.52 | | |
| PUD1 | PUD #1 GENERAL | 0.0597888892 | $1,208,671 | $1,208,671 | $72.27 | | |
| STATE | STATE SCHOOL PART 1 | 1.4940692947 | $1,208,671 | $1,208,671 | $1,805.84 | | |
| STATE2 | STATE SCHOOL PART 2 | 0.8050170049 | $1,208,671 | $1,208,671 | $973.00 | | |
| | Total Tax Rate: | 8.5416817766 | | | | | |
| | | | | Taxes w/Current Exemptions: | $10,324.09 | | |
| | | | | Taxes w/o Exemptions: | $10,324.09 | | |
Improvement / Building
| Improvement #1: | Residential Bldg | State Code: | 11 | 3221.0 sqft | Value: | $811,171 |
| Bathrooms (#): | 1 (FULL) | Bathrooms (#): | 2 (HALF) | | Bedrooms (#): | 3 | Exterior Wall: | SI/ST | | Fireplace: | SIN 2-AVG | Floor Construction: | CONCR | | Foundation: | CONPR | Heating/Cooling: | F/A | | Roof Cover: | COMP |   |   |
|
| | Type | Description | Class CD | Sub Class CD | Year Built | Area |
| | MA | Main Area | 5 | 2S | 1993 | 973.0 |
| | MA2 | Second Floor Main Area | 5 | 2S | 1993 | 1706.0 |
| | MA3 | Third Floor Main Area | 5 | 2S | 1993 | 542.0 |
| | HBAL | House Balcony | 5 | * | 1993 | 42.0 |
| | HCPOR | House Concrete Porch | 5 | * | 1993 | 40.0 |
| | HDECK | House Deck | 5 | * | 1993 | 480.0 |
| | GBLTIN | Builtin Garage | 5 | 2S | 1993 | 663.0 |
| | PATIO | House Patio | 5 | * | 1993 | 1000.0 |
Sketch
Property Image
Land
| 1 | 6380-1155L | | 0.0000 | 0.00 | 0.00 | 0.00 | 1.00 | $275,000 | $0 |
| 2 | 6380-1155L | | 0.0000 | 0.00 | 0.00 | 0.00 | 1.00 | $122,500 | $0 |
Roll Value History
| 2026 | N/A | N/A | N/A | N/A | N/A |
| 2025 | $811,171 | $397,500 | $0 | $1,208,671 | $1,208,671 |
| 2024 | $764,093 | $396,000 | $0 | $1,160,093 | $1,160,093 |
| 2023 | $700,418 | $355,000 | $0 | $1,055,418 | $1,055,418 |
| 2022 | $700,418 | $350,000 | $0 | $1,050,418 | $1,050,418 |
Deed and Sales History
| 1 | 04/24/2023 | QCD | Quit Claim Deed | ROGER T BECK | ROGER T BECK & REGINA A NORTON BECK REV LIVING TRUST | | | | 140869 | |
| 2 | 04/24/2023 | QCD | Quit Claim Deed | REGINA A NORTON BECK REVOCABLE TRUST | ROGER T BECK | | | | 140868 | |
| 3 | 10/07/2020 | QCD | Quit Claim Deed | ROGER T BECK | REGINA A NORTON BECK REVOCABLE TRUST | | | | 135972 | |
| 4 | 10/07/2020 | QCD | Quit Claim Deed | REGINA A NORTON BECK REVOCABLE TRUST | ROGER T BECK | | | | 135971 | |
| 5 | 04/05/2019 | SWD | Statutory Warranty Deed | BRUCE SEMANS & DANNYL DOLDER | REGINA A NORTON BECK REVOCABLE TRUST | | | $765,000.00 | 132112 | |
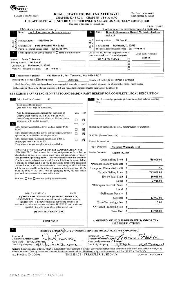
| 6 | 08/18/2016 | SWD | Statutory Warranty Deed | JAY A LAWRENCE | BRUCE SEMANS & DANNYL DOLDER | | | $785,000.00 | 126107 | |
| 7 | 11/18/1997 | SWD | Statutory Warranty Deed | LITTLE, MICHELLE D/LARRY | LAWRENCE, JAY A/KALLI E | 0 | 0 | $370,000.00 | 83210 | 0 |
| 8 | 01/30/1996 | SWD | Statutory Warranty Deed | LUKE, GREGORY G/CATHRYN R | SCHABER, CARL | 0 | 0 | $40,000.00 | 78859 | 0 |
Payout Agreement
| No payout information available.. |