Property
Account |
| Property ID: | 39660 | Abbreviated Legal Description: | PORT TOWNSEND BUSINESS PARK LOT 18 |
| Parcel # / Geo ID: | 989800018 | Agent Code: | |
| Type: | Real | | |
| Tax Area: | 0110 - C-50F1E1H2 | Land Use Code | 21 |
| Open Space: | N | DFL | N |
| Historic Property: | N | Remodel Property: | N |
| Multi-Family Redevelopment: | N | | |
| Township: | 30N | Section: | 9 |
| Range: | 1W |
Location |
| Address: | 826 E PARK AVE PORT TOWNSEND, WA 98368 | Mapsco: | 112/018 |
| Neighborhood: | SIMS WAY BY RAINIER ST / PT BUSINESS PARK COMMERCIAL | Map ID: | |
| Neighborhood CD: | 6190C |
Owner |
| Name: | ARM & LEG LLC | Owner ID: | 113925 |
| Mailing Address: | 344 GREEN WAY PORT TOWNSEND, WA 98368-9079 | % Ownership: | 100.0000000000% |
| | | Exemptions: | |
Pay Tax Due
Select the appropriate checkbox next to the year to be paid. Multiple years may be selected.
*Convenience Fee not included
Taxes and Assessment Details
Property Tax Information as of
03/09/2026
Click on "Statement Details" to expand or collapse a tax statement.
* Please enter a valid date ** Please enter a valid date *
Statement Details |
| 2026 | 28833 | STATE - STATE LEVY (SCHOOL) | $546.26 | $546.26 | $0.00 | $0.00 | $546.26 | $546.26 |
| 2026 | 28833 | COUNTY - COUNTY LEVIES (CE, DD, VET, MH) | $218.40 | $218.39 | $0.00 | $0.00 | $218.40 | $218.39 |
| 2026 | 28833 | CONSERVE - CONSERVATION FUTURES | $6.55 | $6.55 | $0.00 | $0.00 | $6.55 | $6.55 |
| 2026 | 28833 | CITYPT - CITY OF PT | $310.00 | $309.98 | $0.00 | $0.00 | $310.00 | $309.98 |
| 2026 | 28833 | PORTPT - PORT DISTRICT | $88.21 | $88.19 | $0.00 | $0.00 | $88.21 | $88.19 |
| 2026 | 28833 | PUD1 - PUD #1 | $14.21 | $14.20 | $0.00 | $0.00 | $14.21 | $14.20 |
| 2026 | 28833 | HD2 - HOSP DIST #2 | $12.74 | $12.73 | $0.00 | $0.00 | $12.74 | $12.73 |
| 2026 | 28833 | SD50 - SCHOOL DIST #50 | $432.77 | $432.74 | $0.00 | $0.00 | $432.77 | $432.74 |
| 2026 | 28833 | FD1 - FIRE DISTRICT #1 | $289.21 | $289.20 | $0.00 | $0.00 | $289.21 | $289.20 |
| 2026 | 28833 | EMS1 - FIRE DIST #1 EMS | $111.20 | $111.19 | $0.00 | $0.00 | $111.20 | $111.19 |
| 2026 | 28833 | JCCD - JC Conservation District | $2.53 | $2.53 | $0.00 | $0.00 | $2.53 | $2.53 |
| 2026 | 28833 | NWA - Noxious Weed Assessment | $2.98 | $2.97 | $0.00 | $0.00 | $2.98 | $2.97 |
| 2026 | 28833 | TOTAL: | $2035.06 | $2034.93 | $0.00 | $0.00 | $2035.06 | $2034.93 |
|
| 2026 | 28833 | $2035.06 | $2034.93 | $0.00 | $0.00 | $2035.06 | $2034.93 |
Statement Details |
| 2025 | 28905 | STATE - STATE LEVY (SCHOOL) | $576.17 | $576.16 | $0.00 | $0.00 | $1152.33 | $0.00 |
| 2025 | 28905 | COUNTY - COUNTY LEVIES (CE, DD, VET, MH) | $226.57 | $226.57 | $0.00 | $0.00 | $453.14 | $0.00 |
| 2025 | 28905 | CONSERVE - CONSERVATION FUTURES | $6.80 | $6.79 | $0.00 | $0.00 | $13.59 | $0.00 |
| 2025 | 28905 | CITYPT - CITY OF PT | $326.75 | $326.74 | $0.00 | $0.00 | $653.49 | $0.00 |
| 2025 | 28905 | PORTPT - PORT DISTRICT | $92.46 | $92.45 | $0.00 | $0.00 | $184.91 | $0.00 |
| 2025 | 28905 | PUD1 - PUD #1 | $14.83 | $14.82 | $0.00 | $0.00 | $29.65 | $0.00 |
| 2025 | 28905 | HD2 - HOSP DIST #2 | $13.22 | $13.22 | $0.00 | $0.00 | $26.44 | $0.00 |
| 2025 | 28905 | SD50 - SCHOOL DIST #50 | $421.09 | $421.07 | $0.00 | $0.00 | $842.16 | $0.00 |
| 2025 | 28905 | FD1 - FIRE DISTRICT #1 | $298.99 | $298.99 | $0.00 | $0.00 | $597.98 | $0.00 |
| 2025 | 28905 | EMS1 - FIRE DIST #1 EMS | $115.00 | $115.00 | $0.00 | $0.00 | $230.00 | $0.00 |
| 2025 | 28905 | JCCD - JC Conservation District | $2.53 | $2.53 | $0.00 | $0.00 | $5.06 | $0.00 |
| 2025 | 28905 | NWA - Noxious Weed Assessment | $2.15 | $2.15 | $0.00 | $0.00 | $4.30 | $0.00 |
| 2025 | 28905 | TOTAL: | $2096.56 | $2096.49 | $0.00 | $0.00 | $4193.05 | $0.00 |
|
| 2025 | 28905 | $2096.56 | $2096.49 | $0.00 | $0.00 | $4193.05 | $0.00 |
Statement Details |
| 2024 | 28965 | STATE - STATE LEVY (SCHOOL) | $550.10 | $550.09 | $0.00 | $0.00 | $1100.19 | $0.00 |
| 2024 | 28965 | COUNTY - COUNTY LEVIES (CE, DD, VET, MH) | $235.40 | $235.39 | $0.00 | $0.00 | $470.79 | $0.00 |
| 2024 | 28965 | CONSERVE - CONSERVATION FUTURES | $7.06 | $7.06 | $0.00 | $0.00 | $14.12 | $0.00 |
| 2024 | 28965 | CITYPT - CITY OF PT | $336.35 | $336.33 | $0.00 | $0.00 | $672.68 | $0.00 |
| 2024 | 28965 | PORTPT - PORT DISTRICT | $97.23 | $97.22 | $0.00 | $0.00 | $194.45 | $0.00 |
| 2024 | 28965 | PUD1 - PUD #1 | $15.46 | $15.46 | $0.00 | $0.00 | $30.92 | $0.00 |
| 2024 | 28965 | HD2 - HOSP DIST #2 | $13.74 | $13.73 | $0.00 | $0.00 | $27.47 | $0.00 |
| 2024 | 28965 | SD50 - SCHOOL DIST #50 | $445.06 | $445.04 | $0.00 | $0.00 | $890.10 | $0.00 |
| 2024 | 28965 | FD1 - FIRE DISTRICT #1 | $311.25 | $311.24 | $0.00 | $0.00 | $622.49 | $0.00 |
| 2024 | 28965 | EMS1 - FIRE DIST #1 EMS | $118.89 | $118.88 | $0.00 | $0.00 | $237.77 | $0.00 |
| 2024 | 28965 | JCCD - JC Conservation District | $2.53 | $2.53 | $0.00 | $0.00 | $5.06 | $0.00 |
| 2024 | 28965 | NWA - Noxious Weed Assessment | $2.15 | $2.15 | $0.00 | $0.00 | $4.30 | $0.00 |
| 2024 | 28965 | TOTAL: | $2135.22 | $2135.12 | $0.00 | $0.00 | $4270.34 | $0.00 |
|
| 2024 | 28965 | $2135.22 | $2135.12 | $0.00 | $0.00 | $4270.34 | $0.00 |
Statement Details |
| 2023 | 29007 | STATE - STATE LEVY (SCHOOL) | $474.96 | $474.95 | $0.00 | $0.00 | $949.91 | $0.00 |
| 2023 | 29007 | COUNTY - COUNTY LEVIES (CE, DD, VET, MH) | $207.26 | $207.24 | $0.00 | $0.00 | $414.50 | $0.00 |
| 2023 | 29007 | CONSERVE - CONSERVATION FUTURES | $6.22 | $6.21 | $0.00 | $0.00 | $12.43 | $0.00 |
| 2023 | 29007 | CITYPT - CITY OF PT | $292.93 | $292.91 | $0.00 | $0.00 | $585.84 | $0.00 |
| 2023 | 29007 | PORTPT - PORT DISTRICT | $87.31 | $87.30 | $0.00 | $0.00 | $174.61 | $0.00 |
| 2023 | 29007 | PUD1 - PUD #1 | $13.74 | $13.74 | $0.00 | $0.00 | $27.48 | $0.00 |
| 2023 | 29007 | HD2 - HOSP DIST #2 | $12.10 | $12.09 | $0.00 | $0.00 | $24.19 | $0.00 |
| 2023 | 29007 | SD50 - SCHOOL DIST #50 | $376.90 | $376.87 | $0.00 | $0.00 | $753.77 | $0.00 |
| 2023 | 29007 | FD1 - FIRE DISTRICT #1 | $170.74 | $170.74 | $0.00 | $0.00 | $341.48 | $0.00 |
| 2023 | 29007 | EMS1 - FIRE DIST #1 EMS | $72.63 | $72.63 | $0.00 | $0.00 | $145.26 | $0.00 |
| 2023 | 29007 | JCCD - JC Conservation District | $2.53 | $2.53 | $0.00 | $0.00 | $5.06 | $0.00 |
| 2023 | 29007 | NWA - Noxious Weed Assessment | $2.15 | $2.15 | $0.00 | $0.00 | $4.30 | $0.00 |
| 2023 | 29007 | TOTAL: | $1719.47 | $1719.36 | $0.00 | $0.00 | $3438.83 | $0.00 |
|
| 2023 | 29007 | $1719.47 | $1719.36 | $0.00 | $0.00 | $3438.83 | $0.00 |
Values
| (+) Improvement Homesite Value: | + | $0 | |
| (+) Improvement Non-Homesite Value: | + | $369,797 | |
| (+) Land Homesite Value: | + | $0 | |
| (+) Land Non-Homesite Value: | + | $105,400 | |
| (+) Curr Use (HS): | + | $0 | $0 |
| (+) Curr Use (NHS): | + | $0 | $0 |
| | | -------------------------- | |
| (=) Market Value: | = | $475,197 | |
| (–) Productivity Loss: | – | $0 | |
| | | -------------------------- | |
| (=) Subtotal: | = | $475,197 | |
| (+) Senior Appraised Value: | + | $0 | |
| (+) Non-Senior Appraised Value: | + | $475,197 | |
| | | -------------------------- | |
| (=) Total Appraised Value: | = | $475,197 | |
| (–) Senior Exemption Loss: | – | $0 | |
| (–) Exemption Loss: | – | $0 | |
| | | -------------------------- | |
| (=) Taxable Value: | = | $475,197 | |
Taxing Jurisdiction
| Owner: | ARM & LEG LLC | | |
| % Ownership: | 100.0000000000% | | |
| Total Value: | $475,197 | | |
| Tax Area: | 0110 - C-50F1E1H2 |
| CE | COUNTY CURRENT EXPENSE | 0.9034619479 | $475,197 | $475,197 | $429.32 | | |
| CNTYDD | DEVELOPMENTAL DISABILITIES | 0.0052121823 | $475,197 | $475,197 | $2.48 | | |
| CNTYVET | VETERANS RELIEF | 0.0052777810 | $475,197 | $475,197 | $2.51 | | |
| MENTAL | MENTAL HEALTH | 0.0052121823 | $475,197 | $475,197 | $2.48 | | |
| PTGEN | CITY OF PT GENERAL | 0.8551967795 | $475,197 | $475,197 | $406.39 | | |
| PTLLL | CITY OF PT - LIBRARY LID LIFT | 0.4010114288 | $475,197 | $475,197 | $190.56 | | |
| PTMVBOND | CITY OF PT MV BOND | 0.0484717981 | $475,197 | $475,197 | $23.03 | | |
| HOSP2CASH | HOSP DIST #2 GENERAL | 0.0536075306 | $475,197 | $475,197 | $25.47 | | |
| SCH50BOND | SCHOOL DIST #50 BOND 2016 | 0.5377451389 | $475,197 | $475,197 | $255.53 | | |
| SCH50CP | SCHOOL DIST #50 CAP PROJ | 0.4573475088 | $475,197 | $475,197 | $217.33 | | |
| SCH50MO | SCHOOL DIST #50 EP & O | 0.8262822886 | $475,197 | $475,197 | $392.65 | | |
| CONSERVE | CONSERVATION FUTURES | 0.0275621078 | $475,197 | $475,197 | $13.10 | | |
| EMS1 | FIRE DIST #1 EMS | 0.4679948282 | $475,197 | $475,197 | $222.39 | | |
| FD1 | FIRE DIST #1 GENERAL | 1.2171942929 | $475,197 | $475,197 | $578.41 | | |
| PORTPT | PORT OF PT GENERAL | 0.1134941229 | $475,197 | $475,197 | $53.93 | | |
| PORTPTIDD | PORT OF PT IDD 2019 | 0.2577346692 | $475,197 | $475,197 | $122.47 | | |
| PUD1 | PUD #1 GENERAL | 0.0597888892 | $475,197 | $475,197 | $28.41 | | |
| STATE | STATE SCHOOL PART 1 | 1.4940692947 | $475,197 | $475,197 | $709.98 | | |
| STATE2 | STATE SCHOOL PART 2 | 0.8050170049 | $475,197 | $475,197 | $382.54 | | |
| | Total Tax Rate: | 8.5416817766 | | | | | |
| | | | | Taxes w/Current Exemptions: | $4,058.98 | | |
| | | | | Taxes w/o Exemptions: | $4,058.98 | | |
Improvement / Building
| Improvement #1: | Commercial/Industrial/Government Bldg | State Code: | 55 | 2100.0 sqft | Value: | $369,797 |
| Exterior Wall: | METAL | Foundation: | CONPR | | Heating/Cooling: | HPUMP | Roof Cover: | METAL |
|
Sketch
Property Image
Land
| 1 | 6190-6273Q | | 0.2002 | 8720.00 | 0.00 | 0.00 | 0.00 | $105,400 | $0 |
Roll Value History
| 2026 | N/A | N/A | N/A | N/A | N/A |
| 2025 | $369,797 | $105,400 | $0 | $475,197 | $475,197 |
| 2024 | $375,133 | $105,400 | $0 | $480,533 | $480,533 |
| 2023 | $375,133 | $100,400 | $0 | $475,533 | $475,533 |
| 2022 | $308,103 | $95,400 | $0 | $403,503 | $403,503 |
Deed and Sales History
| 1 | 01/09/2026 | QCD | Quit Claim Deed | ANDREW BIEL & EVELYN GREGORY | ARM & LEG LLC | | | | 145500 | |
| 2 | 02/05/2025 | SWD | Statutory Warranty Deed | SSST HOLDINGS LLC | ANDREW BIEL & EVELYN GREGORY | | | $546,250.00 | 143822 | |
| 3 | 04/08/2022 | SWD | Statutory Warranty Deed | SANTA BARBARA BOAT WORKS LLC | SSST HOLDINGS LLC | | | | 138933 | |
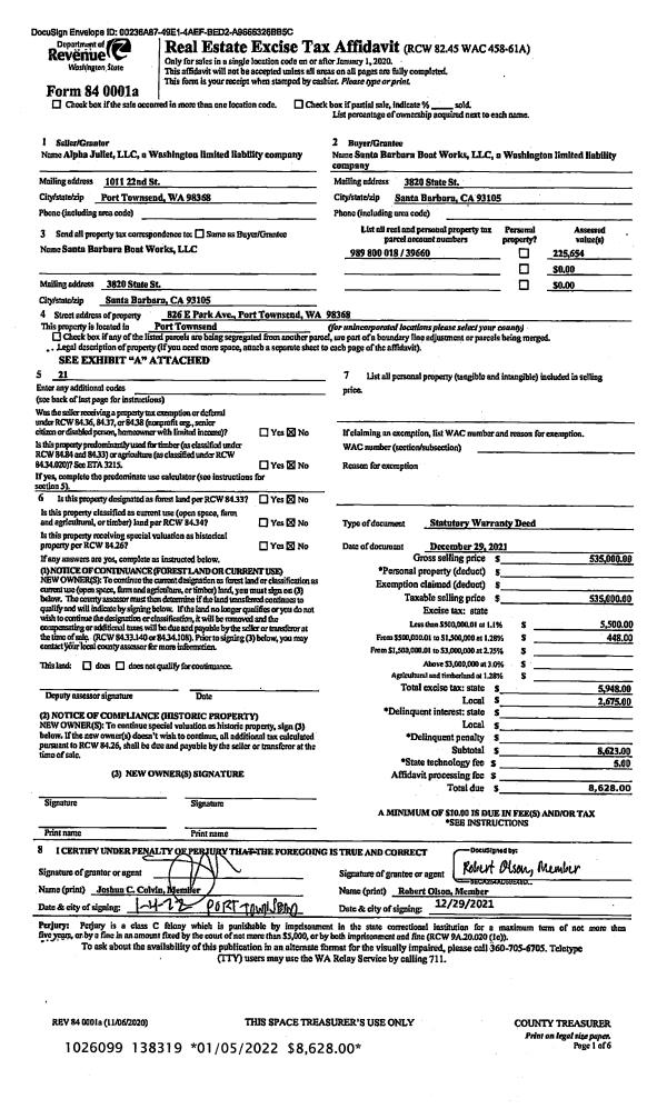
| 4 | 12/29/2021 | SWD | Statutory Warranty Deed | ALPHA JULIET LLC | SANTA BARBARA BOAT WORKS LLC | | | $535,000.00 | 138319 | |
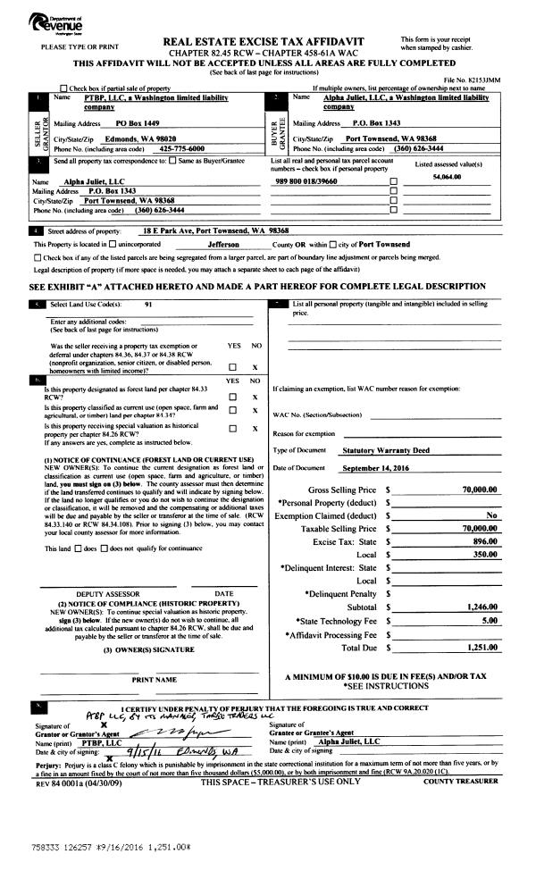
| 5 | 09/14/2016 | SWD | Statutory Warranty Deed | PTBP LLC | ALPHA JULIET LLC | | | $70,000.00 | 126257 | |
Payout Agreement
| No payout information available.. |