Property
Account |
| Property ID: | 39671 | Abbreviated Legal Description: | PORT TOWNSEND BUSINESS PARK LOT 29 |
| Parcel # / Geo ID: | 989800029 | Agent Code: | |
| Type: | Real | | |
| Tax Area: | 0110 - C-50F1E1H2 | Land Use Code | 21 |
| Open Space: | N | DFL | N |
| Historic Property: | N | Remodel Property: | N |
| Multi-Family Redevelopment: | N | | |
| Township: | 30N | Section: | 9 |
| Range: | 1W |
Location |
| Address: | 960 N PARK AVE PORT TOWNSEND, WA 98368 | Mapsco: | 112/029 |
| Neighborhood: | SIMS WAY BY RAINIER ST / PT BUSINESS PARK COMMERCIAL | Map ID: | |
| Neighborhood CD: | 6190C |
Owner |
| Name: | THOMAS & KELLY VAIL | Owner ID: | 29447 |
| Mailing Address: | 1103 V ST PORT TOWNSEND, WA 98368-3100 | % Ownership: | 100.0000000000% |
| | | Exemptions: | |
Pay Tax Due
Select the appropriate checkbox next to the year to be paid. Multiple years may be selected.
*Convenience Fee not included
Taxes and Assessment Details
Property Tax Information as of
03/09/2026
Click on "Statement Details" to expand or collapse a tax statement.
* Please enter a valid date ** Please enter a valid date *
Statement Details |
| 2026 | 28844 | STATE - STATE LEVY (SCHOOL) | $507.04 | $507.02 | $0.00 | $0.00 | $0.00 | $1014.06 |
| 2026 | 28844 | COUNTY - COUNTY LEVIES (CE, DD, VET, MH) | $202.72 | $202.70 | $0.00 | $0.00 | $0.00 | $405.42 |
| 2026 | 28844 | CONSERVE - CONSERVATION FUTURES | $6.08 | $6.08 | $0.00 | $0.00 | $0.00 | $12.16 |
| 2026 | 28844 | CITYPT - CITY OF PT | $287.73 | $287.72 | $0.00 | $0.00 | $0.00 | $575.45 |
| 2026 | 28844 | PORTPT - PORT DISTRICT | $81.87 | $81.87 | $0.00 | $0.00 | $0.00 | $163.74 |
| 2026 | 28844 | PUD1 - PUD #1 | $13.19 | $13.18 | $0.00 | $0.00 | $0.00 | $26.37 |
| 2026 | 28844 | HD2 - HOSP DIST #2 | $11.82 | $11.82 | $0.00 | $0.00 | $0.00 | $23.64 |
| 2026 | 28844 | SD50 - SCHOOL DIST #50 | $401.68 | $401.67 | $0.00 | $0.00 | $0.00 | $803.35 |
| 2026 | 28844 | FD1 - FIRE DISTRICT #1 | $268.44 | $268.43 | $0.00 | $0.00 | $0.00 | $536.87 |
| 2026 | 28844 | EMS1 - FIRE DIST #1 EMS | $103.21 | $103.21 | $0.00 | $0.00 | $0.00 | $206.42 |
| 2026 | 28844 | FP - DNR Forest Fire Protection Assmt | $8.50 | $8.50 | $0.00 | $0.00 | $0.00 | $17.00 |
| 2026 | 28844 | FPLCA - DNR Landowner Contingency Assmt | $3.00 | $3.00 | $0.00 | $0.00 | $0.00 | $6.00 |
| 2026 | 28844 | JCCD - JC Conservation District | $2.53 | $2.53 | $0.00 | $0.00 | $0.00 | $5.06 |
| 2026 | 28844 | NWA - Noxious Weed Assessment | $2.98 | $2.97 | $0.00 | $0.00 | $0.00 | $5.95 |
| 2026 | 28844 | WAT - Clean Water District | $13.00 | $13.00 | $0.00 | $0.00 | $0.00 | $26.00 |
| 2026 | 28844 | FP ADMIN - FP ADMIN | $0.50 | $0.00 | $0.00 | $0.00 | $0.00 | $0.50 |
| 2026 | 28844 | TOTAL: | $1914.29 | $1913.70 | $0.00 | $0.00 | $0.00 | $3827.99 |
|
| 2026 | 28844 | $1914.29 | $1913.70 | $0.00 | $0.00 | $0.00 | $3827.99 |
Statement Details |
| 2025 | 28916 | STATE - STATE LEVY (SCHOOL) | $493.50 | $493.48 | $0.00 | $0.00 | $986.98 | $0.00 |
| 2025 | 28916 | COUNTY - COUNTY LEVIES (CE, DD, VET, MH) | $194.07 | $194.06 | $0.00 | $0.00 | $388.13 | $0.00 |
| 2025 | 28916 | CONSERVE - CONSERVATION FUTURES | $5.82 | $5.82 | $0.00 | $0.00 | $11.64 | $0.00 |
| 2025 | 28916 | CITYPT - CITY OF PT | $279.87 | $279.85 | $0.00 | $0.00 | $559.72 | $0.00 |
| 2025 | 28916 | PORTPT - PORT DISTRICT | $79.19 | $79.18 | $0.00 | $0.00 | $158.37 | $0.00 |
| 2025 | 28916 | PUD1 - PUD #1 | $12.70 | $12.70 | $0.00 | $0.00 | $25.40 | $0.00 |
| 2025 | 28916 | HD2 - HOSP DIST #2 | $11.32 | $11.32 | $0.00 | $0.00 | $22.64 | $0.00 |
| 2025 | 28916 | SD50 - SCHOOL DIST #50 | $360.66 | $360.66 | $0.00 | $0.00 | $721.32 | $0.00 |
| 2025 | 28916 | FD1 - FIRE DISTRICT #1 | $256.09 | $256.08 | $0.00 | $0.00 | $512.17 | $0.00 |
| 2025 | 28916 | EMS1 - FIRE DIST #1 EMS | $98.50 | $98.49 | $0.00 | $0.00 | $196.99 | $0.00 |
| 2025 | 28916 | FP - DNR Forest Fire Protection Assmt | $8.50 | $8.50 | $0.00 | $0.00 | $17.00 | $0.00 |
| 2025 | 28916 | FPLCA - DNR Landowner Contingency Assmt | $3.00 | $3.00 | $0.00 | $0.00 | $6.00 | $0.00 |
| 2025 | 28916 | JCCD - JC Conservation District | $2.53 | $2.53 | $0.00 | $0.00 | $5.06 | $0.00 |
| 2025 | 28916 | NWA - Noxious Weed Assessment | $2.15 | $2.15 | $0.00 | $0.00 | $4.30 | $0.00 |
| 2025 | 28916 | WAT - Clean Water District | $13.00 | $13.00 | $0.00 | $0.00 | $26.00 | $0.00 |
| 2025 | 28916 | FP ADMIN - FP ADMIN | $0.50 | $0.00 | $0.00 | $0.00 | $0.50 | $0.00 |
| 2025 | 28916 | TOTAL: | $1821.40 | $1820.82 | $0.00 | $0.00 | $3642.22 | $0.00 |
|
| 2025 | 28916 | $1821.40 | $1820.82 | $0.00 | $0.00 | $3642.22 | $0.00 |
Statement Details |
| 2024 | 28976 | STATE - STATE LEVY (SCHOOL) | $470.33 | $470.33 | $0.00 | $0.00 | $940.66 | $0.00 |
| 2024 | 28976 | COUNTY - COUNTY LEVIES (CE, DD, VET, MH) | $201.27 | $201.24 | $0.00 | $0.00 | $402.51 | $0.00 |
| 2024 | 28976 | CONSERVE - CONSERVATION FUTURES | $6.04 | $6.03 | $0.00 | $0.00 | $12.07 | $0.00 |
| 2024 | 28976 | CITYPT - CITY OF PT | $287.58 | $287.56 | $0.00 | $0.00 | $575.14 | $0.00 |
| 2024 | 28976 | PORTPT - PORT DISTRICT | $83.13 | $83.13 | $0.00 | $0.00 | $166.26 | $0.00 |
| 2024 | 28976 | PUD1 - PUD #1 | $13.22 | $13.22 | $0.00 | $0.00 | $26.44 | $0.00 |
| 2024 | 28976 | HD2 - HOSP DIST #2 | $11.75 | $11.74 | $0.00 | $0.00 | $23.49 | $0.00 |
| 2024 | 28976 | SD50 - SCHOOL DIST #50 | $380.53 | $380.51 | $0.00 | $0.00 | $761.04 | $0.00 |
| 2024 | 28976 | FD1 - FIRE DISTRICT #1 | $266.11 | $266.11 | $0.00 | $0.00 | $532.22 | $0.00 |
| 2024 | 28976 | EMS1 - FIRE DIST #1 EMS | $101.65 | $101.64 | $0.00 | $0.00 | $203.29 | $0.00 |
| 2024 | 28976 | JCCD - JC Conservation District | $2.53 | $2.53 | $0.00 | $0.00 | $5.06 | $0.00 |
| 2024 | 28976 | NWA - Noxious Weed Assessment | $2.15 | $2.15 | $0.00 | $0.00 | $4.30 | $0.00 |
| 2024 | 28976 | WAT - Clean Water District | $12.50 | $12.50 | $0.00 | $0.00 | $25.00 | $0.00 |
| 2024 | 28976 | TOTAL: | $1838.79 | $1838.69 | $0.00 | $0.00 | $3677.48 | $0.00 |
|
| 2024 | 28976 | $1838.79 | $1838.69 | $0.00 | $0.00 | $3677.48 | $0.00 |
Statement Details |
| 2023 | 29018 | STATE - STATE LEVY (SCHOOL) | $461.72 | $461.71 | $0.00 | $0.00 | $923.43 | $0.00 |
| 2023 | 29018 | COUNTY - COUNTY LEVIES (CE, DD, VET, MH) | $201.49 | $201.47 | $0.00 | $0.00 | $402.96 | $0.00 |
| 2023 | 29018 | CONSERVE - CONSERVATION FUTURES | $6.04 | $6.04 | $0.00 | $0.00 | $12.08 | $0.00 |
| 2023 | 29018 | CITYPT - CITY OF PT | $284.76 | $284.76 | $0.00 | $0.00 | $569.52 | $0.00 |
| 2023 | 29018 | PORTPT - PORT DISTRICT | $84.88 | $84.87 | $0.00 | $0.00 | $169.75 | $0.00 |
| 2023 | 29018 | PUD1 - PUD #1 | $13.36 | $13.35 | $0.00 | $0.00 | $26.71 | $0.00 |
| 2023 | 29018 | HD2 - HOSP DIST #2 | $11.76 | $11.76 | $0.00 | $0.00 | $23.52 | $0.00 |
| 2023 | 29018 | SD50 - SCHOOL DIST #50 | $366.38 | $366.38 | $0.00 | $0.00 | $732.76 | $0.00 |
| 2023 | 29018 | FD1 - FIRE DISTRICT #1 | $165.98 | $165.98 | $0.00 | $0.00 | $331.96 | $0.00 |
| 2023 | 29018 | EMS1 - FIRE DIST #1 EMS | $70.61 | $70.60 | $0.00 | $0.00 | $141.21 | $0.00 |
| 2023 | 29018 | JCCD - JC Conservation District | $2.53 | $2.53 | $0.00 | $0.00 | $5.06 | $0.00 |
| 2023 | 29018 | NWA - Noxious Weed Assessment | $2.15 | $2.15 | $0.00 | $0.00 | $4.30 | $0.00 |
| 2023 | 29018 | WAT - Clean Water District | $12.00 | $12.00 | $0.00 | $0.00 | $24.00 | $0.00 |
| 2023 | 29018 | TOTAL: | $1683.66 | $1683.60 | $0.00 | $0.00 | $3367.26 | $0.00 |
|
| 2023 | 29018 | $1683.66 | $1683.60 | $0.00 | $0.00 | $3367.26 | $0.00 |
Values
| (+) Improvement Homesite Value: | + | $0 | |
| (+) Improvement Non-Homesite Value: | + | $225,315 | |
| (+) Land Homesite Value: | + | $0 | |
| (+) Land Non-Homesite Value: | + | $215,755 | |
| (+) Curr Use (HS): | + | $0 | $0 |
| (+) Curr Use (NHS): | + | $0 | $0 |
| | | -------------------------- | |
| (=) Market Value: | = | $441,070 | |
| (–) Productivity Loss: | – | $0 | |
| | | -------------------------- | |
| (=) Subtotal: | = | $441,070 | |
| (+) Senior Appraised Value: | + | $0 | |
| (+) Non-Senior Appraised Value: | + | $441,070 | |
| | | -------------------------- | |
| (=) Total Appraised Value: | = | $441,070 | |
| (–) Senior Exemption Loss: | – | $0 | |
| (–) Exemption Loss: | – | $0 | |
| | | -------------------------- | |
| (=) Taxable Value: | = | $441,070 | |
Taxing Jurisdiction
| Owner: | THOMAS & KELLY VAIL | | |
| % Ownership: | 100.0000000000% | | |
| Total Value: | $441,070 | | |
| Tax Area: | 0110 - C-50F1E1H2 |
| CE | COUNTY CURRENT EXPENSE | 0.9034619479 | $441,070 | $441,070 | $398.49 | | |
| CNTYDD | DEVELOPMENTAL DISABILITIES | 0.0052121823 | $441,070 | $441,070 | $2.30 | | |
| CNTYVET | VETERANS RELIEF | 0.0052777810 | $441,070 | $441,070 | $2.33 | | |
| MENTAL | MENTAL HEALTH | 0.0052121823 | $441,070 | $441,070 | $2.30 | | |
| PTGEN | CITY OF PT GENERAL | 0.8551967795 | $441,070 | $441,070 | $377.20 | | |
| PTLLL | CITY OF PT - LIBRARY LID LIFT | 0.4010114288 | $441,070 | $441,070 | $176.87 | | |
| PTMVBOND | CITY OF PT MV BOND | 0.0484717981 | $441,070 | $441,070 | $21.38 | | |
| HOSP2CASH | HOSP DIST #2 GENERAL | 0.0536075306 | $441,070 | $441,070 | $23.64 | | |
| SCH50BOND | SCHOOL DIST #50 BOND 2016 | 0.5377451389 | $441,070 | $441,070 | $237.18 | | |
| SCH50CP | SCHOOL DIST #50 CAP PROJ | 0.4573475088 | $441,070 | $441,070 | $201.72 | | |
| SCH50MO | SCHOOL DIST #50 EP & O | 0.8262822886 | $441,070 | $441,070 | $364.45 | | |
| CONSERVE | CONSERVATION FUTURES | 0.0275621078 | $441,070 | $441,070 | $12.16 | | |
| EMS1 | FIRE DIST #1 EMS | 0.4679948282 | $441,070 | $441,070 | $206.42 | | |
| FD1 | FIRE DIST #1 GENERAL | 1.2171942929 | $441,070 | $441,070 | $536.87 | | |
| PORTPT | PORT OF PT GENERAL | 0.1134941229 | $441,070 | $441,070 | $50.06 | | |
| PORTPTIDD | PORT OF PT IDD 2019 | 0.2577346692 | $441,070 | $441,070 | $113.68 | | |
| PUD1 | PUD #1 GENERAL | 0.0597888892 | $441,070 | $441,070 | $26.37 | | |
| STATE | STATE SCHOOL PART 1 | 1.4940692947 | $441,070 | $441,070 | $658.99 | | |
| STATE2 | STATE SCHOOL PART 2 | 0.8050170049 | $441,070 | $441,070 | $355.07 | | |
| | Total Tax Rate: | 8.5416817766 | | | | | |
| | | | | Taxes w/Current Exemptions: | $3,767.48 | | |
| | | | | Taxes w/o Exemptions: | $3,767.48 | | |
Improvement / Building
| Improvement #1: | Commercial/Industrial/Government Bldg | State Code: | 20 | 2100.0 sqft | Value: | $225,315 |
| Bathrooms (#): | 1 (HALF) | Exterior Wall: | METAL | | Floor Construction: | CONCR | Foundation: | CONPR | | Heating/Cooling: | HPUMP | Inside Verify: | NO | | Roof Cover: | METAL |   |   |
|
Sketch
Property Image
Land
| 1 | 6190-6273Q | | 0.5380 | 23434.00 | 0.00 | 0.00 | 0.00 | $215,755 | $0 |
Roll Value History
| 2026 | N/A | N/A | N/A | N/A | N/A |
| 2025 | $225,315 | $215,755 | $0 | $441,070 | $441,070 |
| 2024 | $195,825 | $215,755 | $0 | $411,580 | $411,580 |
| 2023 | $195,825 | $210,755 | $0 | $406,580 | $406,580 |
| 2022 | $186,500 | $205,755 | $0 | $392,255 | $392,255 |
Deed and Sales History
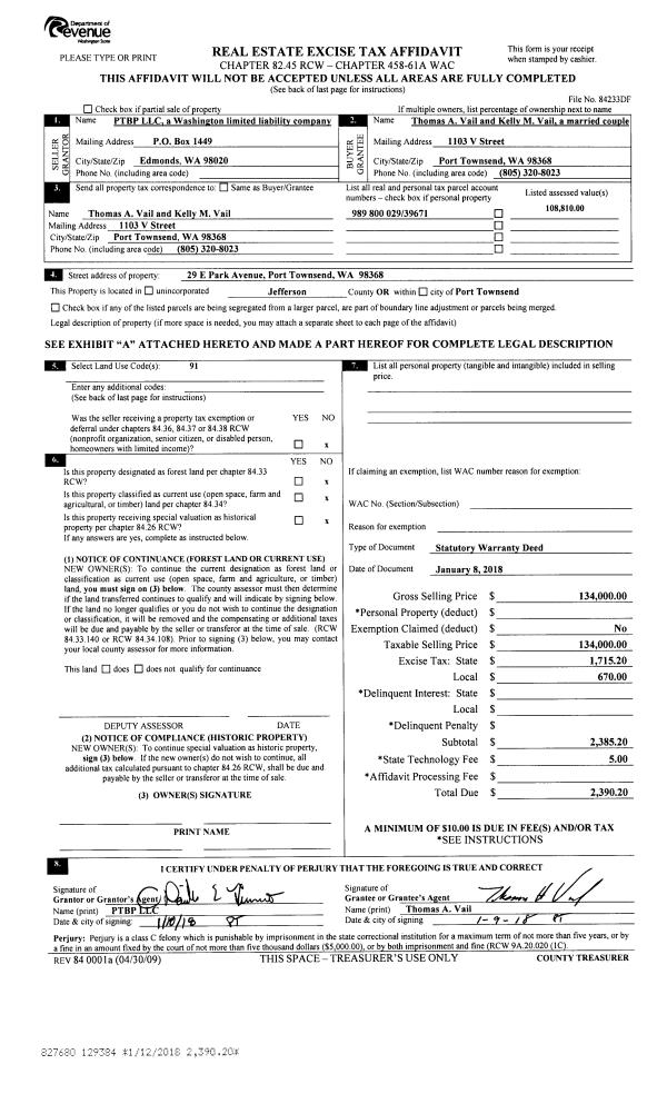
| 1 | 01/08/2018 | SWD | Statutory Warranty Deed | PTBP LLC | THOMAS & KELLY VAIL | | | $134,000.00 | 129384 | |
Payout Agreement
| No payout information available.. |