| 1 | 10/06/2022 | SWD | Statutory Warranty Deed | OLYMPIC COMMUNITY ACTION PROGR | JEFFERSON COUNTY PUBLIC HOSPITAL DISTRICT #2 | | | | 140242 | |
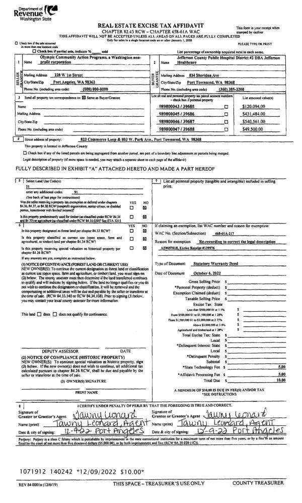
| 2 | 10/06/2022 | SWD | Statutory Warranty Deed | OLYMPIC COMMUNITY ACTION PROGR | JEFFERSON COUNTY PUBLIC HOSPITAL DISTRICT #2 | | | $1,623,000.00 | 139976 | |
|   | |
| 3 | 07/01/2008 | SWD | Statutory Warranty Deed | PTBP LLC | OLYMPIC COMMUNITY ACTION PROGR | | | $1,815,322.00 | 111538 | 0 |
| 4 | 12/29/1997 | WD | Warranty Deed | NORTH SOUND BANK | PTBP LLC | 0 | 0 | $808,947.00 | 83540 | 0 |
|   | |
| 5 | 10/13/1997 | TRED | Trustee Deed | IRBY, JAMES S/TRUSTEE | NORTH SOUND BANK | 0 | 0 | $0.00 | 83049 | 0 |