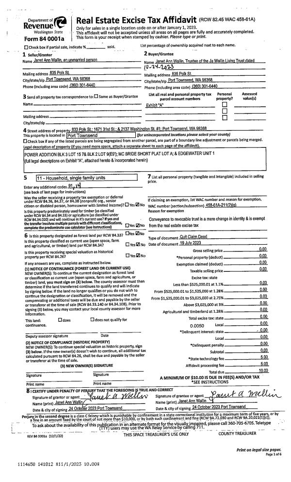
Property
Account |
| Property ID: | 39725 | Abbreviated Legal Description: | POWER ADDITION BLK 2 LOT 9(E9') |
| Parcel # / Geo ID: | 990000205 | Agent Code: | |
| Type: | Real | | |
| Tax Area: | 0110 - C-50F1E1H2 | Land Use Code | 18 |
| Open Space: | N | DFL | N |
| Historic Property: | N | Remodel Property: | N |
| Multi-Family Redevelopment: | N | | |
| Township: | 30N | Section: | 2 |
| Range: | 1W |
Location |
| Address: | | Mapsco: | 127/009 |
| Neighborhood: | BARTLETT,DENNYS,NOLTONS,LEARNEDS 1ST, POWER,WINSLOW & TX #'S | Map ID: | |
| Neighborhood CD: | 6360 |
Owner |
| Name: | JANET A WALLIN | Owner ID: | 29837 |
| Mailing Address: | C/O KAILEA WALLIN 1671 31ST ST PORT TOWNSEND, WA 98368 | % Ownership: | 100.0000000000% |
| | | Exemptions: | |
Pay Tax Due
Select the appropriate checkbox next to the year to be paid. Multiple years may be selected.
*Convenience Fee not included
Taxes and Assessment Details
Property Tax Information as of
03/11/2026
Click on "Statement Details" to expand or collapse a tax statement.
* Please enter a valid date ** Please enter a valid date *
Statement Details |
| 2026 | 28898 | STATE - STATE LEVY (SCHOOL) | $14.33 | $14.32 | $0.00 | $0.00 | $0.00 | $28.65 |
| 2026 | 28898 | COUNTY - COUNTY LEVIES (CE, DD, VET, MH) | $5.73 | $5.72 | $0.00 | $0.00 | $0.00 | $11.45 |
| 2026 | 28898 | CONSERVE - CONSERVATION FUTURES | $0.17 | $0.17 | $0.00 | $0.00 | $0.00 | $0.34 |
| 2026 | 28898 | CITYPT - CITY OF PT | $8.13 | $8.13 | $0.00 | $0.00 | $0.00 | $16.26 |
| 2026 | 28898 | PORTPT - PORT DISTRICT | $2.32 | $2.30 | $0.00 | $0.00 | $0.00 | $4.62 |
| 2026 | 28898 | PUD1 - PUD #1 | $0.38 | $0.37 | $0.00 | $0.00 | $0.00 | $0.75 |
| 2026 | 28898 | HD2 - HOSP DIST #2 | $0.34 | $0.33 | $0.00 | $0.00 | $0.00 | $0.67 |
| 2026 | 28898 | SD50 - SCHOOL DIST #50 | $11.35 | $11.35 | $0.00 | $0.00 | $0.00 | $22.70 |
| 2026 | 28898 | FD1 - FIRE DISTRICT #1 | $7.59 | $7.58 | $0.00 | $0.00 | $0.00 | $15.17 |
| 2026 | 28898 | EMS1 - FIRE DIST #1 EMS | $2.92 | $2.91 | $0.00 | $0.00 | $0.00 | $5.83 |
| 2026 | 28898 | JCCD - JC Conservation District | $2.55 | $2.55 | $0.00 | $0.00 | $0.00 | $5.10 |
| 2026 | 28898 | NWA - Noxious Weed Assessment | $2.98 | $2.97 | $0.00 | $0.00 | $0.00 | $5.95 |
| 2026 | 28898 | WAT - Clean Water District | $13.00 | $13.00 | $0.00 | $0.00 | $0.00 | $26.00 |
| 2026 | 28898 | TOTAL: | $71.79 | $71.70 | $0.00 | $0.00 | $0.00 | $143.49 |
|
| 2026 | 28898 | $71.79 | $71.70 | $0.00 | $0.00 | $0.00 | $143.49 |
Statement Details |
| 2025 | 28970 | STATE - STATE LEVY (SCHOOL) | $13.60 | $13.60 | $0.00 | $0.00 | $27.20 | $0.00 |
| 2025 | 28970 | COUNTY - COUNTY LEVIES (CE, DD, VET, MH) | $5.35 | $5.34 | $0.00 | $0.00 | $10.69 | $0.00 |
| 2025 | 28970 | CONSERVE - CONSERVATION FUTURES | $0.16 | $0.16 | $0.00 | $0.00 | $0.32 | $0.00 |
| 2025 | 28970 | CITYPT - CITY OF PT | $7.71 | $7.71 | $0.00 | $0.00 | $15.42 | $0.00 |
| 2025 | 28970 | PORTPT - PORT DISTRICT | $2.18 | $2.18 | $0.00 | $0.00 | $4.36 | $0.00 |
| 2025 | 28970 | PUD1 - PUD #1 | $0.35 | $0.35 | $0.00 | $0.00 | $0.70 | $0.00 |
| 2025 | 28970 | HD2 - HOSP DIST #2 | $0.31 | $0.31 | $0.00 | $0.00 | $0.62 | $0.00 |
| 2025 | 28970 | SD50 - SCHOOL DIST #50 | $9.94 | $9.93 | $0.00 | $0.00 | $19.87 | $0.00 |
| 2025 | 28970 | FD1 - FIRE DISTRICT #1 | $7.06 | $7.05 | $0.00 | $0.00 | $14.11 | $0.00 |
| 2025 | 28970 | EMS1 - FIRE DIST #1 EMS | $2.72 | $2.71 | $0.00 | $0.00 | $5.43 | $0.00 |
| 2025 | 28970 | JCCD - JC Conservation District | $2.53 | $2.53 | $0.00 | $0.00 | $5.06 | $0.00 |
| 2025 | 28970 | NWA - Noxious Weed Assessment | $2.15 | $2.15 | $0.00 | $0.00 | $4.30 | $0.00 |
| 2025 | 28970 | WAT - Clean Water District | $13.00 | $13.00 | $0.00 | $0.00 | $26.00 | $0.00 |
| 2025 | 28970 | TOTAL: | $67.06 | $67.02 | $0.00 | $0.00 | $134.08 | $0.00 |
|
| 2025 | 28970 | $67.06 | $67.02 | $0.00 | $0.00 | $134.08 | $0.00 |
Statement Details |
| 2024 | 29030 | STATE - STATE LEVY (SCHOOL) | $12.49 | $12.49 | $0.00 | $0.00 | $24.98 | $0.00 |
| 2024 | 29030 | COUNTY - COUNTY LEVIES (CE, DD, VET, MH) | $5.35 | $5.34 | $0.00 | $0.00 | $10.69 | $0.00 |
| 2024 | 29030 | CONSERVE - CONSERVATION FUTURES | $0.16 | $0.16 | $0.00 | $0.00 | $0.32 | $0.00 |
| 2024 | 29030 | CITYPT - CITY OF PT | $7.65 | $7.63 | $0.00 | $0.00 | $15.28 | $0.00 |
| 2024 | 29030 | PORTPT - PORT DISTRICT | $2.21 | $2.21 | $0.00 | $0.00 | $4.42 | $0.00 |
| 2024 | 29030 | PUD1 - PUD #1 | $0.35 | $0.35 | $0.00 | $0.00 | $0.70 | $0.00 |
| 2024 | 29030 | HD2 - HOSP DIST #2 | $0.31 | $0.31 | $0.00 | $0.00 | $0.62 | $0.00 |
| 2024 | 29030 | SD50 - SCHOOL DIST #50 | $10.11 | $10.10 | $0.00 | $0.00 | $20.21 | $0.00 |
| 2024 | 29030 | FD1 - FIRE DISTRICT #1 | $7.07 | $7.07 | $0.00 | $0.00 | $14.14 | $0.00 |
| 2024 | 29030 | EMS1 - FIRE DIST #1 EMS | $2.70 | $2.70 | $0.00 | $0.00 | $5.40 | $0.00 |
| 2024 | 29030 | JCCD - JC Conservation District | $2.53 | $2.53 | $0.00 | $0.00 | $5.06 | $0.00 |
| 2024 | 29030 | NWA - Noxious Weed Assessment | $2.15 | $2.15 | $0.00 | $0.00 | $4.30 | $0.00 |
| 2024 | 29030 | WAT - Clean Water District | $12.50 | $12.50 | $0.00 | $0.00 | $25.00 | $0.00 |
| 2024 | 29030 | TOTAL: | $65.58 | $65.54 | $0.00 | $0.00 | $131.12 | $0.00 |
|
| 2024 | 29030 | $65.58 | $65.54 | $0.00 | $0.00 | $131.12 | $0.00 |
Statement Details |
| 2023 | 29072 | STATE - STATE LEVY (SCHOOL) | $12.71 | $12.71 | $0.00 | $0.00 | $25.42 | $0.00 |
| 2023 | 29072 | COUNTY - COUNTY LEVIES (CE, DD, VET, MH) | $5.54 | $5.54 | $0.00 | $0.00 | $11.08 | $0.00 |
| 2023 | 29072 | CONSERVE - CONSERVATION FUTURES | $0.17 | $0.16 | $0.00 | $0.00 | $0.33 | $0.00 |
| 2023 | 29072 | CITYPT - CITY OF PT | $7.85 | $7.83 | $0.00 | $0.00 | $15.68 | $0.00 |
| 2023 | 29072 | PORTPT - PORT DISTRICT | $2.34 | $2.33 | $0.00 | $0.00 | $4.67 | $0.00 |
| 2023 | 29072 | PUD1 - PUD #1 | $0.37 | $0.37 | $0.00 | $0.00 | $0.74 | $0.00 |
| 2023 | 29072 | HD2 - HOSP DIST #2 | $0.33 | $0.32 | $0.00 | $0.00 | $0.65 | $0.00 |
| 2023 | 29072 | SD50 - SCHOOL DIST #50 | $10.09 | $10.08 | $0.00 | $0.00 | $20.17 | $0.00 |
| 2023 | 29072 | FD1 - FIRE DISTRICT #1 | $4.57 | $4.57 | $0.00 | $0.00 | $9.14 | $0.00 |
| 2023 | 29072 | EMS1 - FIRE DIST #1 EMS | $1.95 | $1.94 | $0.00 | $0.00 | $3.89 | $0.00 |
| 2023 | 29072 | JCCD - JC Conservation District | $2.53 | $2.53 | $0.00 | $0.00 | $5.06 | $0.00 |
| 2023 | 29072 | NWA - Noxious Weed Assessment | $2.15 | $2.15 | $0.00 | $0.00 | $4.30 | $0.00 |
| 2023 | 29072 | WAT - Clean Water District | $12.00 | $12.00 | $0.00 | $0.00 | $24.00 | $0.00 |
| 2023 | 29072 | TOTAL: | $62.60 | $62.53 | $0.00 | $0.00 | $125.13 | $0.00 |
|
| 2023 | 29072 | $62.60 | $62.53 | $0.00 | $0.00 | $125.13 | $0.00 |
Values
| (+) Improvement Homesite Value: | + | $0 | |
| (+) Improvement Non-Homesite Value: | + | $761 | |
| (+) Land Homesite Value: | + | $0 | |
| (+) Land Non-Homesite Value: | + | $11,700 | |
| (+) Curr Use (HS): | + | $0 | $0 |
| (+) Curr Use (NHS): | + | $0 | $0 |
| | | -------------------------- | |
| (=) Market Value: | = | $12,461 | |
| (–) Productivity Loss: | – | $0 | |
| | | -------------------------- | |
| (=) Subtotal: | = | $12,461 | |
| (+) Senior Appraised Value: | + | $0 | |
| (+) Non-Senior Appraised Value: | + | $12,461 | |
| | | -------------------------- | |
| (=) Total Appraised Value: | = | $12,461 | |
| (–) Senior Exemption Loss: | – | $0 | |
| (–) Exemption Loss: | – | $0 | |
| | | -------------------------- | |
| (=) Taxable Value: | = | $12,461 | |
Taxing Jurisdiction
| Owner: | JANET A WALLIN | | |
| % Ownership: | 100.0000000000% | | |
| Total Value: | $12,461 | | |
| Tax Area: | 0110 - C-50F1E1H2 |
| CE | COUNTY CURRENT EXPENSE | 0.9034619479 | $12,461 | $12,461 | $11.26 | | |
| CNTYDD | DEVELOPMENTAL DISABILITIES | 0.0052121823 | $12,461 | $12,461 | $0.06 | | |
| CNTYVET | VETERANS RELIEF | 0.0052777810 | $12,461 | $12,461 | $0.07 | | |
| MENTAL | MENTAL HEALTH | 0.0052121823 | $12,461 | $12,461 | $0.06 | | |
| PTGEN | CITY OF PT GENERAL | 0.8551967795 | $12,461 | $12,461 | $10.66 | | |
| PTLLL | CITY OF PT - LIBRARY LID LIFT | 0.4010114288 | $12,461 | $12,461 | $5.00 | | |
| PTMVBOND | CITY OF PT MV BOND | 0.0484717981 | $12,461 | $12,461 | $0.60 | | |
| HOSP2CASH | HOSP DIST #2 GENERAL | 0.0536075306 | $12,461 | $12,461 | $0.67 | | |
| SCH50BOND | SCHOOL DIST #50 BOND 2016 | 0.5377451389 | $12,461 | $12,461 | $6.70 | | |
| SCH50CP | SCHOOL DIST #50 CAP PROJ | 0.4573475088 | $12,461 | $12,461 | $5.70 | | |
| SCH50MO | SCHOOL DIST #50 EP & O | 0.8262822886 | $12,461 | $12,461 | $10.30 | | |
| CONSERVE | CONSERVATION FUTURES | 0.0275621078 | $12,461 | $12,461 | $0.34 | | |
| EMS1 | FIRE DIST #1 EMS | 0.4679948282 | $12,461 | $12,461 | $5.83 | | |
| FD1 | FIRE DIST #1 GENERAL | 1.2171942929 | $12,461 | $12,461 | $15.17 | | |
| PORTPT | PORT OF PT GENERAL | 0.1134941229 | $12,461 | $12,461 | $1.41 | | |
| PORTPTIDD | PORT OF PT IDD 2019 | 0.2577346692 | $12,461 | $12,461 | $3.21 | | |
| PUD1 | PUD #1 GENERAL | 0.0597888892 | $12,461 | $12,461 | $0.75 | | |
| STATE | STATE SCHOOL PART 1 | 1.4940692947 | $12,461 | $12,461 | $18.62 | | |
| STATE2 | STATE SCHOOL PART 2 | 0.8050170049 | $12,461 | $12,461 | $10.03 | | |
| | Total Tax Rate: | 8.5416817766 | | | | | |
| | | | | Taxes w/Current Exemptions: | $106.44 | | |
| | | | | Taxes w/o Exemptions: | $106.44 | | |
Improvement / Building
| Improvement #1: | Site Improvements | State Code: | 98 | 0.0 sqft | Value: | $761 |
Sketch
| No sketches available for this property. |
Property Image
Land
| 1 | 6360-1185L | | 0.0000 | 0.00 | 0.00 | 0.00 | 1.00 | $11,700 | $0 |
Roll Value History
| 2026 | N/A | N/A | N/A | N/A | N/A |
| 2025 | $761 | $11,700 | $0 | $12,461 | $12,461 |
| 2024 | $0 | $11,340 | $0 | $11,340 | $11,340 |
| 2023 | $0 | $10,800 | $0 | $10,800 | $10,800 |
| 2022 | $0 | $10,800 | $0 | $10,800 | $10,800 |
Deed and Sales History
Payout Agreement
| No payout information available.. |