Property
Account |
| Property ID: | 39744 | Abbreviated Legal Description: | PORT LUDLOW NO 7 LOT 13 SUBJ TO ESMTS OF RECORD |
| Parcel # / Geo ID: | 990100013 | Agent Code: | |
| Type: | Real | | |
| Tax Area: | 0213 - 1-49F1E1H2L1 | Land Use Code | 11 |
| Open Space: | N | DFL | N |
| Historic Property: | N | Remodel Property: | N |
| Multi-Family Redevelopment: | N | | |
| Township: | 28N | Section: | 17 |
| Range: | 1E |
Location |
| Address: | 717 RAINIER LN PORT LUDLOW, WA 98365 | Mapsco: | 117/033 |
| Neighborhood: | PORT LUDLOW #1 AREAS 1 AND 5; PORT LUDLOW # 7 | Map ID: | |
| Neighborhood CD: | 3330 |
Owner |
| Name: | RICHARD MYERS & SHARLENE SHIROMA | Owner ID: | 95750 |
| Mailing Address: | 717 RAINIER LANE PORT LUDLOW, WA 98365 | % Ownership: | 100.0000000000% |
| | | Exemptions: | |
Pay Tax Due
Select the appropriate checkbox next to the year to be paid. Multiple years may be selected.
*Convenience Fee not included
Taxes and Assessment Details
Property Tax Information as of
03/10/2026
Click on "Statement Details" to expand or collapse a tax statement.
* Please enter a valid date ** Please enter a valid date *
Statement Details |
| 2026 | 28917 | STATE - STATE LEVY (SCHOOL) | $1133.87 | $1133.86 | $0.00 | $0.00 | $0.00 | $2267.73 |
| 2026 | 28917 | COUNTY - COUNTY LEVIES (CE, DD, VET, MH) | $453.32 | $453.31 | $0.00 | $0.00 | $0.00 | $906.63 |
| 2026 | 28917 | CONSERVE - CONSERVATION FUTURES | $13.60 | $13.59 | $0.00 | $0.00 | $0.00 | $27.19 |
| 2026 | 28917 | COROADS - COUNTY ROADS (ROADS, DIV TO CE) | $365.70 | $365.69 | $0.00 | $0.00 | $0.00 | $731.39 |
| 2026 | 28917 | PORTPT - PORT DISTRICT | $183.09 | $183.08 | $0.00 | $0.00 | $0.00 | $366.17 |
| 2026 | 28917 | PUD1 - PUD #1 | $29.49 | $29.48 | $0.00 | $0.00 | $0.00 | $58.97 |
| 2026 | 28917 | LIB1 - LIBRARY DIST #1 | $141.49 | $141.48 | $0.00 | $0.00 | $0.00 | $282.97 |
| 2026 | 28917 | HD2 - HOSP DIST #2 | $26.44 | $26.44 | $0.00 | $0.00 | $0.00 | $52.88 |
| 2026 | 28917 | SD49 - SCHOOL DIST #49 | $624.16 | $624.14 | $0.00 | $0.00 | $0.00 | $1248.30 |
| 2026 | 28917 | FD1 - FIRE DISTRICT #1 | $600.30 | $600.29 | $0.00 | $0.00 | $0.00 | $1200.59 |
| 2026 | 28917 | EMS1 - FIRE DIST #1 EMS | $230.81 | $230.80 | $0.00 | $0.00 | $0.00 | $461.61 |
| 2026 | 28917 | FP - DNR Forest Fire Protection Assmt | $8.50 | $8.50 | $0.00 | $0.00 | $0.00 | $17.00 |
| 2026 | 28917 | FPLCA - DNR Landowner Contingency Assmt | $3.00 | $3.00 | $0.00 | $0.00 | $0.00 | $6.00 |
| 2026 | 28917 | JCCD - JC Conservation District | $2.55 | $2.55 | $0.00 | $0.00 | $0.00 | $5.10 |
| 2026 | 28917 | LUD - PT Ludlow Drainage District | $53.80 | $53.80 | $0.00 | $0.00 | $0.00 | $107.60 |
| 2026 | 28917 | NWA - Noxious Weed Assessment | $2.98 | $2.97 | $0.00 | $0.00 | $0.00 | $5.95 |
| 2026 | 28917 | Drain - DRAINAGE DISTRICT FEE | $1.08 | $0.00 | $0.00 | $0.00 | $0.00 | $1.08 |
| 2026 | 28917 | FP ADMIN - FP ADMIN | $0.50 | $0.00 | $0.00 | $0.00 | $0.00 | $0.50 |
| 2026 | 28917 | TOTAL: | $3874.68 | $3872.98 | $0.00 | $0.00 | $0.00 | $7747.66 |
|
| 2026 | 28917 | $3874.68 | $3872.98 | $0.00 | $0.00 | $0.00 | $7747.66 |
Statement Details |
| 2025 | 28989 | STATE - STATE LEVY (SCHOOL) | $1182.66 | $1182.66 | $0.00 | $0.00 | $2365.32 | $0.00 |
| 2025 | 28989 | COUNTY - COUNTY LEVIES (CE, DD, VET, MH) | $465.08 | $465.06 | $0.00 | $0.00 | $930.14 | $0.00 |
| 2025 | 28989 | CONSERVE - CONSERVATION FUTURES | $13.95 | $13.94 | $0.00 | $0.00 | $27.89 | $0.00 |
| 2025 | 28989 | COROADS - COUNTY ROADS (ROADS, DIV TO CE) | $372.61 | $372.59 | $0.00 | $0.00 | $745.20 | $0.00 |
| 2025 | 28989 | PORTPT - PORT DISTRICT | $189.78 | $189.77 | $0.00 | $0.00 | $379.55 | $0.00 |
| 2025 | 28989 | PUD1 - PUD #1 | $30.43 | $30.43 | $0.00 | $0.00 | $60.86 | $0.00 |
| 2025 | 28989 | LIB1 - LIBRARY DIST #1 | $144.16 | $144.15 | $0.00 | $0.00 | $288.31 | $0.00 |
| 2025 | 28989 | HD2 - HOSP DIST #2 | $27.14 | $27.13 | $0.00 | $0.00 | $54.27 | $0.00 |
| 2025 | 28989 | SD49 - SCHOOL DIST #49 | $633.84 | $633.83 | $0.00 | $0.00 | $1267.67 | $0.00 |
| 2025 | 28989 | FD1 - FIRE DISTRICT #1 | $613.72 | $613.71 | $0.00 | $0.00 | $1227.43 | $0.00 |
| 2025 | 28989 | EMS1 - FIRE DIST #1 EMS | $236.05 | $236.05 | $0.00 | $0.00 | $472.10 | $0.00 |
| 2025 | 28989 | FP - DNR Forest Fire Protection Assmt | $8.50 | $8.50 | $0.00 | $0.00 | $17.00 | $0.00 |
| 2025 | 28989 | FPLCA - DNR Landowner Contingency Assmt | $3.00 | $3.00 | $0.00 | $0.00 | $6.00 | $0.00 |
| 2025 | 28989 | JCCD - JC Conservation District | $2.55 | $2.55 | $0.00 | $0.00 | $5.10 | $0.00 |
| 2025 | 28989 | LUD - PT Ludlow Drainage District | $43.11 | $43.11 | $0.00 | $0.00 | $86.22 | $0.00 |
| 2025 | 28989 | NWA - Noxious Weed Assessment | $2.15 | $2.15 | $0.00 | $0.00 | $4.30 | $0.00 |
| 2025 | 28989 | Drain - DRAINAGE DISTRICT FEE | $0.86 | $0.00 | $0.00 | $0.00 | $0.86 | $0.00 |
| 2025 | 28989 | FP ADMIN - FP ADMIN | $0.50 | $0.00 | $0.00 | $0.00 | $0.50 | $0.00 |
| 2025 | 28989 | TOTAL: | $3970.09 | $3968.63 | $0.00 | $0.00 | $7938.72 | $0.00 |
|
| 2025 | 28989 | $3970.09 | $3968.63 | $0.00 | $0.00 | $7938.72 | $0.00 |
Statement Details |
| 2024 | 29049 | STATE - STATE LEVY (SCHOOL) | $1075.22 | $1075.21 | $0.00 | $0.00 | $2150.43 | $0.00 |
| 2024 | 29049 | COUNTY - COUNTY LEVIES (CE, DD, VET, MH) | $460.10 | $460.10 | $0.00 | $0.00 | $920.20 | $0.00 |
| 2024 | 29049 | CONSERVE - CONSERVATION FUTURES | $13.80 | $13.79 | $0.00 | $0.00 | $27.59 | $0.00 |
| 2024 | 29049 | COROADS - COUNTY ROADS (ROADS, DIV TO CE) | $370.23 | $370.22 | $0.00 | $0.00 | $740.45 | $0.00 |
| 2024 | 29049 | PORTPT - PORT DISTRICT | $190.04 | $190.04 | $0.00 | $0.00 | $380.08 | $0.00 |
| 2024 | 29049 | PUD1 - PUD #1 | $30.22 | $30.22 | $0.00 | $0.00 | $60.44 | $0.00 |
| 2024 | 29049 | LIB1 - LIBRARY DIST #1 | $143.24 | $143.23 | $0.00 | $0.00 | $286.47 | $0.00 |
| 2024 | 29049 | HD2 - HOSP DIST #2 | $26.85 | $26.84 | $0.00 | $0.00 | $53.69 | $0.00 |
| 2024 | 29049 | SD49 - SCHOOL DIST #49 | $480.14 | $480.13 | $0.00 | $0.00 | $960.27 | $0.00 |
| 2024 | 29049 | FD1 - FIRE DISTRICT #1 | $608.36 | $608.35 | $0.00 | $0.00 | $1216.71 | $0.00 |
| 2024 | 29049 | EMS1 - FIRE DIST #1 EMS | $232.37 | $232.37 | $0.00 | $0.00 | $464.74 | $0.00 |
| 2024 | 29049 | FP - DNR Forest Fire Protection Assmt | $8.50 | $8.50 | $0.00 | $0.00 | $17.00 | $0.00 |
| 2024 | 29049 | FPLCA - DNR Landowner Contingency Assmt | $3.00 | $3.00 | $0.00 | $0.00 | $6.00 | $0.00 |
| 2024 | 29049 | JCCD - JC Conservation District | $2.55 | $2.55 | $0.00 | $0.00 | $5.10 | $0.00 |
| 2024 | 29049 | LUD - PT Ludlow Drainage District | $37.82 | $37.81 | $0.00 | $0.00 | $75.63 | $0.00 |
| 2024 | 29049 | NWA - Noxious Weed Assessment | $2.15 | $2.15 | $0.00 | $0.00 | $4.30 | $0.00 |
| 2024 | 29049 | Drain - DRAINAGE DISTRICT FEE | $0.76 | $0.00 | $0.00 | $0.00 | $0.76 | $0.00 |
| 2024 | 29049 | FP ADMIN - FP ADMIN | $0.50 | $0.00 | $0.00 | $0.00 | $0.50 | $0.00 |
| 2024 | 29049 | TOTAL: | $3685.85 | $3684.51 | $0.00 | $0.00 | $7370.36 | $0.00 |
|
| 2024 | 29049 | $3685.85 | $3684.51 | $0.00 | $0.00 | $7370.36 | $0.00 |
Statement Details |
| 2023 | 29091 | STATE - STATE LEVY (SCHOOL) | $1047.42 | $1047.40 | $0.00 | $0.00 | $2094.82 | $0.00 |
| 2023 | 29091 | COUNTY - COUNTY LEVIES (CE, DD, VET, MH) | $457.07 | $457.04 | $0.00 | $0.00 | $914.11 | $0.00 |
| 2023 | 29091 | CONSERVE - CONSERVATION FUTURES | $13.71 | $13.70 | $0.00 | $0.00 | $27.41 | $0.00 |
| 2023 | 29091 | COROADS - COUNTY ROADS (ROADS, DIV TO CE) | $369.79 | $369.79 | $0.00 | $0.00 | $739.58 | $0.00 |
| 2023 | 29091 | PORTPT - PORT DISTRICT | $192.55 | $192.53 | $0.00 | $0.00 | $385.08 | $0.00 |
| 2023 | 29091 | PUD1 - PUD #1 | $30.30 | $30.29 | $0.00 | $0.00 | $60.59 | $0.00 |
| 2023 | 29091 | LIB1 - LIBRARY DIST #1 | $143.07 | $143.07 | $0.00 | $0.00 | $286.14 | $0.00 |
| 2023 | 29091 | HD2 - HOSP DIST #2 | $26.68 | $26.67 | $0.00 | $0.00 | $53.35 | $0.00 |
| 2023 | 29091 | SD49 - SCHOOL DIST #49 | $489.61 | $489.61 | $0.00 | $0.00 | $979.22 | $0.00 |
| 2023 | 29091 | FD3 - FIRE DISTRICT #3 | $454.71 | $454.71 | $0.00 | $0.00 | $909.42 | $0.00 |
| 2023 | 29091 | EMS3 - FIRE DIST #3 EMS | $162.56 | $162.56 | $0.00 | $0.00 | $325.12 | $0.00 |
| 2023 | 29091 | FP - DNR Forest Fire Protection Assmt | $8.50 | $8.50 | $0.00 | $0.00 | $17.00 | $0.00 |
| 2023 | 29091 | FPLCA - DNR Landowner Contingency Assmt | $3.00 | $3.00 | $0.00 | $0.00 | $6.00 | $0.00 |
| 2023 | 29091 | JCCD - JC Conservation District | $2.55 | $2.55 | $0.00 | $0.00 | $5.10 | $0.00 |
| 2023 | 29091 | LUD - PT Ludlow Drainage District | $37.99 | $37.98 | $0.00 | $0.00 | $75.97 | $0.00 |
| 2023 | 29091 | NWA - Noxious Weed Assessment | $2.15 | $2.15 | $0.00 | $0.00 | $4.30 | $0.00 |
| 2023 | 29091 | Drain - DRAINAGE DISTRICT FEE | $0.76 | $0.00 | $0.00 | $0.00 | $0.76 | $0.00 |
| 2023 | 29091 | FP ADMIN - FP ADMIN | $0.50 | $0.00 | $0.00 | $0.00 | $0.50 | $0.00 |
| 2023 | 29091 | TOTAL: | $3442.92 | $3441.55 | $0.00 | $0.00 | $6884.47 | $0.00 |
|
| 2023 | 29091 | $3442.92 | $3441.55 | $0.00 | $0.00 | $6884.47 | $0.00 |
Values
| (+) Improvement Homesite Value: | + | $0 | |
| (+) Improvement Non-Homesite Value: | + | $796,611 | |
| (+) Land Homesite Value: | + | $0 | |
| (+) Land Non-Homesite Value: | + | $189,750 | |
| (+) Curr Use (HS): | + | $0 | $0 |
| (+) Curr Use (NHS): | + | $0 | $0 |
| | | -------------------------- | |
| (=) Market Value: | = | $986,361 | |
| (–) Productivity Loss: | – | $0 | |
| | | -------------------------- | |
| (=) Subtotal: | = | $986,361 | |
| (+) Senior Appraised Value: | + | $0 | |
| (+) Non-Senior Appraised Value: | + | $986,361 | |
| | | -------------------------- | |
| (=) Total Appraised Value: | = | $986,361 | |
| (–) Senior Exemption Loss: | – | $0 | |
| (–) Exemption Loss: | – | $0 | |
| | | -------------------------- | |
| (=) Taxable Value: | = | $986,361 | |
Taxing Jurisdiction
| Owner: | RICHARD MYERS & SHARLENE SHIROMA | | |
| % Ownership: | 100.0000000000% | | |
| Total Value: | $986,361 | | |
| Tax Area: | 0213 - 1-49F1E1H2L1 |
| CE | COUNTY CURRENT EXPENSE | 0.9034619479 | $986,361 | $986,361 | $891.14 | | |
| CNTYDD | DEVELOPMENTAL DISABILITIES | 0.0052121823 | $986,361 | $986,361 | $5.14 | | |
| CNTYVET | VETERANS RELIEF | 0.0052777810 | $986,361 | $986,361 | $5.21 | | |
| MENTAL | MENTAL HEALTH | 0.0052121823 | $986,361 | $986,361 | $5.14 | | |
| ROADS | COUNTY ROADS | 0.7415066410 | $986,361 | $986,361 | $731.39 | | |
| ROADSCU | COUNTY ROADS TO CUR EXP | 0.0000000000 | $986,361 | $986,361 | $0.00 | | |
| HOSP2CASH | HOSP DIST #2 GENERAL | 0.0536075306 | $986,361 | $986,361 | $52.88 | | |
| SCH49CP | SCHOOL DIST #49 CAP PROJ | 0.6279093905 | $986,361 | $986,361 | $619.35 | | |
| SCH49MO | SCHOOL DIST #49 EP & O | 0.6376483602 | $986,361 | $986,361 | $628.95 | | |
| CONSERVE | CONSERVATION FUTURES | 0.0275621078 | $986,361 | $986,361 | $27.19 | | |
| EMS1 | FIRE DIST #1 EMS | 0.4679948282 | $986,361 | $986,361 | $461.61 | | |
| FD1 | FIRE DIST #1 GENERAL | 1.2171942929 | $986,361 | $986,361 | $1,200.59 | | |
| LIB1 | LIBRARY DIST #1 GENERAL | 0.2868827388 | $986,361 | $986,361 | $282.97 | | |
| PORTPT | PORT OF PT GENERAL | 0.1134941229 | $986,361 | $986,361 | $111.95 | | |
| PORTPTIDD | PORT OF PT IDD 2019 | 0.2577346692 | $986,361 | $986,361 | $254.22 | | |
| PUD1 | PUD #1 GENERAL | 0.0597888892 | $986,361 | $986,361 | $58.97 | | |
| STATE | STATE SCHOOL PART 1 | 1.4940692947 | $986,361 | $986,361 | $1,473.69 | | |
| STATE2 | STATE SCHOOL PART 2 | 0.8050170049 | $986,361 | $986,361 | $794.04 | | |
| | Total Tax Rate: | 7.7095739644 | | | | | |
| | | | | Taxes w/Current Exemptions: | $7,604.43 | | |
| | | | | Taxes w/o Exemptions: | $7,604.43 | | |
Improvement / Building
| Improvement #1: | Residential Bldg | State Code: | 11 | 1753.0 sqft | Value: | $796,611 |
| Bathrooms (#): | 2 (FULL) | Bathrooms (#): | 1 (HALF) | | Bedrooms (#): | 3 | Exterior Wall: | SI/ST | | Fireplace: | SIN 1-GOOD | Fireplace: | SIN 2-GOOD | | Floor Construction: | FRAME | Foundation: | CONPR | | Heating/Cooling: | F/A | Inside Verify: | YES-FIX | | Roof Cover: | COMP |   |   |
|
| | Type | Description | Class CD | Sub Class CD | Year Built | Area |
| | MA | Main Area | 5+ | 1S | 1998 | 1753.0 |
| | PATIO | House Patio | 5 | * | 1998 | 180.0 |
| | HWPOR | House Wood Porch | 5 | * | 1998 | 249.0 |
| | HCPOR | House Concrete Porch | 5 | * | 1998 | 252.0 |
| | HDECK | House Deck | 5 | * | 1998 | 128.0 |
| | GATT | House Attached Garage | 5 | 1S | 1998 | 624.0 |
| | OTHER | Other | * | * | 1998 | 0.0 |
| | CONCD | Concrete Drive | 5 | * | 1998 | 3600.0 |
| | BSMTF | House basement finished | 5 | * | 1998 | 956.8 |
| | BSMTU | House basement unfinished | 5 | * | 1998 | 515.2 |
Sketch
Property Image
Land
| 1 | 3330-1145L | | 0.0000 | 0.00 | 0.00 | 0.00 | 1.00 | $189,750 | $0 |
Roll Value History
| 2026 | N/A | N/A | N/A | N/A | N/A |
| 2025 | $796,611 | $189,750 | $0 | $986,361 | $986,361 |
| 2024 | $796,611 | $189,750 | $0 | $986,361 | $986,361 |
| 2023 | $761,976 | $167,500 | $0 | $929,476 | $929,476 |
| 2022 | $727,340 | $162,500 | $0 | $889,840 | $889,840 |
Deed and Sales History
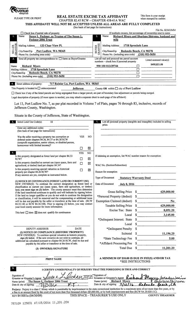
| 1 | 07/08/2016 | SWD | Statutory Warranty Deed | SUSAN L FECHNER TRUSTEE | RICHARD MYERS & SHARLENE SHIROMA | | | $629,000.00 | 125831 | |
| 2 | 04/15/2009 | QCD | Quit Claim Deed | FECHNER, SUSAN L | FECHNER, SUSAN L TRUSTEE OF TH | | | $0.00 | 112755 | 0 |
| 3 | 03/13/2009 | QCD | Quit Claim Deed | FECHNER, SUSAN TRUSTEE | FECHNER, SUSAN L | 0 | 0 | $0.00 | 112647 | 0 |
| 4 | 06/05/2007 | SWD | Statutory Warranty Deed | FECHNER, SUSAN LYNN | FECHNER, SUSAN L TRUSTEE OF TH | | | $0.00 | 109359 | 0 |
| 5 | 12/20/2006 | SWD | Statutory Warranty Deed | SCHMITZ, BRUCE W/DOROTHY | FECHNER, SUSAN LYNN | 0 | 0 | $669,000.00 | 108380 | 0 |
| 6 | 05/16/2001 | SWD | Statutory Warranty Deed | FORD, ROBERT T/VIRGINIA P | SCHMITZ, BRUCE W/DOROTHY M TRU | 0 | 0 | $535,000.00 | 92223 | 0 |
| 7 | 02/09/1998 | SWD | Statutory Warranty Deed | POPE RESOURCES | FORD, ROBERT T/VIRGINIA P | 0 | 0 | $100,000.00 | 83878 | 0 |
Payout Agreement
| No payout information available.. |