Property
Account |
| Property ID: | 39876 | Abbreviated Legal Description: | PORT LUDLOW NO 1 AREA 1 LOT 1 |
| Parcel # / Geo ID: | 990400101 | Agent Code: | |
| Type: | Real | | |
| Tax Area: | 0213 - 1-49F1E1H2L1 | Land Use Code | 11 |
| Open Space: | N | DFL | N |
| Historic Property: | N | Remodel Property: | N |
| Multi-Family Redevelopment: | N | | |
| Township: | 28N | Section: | 9 |
| Range: | 1E |
Location |
| Address: | 154 GAMBLE LN PORT LUDLOW, WA 98365 | Mapsco: | 096/001 |
| Neighborhood: | PORT LUDLOW #1 AREAS 1 AND 5; PORT LUDLOW # 7 | Map ID: | |
| Neighborhood CD: | 3330 |
Owner |
| Name: | JOHN D & THERESA M VOSILUS | Owner ID: | 101852 |
| Mailing Address: | 154 GAMBLE LN PORT LUDLOW, WA 98365-8707 | % Ownership: | 100.0000000000% |
| | | Exemptions: | |
Pay Tax Due
Select the appropriate checkbox next to the year to be paid. Multiple years may be selected.
*Convenience Fee not included
Taxes and Assessment Details
Property Tax Information as of
03/11/2026
Click on "Statement Details" to expand or collapse a tax statement.
* Please enter a valid date ** Please enter a valid date *
Statement Details |
| 2026 | 29049 | STATE - STATE LEVY (SCHOOL) | $597.75 | $597.75 | $0.00 | $0.00 | $0.00 | $1195.50 |
| 2026 | 29049 | COUNTY - COUNTY LEVIES (CE, DD, VET, MH) | $238.99 | $238.96 | $0.00 | $0.00 | $0.00 | $477.95 |
| 2026 | 29049 | CONSERVE - CONSERVATION FUTURES | $7.17 | $7.16 | $0.00 | $0.00 | $0.00 | $14.33 |
| 2026 | 29049 | COROADS - COUNTY ROADS (ROADS, DIV TO CE) | $192.79 | $192.79 | $0.00 | $0.00 | $0.00 | $385.58 |
| 2026 | 29049 | PORTPT - PORT DISTRICT | $96.52 | $96.52 | $0.00 | $0.00 | $0.00 | $193.04 |
| 2026 | 29049 | PUD1 - PUD #1 | $15.55 | $15.54 | $0.00 | $0.00 | $0.00 | $31.09 |
| 2026 | 29049 | LIB1 - LIBRARY DIST #1 | $74.59 | $74.59 | $0.00 | $0.00 | $0.00 | $149.18 |
| 2026 | 29049 | HD2 - HOSP DIST #2 | $13.94 | $13.94 | $0.00 | $0.00 | $0.00 | $27.88 |
| 2026 | 29049 | SD49 - SCHOOL DIST #49 | $329.05 | $329.03 | $0.00 | $0.00 | $0.00 | $658.08 |
| 2026 | 29049 | FD1 - FIRE DISTRICT #1 | $316.47 | $316.46 | $0.00 | $0.00 | $0.00 | $632.93 |
| 2026 | 29049 | EMS1 - FIRE DIST #1 EMS | $121.68 | $121.67 | $0.00 | $0.00 | $0.00 | $243.35 |
| 2026 | 29049 | JCCD - JC Conservation District | $2.55 | $2.55 | $0.00 | $0.00 | $0.00 | $5.10 |
| 2026 | 29049 | LUD - PT Ludlow Drainage District | $37.21 | $37.21 | $0.00 | $0.00 | $0.00 | $74.42 |
| 2026 | 29049 | NWA - Noxious Weed Assessment | $2.98 | $2.97 | $0.00 | $0.00 | $0.00 | $5.95 |
| 2026 | 29049 | OSS - On Site Septic | $23.10 | $23.10 | $0.00 | $0.00 | $0.00 | $46.20 |
| 2026 | 29049 | WAT - Clean Water District | $13.00 | $13.00 | $0.00 | $0.00 | $0.00 | $26.00 |
| 2026 | 29049 | Drain - DRAINAGE DISTRICT FEE | $0.74 | $0.00 | $0.00 | $0.00 | $0.00 | $0.74 |
| 2026 | 29049 | TOTAL: | $2084.08 | $2083.24 | $0.00 | $0.00 | $0.00 | $4167.32 |
|
| 2026 | 29049 | $2084.08 | $2083.24 | $0.00 | $0.00 | $0.00 | $4167.32 |
Statement Details |
| 2025 | 29121 | STATE - STATE LEVY (SCHOOL) | $623.48 | $623.47 | $0.00 | $0.00 | $1246.95 | $0.00 |
| 2025 | 29121 | COUNTY - COUNTY LEVIES (CE, DD, VET, MH) | $245.19 | $245.16 | $0.00 | $0.00 | $490.35 | $0.00 |
| 2025 | 29121 | CONSERVE - CONSERVATION FUTURES | $7.35 | $7.35 | $0.00 | $0.00 | $14.70 | $0.00 |
| 2025 | 29121 | COROADS - COUNTY ROADS (ROADS, DIV TO CE) | $196.43 | $196.43 | $0.00 | $0.00 | $392.86 | $0.00 |
| 2025 | 29121 | PORTPT - PORT DISTRICT | $100.06 | $100.04 | $0.00 | $0.00 | $200.10 | $0.00 |
| 2025 | 29121 | PUD1 - PUD #1 | $16.05 | $16.04 | $0.00 | $0.00 | $32.09 | $0.00 |
| 2025 | 29121 | LIB1 - LIBRARY DIST #1 | $76.00 | $75.99 | $0.00 | $0.00 | $151.99 | $0.00 |
| 2025 | 29121 | HD2 - HOSP DIST #2 | $14.31 | $14.30 | $0.00 | $0.00 | $28.61 | $0.00 |
| 2025 | 29121 | SD49 - SCHOOL DIST #49 | $334.15 | $334.14 | $0.00 | $0.00 | $668.29 | $0.00 |
| 2025 | 29121 | FD1 - FIRE DISTRICT #1 | $323.54 | $323.54 | $0.00 | $0.00 | $647.08 | $0.00 |
| 2025 | 29121 | EMS1 - FIRE DIST #1 EMS | $124.44 | $124.44 | $0.00 | $0.00 | $248.88 | $0.00 |
| 2025 | 29121 | JCCD - JC Conservation District | $2.55 | $2.55 | $0.00 | $0.00 | $5.10 | $0.00 |
| 2025 | 29121 | LUD - PT Ludlow Drainage District | $29.84 | $29.84 | $0.00 | $0.00 | $59.68 | $0.00 |
| 2025 | 29121 | NWA - Noxious Weed Assessment | $2.15 | $2.15 | $0.00 | $0.00 | $4.30 | $0.00 |
| 2025 | 29121 | OSS - On Site Septic | $21.50 | $21.50 | $0.00 | $0.00 | $43.00 | $0.00 |
| 2025 | 29121 | WAT - Clean Water District | $13.00 | $13.00 | $0.00 | $0.00 | $26.00 | $0.00 |
| 2025 | 29121 | Drain - DRAINAGE DISTRICT FEE | $0.60 | $0.00 | $0.00 | $0.00 | $0.60 | $0.00 |
| 2025 | 29121 | TOTAL: | $2130.64 | $2129.94 | $0.00 | $0.00 | $4260.58 | $0.00 |
|
| 2025 | 29121 | $2130.64 | $2129.94 | $0.00 | $0.00 | $4260.58 | $0.00 |
Statement Details |
| 2024 | 29181 | STATE - STATE LEVY (SCHOOL) | $563.55 | $563.55 | $0.00 | $0.00 | $1127.10 | $0.00 |
| 2024 | 29181 | COUNTY - COUNTY LEVIES (CE, DD, VET, MH) | $241.15 | $241.14 | $0.00 | $0.00 | $482.29 | $0.00 |
| 2024 | 29181 | CONSERVE - CONSERVATION FUTURES | $7.23 | $7.23 | $0.00 | $0.00 | $14.46 | $0.00 |
| 2024 | 29181 | COROADS - COUNTY ROADS (ROADS, DIV TO CE) | $194.04 | $194.04 | $0.00 | $0.00 | $388.08 | $0.00 |
| 2024 | 29181 | PORTPT - PORT DISTRICT | $99.61 | $99.60 | $0.00 | $0.00 | $199.21 | $0.00 |
| 2024 | 29181 | PUD1 - PUD #1 | $15.84 | $15.84 | $0.00 | $0.00 | $31.68 | $0.00 |
| 2024 | 29181 | LIB1 - LIBRARY DIST #1 | $75.08 | $75.07 | $0.00 | $0.00 | $150.15 | $0.00 |
| 2024 | 29181 | HD2 - HOSP DIST #2 | $14.07 | $14.07 | $0.00 | $0.00 | $28.14 | $0.00 |
| 2024 | 29181 | SD49 - SCHOOL DIST #49 | $251.65 | $251.65 | $0.00 | $0.00 | $503.30 | $0.00 |
| 2024 | 29181 | FD1 - FIRE DISTRICT #1 | $318.86 | $318.85 | $0.00 | $0.00 | $637.71 | $0.00 |
| 2024 | 29181 | EMS1 - FIRE DIST #1 EMS | $121.79 | $121.79 | $0.00 | $0.00 | $243.58 | $0.00 |
| 2024 | 29181 | JCCD - JC Conservation District | $2.55 | $2.55 | $0.00 | $0.00 | $5.10 | $0.00 |
| 2024 | 29181 | LUD - PT Ludlow Drainage District | $26.20 | $26.20 | $0.00 | $0.00 | $52.40 | $0.00 |
| 2024 | 29181 | NWA - Noxious Weed Assessment | $2.15 | $2.15 | $0.00 | $0.00 | $4.30 | $0.00 |
| 2024 | 29181 | OSS - On Site Septic | $21.00 | $21.00 | $0.00 | $0.00 | $42.00 | $0.00 |
| 2024 | 29181 | WAT - Clean Water District | $12.50 | $12.50 | $0.00 | $0.00 | $25.00 | $0.00 |
| 2024 | 29181 | Drain - DRAINAGE DISTRICT FEE | $0.52 | $0.00 | $0.00 | $0.00 | $0.52 | $0.00 |
| 2024 | 29181 | TOTAL: | $1967.79 | $1967.23 | $0.00 | $0.00 | $3935.02 | $0.00 |
|
| 2024 | 29181 | $1967.79 | $1967.23 | $0.00 | $0.00 | $3935.02 | $0.00 |
Statement Details |
| 2023 | 29223 | STATE - STATE LEVY (SCHOOL) | $546.57 | $546.56 | $0.00 | $0.00 | $1093.13 | $0.00 |
| 2023 | 29223 | COUNTY - COUNTY LEVIES (CE, DD, VET, MH) | $238.52 | $238.49 | $0.00 | $0.00 | $477.01 | $0.00 |
| 2023 | 29223 | CONSERVE - CONSERVATION FUTURES | $7.15 | $7.15 | $0.00 | $0.00 | $14.30 | $0.00 |
| 2023 | 29223 | COROADS - COUNTY ROADS (ROADS, DIV TO CE) | $192.97 | $192.96 | $0.00 | $0.00 | $385.93 | $0.00 |
| 2023 | 29223 | PORTPT - PORT DISTRICT | $100.47 | $100.47 | $0.00 | $0.00 | $200.94 | $0.00 |
| 2023 | 29223 | PUD1 - PUD #1 | $15.81 | $15.81 | $0.00 | $0.00 | $31.62 | $0.00 |
| 2023 | 29223 | LIB1 - LIBRARY DIST #1 | $74.66 | $74.65 | $0.00 | $0.00 | $149.31 | $0.00 |
| 2023 | 29223 | HD2 - HOSP DIST #2 | $13.93 | $13.91 | $0.00 | $0.00 | $27.84 | $0.00 |
| 2023 | 29223 | SD49 - SCHOOL DIST #49 | $255.49 | $255.48 | $0.00 | $0.00 | $510.97 | $0.00 |
| 2023 | 29223 | FD3 - FIRE DISTRICT #3 | $237.28 | $237.27 | $0.00 | $0.00 | $474.55 | $0.00 |
| 2023 | 29223 | EMS3 - FIRE DIST #3 EMS | $84.83 | $84.82 | $0.00 | $0.00 | $169.65 | $0.00 |
| 2023 | 29223 | JCCD - JC Conservation District | $2.55 | $2.55 | $0.00 | $0.00 | $5.10 | $0.00 |
| 2023 | 29223 | LUD - PT Ludlow Drainage District | $26.38 | $26.37 | $0.00 | $0.00 | $52.75 | $0.00 |
| 2023 | 29223 | NWA - Noxious Weed Assessment | $2.15 | $2.15 | $0.00 | $0.00 | $4.30 | $0.00 |
| 2023 | 29223 | OSS - On Site Septic | $20.50 | $20.50 | $0.00 | $0.00 | $41.00 | $0.00 |
| 2023 | 29223 | WAT - Clean Water District | $12.00 | $12.00 | $0.00 | $0.00 | $24.00 | $0.00 |
| 2023 | 29223 | Drain - DRAINAGE DISTRICT FEE | $0.53 | $0.00 | $0.00 | $0.00 | $0.53 | $0.00 |
| 2023 | 29223 | TOTAL: | $1831.79 | $1831.14 | $0.00 | $0.00 | $3662.93 | $0.00 |
|
| 2023 | 29223 | $1831.79 | $1831.14 | $0.00 | $0.00 | $3662.93 | $0.00 |
Values
| (+) Improvement Homesite Value: | + | $0 | |
| (+) Improvement Non-Homesite Value: | + | $409,989 | |
| (+) Land Homesite Value: | + | $0 | |
| (+) Land Non-Homesite Value: | + | $110,000 | |
| (+) Curr Use (HS): | + | $0 | $0 |
| (+) Curr Use (NHS): | + | $0 | $0 |
| | | -------------------------- | |
| (=) Market Value: | = | $519,989 | |
| (–) Productivity Loss: | – | $0 | |
| | | -------------------------- | |
| (=) Subtotal: | = | $519,989 | |
| (+) Senior Appraised Value: | + | $0 | |
| (+) Non-Senior Appraised Value: | + | $519,989 | |
| | | -------------------------- | |
| (=) Total Appraised Value: | = | $519,989 | |
| (–) Senior Exemption Loss: | – | $0 | |
| (–) Exemption Loss: | – | $0 | |
| | | -------------------------- | |
| (=) Taxable Value: | = | $519,989 | |
Taxing Jurisdiction
| Owner: | JOHN D & THERESA M VOSILUS | | |
| % Ownership: | 100.0000000000% | | |
| Total Value: | $519,989 | | |
| Tax Area: | 0213 - 1-49F1E1H2L1 |
| CE | COUNTY CURRENT EXPENSE | 0.9034619479 | $519,989 | $519,989 | $469.79 | | |
| CNTYDD | DEVELOPMENTAL DISABILITIES | 0.0052121823 | $519,989 | $519,989 | $2.71 | | |
| CNTYVET | VETERANS RELIEF | 0.0052777810 | $519,989 | $519,989 | $2.74 | | |
| MENTAL | MENTAL HEALTH | 0.0052121823 | $519,989 | $519,989 | $2.71 | | |
| ROADS | COUNTY ROADS | 0.7415066410 | $519,989 | $519,989 | $385.58 | | |
| ROADSCU | COUNTY ROADS TO CUR EXP | 0.0000000000 | $519,989 | $519,989 | $0.00 | | |
| HOSP2CASH | HOSP DIST #2 GENERAL | 0.0536075306 | $519,989 | $519,989 | $27.88 | | |
| SCH49CP | SCHOOL DIST #49 CAP PROJ | 0.6279093905 | $519,989 | $519,989 | $326.51 | | |
| SCH49MO | SCHOOL DIST #49 EP & O | 0.6376483602 | $519,989 | $519,989 | $331.57 | | |
| CONSERVE | CONSERVATION FUTURES | 0.0275621078 | $519,989 | $519,989 | $14.33 | | |
| EMS1 | FIRE DIST #1 EMS | 0.4679948282 | $519,989 | $519,989 | $243.35 | | |
| FD1 | FIRE DIST #1 GENERAL | 1.2171942929 | $519,989 | $519,989 | $632.93 | | |
| LIB1 | LIBRARY DIST #1 GENERAL | 0.2868827388 | $519,989 | $519,989 | $149.18 | | |
| PORTPT | PORT OF PT GENERAL | 0.1134941229 | $519,989 | $519,989 | $59.02 | | |
| PORTPTIDD | PORT OF PT IDD 2019 | 0.2577346692 | $519,989 | $519,989 | $134.02 | | |
| PUD1 | PUD #1 GENERAL | 0.0597888892 | $519,989 | $519,989 | $31.09 | | |
| STATE | STATE SCHOOL PART 1 | 1.4940692947 | $519,989 | $519,989 | $776.90 | | |
| STATE2 | STATE SCHOOL PART 2 | 0.8050170049 | $519,989 | $519,989 | $418.60 | | |
| | Total Tax Rate: | 7.7095739644 | | | | | |
| | | | | Taxes w/Current Exemptions: | $4,008.91 | | |
| | | | | Taxes w/o Exemptions: | $4,008.91 | | |
Improvement / Building
| Improvement #1: | Residential Bldg | State Code: | 11 | 2224.0 sqft | Value: | $409,989 |
| Bathrooms (#): | 2 (FULL) | Bathrooms (#): | 1 (HALF) | | Bedrooms (#): | 3 | Exterior Wall: | SI/ST | | Floor Construction: | FRAME | Foundation: | CONPR | | Heating/Cooling: | HPUMP | Roof Cover: | COMP |
|
| | Type | Description | Class CD | Sub Class CD | Year Built | Area |
| | MA | Main Area | 4- | 1S | 1976 | 2224.0 |
| | PATIO | House Patio | 3 | * | 1976 | 368.0 |
| | HDECK | House Deck | 3 | * | 1976 | 336.0 |
| | GATT | House Attached Garage | 3 | 1S | 1976 | 720.0 |
| | CONCD | Concrete Drive | 3 | * | 1976 | 1100.0 |
Sketch
Property Image
Land
| 1 | 3330-1175L | | 0.0000 | 0.00 | 0.00 | 0.00 | 1.00 | $110,000 | $0 |
Roll Value History
| 2026 | N/A | N/A | N/A | N/A | N/A |
| 2025 | $409,989 | $110,000 | $0 | $519,989 | $519,989 |
| 2024 | $409,989 | $110,000 | $0 | $519,989 | $519,989 |
| 2023 | $392,163 | $95,000 | $0 | $487,163 | $487,163 |
| 2022 | $374,338 | $90,000 | $0 | $464,338 | $464,338 |
Deed and Sales History
| 1 | 10/11/2019 | SWD | Statutory Warranty Deed | COLLENE RODRIGUES | JOHN D & THERESA M VOSILUS | | | $395,000.00 | 133348 | |
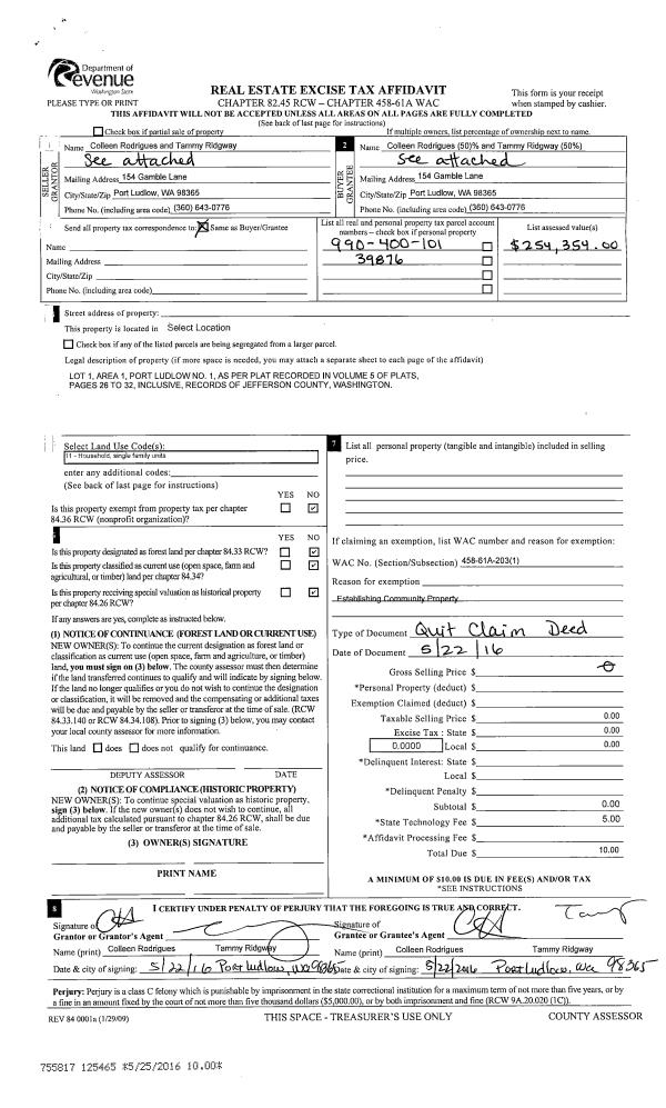
| 2 | 05/22/2016 | QCD | Quit Claim Deed | | | | | | 125465 | |
| 3 | 04/29/2014 | SWD | Statutory Warranty Deed | SCOTT R BRODERSON | COLLENE RODRIGUES | | | $275,000.00 | 121094 | |
| 4 | 07/28/2006 | SWD | Statutory Warranty Deed | OWENS, MICHAEL E/TAMARA S | BRODERSON, SCOTT R/KRISTIE E | | | $240,000.00 | 107222 | 0 |
| 5 | 03/01/2004 | SWD | Statutory Warranty Deed | SCHWARZ, PAULINE M | PORT LUDLOW ASSOCIATES | 0 | 0 | $10,000.00 | 99747 | 0 |
| 6 | 12/09/2002 | SWD | Statutory Warranty Deed | CARSTENSEN, DOROTHY M | OWENS, MICHAEL & TAMARA | 0 | 0 | $166,000.00 | 96140 | 0 |
| 7 | 12/24/1997 | SWD | Statutory Warranty Deed | WURTZ, THEODORE J/BARBARA | CARSTENSEN, HOWARD G/DOROTHY M | 0 | 0 | $144,000.00 | 83517 | 0 |
Payout Agreement
| No payout information available.. |