Property
Account |
| Property ID: | 39906 | Abbreviated Legal Description: | PORT LUDLOW NO. 1 AREA 1, LOT 31 |
| Parcel # / Geo ID: | 990400131 | Agent Code: | |
| Type: | Real | | |
| Tax Area: | 0213 - 1-49F1E1H2L1 | Land Use Code | 11 |
| Open Space: | N | DFL | N |
| Historic Property: | N | Remodel Property: | N |
| Multi-Family Redevelopment: | N | | |
| Township: | 28N | Section: | 9 |
| Range: | 1E |
Location |
| Address: | 53 HELM LN PORT LUDLOW, WA 98365 | Mapsco: | 096/031 |
| Neighborhood: | PORT LUDLOW #1 AREAS 1 AND 5; PORT LUDLOW # 7 | Map ID: | |
| Neighborhood CD: | 3330 |
Owner |
| Name: | JAMES A & MARIA LAWSON | Owner ID: | 103243 |
| Mailing Address: | 53 HELM LN PORT LUDLOW, WA 98365-9725 | % Ownership: | 100.0000000000% |
| | | Exemptions: | |
Pay Tax Due
There is currently No Amount Due on this property.
Taxes and Assessment Details
Property Tax Information as of
03/10/2026
Click on "Statement Details" to expand or collapse a tax statement.
* Please enter a valid date ** Please enter a valid date *
Statement Details |
| | TOTAL: | $0.00 | $0.00 | $0.00 | $0.00 | $0.00 | $0.00 |
|
| | $0.00 | $0.00 | $0.00 | $0.00 | $0.00 | $0.00 |
Values
| (+) Improvement Homesite Value: | + | $0 | |
| (+) Improvement Non-Homesite Value: | + | $419,257 | |
| (+) Land Homesite Value: | + | $0 | |
| (+) Land Non-Homesite Value: | + | $104,500 | |
| (+) Curr Use (HS): | + | $0 | $0 |
| (+) Curr Use (NHS): | + | $0 | $0 |
| | | -------------------------- | |
| (=) Market Value: | = | $523,757 | |
| (–) Productivity Loss: | – | $0 | |
| | | -------------------------- | |
| (=) Subtotal: | = | $523,757 | |
| (+) Senior Appraised Value: | + | $0 | |
| (+) Non-Senior Appraised Value: | + | $523,757 | |
| | | -------------------------- | |
| (=) Total Appraised Value: | = | $523,757 | |
| (–) Senior Exemption Loss: | – | $0 | |
| (–) Exemption Loss: | – | $0 | |
| | | -------------------------- | |
| (=) Taxable Value: | = | $523,757 | |
Taxing Jurisdiction
| Owner: | JAMES A & MARIA LAWSON | | |
| % Ownership: | 100.0000000000% | | |
| Total Value: | $523,757 | | |
| Tax Area: | 0213 - 1-49F1E1H2L1 |
| CE | COUNTY CURRENT EXPENSE | 0.9034619479 | $523,757 | $523,757 | $473.19 | | |
| CNTYDD | DEVELOPMENTAL DISABILITIES | 0.0052121823 | $523,757 | $523,757 | $2.73 | | |
| CNTYVET | VETERANS RELIEF | 0.0052777810 | $523,757 | $523,757 | $2.76 | | |
| MENTAL | MENTAL HEALTH | 0.0052121823 | $523,757 | $523,757 | $2.73 | | |
| ROADS | COUNTY ROADS | 0.7415066410 | $523,757 | $523,757 | $388.37 | | |
| ROADSCU | COUNTY ROADS TO CUR EXP | 0.0000000000 | $523,757 | $523,757 | $0.00 | | |
| HOSP2CASH | HOSP DIST #2 GENERAL | 0.0536075306 | $523,757 | $523,757 | $28.08 | | |
| SCH49CP | SCHOOL DIST #49 CAP PROJ | 0.6279093905 | $523,757 | $523,757 | $328.87 | | |
| SCH49MO | SCHOOL DIST #49 EP & O | 0.6376483602 | $523,757 | $523,757 | $333.97 | | |
| CONSERVE | CONSERVATION FUTURES | 0.0275621078 | $523,757 | $523,757 | $14.44 | | |
| EMS1 | FIRE DIST #1 EMS | 0.4679948282 | $523,757 | $523,757 | $245.12 | | |
| FD1 | FIRE DIST #1 GENERAL | 1.2171942929 | $523,757 | $523,757 | $637.51 | | |
| LIB1 | LIBRARY DIST #1 GENERAL | 0.2868827388 | $523,757 | $523,757 | $150.26 | | |
| PORTPT | PORT OF PT GENERAL | 0.1134941229 | $523,757 | $523,757 | $59.44 | | |
| PORTPTIDD | PORT OF PT IDD 2019 | 0.2577346692 | $523,757 | $523,757 | $134.99 | | |
| PUD1 | PUD #1 GENERAL | 0.0597888892 | $523,757 | $523,757 | $31.31 | | |
| STATE | STATE SCHOOL PART 1 | 1.4940692947 | $523,757 | $523,757 | $782.53 | | |
| STATE2 | STATE SCHOOL PART 2 | 0.8050170049 | $523,757 | $523,757 | $421.63 | | |
| | Total Tax Rate: | 7.7095739644 | | | | | |
| | | | | Taxes w/Current Exemptions: | $4,037.93 | | |
| | | | | Taxes w/o Exemptions: | $4,037.93 | | |
Improvement / Building
| Improvement #1: | Residential Bldg | State Code: | 11 | 1688.0 sqft | Value: | $419,257 |
| Bathrooms (#): | 2 (FULL) | Bedrooms (#): | 2 | | Exterior Wall: | SI/ST | Fireplace: | WD ST-AVG | | Floor Construction: | FRAME | Foundation: | CONPR | | Heating/Cooling: | F/A | Inside Verify: | YES-FIX | | Roof Cover: | COMP |   |   |
|
| | Type | Description | Class CD | Sub Class CD | Year Built | Area |
| | MA | Main Area | 4+ | 1S | 1993 | 1688.0 |
| | PATIO | House Patio | 4 | * | 1993 | 410.0 |
| | HWPOR | House Wood Porch | 4 | * | 1993 | 136.0 |
| | GATT | House Attached Garage | 4 | 1S | 1993 | 544.0 |
| | CONCD | Concrete Drive | 4 | * | 1993 | 1970.0 |
Sketch
Property Image
Land
| 1 | 3330-1185L | No View Lots | 0.0000 | 0.00 | 0.00 | 0.00 | 1.00 | $104,500 | $0 |
Roll Value History
| 2026 | N/A | N/A | N/A | N/A | N/A |
| 2025 | $419,257 | $104,500 | $0 | $523,757 | $523,757 |
| 2024 | $347,807 | $104,500 | $0 | $452,307 | $452,307 |
| 2023 | $332,685 | $90,000 | $0 | $422,685 | $422,685 |
| 2022 | $317,563 | $85,000 | $0 | $402,563 | $402,563 |
Deed and Sales History
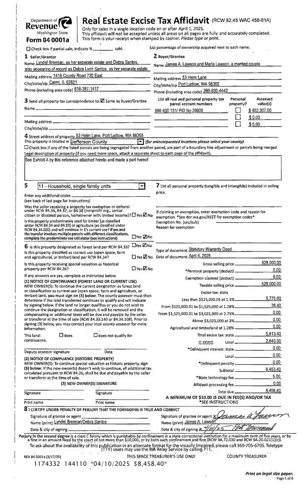
| 1 | 04/04/2025 | SWD | Statutory Warranty Deed | LYNDEL BRENNAN | JAMES A & MARIA LAWSON | | | $528,000.00 | 144110 | |
| 2 | 04/18/2017 | SWD | Statutory Warranty Deed | GORDON WALLINGER | LYNDEL BRENNAN | | | $279,950.00 | 127514 | |
| 3 | 04/09/1993 | SWD | Statutory Warranty Deed | KAMPA-HILL INC | WALLINGER, GORDON/DORIS | 0 | 0 | $32,200.00 | 70949 | 0 |
Payout Agreement
| No payout information available.. |